賃貸マンション
ファーストリアルタワー新宿の賃貸物件情報(1K/16階)
| 家賃 | 管理費等 | 敷金 | 礼金 | 間取り | 専有面積 |
|---|---|---|---|---|---|
| 15.6万円 | 1万円 | 15.6万円 | なし | 1K | 24.04m2 |
入居決定でお祝い金最大100,000円
- 保証金
- -
- 償却・敷引
- -
- 築年数
- 築21年
- 所在階
- 16階
- 向き
- 西
Point
【業界新システム】正直不動産公式副読本掲載の話題沸騰店舗☆
提供:神宮前不動産(株)(SUUMO経由)

詳細情報 ファーストリアルタワー新宿
物件紹介
ファーストリアルタワー新宿は都営大江戸線新宿西口駅から徒歩4分にあり、駅近で通勤通学に便利なマンションです。
このお部屋は2階以上に位置しているので、通行人や周囲の住人からの視線が気になりにくく、防犯面でも安心。建物のエントランスはオートロックがついており、インターホンにはTVモニタもついているため、相手の顔を確認してから来客対応することができます。
フローリングのお部屋なのでお掃除もラクラク。キッチンはシステムキッチン仕様になっていますので、お料理好きの方にもぴったり。バス・トイレは別なので、のんびりお風呂タイムも楽しめるでしょう。また、雨の日でも浴室乾燥機を使えば、お洗濯も問題ありません。
建物にはエレベーターがついているので、重い荷物があっても安心。共用部には宅配ボックスが設定されているので、不在の時にも荷物を受け取ることができます。
このお部屋は2階以上に位置しているので、通行人や周囲の住人からの視線が気になりにくく、防犯面でも安心。建物のエントランスはオートロックがついており、インターホンにはTVモニタもついているため、相手の顔を確認してから来客対応することができます。
フローリングのお部屋なのでお掃除もラクラク。キッチンはシステムキッチン仕様になっていますので、お料理好きの方にもぴったり。バス・トイレは別なので、のんびりお風呂タイムも楽しめるでしょう。また、雨の日でも浴室乾燥機を使えば、お洗濯も問題ありません。
建物にはエレベーターがついているので、重い荷物があっても安心。共用部には宅配ボックスが設定されているので、不在の時にも荷物を受け取ることができます。
お金・契約の情報
※「-」と表示されているものは、実際は料金が発生するものもございます。詳細はお問い合わせください。
| 家賃 | 15.6万円 | 管理費・共益費 | 1万円 |
|---|---|---|---|
| 敷金 | 15.6万円 | 礼金 | なし |
| 入居決定でお祝い金最大100,000円 | |||
| 保証金 | - | 償却・敷引 | - |
| 住宅保険料 | - | 更新料 | - |
| 保証会社利用 | 利用可 | 保証会社名 | リクルートフォレントインシュア |
| 保証会社費用 | - | 保証会社備考 | オリコフォレントインシュア利用可 ●オリコフォレントインシュア初回保証委託料は賃料等の1ヶ月分、1年毎に14,000円の保証委託料 ●アイシンクレントご所有のクレジットカードで賃料保証と家財保険を決済。月額賃料等の4.25%+700円 |
| 契約形態 | - | 契約期間 | - |
| 入居・引渡期間 | 相談 | 現況 | - |
| 契約備考 | 【業界新システム】正直不動産公式副読本掲載の話題沸騰店舗☆ 合計3.74万円(内訳:鍵交換代3.74万円) 更新料 新賃料1.00ヶ月分 1K 事務所利用不可/ルームシェア不可 普通借家2年 損保【要】 バストイレ別、バルコニー、エアコン、ガスコンロ対応、クロゼット、フローリング、TVインターホン、浴室乾燥機、オートロック、室内洗濯置、システムキッチン、追焚機能浴室、温水洗浄便座、エレベーター、洗面所独立、2口コンロ、宅配ボックス、礼金不要、分譲賃貸、グリル付、敷金1ヶ月、ダブルロックキー、保証金不要、コインランドリー、フロントサービス、エレベーター2基、都市ガス、シューズWIC | ||
部屋の情報
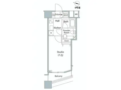
| 間取り | 1K | 専有面積 | 24.04m2 |
|---|---|---|---|
| 所在階 / 向き | 16階 / 西 | バルコニー面積 | - |
| 水道 / ガス | - | ||
| 設備 | バス・トイレ別、2階以上、オートロック、テレビドアホン、宅配ボックス、浴室乾燥機、追い焚き、システムキッチン、エアコン、エレベーター、温水洗浄便座、バルコニー、フローリング、洗髪洗面化粧台、2口コンロ、コンロ:ガス、洗濯機:室内 | ||
| 当社物件ID | 24207476 | ||
建物の情報
| 建物名 | ファーストリアルタワー新宿 | ||
|---|---|---|---|
| 所在地 | 東京都新宿区西新宿 | ||
| 交通 | 都営大江戸線 新宿西口駅 徒歩4分 東京メトロ丸ノ内線 新宿駅 徒歩6分 JR山手線 新宿駅 徒歩8分 | ||
| 階数 | 地下2地上32階建 | 総戸数 | - |
| 築年月 | 2006年03月 / 築21年 | エレベーター | あり |
| 駐車場 | 空有 59400円 | バイク置き場 | - |
| 駐輪場 | - | 管理人/管理会社 | - |
| 建物種別 | マンション | 建物構造 | RC(鉄筋コンクリート) |
この部屋の取扱い不動産会社
| 会社名 | 神宮前不動産(株)公園前店(SUUMO経由) | ||
|---|---|---|---|
| 所在地 | 東京都渋谷区神宮前6-23-11 J-SIXビル6階 | 交通 | - |
| 営業時間 | 10:00~19:00 | 定休日 | 水 |
| 免許番号 | 東京都知事105473 | 取引態様 | 仲介 |
| 不動産会社管理番号 | 100494883402 | 当社管理番号 | 89 |
| 所属団体 | (公社)全日本不動産協会東京都本部会員 | ||
| 公正取引協議会 | (公社)首都圏不動産公正取引協議会加盟 | ||
| 取扱い物件情報 | 物件詳細へ | ||
※各種情報と現状に差異がある場合は、現状優先となります。問い合わせをすることで、より詳しい条件、情報を確認する事ができます。
提供:神宮前不動産(株)公園前店(SUUMO経由)
この物件が気になったら掲載期限まであと10日
ファーストリアルタワー新宿に条件(家賃・エリア)が近い物件一覧
| 写真 | 家賃 管理費等 | 敷金 礼金 | 間取り 専有面積 | 築年数 | 最寄り駅 所在地 | キープ | 詳細 |
|---|---|---|---|---|---|---|---|
マンション レジディア広尾II(1K/4階) | |||||||
![]() | 15.2万円 1.5万円 | なし なし | 1K 20.92m2 | 築21年 | 東京メトロ日比谷線 広尾駅 徒歩7分 JR山手線 恵比寿駅 徒歩12分 東京メトロ南北線 白金台駅 徒歩23分 東京都渋谷区広尾 | 詳細を見る | |
マンション ステージファースト青山(1K/1階) | |||||||
![]() | 9.9万円 6,000円 | なし 9.9万円 | 1K 18.58m2 | 築27年 | 東京メトロ銀座線 外苑前駅 徒歩7分 東京メトロ千代田線 表参道駅 徒歩8分 東京メトロ銀座線 青山一丁目駅 徒歩16分 東京都渋谷区神宮前 | 詳細を見る | |
マンション パークキューブ四谷三丁目(ワンルーム/3階) | |||||||
![]() | 12.2万円 8,000円 | 12.2万円 12.2万円 | ワンルーム 22.65m2 | 築18年 | 都営新宿線 曙橋駅 徒歩4分 東京メトロ丸ノ内線 四谷三丁目駅 徒歩5分 都営大江戸線 若松河田駅 徒歩18分 東京都新宿区荒木町 | 詳細を見る | |
マンション メゾンカルム中落合サウス(2LDK/2階) | |||||||
![]() | 21.4万円 1.5万円 | 21.4万円 なし | 2LDK 64.42m2 | 築37年 | 西武新宿線 下落合駅(東京) 徒歩6分 都営大江戸線 中井駅 徒歩11分 都営大江戸線 落合南長崎駅 徒歩14分 東京都新宿区中落合 | 詳細を見る | |
マンション オーキッド代々木上原(1LDK/3階) | |||||||
![]() | 25万円 なし | 50万円 25万円 | 1LDK 68.4m2 | 築36年 | 小田急線 代々木上原駅 徒歩4分 東京メトロ千代田線 代々木公園駅 徒歩7分 京王新線 幡ケ谷駅 徒歩16分 東京都渋谷区上原 | 詳細を見る | |
マンション HOUSE MM(ワンルーム/3階) | |||||||
![]() | 11.9万円 6,000円 | 11.9万円 11.9万円 | ワンルーム 30.1m2 | 築13年 | JR中央線 中野駅(東京) 徒歩6分 東京メトロ東西線 中野駅(東京) 徒歩6分 東京メトロ丸ノ内線 新中野駅 徒歩7分 東京都中野区中央 | 詳細を見る | |
マンション スペーシア秋葉原(1K/3階) | |||||||
![]() | 13万円 1.5万円 | なし なし | 1K 23.85m2 | 築21年 | 東京メトロ銀座線 末広町駅(東京) 徒歩2分 JR山手線 秋葉原駅 徒歩5分 東京メトロ日比谷線 秋葉原駅 徒歩5分 東京都千代田区外神田 | 詳細を見る | |







