賃貸アパート
ザ・パークハビオ北千住の賃貸物件情報(1K/14階)
| 家賃 | 管理費等 | 敷金 | 礼金 | 間取り | 専有面積 |
|---|---|---|---|---|---|
| 16.5万円 | 1.5万円 | 16.5万円 | 16.5万円 | 1K | 27.54m2 |
入居決定でお祝い金最大100,000円
- 保証金
- -
- 償却・敷引
- -
- 築年数
- 新築(築1年)
- 所在階
- 14階
- 向き
- 南
Point
セキュリティ面は、オートロック・TVインターホンなど充実しているので安心して生活できます。
提供:ハウスコム東東京株式会社 北千住店

詳細情報 ザ・パークハビオ北千住
物件紹介
ザ・パークハビオ北千住は東京地下鉄千代田線北千住駅から徒歩4分にあり、駅近で通勤通学に便利なアパートです。
このお部屋は2階以上に位置しているので、通行人や周囲の住人からの視線が気になりにくく、防犯面でも安心。建物のエントランスはオートロックがついており、インターホンにはTVモニタもついているため、相手の顔を確認してから来客対応することができます。
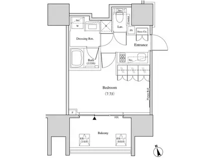
こちらは楽器相談が可能な物件。楽器演奏をお考えの方はぜひ相談してみてください。人気の南向き・フローリングのお部屋。角部屋でもあるため、周囲の居住者の生活音も気になりにくい場所です。室内にはウォークインクローゼットがありますので、たくさんの荷物も効率的に収納ができます。キッチンはシステムキッチン仕様になっていますので、お料理好きの方にもぴったり。バス・トイレは別なので、のんびりお風呂タイムも楽しめるでしょう。また、雨の日でも浴室乾燥機を使えば、お洗濯も問題ありません。
通信設備面では、インターネットが無料で使えるので、月々の出費を抑えられるのも魅力です(別途工事等が必要な場合あり)。
建物にはエレベーターがついているので、重い荷物があっても安心。共用部には宅配ボックスが設定されているので、不在の時にも荷物を受け取ることができます。また、ペット飼育の相談ができますので、あなたの大切な家族の一員も快適に暮らせるか、ぜひ確認してみてください。
コンビニまで徒歩2分の場所にあり、日用品や食料品のお買い物にも便利です。
このお部屋は2階以上に位置しているので、通行人や周囲の住人からの視線が気になりにくく、防犯面でも安心。建物のエントランスはオートロックがついており、インターホンにはTVモニタもついているため、相手の顔を確認してから来客対応することができます。
こちらは楽器相談が可能な物件。楽器演奏をお考えの方はぜひ相談してみてください。人気の南向き・フローリングのお部屋。角部屋でもあるため、周囲の居住者の生活音も気になりにくい場所です。室内にはウォークインクローゼットがありますので、たくさんの荷物も効率的に収納ができます。キッチンはシステムキッチン仕様になっていますので、お料理好きの方にもぴったり。バス・トイレは別なので、のんびりお風呂タイムも楽しめるでしょう。また、雨の日でも浴室乾燥機を使えば、お洗濯も問題ありません。
通信設備面では、インターネットが無料で使えるので、月々の出費を抑えられるのも魅力です(別途工事等が必要な場合あり)。
建物にはエレベーターがついているので、重い荷物があっても安心。共用部には宅配ボックスが設定されているので、不在の時にも荷物を受け取ることができます。また、ペット飼育の相談ができますので、あなたの大切な家族の一員も快適に暮らせるか、ぜひ確認してみてください。
コンビニまで徒歩2分の場所にあり、日用品や食料品のお買い物にも便利です。
お金・契約の情報
※「-」と表示されているものは、実際は料金が発生するものもございます。詳細はお問い合わせください。
| 家賃 | 16.5万円 | 管理費・共益費 | 1.5万円 |
|---|---|---|---|
| 敷金 | 16.5万円 | 礼金 | 16.5万円 |
| 入居決定でお祝い金最大100,000円 | |||
| 保証金 | - | 償却・敷引 | - |
| 住宅保険料 | 1円 | 更新料 | - |
| その他費用 | 駆付けサポート24(2年):1.65万円 | ||
| 保証会社利用 | 必須 | 保証会社名 | ジェイリース |
| 保証会社費用 | - | 保証会社備考 | 初年度保証料:総賃料50%、2年目以降:1年毎1万円 法人契約保証会社【日本セーフティー】 |
| 契約形態 | - | 契約期間 | 2年 |
| 入居・引渡期間 | 即時 | 現況 | - |
| 入居可能条件 | 2人入居可、楽器可、ペット相談 | ||
| 契約備考 | ペット飼育時敷金1カ月追加 その他設備/条件:室内洗濯機置き場、独立洗面台、防犯カメラ、クローゼット、シューズボックス | ||
部屋の情報
| 間取り | 1K | 専有面積 | 27.54m2 |
|---|---|---|---|
| 間取り詳細 | K(7.7帖) | ||
| 所在階 / 向き | 14階 / 南 | バルコニー面積 | - |
| 水道 / ガス | ガス【都市】 | ||
| 設備 | バス・トイレ別、オートロック、テレビドアホン、宅配ボックス、浴室乾燥機、ウォークインクローゼット、追い焚き、光ファイバー対応、システムキッチン、カウンターキッチン、エアコン、エレベーター、温水洗浄便座、角部屋、バルコニー、フローリング、3口コンロ、コンロ:ガス、インターネット使用料無料 | ||
| 当社物件ID | 160419203 | ||
建物の情報
| 建物名 | ザ・パークハビオ北千住 | ||
|---|---|---|---|
| 所在地 | 東京都足立区千住3丁目 | ||
| 交通 | 東京地下鉄千代田線 北千住駅 徒歩4分 京成電鉄本線 千住大橋駅 徒歩16分 | ||
| 階数 | 14階建 | 総戸数 | - |
| 築年月 | 2025年07月 / 新築(築1年) | エレベーター | あり |
| 駐車場 | 空有 3.85万円/月 | バイク置き場 | あり |
| 駐輪場 | あり | 管理人/管理会社 | - |
| 周辺環境 | コンビニ 徒歩2分(126m) 販売店 徒歩5分(327m) その他 ドラッグストア その他 公園 その他 銀行 その他 * | ||
| 建物種別 | アパート | 建物構造 | RC(鉄筋コンクリート) |
この部屋の取扱い不動産会社
| 会社名 | ハウスコム東東京株式会社 青砥店 | ||
|---|---|---|---|
| 所在地 | 東京都葛飾区2-20 メゾン・ノア1階 | 交通 | - |
| 営業時間 | 10:00~18:00 | 定休日 | - |
| 免許番号 | 東京都知事(1)第108283号 | 取引態様 | 仲介 |
| 不動産会社管理番号 | HC2-4976526-1403-0102 | 当社管理番号 | 468 |
| 所属団体 | 、 | ||
| 取扱い物件情報 | 物件詳細へ | ||
※各種情報と現状に差異がある場合は、現状優先となります。問い合わせをすることで、より詳しい条件、情報を確認する事ができます。
提供:ハウスコム東東京株式会社 青砥店
この物件が気になったら掲載期限まであと12日
ザ・パークハビオ北千住の空き部屋一覧
全部で23の空き部屋があります。
ザ・パークハビオ北千住に条件(家賃・エリア)が近い物件一覧
| 写真 | 家賃 管理費等 | 敷金 礼金 | 間取り 専有面積 | 築年数 | 最寄り駅 所在地 | キープ | 詳細 |
|---|---|---|---|---|---|---|---|
マンション 東新小岩5丁目マンション(ワンルーム/1階) | |||||||
![]() | 10.3万円 1.1万円 | なし 10.3万円 | ワンルーム 16.1m2 | 築1年 | JR総武線快速 新小岩駅 徒歩8分 JR総武線 平井駅(東京) 徒歩26分 京成押上線 京成立石駅 徒歩27分 東京都葛飾区東新小岩 | 詳細を見る | |
マンション LIME RESIDENCE HIKIFUNE(2LDK/2階) | |||||||
![]() | 20.5万円 2万円 | なし なし | 2LDK 48.02m2 | 築2年 | 東武伊勢崎線 曳舟駅 徒歩9分 京成押上線 京成曳舟駅 徒歩13分 東武伊勢崎線 東向島駅 徒歩14分 東京都墨田区東向島 | 詳細を見る | |
マンション 大森コーポ(1LDK/2階) | |||||||
![]() | 14万円 1万円 | 14万円 14万円 | 1LDK 41.49m2 | 築38年 | 千代田・常磐緩行線 亀有駅 徒歩4分 東京都葛飾区亀有3丁目 | 詳細を見る | |
マンション BCITY両国(1LDK/3階) | |||||||
![]() | 17.3万円 1.5万円 | 17.3万円 17.3万円 | 1LDK 50.82m2 | 築13年 | 都営大江戸線 両国駅 徒歩7分 JR総武線 錦糸町駅 徒歩13分 都営新宿線 森下駅(東京) 徒歩15分 東京都墨田区緑 | 詳細を見る | |
マンション パークサイド関口(1LDK/7階) | |||||||
![]() | 13万円 なし | 13万円 13万円 | 1LDK 35m2 | 築38年 | 東京メトロ半蔵門線 錦糸町駅 徒歩1分 JR総武線 錦糸町駅 徒歩2分 都営新宿線 住吉駅(東京) 徒歩13分 東京都墨田区錦糸 | 詳細を見る | |
マンション 大藤ビル(2K/2階) | |||||||
![]() | 13.5万円 5,000円 | 27万円 なし | 2K 41.07m2 | 築32年 | JR山手線 西日暮里駅 徒歩4分 JR山手線 日暮里駅 徒歩6分 JR常磐線 三河島駅 徒歩8分 東京都荒川区西日暮里 | 詳細を見る | |
マンション 日神デュオステージ両国(1DK/4階) | |||||||
![]() | 11.8万円 1.2万円 | 11.8万円 11.8万円 | 1DK 30.27m2 | 築18年 | JR総武線 両国駅 徒歩6分 都営浅草線 蔵前駅 徒歩10分 東京メトロ銀座線 浅草駅(東武・都営・メトロ) 徒歩12分 東京都墨田区本所 | 詳細を見る | |
マンション レオパレス熊野前(1LDK/3階) | |||||||
![]() | 11.8万円 5,500円 | なし 11.8万円 | 1LDK 41.63m2 | 築17年 | 日暮里・舎人ライナー 熊野前駅 徒歩4分 都電荒川線 熊野前駅 徒歩4分 都電荒川線 東尾久三丁目駅 徒歩7分 東京都荒川区東尾久 | 詳細を見る | |









