賃貸アパート
ザ・パークハビオ北千住の賃貸物件情報(1LDK/14階)
| 家賃 | 管理費等 | 敷金 | 礼金 | 間取り | 専有面積 |
|---|---|---|---|---|---|
| 20万円 | 2万円 | 20万円 | 20万円 | 1LDK | 33.27m2 |
入居決定でお祝い金最大100,000円
- 保証金
- -
- 償却・敷引
- -
- 築年数
- 新築(築1年)
- 所在階
- 14階
- 向き
- 東
Point
セキュリティ面は、オートロック・TVインターホンなど充実しているので安心して生活できます。
提供:ハウスコム東東京株式会社 綾瀬店

詳細情報 ザ・パークハビオ北千住
物件紹介
ザ・パークハビオ北千住は東京地下鉄千代田線北千住駅から徒歩4分にあり、駅近で通勤通学に便利なアパートです。
このお部屋は2階以上に位置しているので、通行人や周囲の住人からの視線が気になりにくく、防犯面でも安心。建物のエントランスはオートロックがついており、インターホンにはTVモニタもついているため、相手の顔を確認してから来客対応することができます。
こちらは楽器相談が可能な物件。楽器演奏をお考えの方はぜひ相談してみてください。フローリングのお部屋なのでお掃除もラクラク。室内には人気のウォークインクローゼットがありますので、たくさんの荷物も効率的に収納ができます。キッチンはシステムキッチン仕様になっていますので、お料理好きの方にもぴったり。バス・トイレは別なので、のんびりお風呂タイムも楽しめるでしょう。また、雨の日でも浴室乾燥機を使えば、お洗濯も問題ありません。
通信設備面では、インターネットが無料で使えるので、月々の出費を抑えられるのも魅力です。また、BSアンテナ・CSアンテナもありますので、おうち時間も充実するでしょう(別途工事、BS・CSの契約料等が必要な場合あり)。
建物にはエレベーターがついているので、重い荷物があっても安心。共用部には宅配ボックスが設定されているので、不在の時にも荷物を受け取ることができます。また、ペット飼育の相談ができますので、あなたの大切な家族の一員も快適に暮らせるか、ぜひ確認してみてください。
コンビニまで徒歩2分の場所にあり、日用品や食料品のお買い物にも便利です。
このお部屋は2階以上に位置しているので、通行人や周囲の住人からの視線が気になりにくく、防犯面でも安心。建物のエントランスはオートロックがついており、インターホンにはTVモニタもついているため、相手の顔を確認してから来客対応することができます。
こちらは楽器相談が可能な物件。楽器演奏をお考えの方はぜひ相談してみてください。フローリングのお部屋なのでお掃除もラクラク。室内には人気のウォークインクローゼットがありますので、たくさんの荷物も効率的に収納ができます。キッチンはシステムキッチン仕様になっていますので、お料理好きの方にもぴったり。バス・トイレは別なので、のんびりお風呂タイムも楽しめるでしょう。また、雨の日でも浴室乾燥機を使えば、お洗濯も問題ありません。
通信設備面では、インターネットが無料で使えるので、月々の出費を抑えられるのも魅力です。また、BSアンテナ・CSアンテナもありますので、おうち時間も充実するでしょう(別途工事、BS・CSの契約料等が必要な場合あり)。
建物にはエレベーターがついているので、重い荷物があっても安心。共用部には宅配ボックスが設定されているので、不在の時にも荷物を受け取ることができます。また、ペット飼育の相談ができますので、あなたの大切な家族の一員も快適に暮らせるか、ぜひ確認してみてください。
コンビニまで徒歩2分の場所にあり、日用品や食料品のお買い物にも便利です。
お金・契約の情報
※「-」と表示されているものは、実際は料金が発生するものもございます。詳細はお問い合わせください。
| 家賃 | 20万円 | 管理費・共益費 | 2万円 |
|---|---|---|---|
| 敷金 | 20万円 | 礼金 | 20万円 |
| 入居決定でお祝い金最大100,000円 | |||
| 保証金 | - | 償却・敷引 | - |
| 住宅保険料 | 1円 | 更新料 | - |
| その他費用 | 駆付けサポート24(2年):1.65万円 | ||
| 保証会社利用 | 必須 | 保証会社名 | - |
| 保証会社費用 | - | 保証会社備考 | 初年度保証料:総賃料50%、2年目以降:1年毎1万円 |
| 契約形態 | - | 契約期間 | 2年 |
| 入居・引渡期間 | 即時 | 現況 | - |
| 入居可能条件 | 2人入居可、楽器可、ペット相談 | ||
| 契約備考 | ペット飼育時敷金1か月追加 その他設備/条件:室内洗濯機置き場、ごみ出し24時間OK、独立洗面台、防犯カメラ、クローゼット、シューズボックス | ||
部屋の情報
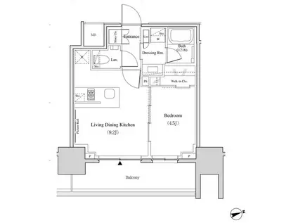
| 間取り | 1LDK | 専有面積 | 33.27m2 |
|---|---|---|---|
| 間取り詳細 | LDK(9.2帖)、洋室(4.5帖) | ||
| 所在階 / 向き | 14階 / 東 | バルコニー面積 | - |
| 水道 / ガス | ガス【都市】 | ||
| 設備 | バス・トイレ別、オートロック、テレビドアホン、宅配ボックス、浴室乾燥機、ウォークインクローゼット、追い焚き、光ファイバー対応、システムキッチン、カウンターキッチン、エアコン、エレベーター、温水洗浄便座、バルコニー、フローリング、2口コンロ、コンロ:ガス、CSアンテナ、BSアンテナ、インターネット使用料無料 | ||
| 当社物件ID | 159804432 | ||
建物の情報
| 建物名 | ザ・パークハビオ北千住 | ||
|---|---|---|---|
| 所在地 | 東京都足立区千住3丁目 | ||
| 交通 | 東京地下鉄千代田線 北千住駅 徒歩4分 京成電鉄本線 千住大橋駅 徒歩16分 | ||
| 階数 | 14階建 | 総戸数 | - |
| 築年月 | 2025年07月 / 新築(築1年) | エレベーター | あり |
| 駐車場 | 空有 3.85万円/月 | バイク置き場 | あり |
| 駐輪場 | あり | 管理人/管理会社 | - |
| 周辺環境 | コンビニ 徒歩2分(126m) 販売店 徒歩5分(327m) その他 ドラッグストア その他 公園 その他 銀行 その他 * | ||
| 建物種別 | アパート | 建物構造 | RC(鉄筋コンクリート) |
この部屋の取扱い不動産会社
| 会社名 | ハウスコム埼玉株式会社 草加店 | ||
|---|---|---|---|
| 所在地 | 埼玉県草加市2120-6中山ビル1階 | 交通 | - |
| 営業時間 | 10:00~18:00 | 定休日 | - |
| 免許番号 | 埼玉県知事(1)第24888号 | 取引態様 | 仲介 |
| 不動産会社管理番号 | HC2-4976526-1405-0147 | 当社管理番号 | 468 |
| 所属団体 | 、 | ||
| 取扱い物件情報 | 物件詳細へ | ||
※各種情報と現状に差異がある場合は、現状優先となります。問い合わせをすることで、より詳しい条件、情報を確認する事ができます。
提供:ハウスコム埼玉株式会社 草加店
この物件が気になったら掲載期限まであと12日
ザ・パークハビオ北千住に条件(家賃・エリア)が近い物件一覧
| 写真 | 家賃 管理費等 | 敷金 礼金 | 間取り 専有面積 | 築年数 | 最寄り駅 所在地 | キープ | 詳細 |
|---|---|---|---|---|---|---|---|
マンション RJRプレシア菊川駅前(1K/9階) | |||||||
![]() | 12.7万円 1万円 | 12.7万円 12.7万円 | 1K 26.34m2 | 築5年 | 東京都新宿線 菊川駅(東京) 徒歩3分 東京地下鉄半蔵門線 住吉駅(東京) 徒歩9分 東京都墨田区菊川3丁目 | 詳細を見る | |
マンション YS本所 ワイズ本所(2LDK/3階) | |||||||
![]() | 21.3万円 1万円 | 21.3万円 21.3万円 | 2LDK 48.67m2 | 築1年 | 東京都浅草線 本所吾妻橋駅 徒歩9分 東武伊勢崎・大師線 とうきょうスカイツリー駅 徒歩13分 東京地下鉄半蔵門線 押上駅 徒歩16分 東京都墨田区本所4丁目 | 詳細を見る | |
マンション ALTERNA菊川Ⅱ(1LDK/5階) | |||||||
![]() | 19.5万円 1.8万円 | なし なし | 1LDK 41.59m2 | 築4年 | 東京都新宿線 菊川駅(東京) 徒歩5分 東京都大江戸線 森下駅(東京) 徒歩13分 総武本線 錦糸町駅 徒歩15分 東京都墨田区立川4丁目 | 詳細を見る | |
マンション HF曳舟レジデンス(1LDK/4階) | |||||||
![]() | 17.4万円 1.4万円 | 17.4万円 17.4万円 | 1LDK 44.42m2 | 築8年 | 京成押上線 京成曳舟駅 徒歩8分 京成押上線 押上駅 徒歩16分 東京都墨田区京島 | 詳細を見る | |
マンション クレストコート本所吾妻橋ノース 本所吾妻橋ノース(1DK/8階) | |||||||
![]() | 15.7万円 1.2万円 | 15.7万円 なし | 1DK 25.42m2 | 築1年 | 東京都浅草線 本所吾妻橋駅 徒歩2分 東京地下鉄銀座線 浅草駅(東武・都営・メトロ) 徒歩9分 東武伊勢崎・大師線 とうきょうスカイツリー駅 徒歩10分 東京都墨田区吾妻橋2丁目 | 詳細を見る | |
マンション ZOOM錦糸町(1LDK/12階) | |||||||
![]() | 20万円 1.5万円 | 20万円 20万円 | 1LDK 37.82m2 | 築5年 | 総武・中央緩行線 錦糸町駅 徒歩4分 総武本線 錦糸町駅 徒歩4分 東京地下鉄半蔵門線 錦糸町駅 徒歩5分 東京都墨田区江東橋2丁目 | 詳細を見る | |
マンション ガリシア森下Ⅴ(1LDK/2階) | |||||||
![]() | 20.6万円 1.5万円 | なし なし | 1LDK 42.56m2 | 築5年 | 東京都大江戸線 森下駅(東京) 徒歩4分 総武・中央緩行線 両国駅 徒歩14分 東京都新宿線 菊川駅(東京) 徒歩14分 東京都墨田区千歳3丁目 | 詳細を見る | |
マンション OAKLANCE錦糸町(1DK/6階) | |||||||
![]() | 14.3万円 1万円 | なし なし | 1DK 26.17m2 | 築1年 | 総武本線 錦糸町駅 徒歩9分 東京地下鉄半蔵門線 錦糸町駅 徒歩10分 東京都墨田区亀沢4丁目 | 詳細を見る | |









