賃貸マンション
エステムプラザ難波ウエストII プレディアの賃貸物件情報(2DK/15階)
| 家賃 | 管理費等 | 敷金 | 礼金 | 間取り | 専有面積 |
|---|---|---|---|---|---|
| 14.3万円 | 9,900円 | 14.3万円 | 14.3万円 | 2DK | 42.16m2 |
入居決定でお祝い金最大100,000円
- 保証金
- -
- 償却・敷引
- -
- 築年数
- 築14年
- 所在階
- 15階
- 向き
- 南
- 交通
- 地下鉄千日前線 桜川駅(大阪) 徒歩3分
地下鉄御堂筋線 なんば駅(大阪メトロ) 徒歩10分
南海汐見橋線 芦原町駅 徒歩13分
- 所在地
- 大阪府大阪市浪速区桜川
エステムプラザ難波ウエストII プレディア
[地図を表示]
Point
大阪市内、特に浪速区、西成区、天王寺区、大正区を中心にオススメ物件を多数取り揃えております。経験豊富なベテランスタッフがお客様にピッタリな物件をご紹介させて頂きます♪
提供:名もなき不動産(株)INNOSENSE(SUUMO経由)

詳細情報 エステムプラザ難波ウエストII プレディア
物件紹介
エステムプラザ難波ウエストII プレディアは地下鉄千日前線桜川駅から徒歩3分にあり、駅近で通勤通学に便利なマンションです。
このお部屋は2階以上に位置しているので、通行人や周囲の住人からの視線が気になりにくく、防犯面でも安心。建物のエントランスはオートロックがついており、インターホンにはTVモニタもついているため、相手の顔を確認してから来客対応することができます。
おしゃれなデザイナーズ物件!人気の南向き・フローリングのお部屋。角部屋でもあるため、周囲の居住者の生活音も気になりにくい場所です。キッチンはシステムキッチン仕様になっていますので、お料理好きの方にもぴったり。バス・トイレは別なので、のんびりお風呂タイムも楽しめるでしょう。また、雨の日でも浴室乾燥機を使えば、お洗濯も問題ありません。
通信設備面では、インターネットが無料で使えるので、月々の出費を抑えられるのも魅力です。また、BSアンテナ・CSアンテナがありCATVにも対応しているので、おうち時間も充実するでしょう(別途工事、BS・CS・CATVの契約料等が必要な場合あり)。
建物にはエレベーターがついているので、重い荷物があっても安心。共用部には宅配ボックスが設定されているので、不在の時にも荷物を受け取ることができます。また、ペット飼育の相談ができますので、あなたの大切な家族の一員も快適に暮らせるか、ぜひ確認してみてください。
このお部屋は2階以上に位置しているので、通行人や周囲の住人からの視線が気になりにくく、防犯面でも安心。建物のエントランスはオートロックがついており、インターホンにはTVモニタもついているため、相手の顔を確認してから来客対応することができます。
おしゃれなデザイナーズ物件!人気の南向き・フローリングのお部屋。角部屋でもあるため、周囲の居住者の生活音も気になりにくい場所です。キッチンはシステムキッチン仕様になっていますので、お料理好きの方にもぴったり。バス・トイレは別なので、のんびりお風呂タイムも楽しめるでしょう。また、雨の日でも浴室乾燥機を使えば、お洗濯も問題ありません。
通信設備面では、インターネットが無料で使えるので、月々の出費を抑えられるのも魅力です。また、BSアンテナ・CSアンテナがありCATVにも対応しているので、おうち時間も充実するでしょう(別途工事、BS・CS・CATVの契約料等が必要な場合あり)。
建物にはエレベーターがついているので、重い荷物があっても安心。共用部には宅配ボックスが設定されているので、不在の時にも荷物を受け取ることができます。また、ペット飼育の相談ができますので、あなたの大切な家族の一員も快適に暮らせるか、ぜひ確認してみてください。
お金・契約の情報
※「-」と表示されているものは、実際は料金が発生するものもございます。詳細はお問い合わせください。
| 家賃 | 14.3万円 | 管理費・共益費 | 9,900円 |
|---|---|---|---|
| 敷金 | 14.3万円 | 礼金 | 14.3万円 |
| 入居決定でお祝い金最大100,000円 | |||
| 保証金 | - | 償却・敷引 | - |
| 住宅保険料 | - | 更新料 | - |
| 保証会社利用 | 必須 | 保証会社名 | - |
| 保証会社費用 | - | 保証会社備考 | 保証会社利用必 初回保証料:総賃料の50% 月次:総賃料の1.5% |
| 契約形態 | - | 契約期間 | - |
| 入居・引渡期間 | - | 現況 | - |
| 入居可能条件 | ペット相談 | ||
| 契約備考 | 巡回管理/お引越し等でお悩みの際も是非ご相談ください。当店では他にも大阪市内の物件はすべて取扱いしております。ご希望の物件がございましたらお知らせください。迅速に空室をお調べ致します。是非お部屋探しはミニミニFC大国町店で。TEL 合計4.55万円(内訳:エステム安心クラブ0.55万円契約事務手数料1万円鍵交換代3万円) 更新料 49500円 エステム安心クラブ 月額990円 2DK 単身者可/二人入居可/ペット相談 普通借家1年 損保【2.4万円2年】 バストイレ別、バルコニー、エアコン、ガスコンロ対応、クロゼット、フローリング、TVインターホン、浴室乾燥機、オートロック、室内洗濯置、シューズボックス、システムキッチン、南向き、角住戸、温水洗浄便座、脱衣所、エレベーター、洗面所独立、洗面化粧台、2口コンロ、駐輪場、宅配ボックス、CATV、光ファイバー、閑静な住宅地、最上階、BS・CS、対面式キッチン、防犯カメラ、ペット相談、分譲賃貸、単身者相談、敷金1ヶ月、CATVインターネット、二人入居相談、バイク置場、全居室フローリング、2沿線利用可、エアコン2台、駅まで平坦、ネット使用料不要、24時間換気システム、クロゼット2ヶ所、平坦地、人感照明センサー、2駅利用可、3駅以上利用可、3沿線以上利用可、駅徒歩5分以内、駅徒歩10分以内、高層階、24時間ゴミ出し可、敷地内ごみ置き場、都市ガス、洗面所にドア、年内入居可、礼金1ヶ月、IT重説対応物件、初期費用カード決済可、通風良好 入居日:'26年4月下旬 | ||
部屋の情報
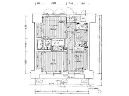
| 間取り | 2DK | 専有面積 | 42.16m2 |
|---|---|---|---|
| 所在階 / 向き | 15階 / 南 | バルコニー面積 | - |
| 水道 / ガス | - | ||
| 設備 | バス・トイレ別、2階以上、オートロック、テレビドアホン、宅配ボックス、浴室乾燥機、インターネット対応、システムキッチン、エアコン、エレベーター、温水洗浄便座、南向き、角部屋、バルコニー、フローリング、洗髪洗面化粧台、2口コンロ、コンロ:ガス、CATV、CSアンテナ、BSアンテナ、インターネット使用料無料、洗濯機:室内 | ||
| 当社物件ID | 7784399 | ||
建物の情報
| 建物名 | エステムプラザ難波ウエストII プレディア | ||
|---|---|---|---|
| 所在地 | 大阪府大阪市浪速区桜川 | ||
| 交通 | 地下鉄千日前線 桜川駅(大阪) 徒歩3分 地下鉄御堂筋線 なんば駅(大阪メトロ) 徒歩10分 南海汐見橋線 芦原町駅 徒歩13分 | ||
| 階数 | 地下1地上15階建 | 総戸数 | 240戸 |
| 築年月 | 2013年02月 / 築14年 | エレベーター | あり |
| 駐車場 | 近隣 250m25000円 | バイク置き場 | あり |
| 駐輪場 | あり | 管理人/管理会社 | - |
| 周辺環境 | その他 スーパーオオカワ桜川店(スーパー)まで148m その他 食品館アプロ 桜川店(スーパー)まで494m その他 ライフ 塩草店(スーパー)まで398m その他 NAMBA SkyO(ナンバスカイオ)(ショッピングセンター)まで1047m その他 ファミリーマート 難波四丁目店(コンビニ)まで153m その他 セブンイレブン 大阪桜川2丁目店(コンビニ)まで224m | ||
| 建物種別 | マンション | 建物構造 | RC(鉄筋コンクリート) |
この部屋の取扱い不動産会社
| 会社名 | ミニミニFC大国町店(株)マスト(SUUMO経由) | ||
|---|---|---|---|
| 所在地 | 大阪府大阪市浪速区敷津東3-10-18 | 交通 | - |
| 営業時間 | AM10:00~PM7:00 | 定休日 | - |
| 免許番号 | 大阪府知事57949 | 取引態様 | 仲介 |
| 不動産会社管理番号 | 100492872441 | 当社管理番号 | 89 |
| 所属団体 | (公社)全日本不動産協会大阪府本部会員 | ||
| 公正取引協議会 | (公社)近畿地区不動産公正取引協議会加盟 | ||
| 取扱い物件情報 | 物件詳細へ | ||
※各種情報と現状に差異がある場合は、現状優先となります。問い合わせをすることで、より詳しい条件、情報を確認する事ができます。
提供:ミニミニFC大国町店(株)マスト(SUUMO経由)
この物件が気になったら掲載期限まであと11日
エステムプラザ難波ウエストII プレディアに条件(家賃・エリア)が近い物件一覧
| 写真 | 家賃 管理費等 | 敷金 礼金 | 間取り 専有面積 | 築年数 | 最寄り駅 所在地 | キープ | 詳細 |
|---|---|---|---|---|---|---|---|
マンション シャーメゾン アプリクス(2LDK/1階) | |||||||
| 15.8万円 1.2万円 | なし なし | 2LDK 64.4m2 | 築1年 | 大阪モノレール彩都 万博記念公園駅(大阪) 徒歩16分 大阪モノレール本線 山田駅(大阪) 徒歩16分 大阪モノレール彩都 公園東口駅 徒歩29分 大阪府吹田市山田東4丁目210-17-1部 | 詳細を見る | ||
アパート LIBERTY ISLAND(2LDK/2階) | |||||||
![]() | 13.4万円 7,000円 | なし 25万円 | 2LDK 60.59m2 | 築1年 | 大阪市御堂筋線 北花田駅 徒歩13分 大阪市御堂筋線 あびこ駅 徒歩20分 阪和線 浅香駅 徒歩22分 大阪府堺市北区常磐町3丁 | 詳細を見る | |
アパート ボナールシャルトⅢ(2LDK/2階) | |||||||
![]() | 12.6万円 6,000円 | なし 25万円 | 2LDK 63m2 | 新築 | 阪和線 堺市駅 徒歩11分 阪和線 浅香駅 徒歩11分 大阪市御堂筋線 北花田駅 徒歩14分 大阪府堺市北区大豆塚町2丁 | 詳細を見る | |
マンション アルテーヌ浜寺元町(2LDK/1階) | |||||||
![]() | 13.2万円 1.2万円 | 2万円 27万円 | 2LDK 64m2 | 築1年 | 南海電鉄南海本線 浜寺公園駅 徒歩12分 南海電鉄南海本線 諏訪ノ森駅 徒歩15分 南海電鉄南海本線 羽衣駅 徒歩19分 大阪府堺市西区浜寺元町3丁 | 詳細を見る | |
マンション WORVE吹田江坂(2K/4階) | |||||||
| 11.3万円 1.2万円 | なし なし | 2K 31.28m2 | 築1年 | 北大阪急行南北線 江坂駅 徒歩9分 阪急電鉄千里線 豊津駅(大阪) 徒歩19分 おおさか東線 南吹田駅 徒歩20分 大阪府吹田市広芝町17-18 | 詳細を見る | ||
マンション エヴァン千里山(2LDK/2階) | |||||||
| 12.75万円 7,500円 | なし 30万円 | 2LDK 61.28m2 | 築20年 | 阪急電鉄千里線 千里山駅 徒歩8分 阪急電鉄千里線 関大前駅 徒歩18分 阪急電鉄千里線 南千里駅 徒歩26分 大阪府吹田市千里山松が丘6-30 | 詳細を見る | ||
マンション エクリアス浜寺(2LDK/2階) | |||||||
![]() | 11.7万円 1.1万円 | 2万円 11.7万円 | 2LDK 61m2 | 築1年 | 南海電鉄南海本線 浜寺公園駅 徒歩9分 南海電鉄南海本線 諏訪ノ森駅 徒歩15分 阪和線 東羽衣駅 徒歩18分 大阪府堺市西区浜寺昭和町2丁 | 詳細を見る | |




