賃貸マンション
プライムメゾン下北沢の賃貸物件情報(ワンルーム/2階)
| 家賃 | 管理費等 | 敷金 | 礼金 | 間取り | 専有面積 |
|---|---|---|---|---|---|
| 13.8万円 | 1.332万円 | 13.8万円 | 13.8万円 | ワンルーム | 27.5m2 |
入居決定でお祝い金最大100,000円
- 保証金
- -
- 償却・敷引
- -
- 築年数
- 築7年
- 所在階
- 2階
- 向き
- 西
Point
エレベーター・防犯カメラ・宅配ボックス完備!インターネットが無料でご利用可能です!
提供:シャーメゾンショップ (株)イチイ吉祥寺店(SUUMO経由)

詳細情報 プライムメゾン下北沢
物件紹介
プライムメゾン下北沢は小田急線下北沢駅から徒歩9分にあり、駅近で通勤通学に便利なマンションです。
このお部屋は2階以上に位置しているので、通行人や周囲の住人からの視線が気になりにくく、防犯面でも安心。建物のエントランスはオートロックがついており、インターホンにはTVモニタもついているため、相手の顔を確認してから来客対応することができます。
フローリングのお部屋なのでお掃除もラクラク。キッチンはシステムキッチン仕様になっていますので、お料理好きの方にもぴったり。バス・トイレは別なので、のんびりお風呂タイムも楽しめるでしょう。また、雨の日でも浴室乾燥機を使えば、お洗濯も問題ありません。
通信設備面では、インターネットが無料で使えるので、月々の出費を抑えられるのも魅力です(別途工事等が必要な場合あり)。
建物にはエレベーターがついているので、重い荷物があっても安心。共用部には宅配ボックスが設定されているので、不在の時にも荷物を受け取ることができます。
このお部屋は2階以上に位置しているので、通行人や周囲の住人からの視線が気になりにくく、防犯面でも安心。建物のエントランスはオートロックがついており、インターホンにはTVモニタもついているため、相手の顔を確認してから来客対応することができます。
フローリングのお部屋なのでお掃除もラクラク。キッチンはシステムキッチン仕様になっていますので、お料理好きの方にもぴったり。バス・トイレは別なので、のんびりお風呂タイムも楽しめるでしょう。また、雨の日でも浴室乾燥機を使えば、お洗濯も問題ありません。
通信設備面では、インターネットが無料で使えるので、月々の出費を抑えられるのも魅力です(別途工事等が必要な場合あり)。
建物にはエレベーターがついているので、重い荷物があっても安心。共用部には宅配ボックスが設定されているので、不在の時にも荷物を受け取ることができます。
お金・契約の情報
※「-」と表示されているものは、実際は料金が発生するものもございます。詳細はお問い合わせください。
| 家賃 | 13.8万円 | 管理費・共益費 | 1.332万円 |
|---|---|---|---|
| 敷金 | 13.8万円 | 礼金 | 13.8万円 |
| 入居決定でお祝い金最大100,000円 | |||
| 保証金 | - | 償却・敷引 | - |
| 住宅保険料 | - | 更新料 | - |
| 保証会社利用 | 必須 | 保証会社名 | - |
| 保証会社費用 | - | 保証会社備考 | 保証会社利用必 保証会社加入必須:初回事務手数料:33,000円(初回家賃引落時)保証料:家賃総額の2%/月 |
| 契約形態 | - | 契約期間 | - |
| 入居・引渡期間 | - | 現況 | - |
| 契約備考 | ◆間取り・設備など募集広告と現状が異なる場合は現状を優先いたします◆シャーメゾンライフポイント対象物件◆シャーメゾンライフSUPPORT24(月額1,320円)加入必須◆保証会社必須◆仲介手数料は原則貸主0.55ケ月借主0.55ケ月ですが、この物件に関しましては借主1.1ケ月となります◆解約予告2か月◆契約開始1年未満の解約は違約金がかかります◆バイク置場・トランクルームをご利用時要別途契約 合計3.19万円(内訳:鍵交換代:31,900円(税込)) 退去ハウスクリーニング(契約時):55,000円(税込) ワンルーム 単身者限定/子供不可/事務所利用不可/ルームシェア不可 普通借家2年 損保【1.78万円2年】 バストイレ別、バルコニー、エアコン、ガスコンロ対応、クロゼット、フローリング、TVインターホン、浴室乾燥機、オートロック、室内洗濯置、シューズボックス、システムキッチン、追焚機能浴室、温水洗浄便座、エレベーター、洗面化粧台、2口コンロ、駐輪場、宅配ボックス、全居室洋室、単身者相談、バイク置場、ネット使用料不要、敷地内ごみ置き場、日勤管理、当社管理物件、都市ガス、保証会社利用可、IT重説対応物件、初期費用カード決済可、通風良好 入居日:'26年4月中旬 | ||
部屋の情報
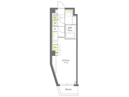
| 間取り | ワンルーム | 専有面積 | 27.5m2 |
|---|---|---|---|
| 所在階 / 向き | 2階 / 西 | バルコニー面積 | - |
| 水道 / ガス | - | ||
| 設備 | バス・トイレ別、2階以上、オートロック、テレビドアホン、宅配ボックス、浴室乾燥機、追い焚き、インターネット対応、システムキッチン、エアコン、エレベーター、温水洗浄便座、バルコニー、フローリング、2口コンロ、コンロ:ガス、インターネット使用料無料、洗濯機:室内 | ||
| 当社物件ID | 36546105 | ||
建物の情報
| 建物名 | プライムメゾン下北沢 | ||
|---|---|---|---|
| 所在地 | 東京都世田谷区代沢 | ||
| 交通 | 小田急線 下北沢駅 徒歩9分 京王井の頭線 下北沢駅 徒歩9分 小田急線 世田谷代田駅 徒歩10分 | ||
| 階数 | 3階建 | 総戸数 | 62戸 |
| 築年月 | 2019年12月 / 築7年 | エレベーター | あり |
| 駐車場 | なし | バイク置き場 | あり |
| 駐輪場 | あり | 管理人/管理会社 | - |
| 周辺環境 | その他 まいばすけっと代沢4丁目店(スーパー)まで260m その他 ローソン代沢五丁目店(コンビニ)まで176m その他 セブンイレブン世田谷下北沢店(コンビニ)まで325m その他 トモズ代沢店(ドラッグストア)まで370m その他 ノジマレシピ下北沢店(ホームセンター)まで669m その他 スターバックスコーヒー代沢5丁目店(飲食店)まで357m | ||
| 建物種別 | マンション | 建物構造 | RC(鉄筋コンクリート) |
この部屋の取扱い不動産会社
| 会社名 | シャーメゾンショップ (株)イチイ吉祥寺店(SUUMO経由) | ||
|---|---|---|---|
| 所在地 | 東京都武蔵野市吉祥寺南町2-7-2 メイプル1階 | 交通 | - |
| 営業時間 | 10時~18時30分 | 定休日 | 水曜日 第一・第二・第三火曜日 |
| 免許番号 | 東京都知事39368 | 取引態様 | 仲介 |
| 不動産会社管理番号 | 100485542254 | 当社管理番号 | 89 |
| 所属団体 | (公社)全日本不動産協会東京都本部会員 | ||
| 公正取引協議会 | (公社)首都圏不動産公正取引協議会加盟 | ||
| 取扱い物件情報 | 物件詳細へ | ||
※各種情報と現状に差異がある場合は、現状優先となります。問い合わせをすることで、より詳しい条件、情報を確認する事ができます。
提供:シャーメゾンショップ (株)イチイ吉祥寺店(SUUMO経由)
この物件が気になったら掲載期限まであと11日
プライムメゾン下北沢に条件(家賃・エリア)が近い物件一覧
| 写真 | 家賃 管理費等 | 敷金 礼金 | 間取り 専有面積 | 築年数 | 最寄り駅 所在地 | キープ | 詳細 |
|---|---|---|---|---|---|---|---|
タウンハウス 大田菜園長屋(2LDK) | |||||||
![]() | 15.9万円 5,000円 | 15.9万円 7.95万円 | 2LDK 52.17m2 | 築10年 | 京浜急行電鉄本線 雑色駅 徒歩8分 京浜急行電鉄本線 六郷土手駅 徒歩13分 東京都大田区東六郷3丁目 | 詳細を見る | |
マンション SEED JUST B-BASE Ⅱ(1LDK/3階) | |||||||
![]() | 8.8万円 1.5万円 | 8.8万円 8.8万円 | 1LDK 23.07m2 | 新築 | 東京モノレール羽田 昭和島駅 徒歩11分 京浜急行電鉄本線 梅屋敷駅(東京) 徒歩19分 東京都大田区大森南4丁目 | 詳細を見る | |
マンション シェル上池台(1K/3階) | |||||||
![]() | 10.7万円 8,000円 | 10.7万円 なし | 1K 25.74m2 | 築10年 | 都営浅草線 西馬込駅 徒歩11分 都営浅草線 馬込駅 徒歩17分 東急池上線 長原駅(東京) 徒歩18分 東京都大田区上池台 | 詳細を見る | |
アパート M SONIA KUGAHARA(ワンルーム/1階) | |||||||
![]() | 9.1万円 3,000円 | 9.1万円 13.65万円 | ワンルーム 24.64m2 | 築1年 | 東急池上線 久が原駅 徒歩8分 東急池上線 御嶽山駅 徒歩9分 東京都大田区西嶺町 | 詳細を見る | |
マンション オーベルグランディオ萩中(2DK/12階) | |||||||
![]() | 18万円 1万円 | 18万円 18万円 | 2DK 50m2 | 築20年 | 京急空港線 糀谷駅 徒歩6分 京急空港線 大鳥居駅 徒歩15分 京急空港線 京急蒲田駅 徒歩15分 東京都大田区萩中 | 詳細を見る | |
マンション KDXレジデンス西馬込(1K/2階) | |||||||
![]() | 11.5万円 1万円 | 11.5万円 11.5万円 | 1K 25.22m2 | 築10年 | 都営浅草線 西馬込駅 徒歩4分 都営浅草線 馬込駅 徒歩19分 東急池上線 池上駅 徒歩23分 東京都大田区南馬込 | 詳細を見る | |
マンション GRANDUO田園調布Ⅳ(1LDK/2階) | |||||||
![]() | 18.5万円 1.5万円 | なし なし | 1LDK 34.61m2 | 築6年 | 東急東横線 田園調布駅 徒歩4分 東急東横線 多摩川駅 徒歩11分 東京都大田区田園調布2丁目 | 詳細を見る | |
マンション ライブコート大鳥居(ワンルーム/5階) | |||||||
![]() | 13.5万円 1万円 | 13.5万円 13.5万円 | ワンルーム 37.1m2 | 築18年 | 京急空港線 大鳥居駅 徒歩3分 京急空港線 穴守稲荷駅 徒歩11分 京急空港線 糀谷駅 徒歩13分 東京都大田区萩中 | 詳細を見る | |









