賃貸マンション
ラグゼナ八王子寺町の賃貸物件情報(2SLDK/10階)
| 家賃 | 管理費等 | 敷金 | 礼金 | 間取り | 専有面積 |
|---|---|---|---|---|---|
| 22.7万円 | 1.5万円 | なし | なし | 2SLDK | 67.45m2 |
入居決定でお祝い金最大100,000円
- 保証金
- -
- 償却・敷引
- -
- 築年数
- 築1年
- 所在階
- 10階
- 向き
- -
Point
お電話でのお問い合わせは8時30分から20時まで可能です!お気軽にフリーダイヤルまでご連絡ください♪◇webでのお申し込みも対応可能です◇
提供:(株)ネクストライフ八王子店(SUUMO経由)

詳細情報 ラグゼナ八王子寺町
物件紹介
ラグゼナ八王子寺町はJR中央線八王子駅から徒歩7分にあり、駅近で通勤通学に便利なマンションです。
このお部屋は2階以上に位置しているので、通行人や周囲の住人からの視線が気になりにくく、防犯面でも安心。建物のエントランスはオートロックがついており、インターホンにはTVモニタもついているため、相手の顔を確認してから来客対応することができます。
フローリングのお部屋なのでお掃除もラクラク。室内には人気のウォークインクローゼットがありますので、たくさんの荷物も効率的に収納ができます。キッチンはシステムキッチン仕様になっていますので、お料理好きの方にもぴったり。バス・トイレは別なので、のんびりお風呂タイムも楽しめるでしょう。また、雨の日でも浴室乾燥機を使えば、お洗濯も問題ありません。
通信設備面では、インターネットが無料で使えるので、月々の出費を抑えられるのも魅力です(別途工事等が必要な場合あり)。
床暖房があり、冬も足元から暖かく快適に過ごすことができます。建物にはエレベーターがついているので、重い荷物があっても安心。共用部には宅配ボックスが設定されているので、不在の時にも荷物を受け取ることができます。
このお部屋は2階以上に位置しているので、通行人や周囲の住人からの視線が気になりにくく、防犯面でも安心。建物のエントランスはオートロックがついており、インターホンにはTVモニタもついているため、相手の顔を確認してから来客対応することができます。
フローリングのお部屋なのでお掃除もラクラク。室内には人気のウォークインクローゼットがありますので、たくさんの荷物も効率的に収納ができます。キッチンはシステムキッチン仕様になっていますので、お料理好きの方にもぴったり。バス・トイレは別なので、のんびりお風呂タイムも楽しめるでしょう。また、雨の日でも浴室乾燥機を使えば、お洗濯も問題ありません。
通信設備面では、インターネットが無料で使えるので、月々の出費を抑えられるのも魅力です(別途工事等が必要な場合あり)。
床暖房があり、冬も足元から暖かく快適に過ごすことができます。建物にはエレベーターがついているので、重い荷物があっても安心。共用部には宅配ボックスが設定されているので、不在の時にも荷物を受け取ることができます。
お金・契約の情報
※「-」と表示されているものは、実際は料金が発生するものもございます。詳細はお問い合わせください。
| 家賃 | 22.7万円 | 管理費・共益費 | 1.5万円 |
|---|---|---|---|
| 敷金 | なし | 礼金 | なし |
| 入居決定でお祝い金最大100,000円 | |||
| 保証金 | - | 償却・敷引 | - |
| 住宅保険料 | - | 更新料 | - |
| 保証会社利用 | 必須 | 保証会社名 | - |
| 保証会社費用 | - | 保証会社備考 | 保証会社利用必 初回保証料(月額総賃料の50%)、月額保証料(月額総賃料の1%) |
| 契約形態 | - | 契約期間 | - |
| 入居・引渡期間 | - | 現況 | - |
| 契約備考 | 鍵設定代:33000円駐輪場(1世帯1台まで):220円/月トランクルーム(各階2戸):2200円/月クリーニング代:104500円エアコンクリーニング代:19800円/台町会費:200円/月ペット(小型犬または猫3匹迄)飼育時:2匹まで敷金1ヶ月追加、3匹敷金2ヶ月追加 更新料 新賃料1.00ヶ月分 2SLDK 普通借家2年 損保【2.3万円2年】 バストイレ別、バルコニー、エアコン、ガスコンロ対応、クロゼット、フローリング、シャワー付洗面台、TVインターホン、浴室乾燥機、オートロック、室内洗濯置、シューズボックス、システムキッチン、追焚機能浴室、温水洗浄便座、脱衣所、エレベーター、洗面所独立、洗面化粧台、駐輪場、宅配ボックス、礼金不要、敷金不要、3口以上コンロ、防犯カメラ、全居室洋室、保証人不要、玄関ホール、2沿線利用可、ディンプルキー、ネット使用料不要、床暖房、食器洗乾燥機、築2年以内、2駅利用可、3駅以上利用可、3沿線以上利用可、駅徒歩10分以内、敷地内ごみ置き場、都市ガス、ウォークスルークロゼット、敷金・礼金不要、初期費用カード決済可 敷金積み増し【ペット飼育の場合敷金1ヶ月(総額)】 入居日:'26年2月下旬 | ||
部屋の情報
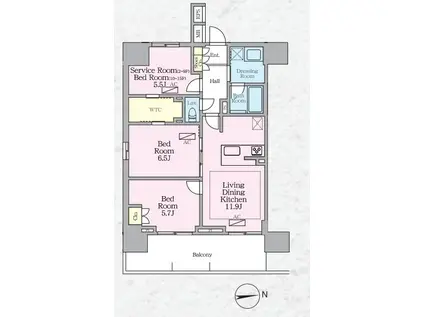
| 間取り | 2SLDK | 専有面積 | 67.45m2 |
|---|---|---|---|
| 所在階 / 向き | 10階 / - | バルコニー面積 | - |
| 水道 / ガス | - | ||
| 設備 | バス・トイレ別、2階以上、オートロック、テレビドアホン、宅配ボックス、浴室乾燥機、ウォークインクローゼット、追い焚き、インターネット対応、システムキッチン、エアコン、エレベーター、温水洗浄便座、バルコニー、フローリング、洗髪洗面化粧台、床暖房、2口コンロ、コンロ:ガス、インターネット使用料無料、洗濯機:室内 | ||
| 当社物件ID | 158319130 | ||
建物の情報
| 建物名 | ラグゼナ八王子寺町 | ||
|---|---|---|---|
| 所在地 | 東京都八王子市寺町 | ||
| 交通 | JR中央線 八王子駅 徒歩7分 京王線 京王八王子駅 徒歩13分 京王高尾線 京王片倉駅 徒歩21分 | ||
| 階数 | 15階建 | 総戸数 | - |
| 築年月 | 2025年06月 / 築1年 | エレベーター | あり |
| 駐車場 | 空有 16500円 | バイク置き場 | - |
| 駐輪場 | あり | 管理人/管理会社 | - |
| 周辺環境 | その他 ドンキホーテ八王子駅前店(その他)まで345m その他 ファミリーマート八王子パーク壱番街通り店(コンビニ)まで455m その他 マツモトキヨシ八王子ユーロード店(ドラッグストア)まで383m その他 八王子オーパ(スーパー)まで670m その他 イオンフードスタイル 八王子店(スーパー)まで635m | ||
| 建物種別 | マンション | 建物構造 | RC(鉄筋コンクリート) |
この部屋の取扱い不動産会社
| 会社名 | (株)ネクストライフ新横浜店(SUUMO経由) | ||
|---|---|---|---|
| 所在地 | 神奈川県横浜市港北区新横浜2-5-19 AXIS SHINYOKOHAMA6階 | 交通 | - |
| 営業時間 | 10:00~18:30(電話8:30~20:00) | 定休日 | 年末年始 |
| 免許番号 | 国土交通大臣8175 | 取引態様 | 仲介 |
| 不動産会社管理番号 | 100481937733 | 当社管理番号 | 89 |
| 所属団体 | (公社)神奈川県宅地建物取引業協会会員 | ||
| 公正取引協議会 | (公社)首都圏不動産公正取引協議会加盟 | ||
| 取扱い物件情報 | 物件詳細へ | ||
※各種情報と現状に差異がある場合は、現状優先となります。問い合わせをすることで、より詳しい条件、情報を確認する事ができます。
提供:(株)ネクストライフ新横浜店(SUUMO経由)
この物件が気になったら掲載期限まであと11日
ラグゼナ八王子寺町に条件(家賃・エリア)が近い物件一覧
| 写真 | 家賃 管理費等 | 敷金 礼金 | 間取り 専有面積 | 築年数 | 最寄り駅 所在地 | キープ | 詳細 |
|---|---|---|---|---|---|---|---|
マンション クレヴィア豊田多摩平の森RESIDENCE(3LDK/9階) | |||||||
![]() | 21.5万円 1万円 | 21.5万円 21.5万円 | 3LDK 76.44m2 | 築12年 | JR中央線 豊田駅 徒歩6分 京王線 南平駅 徒歩30分 JR八高線 北八王子駅 徒歩31分 東京都日野市多摩平 | 詳細を見る | |
マンション 町田ハイツ壱番館(2DK/4階) | |||||||
![]() | 14.5万円 なし | 14.5万円 14.5万円 | 2DK 48m2 | 築43年 | 横浜線 町田駅 徒歩10分 小田急電鉄小田原線 町田駅 徒歩13分 東京都町田市原町田1丁目 | 詳細を見る | |
アパート プラサートハウス1(2LDK/1階) | |||||||
![]() | 15万円 7,000円 | 15万円 15万円 | 2LDK 74.73m2 | 築10年 | 京王線 平山城址公園駅 徒歩9分 JR中央線 豊田駅 徒歩12分 京王線 南平駅 徒歩18分 東京都日野市東平山 | 詳細を見る | |
マンション センチュリー八王子ルミエール(2LDK/7階) | |||||||
![]() | 22.4万円 1.5万円 | 22.4万円 なし | 2LDK 56.94m2 | 新築 | 京王電鉄京王線 京王八王子駅 徒歩4分 東京都八王子市明神町3丁目 | 詳細を見る | |
マンション LIME RESIDENCE MACHIDA(1DK/5階) | |||||||
![]() | 15.3万円 8,000円 | 15.3万円 なし | 1DK 37.13m2 | 築4年 | JR横浜線 町田駅 徒歩5分 小田急線 相模大野駅 徒歩31分 JR横浜線 成瀬駅 徒歩32分 東京都町田市原町田 | 詳細を見る | |
マンション LUXENA八王子寺町(1SLDK/3階) | |||||||
![]() | 21.9万円 1.5万円 | なし なし | 1SLDK 55.44m2 | 築1年 | JR八高線 八王子駅 徒歩10分 京王線 京王八王子駅 徒歩16分 京王高尾線 京王片倉駅 徒歩23分 東京都八王子市寺町 | 詳細を見る | |
マンション ヘーベルヴィレッジ橋本グランビレッジ橋本(2LDK/2階) | |||||||
![]() | 16.3万円 9,000円 | 32.6万円 16.3万円 | 2LDK 62.17m2 | 築1年 | JR横浜線 橋本駅(神奈川) 徒歩10分 京王相模原線 橋本駅(神奈川) 徒歩10分 JR相模線 橋本駅(神奈川) 徒歩10分 神奈川県相模原市緑区橋本 | 詳細を見る | |
マンション センチュリー八王子ルミエール(2LDK/6階) | |||||||
![]() | 22.2万円 1.5万円 | 22.2万円 なし | 2LDK 56.94m2 | 新築 | 京王線 京王八王子駅 徒歩5分 JR八高線 八王子駅 徒歩7分 京王高尾線 京王片倉駅 徒歩24分 東京都八王子市明神町 | 詳細を見る | |




/105x80-f1-q70-wp1)



