賃貸マンション
ラグゼナ八王子寺町の賃貸物件情報(1SLDK/4階)
| 家賃 | 管理費等 | 敷金 | 礼金 | 間取り | 専有面積 |
|---|---|---|---|---|---|
| 16.3万円 | 1.5万円 | なし | なし | 1SLDK | 52.54m2 |
入居決定でお祝い金最大100,000円
- 保証金
- -
- 償却・敷引
- -
- 築年数
- 築1年
- 所在階
- 4階
- 向き
- 西
Point
お電話でのお問い合わせは8時30分から20時まで可能です!お気軽にフリーダイヤルまでご連絡ください♪◇webでのお申し込みも対応可能です◇
提供:(株)ネクストライフ町田本店(SUUMO経由)

詳細情報 ラグゼナ八王子寺町
物件紹介
ラグゼナ八王子寺町はJR中央線八王子駅から徒歩7分にあり、駅近で通勤通学に便利なマンションです。
このお部屋は2階以上に位置しているので、通行人や周囲の住人からの視線が気になりにくく、防犯面でも安心。建物のエントランスはオートロックがついており、インターホンにはTVモニタもついているため、相手の顔を確認してから来客対応することができます。
フローリングのお部屋なのでお掃除もラクラク。キッチンはシステムキッチン仕様になっていますので、お料理好きの方にもぴったり。バス・トイレは別なので、のんびりお風呂タイムも楽しめるでしょう。また、雨の日でも浴室乾燥機を使えば、お洗濯も問題ありません。
通信設備面では、インターネットが無料で使えるので、月々の出費を抑えられるのも魅力です。また、BSアンテナ・CSアンテナもありますので、おうち時間も充実するでしょう(別途工事、BS・CSの契約料等が必要な場合あり)。
床暖房があり、冬も足元から暖かく快適に過ごすことができます。建物にはエレベーターがついているので、重い荷物があっても安心。共用部には宅配ボックスが設定されているので、不在の時にも荷物を受け取ることができます。
このお部屋は2階以上に位置しているので、通行人や周囲の住人からの視線が気になりにくく、防犯面でも安心。建物のエントランスはオートロックがついており、インターホンにはTVモニタもついているため、相手の顔を確認してから来客対応することができます。
フローリングのお部屋なのでお掃除もラクラク。キッチンはシステムキッチン仕様になっていますので、お料理好きの方にもぴったり。バス・トイレは別なので、のんびりお風呂タイムも楽しめるでしょう。また、雨の日でも浴室乾燥機を使えば、お洗濯も問題ありません。
通信設備面では、インターネットが無料で使えるので、月々の出費を抑えられるのも魅力です。また、BSアンテナ・CSアンテナもありますので、おうち時間も充実するでしょう(別途工事、BS・CSの契約料等が必要な場合あり)。
床暖房があり、冬も足元から暖かく快適に過ごすことができます。建物にはエレベーターがついているので、重い荷物があっても安心。共用部には宅配ボックスが設定されているので、不在の時にも荷物を受け取ることができます。
お金・契約の情報
※「-」と表示されているものは、実際は料金が発生するものもございます。詳細はお問い合わせください。
| 家賃 | 16.3万円 | 管理費・共益費 | 1.5万円 |
|---|---|---|---|
| 敷金 | なし | 礼金 | なし |
| 入居決定でお祝い金最大100,000円 | |||
| 保証金 | - | 償却・敷引 | - |
| 住宅保険料 | - | 更新料 | - |
| 保証会社利用 | 必須 | 保証会社名 | - |
| 保証会社費用 | - | 保証会社備考 | 保証会社利用必 初回保証料(月額総賃料の50%)、月額保証料(月額総賃料の1%) |
| 契約形態 | - | 契約期間 | - |
| 入居・引渡期間 | - | 現況 | - |
| 契約備考 | 町会費:200円/月鍵交換代:33000円駐輪場(1世帯1台まで):220円/月トランクルーム(各階2戸):2200円/月退去時クリーニング費用:81400円退去時エアコンクリーニング費用:19800円/台ペット飼育時:2匹まで/敷金1ヶ月追加、3匹/敷金2ヶ月追加(小型犬または猫3匹まで) 更新料 新賃料1.00ヶ月分 1SLDK 普通借家2年 損保【2.15万円2年】 バストイレ別、バルコニー、エアコン、ガスコンロ対応、クロゼット、フローリング、TVインターホン、浴室乾燥機、オートロック、室内洗濯置、シューズボックス、システムキッチン、追焚機能浴室、温水洗浄便座、脱衣所、エレベーター、洗面所独立、洗面化粧台、駐輪場、宅配ボックス、礼金不要、敷金不要、3口以上コンロ、対面式キッチン、防犯カメラ、グリル付、全居室洋室、2沿線利用可、CS、ネット使用料不要、床暖房、食器洗乾燥機、トランクルーム、ダブルロックキー、築2年以内、2駅利用可、3駅以上利用可、3沿線以上利用可、駅徒歩10分以内、敷地内ごみ置き場、LDK12畳以上、都市ガス、BS、敷金・礼金不要、初期費用カード決済可 入居日:'26年3月下旬 | ||
部屋の情報
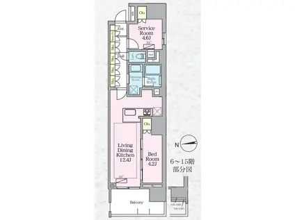
| 間取り | 1SLDK | 専有面積 | 52.54m2 |
|---|---|---|---|
| 所在階 / 向き | 4階 / 西 | バルコニー面積 | - |
| 水道 / ガス | - | ||
| 設備 | バス・トイレ別、2階以上、オートロック、テレビドアホン、宅配ボックス、浴室乾燥機、追い焚き、インターネット対応、システムキッチン、エアコン、エレベーター、温水洗浄便座、バルコニー、フローリング、トランクルーム、洗髪洗面化粧台、床暖房、2口コンロ、コンロ:ガス、CSアンテナ、BSアンテナ、インターネット使用料無料、洗濯機:室内 | ||
| 当社物件ID | 158319122 | ||
建物の情報
| 建物名 | ラグゼナ八王子寺町 | ||
|---|---|---|---|
| 所在地 | 東京都八王子市寺町 | ||
| 交通 | JR中央線 八王子駅 徒歩7分 京王線 京王八王子駅 徒歩11分 京王高尾線 京王片倉駅 徒歩21分 | ||
| 階数 | 15階建 | 総戸数 | - |
| 築年月 | 2025年06月 / 築1年 | エレベーター | あり |
| 駐車場 | 空有 19800円 | バイク置き場 | - |
| 駐輪場 | あり | 管理人/管理会社 | - |
| 周辺環境 | その他 マクドナルド八王子三崎町店(飲食店)まで285m その他 ドンキホーテ八王子駅前店(その他)まで345m その他 ファミリーマート八王子パーク壱番街通り店(コンビニ)まで455m その他 マツモトキヨシ八王子ユーロード店(ドラッグストア)まで383m その他 八王子オーパ(スーパー)まで670m その他 イオンフードスタイル 八王子店(スーパー)まで635m | ||
| 建物種別 | マンション | 建物構造 | RC(鉄筋コンクリート) |
この部屋の取扱い不動産会社
| 会社名 | (株)ネクストライフ立川店(SUUMO経由) | ||
|---|---|---|---|
| 所在地 | 東京都立川市柴崎町3-8-1 NACビル5階 | 交通 | - |
| 営業時間 | 10:00~18:30(電話8:30~20:00) | 定休日 | 年末年始を除き無休 |
| 免許番号 | 国土交通大臣8175 | 取引態様 | 仲介 |
| 不動産会社管理番号 | 100488753087 | 当社管理番号 | 89 |
| 所属団体 | (公社)東京都宅地建物取引業協会会員 | ||
| 公正取引協議会 | (公社)首都圏不動産公正取引協議会加盟 | ||
| 取扱い物件情報 | 物件詳細へ | ||
※各種情報と現状に差異がある場合は、現状優先となります。問い合わせをすることで、より詳しい条件、情報を確認する事ができます。
提供:(株)ネクストライフ立川店(SUUMO経由)
この物件が気になったら掲載期限まであと10日
ラグゼナ八王子寺町に条件(家賃・エリア)が近い物件一覧
| 写真 | 家賃 管理費等 | 敷金 礼金 | 間取り 専有面積 | 築年数 | 最寄り駅 所在地 | キープ | 詳細 |
|---|---|---|---|---|---|---|---|
マンション メゾンドゥレヴ(3LDK/1階) | |||||||
![]() | 11.9万円 なし | 11.9万円 なし | 3LDK 100m2 | 築35年 | JR中央線 日野駅(東京) 徒歩12分 JR八高線 小宮駅 徒歩27分 JR中央線 豊田駅 徒歩30分 東京都日野市新町 | 詳細を見る | |
アパート サニーサイド聖蹟Ⅱ(2LDK/2階) | |||||||
![]() | 13.3万円 5,500円 | なし 15万円 | 2LDK 71.83m2 | 築12年 | 京王線 百草園駅 徒歩10分 京王線 聖蹟桜ケ丘駅 徒歩18分 東京都日野市落川 | 詳細を見る | |
アパート グランオネスト中町(1LDK/1階) | |||||||
![]() | 14.5万円 5,000円 | 14.5万円 14.5万円 | 1LDK 46.37m2 | 新築 | 小田急線 町田駅 徒歩11分 JR横浜線 町田駅 徒歩16分 小田急線 玉川学園前駅 徒歩27分 東京都町田市中町 | 詳細を見る | |
アパート D-ROOM田町B(3LDK/2階) | |||||||
![]() | 14.2万円 6,000円 | なし なし | 3LDK 61.59m2 | 築1年 | JR八高線 八王子駅 徒歩20分 京王線 京王八王子駅 徒歩23分 JR中央線 西八王子駅 徒歩35分 東京都八王子市田町 | 詳細を見る | |
マンション 京王ラフィネ橋本テラス(2LDK/2階) | |||||||
![]() | 14.5万円 8,000円 | 14.5万円 14.5万円 | 2LDK 55.02m2 | 築2年 | JR横浜線 橋本駅(神奈川) 徒歩12分 京王相模原線 多摩境駅 徒歩24分 JR相模線 南橋本駅 徒歩27分 神奈川県相模原市緑区東橋本 | 詳細を見る | |
マンション センチュリー八王子ルミエール(2LDK/4階) | |||||||
![]() | 21.3万円 1.5万円 | 21.3万円 なし | 2LDK 55m2 | 新築 | 京王線 京王八王子駅 徒歩5分 JR八高線 八王子駅 徒歩7分 京王高尾線 京王片倉駅 徒歩24分 東京都八王子市明神町 | 詳細を見る | |
マンション 三崎町プロジェクト(1LDK/4階) | |||||||
![]() | 10.6万円 1万円 | 10.6万円 10.6万円 | 1LDK 37.52m2 | 新築 | 中央本線 八王子駅 徒歩3分 東京都八王子市三崎町 | 詳細を見る | |
マンション レジデンスYJ(1LDK/8階) | |||||||
![]() | 12.5万円 なし | 25万円 12.5万円 | 1LDK 42.39m2 | 築15年 | 小田急線 町田駅 徒歩6分 小田急江ノ島線 相模大野駅 徒歩28分 小田急線 玉川学園前駅 徒歩35分 東京都町田市中町 | 詳細を見る | |







/105x80-f1-q70-wp1)
