賃貸マンション
アルファベット森下の賃貸物件情報(2K/3階)
| 家賃 | 管理費等 | 敷金 | 礼金 | 間取り | 専有面積 |
|---|---|---|---|---|---|
| 13.7万円 | 5,000円 | 13.7万円 | 13.7万円 | 2K | 29.56m2 |
入居決定でお祝い金最大100,000円
- 保証金
- -
- 償却・敷引
- -
- 築年数
- 築1年
- 所在階
- 3階
- 向き
- -
Point
外出時に便利な宅配ボックス付き★浴室乾燥機完備で雨天時も快適★お買い物に便利なコンビニ・スーパー徒歩圏内にございます♪お部屋探しはピタットハウス住吉店へ!!
提供:ピタットハウス住吉店(株)東京PM不動産(SUUMO経由)

詳細情報 アルファベット森下
物件紹介
アルファベット森下は都営新宿線菊川駅から徒歩6分にあり、駅近で通勤通学に便利なマンションです。
このお部屋は2階以上に位置しているので、通行人や周囲の住人からの視線が気になりにくく、防犯面でも安心。建物のエントランスはオートロックがついており、インターホンにはTVモニタもついているため、相手の顔を確認してから来客対応することができます。
人気の角部屋で周囲の居住者の生活音も気になりにくく、また、フローリングのお部屋なのでお掃除もラクラク。キッチンはシステムキッチン仕様になっていますので、お料理好きの方にもぴったり。バス・トイレは別なので、のんびりお風呂タイムも楽しめるでしょう。また、雨の日でも浴室乾燥機を使えば、お洗濯も問題ありません。
通信設備面では、インターネットが無料で使えるので、月々の出費を抑えられるのも魅力です(別途工事等が必要な場合あり)。
共用部には宅配ボックスが設定されているので、不在の時にも荷物を受け取ることができます。
このお部屋は2階以上に位置しているので、通行人や周囲の住人からの視線が気になりにくく、防犯面でも安心。建物のエントランスはオートロックがついており、インターホンにはTVモニタもついているため、相手の顔を確認してから来客対応することができます。
人気の角部屋で周囲の居住者の生活音も気になりにくく、また、フローリングのお部屋なのでお掃除もラクラク。キッチンはシステムキッチン仕様になっていますので、お料理好きの方にもぴったり。バス・トイレは別なので、のんびりお風呂タイムも楽しめるでしょう。また、雨の日でも浴室乾燥機を使えば、お洗濯も問題ありません。
通信設備面では、インターネットが無料で使えるので、月々の出費を抑えられるのも魅力です(別途工事等が必要な場合あり)。
共用部には宅配ボックスが設定されているので、不在の時にも荷物を受け取ることができます。
お金・契約の情報
※「-」と表示されているものは、実際は料金が発生するものもございます。詳細はお問い合わせください。
| 家賃 | 13.7万円 | 管理費・共益費 | 5,000円 |
|---|---|---|---|
| 敷金 | 13.7万円 | 礼金 | 13.7万円 |
| 入居決定でお祝い金最大100,000円 | |||
| 保証金 | - | 償却・敷引 | - |
| 住宅保険料 | - | 更新料 | - |
| 保証会社利用 | 必須 | 保証会社名 | - |
| 保証会社費用 | - | 保証会社備考 | 保証会社利用必 その他 初回保証料:総賃料の50% 月額:550円 1年毎に更新料:10,000円 |
| 契約形態 | - | 契約期間 | - |
| 入居・引渡期間 | - | 現況 | - |
| 契約備考 | 合計1.87万円(内訳:せいかつ安心サポート1.87万円) 駐輪場代1100円 2K 損保【1.6万円2年】 バストイレ別、エアコン、クロゼット、フローリング、TVインターホン、浴室乾燥機、オートロック、室内洗濯置、シューズボックス、システムキッチン、角住戸、温水洗浄便座、脱衣所、洗面所独立、2口コンロ、駐輪場、宅配ボックス、2面採光、IHクッキングヒーター、全居室洋室、全居室フローリング、ネット使用料不要、保証金不要、築2年以内、3沿線以上利用可、駅徒歩10分以内、洗面所にドア 入居日:'26年3月下旬 | ||
部屋の情報
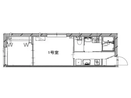
| 間取り | 2K | 専有面積 | 29.56m2 |
|---|---|---|---|
| 所在階 / 向き | 3階 / - | バルコニー面積 | - |
| 水道 / ガス | - | ||
| 設備 | バス・トイレ別、2階以上、オートロック、テレビドアホン、宅配ボックス、浴室乾燥機、インターネット対応、システムキッチン、エアコン、温水洗浄便座、角部屋、フローリング、洗髪洗面化粧台、2口コンロ、コンロ:IH、インターネット使用料無料、洗濯機:室内 | ||
| 当社物件ID | 160531604 | ||
建物の情報
| 建物名 | アルファベット森下 | ||
|---|---|---|---|
| 所在地 | 東京都江東区森下 | ||
| 交通 | 都営新宿線 菊川駅(東京) 徒歩6分 東京メトロ半蔵門線 住吉駅(東京) 徒歩11分 都営大江戸線 清澄白河駅 徒歩15分 | ||
| 階数 | 4階建 | 総戸数 | 12戸 |
| 築年月 | 2026年03月 / 築1年 | エレベーター | - |
| 駐車場 | なし | バイク置き場 | - |
| 駐輪場 | あり | 管理人/管理会社 | - |
| 周辺環境 | その他 江東区役所(役所)まで2133m その他 深川警察署(警察署・交番)まで1748m その他 肉のハナマサ住吉店(スーパー)まで461m その他 ローソン江東猿江一丁目店(コンビニ)まで228m その他 丸井錦糸町店(ショッピングセンター)まで1483m その他 ビエラ江東橋(その他)まで560m | ||
| 建物種別 | マンション | 建物構造 | RC(鉄筋コンクリート) |
この部屋の取扱い不動産会社
| 会社名 | ピタットハウス住吉店(株)東京PM不動産(SUUMO経由) | ||
|---|---|---|---|
| 所在地 | 東京都江東区住吉1-19-1 ツインタワーすみとし住吉館117 | 交通 | - |
| 営業時間 | 10:00~18:00 | 定休日 | 水曜日 |
| 免許番号 | 東京都知事96076 | 取引態様 | 仲介 |
| 不動産会社管理番号 | 100492665550 | 当社管理番号 | 89 |
| 所属団体 | (公社)全日本不動産協会東京都本部会員 | ||
| 公正取引協議会 | (公社)首都圏不動産公正取引協議会加盟 | ||
| 取扱い物件情報 | 物件詳細へ | ||
※各種情報と現状に差異がある場合は、現状優先となります。問い合わせをすることで、より詳しい条件、情報を確認する事ができます。
提供:ピタットハウス住吉店(株)東京PM不動産(SUUMO経由)
この物件が気になったら掲載期限まであと11日
アルファベット森下に条件(家賃・エリア)が近い物件一覧
| 写真 | 家賃 管理費等 | 敷金 礼金 | 間取り 専有面積 | 築年数 | 最寄り駅 所在地 | キープ | 詳細 |
|---|---|---|---|---|---|---|---|
アパート ノリアセット(2LDK/3階) | |||||||
![]() | 18.6万円 3,000円 | 18.6万円 18.6万円 | 2LDK 62.72m2 | 新築 | 京浜急行電鉄本線 大森町駅 徒歩9分 京浜急行電鉄本線 梅屋敷駅(東京) 徒歩16分 東京都大田区大森東3丁目 | 詳細を見る | |
一戸建て 京浜急行電鉄本線 梅屋敷駅(東京) 徒歩9分 築25年(3LDK) | |||||||
![]() | 20万円 なし | 20万円 20万円 | 3LDK 80.82m2 | 築25年 | 京浜急行電鉄本線 梅屋敷駅(東京) 徒歩9分 京浜東北・根岸線 蒲田駅 徒歩10分 東京都大田区大森西7丁目 | 詳細を見る | |
マンション ドルチェ月島・弐番館(1K/10階) | |||||||
![]() | 12.8万円 1.1万円 | なし 12.8万円 | 1K 22.7m2 | 築23年 | 都営大江戸線 勝どき駅 徒歩4分 東京メトロ有楽町線 月島駅 徒歩6分 東京メトロ日比谷線 築地駅 徒歩20分 東京都中央区月島 | 詳細を見る | |
マンション ハイネス大森(2DK/3階) | |||||||
![]() | 13.6万円 6,000円 | 13.6万円 なし | 2DK 41.16m2 | 築42年 | 京急本線 大森町駅 徒歩10分 京急本線 梅屋敷駅(東京) 徒歩16分 JR京浜東北線 大森駅(東京) 徒歩23分 東京都大田区大森西 | 詳細を見る | |
マンション TSK蒲田フラワーマンション(1LDK/8階) | |||||||
![]() | 11.2万円 8,000円 | 11.2万円 11.2万円 | 1LDK 41m2 | 築47年 | 京浜東北・根岸線 蒲田駅 徒歩12分 京浜急行電鉄本線 梅屋敷駅(東京) 徒歩12分 東京都大田区蒲田1丁目 | 詳細を見る | |
一戸建て 東京都新宿線 大島駅(東京) 徒歩7分 築77年(1DK) | |||||||
![]() | 15.8万円 なし | 15.8万円 15.8万円 | 1DK 27.91m2 | 築77年 | 東京都新宿線 大島駅(東京) 徒歩7分 東京都新宿線 西大島駅 徒歩7分 総武・中央緩行線 亀戸駅 徒歩11分 東京都江東区大島3丁目 | 詳細を見る | |
マンション メゾンドボナール(1DK/4階) | |||||||
![]() | 12万円 3,000円 | 12万円 なし | 1DK 32.48m2 | 築29年 | 京浜東北・根岸線 蒲田駅 徒歩10分 京浜急行電鉄本線 京急蒲田駅 徒歩10分 東京都大田区蒲田3丁目 | 詳細を見る | |








