賃貸マンション
アルファベット森下の賃貸物件情報(1LDK/1階)
| 家賃 | 管理費等 | 敷金 | 礼金 | 間取り | 専有面積 |
|---|---|---|---|---|---|
| 13.3万円 | 5,000円 | 13.3万円 | 13.3万円 | 1LDK | 29.57m2 |
入居決定でお祝い金最大100,000円
- 保証金
- -
- 償却・敷引
- -
- 築年数
- 新築
- 所在階
- 1階
- 向き
- 西
Point
☆オートロック、バストイレ別、浴室乾燥、温水洗浄便座、コンクリート打ちっぱなし等☆オンライン内見や現地待ち合わせ、最寄駅での待ち合せなど、ご対応可能です。
提供:(株)シティホーム渋谷センター(SUUMO経由)

詳細情報 アルファベット森下
物件紹介
アルファベット森下は都営新宿線菊川駅から徒歩6分にあり、駅近で通勤通学に便利なマンションです。
建物のエントランスはオートロックがついており、インターホンにはTVモニタもついているため、相手の顔を確認してから来客対応することができます。
人気の角部屋で周囲の居住者の生活音も気になりにくく、また、フローリングのお部屋なのでお掃除もラクラク。キッチンはシステムキッチン仕様になっていますので、お料理好きの方にもぴったり。バス・トイレは別なので、のんびりお風呂タイムも楽しめるでしょう。また、雨の日でも浴室乾燥機を使えば、お洗濯も問題ありません。
通信設備面では、インターネット接続が可能です。また、BSアンテナ・CSアンテナもありますので、おうち時間も充実するでしょう(別途工事、契約料が必要な場合あり)。
共用部には宅配ボックスが設定されているので、不在の時にも荷物を受け取ることができます。
建物のエントランスはオートロックがついており、インターホンにはTVモニタもついているため、相手の顔を確認してから来客対応することができます。
人気の角部屋で周囲の居住者の生活音も気になりにくく、また、フローリングのお部屋なのでお掃除もラクラク。キッチンはシステムキッチン仕様になっていますので、お料理好きの方にもぴったり。バス・トイレは別なので、のんびりお風呂タイムも楽しめるでしょう。また、雨の日でも浴室乾燥機を使えば、お洗濯も問題ありません。
通信設備面では、インターネット接続が可能です。また、BSアンテナ・CSアンテナもありますので、おうち時間も充実するでしょう(別途工事、契約料が必要な場合あり)。
共用部には宅配ボックスが設定されているので、不在の時にも荷物を受け取ることができます。
お金・契約の情報
※「-」と表示されているものは、実際は料金が発生するものもございます。詳細はお問い合わせください。
| 家賃 | 13.3万円 | 管理費・共益費 | 5,000円 |
|---|---|---|---|
| 敷金 | 13.3万円 | 礼金 | 13.3万円 |
| 入居決定でお祝い金最大100,000円 | |||
| 保証金 | - | 償却・敷引 | - |
| 住宅保険料 | - | 更新料 | - |
| 保証会社利用 | 必須 | 保証会社名 | - |
| 保証会社費用 | - | 保証会社備考 | 保証会社利用必 初回保証料月額総費用の50%、年間10000円、月額550円 |
| 契約形態 | - | 契約期間 | - |
| 入居・引渡期間 | - | 現況 | - |
| 契約備考 | ※室内現況優先/【来店無し契約手続き相談可能】【現地待ち合わせにてご案内可能】【最寄りの駅まで送迎有り】物件写真はサンプルです(物件情報と現況が異なる場合現況を優先と致します)お気軽にご相談下さい。 合計1.87万円(内訳:24時間サポート 18700円) 1LDK 二人入居可 損保【1.6万円】 バストイレ別、エアコン、クロゼット、フローリング、TVインターホン、浴室乾燥機、オートロック、室内洗濯置、シューズボックス、システムキッチン、角住戸、温水洗浄便座、脱衣所、洗面所独立、2口コンロ、駐輪場、宅配ボックス、光ファイバー、2面採光、BS・CS、IHクッキングヒーター、保証人不要、二人入居相談、2沿線利用可、駅まで平坦、24時間換気システム、平坦地、リバーサイド、3駅以上利用可、駅徒歩10分以内、敷地内ごみ置き場、都市ガス、通風良好 入居日:'26年3月下旬 | ||
部屋の情報
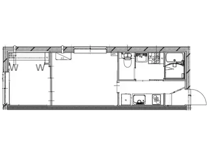
| 間取り | 1LDK | 専有面積 | 29.57m2 |
|---|---|---|---|
| 所在階 / 向き | 1階 / 西 | バルコニー面積 | - |
| 水道 / ガス | - | ||
| 設備 | バス・トイレ別、オートロック、テレビドアホン、宅配ボックス、浴室乾燥機、インターネット対応、システムキッチン、エアコン、温水洗浄便座、角部屋、フローリング、洗髪洗面化粧台、2口コンロ、コンロ:IH、CSアンテナ、BSアンテナ、洗濯機:室内 | ||
| 当社物件ID | 160346326 | ||
建物の情報
| 建物名 | アルファベット森下 | ||
|---|---|---|---|
| 所在地 | 東京都江東区森下 | ||
| 交通 | 都営新宿線 菊川駅(東京) 徒歩6分 都営新宿線 住吉駅(東京) 徒歩11分 都営大江戸線 清澄白河駅 徒歩15分 | ||
| 階数 | 4階建 | 総戸数 | - |
| 築年月 | 2026年03月 / 新築 | エレベーター | - |
| 駐車場 | なし | バイク置き場 | - |
| 駐輪場 | あり | 管理人/管理会社 | - |
| 周辺環境 | その他 スギ薬局江東橋南店(ドラッグストア)まで520m その他 スーパーオオゼキ菊川店(スーパー)まで358m その他 セブンイレブン墨田菊川店(コンビニ)まで271m その他 ローソン江東猿江一丁目店(コンビニ)まで265m その他 社会福祉法人あそか会あそか病院(病院)まで608m その他 肉のハナマサ住吉店(スーパー)まで424m | ||
| 建物種別 | マンション | 建物構造 | RC(鉄筋コンクリート) |
この部屋の取扱い不動産会社
| 会社名 | (株)シティホーム渋谷センター(SUUMO経由) | ||
|---|---|---|---|
| 所在地 | 東京都渋谷区渋谷1-24-14 | 交通 | - |
| 営業時間 | 9:30~19:30 | 定休日 | 水曜日、年末年始 |
| 免許番号 | 国土交通大臣5598 | 取引態様 | 仲介 |
| 不動産会社管理番号 | 100486773453 | 当社管理番号 | 89 |
| 所属団体 | (公社)全日本不動産協会東京都本部会員 | ||
| 公正取引協議会 | (公社)首都圏不動産公正取引協議会加盟 | ||
| 取扱い物件情報 | 物件詳細へ | ||
※各種情報と現状に差異がある場合は、現状優先となります。問い合わせをすることで、より詳しい条件、情報を確認する事ができます。
提供:(株)シティホーム渋谷センター(SUUMO経由)
この物件が気になったら掲載期限まであと11日
アルファベット森下に条件(家賃・エリア)が近い物件一覧
| 写真 | 家賃 管理費等 | 敷金 礼金 | 間取り 専有面積 | 築年数 | 最寄り駅 所在地 | キープ | 詳細 |
|---|---|---|---|---|---|---|---|
マンション パークアクシス森下(ワンルーム/2階) | |||||||
![]() | 12.7万円 1万円 | 12.7万円 なし | ワンルーム 25.02m2 | 築5年 | 都営新宿線 森下駅(東京) 徒歩4分 JR総武線 両国駅 徒歩12分 東京メトロ半蔵門線 清澄白河駅 徒歩13分 東京都江東区新大橋 | 詳細を見る | |
一戸建て 東京地下鉄有楽町線 豊洲駅 徒歩12分 築51年(3DK) | |||||||
![]() | 13.8万円 なし | 13.8万円 13.8万円 | 3DK 64.71m2 | 築51年 | 東京地下鉄有楽町線 豊洲駅 徒歩12分 京葉線 潮見駅 徒歩20分 東京地下鉄東西線 木場駅 徒歩24分 東京都江東区枝川1丁目 | 詳細を見る | |
マンション クレストコート門前仲町(1DK/10階) | |||||||
![]() | 15.8万円 1.2万円 | 15.8万円 なし | 1DK 26.14m2 | 築1年 | 東京地下鉄東西線 門前仲町駅 徒歩7分 東京都江東区永代1丁目 | 詳細を見る | |
マンション SEED JUST B-BASE Ⅱ(1LDK/3階) | |||||||
![]() | 10.1万円 1.5万円 | 10.1万円 10.1万円 | 1LDK 27.92m2 | 築1年 | 東京モノレール羽田 昭和島駅 徒歩11分 京浜急行電鉄本線 梅屋敷駅(東京) 徒歩19分 東京都大田区大森南4丁目 | 詳細を見る | |
マンション プラウドフラット木場II(1K/15階) | |||||||
![]() | 14.2万円 1.5万円 | 14.2万円 なし | 1K 25.08m2 | 築6年 | 東京メトロ東西線 木場駅 徒歩2分 都営大江戸線 門前仲町駅 徒歩15分 東京都江東区木場 | 詳細を見る | |
マンション SAKURA(2LDK/2階) | |||||||
![]() | 20.1万円 5,000円 | 20.1万円 なし | 2LDK 54.84m2 | 築5年 | 京急本線 梅屋敷駅(東京) 徒歩7分 京急本線 大森町駅 徒歩9分 東京都大田区大森中 | 詳細を見る | |




/105x80-f1-q70-wp1)


