賃貸マンション
プレール・ドゥーク森下IIの賃貸物件情報(1K/8階)
| 家賃 | 管理費等 | 敷金 | 礼金 | 間取り | 専有面積 |
|---|---|---|---|---|---|
| 9.5万円 | なし | 9.5万円 | 9.5万円 | 1K | 20.8m2 |
入居決定でお祝い金最大100,000円
- 保証金
- -
- 償却・敷引
- -
- 築年数
- 築17年
- 所在階
- 8階
- 向き
- 西
Point
浴室乾燥機完備で雨天時も快適★安心のセキュリティ完備★お買い物に便利なコンビニ、スーパー徒歩圏内にございます☆お部屋探しはピタットハウス清澄白河店へ!
提供:ピタットハウス清澄白河店(株)東京PM不動産(SUUMO経由)

詳細情報 プレール・ドゥーク森下II
物件紹介
プレール・ドゥーク森下IIは都営新宿線森下駅から徒歩4分にあり、駅近で通勤通学に便利なマンションです。
このお部屋は2階以上に位置しているので、通行人や周囲の住人からの視線が気になりにくく、防犯面でも安心。建物のエントランスはオートロックがついており、インターホンにはTVモニタもついているため、相手の顔を確認してから来客対応することができます。
フローリングのお部屋なのでお掃除もラクラク。キッチンはシステムキッチン仕様になっていますので、お料理好きの方にもぴったり。バス・トイレは別なので、のんびりお風呂タイムも楽しめるでしょう。また、雨の日でも浴室乾燥機を使えば、お洗濯も問題ありません。
通信設備面では、インターネット接続が可能です(別途工事、契約料が必要な場合あり)。
建物にはエレベーターがついているので、重い荷物があっても安心。共用部には宅配ボックスが設定されているので、不在の時にも荷物を受け取ることができます。
このお部屋は2階以上に位置しているので、通行人や周囲の住人からの視線が気になりにくく、防犯面でも安心。建物のエントランスはオートロックがついており、インターホンにはTVモニタもついているため、相手の顔を確認してから来客対応することができます。
フローリングのお部屋なのでお掃除もラクラク。キッチンはシステムキッチン仕様になっていますので、お料理好きの方にもぴったり。バス・トイレは別なので、のんびりお風呂タイムも楽しめるでしょう。また、雨の日でも浴室乾燥機を使えば、お洗濯も問題ありません。
通信設備面では、インターネット接続が可能です(別途工事、契約料が必要な場合あり)。
建物にはエレベーターがついているので、重い荷物があっても安心。共用部には宅配ボックスが設定されているので、不在の時にも荷物を受け取ることができます。
お金・契約の情報
※「-」と表示されているものは、実際は料金が発生するものもございます。詳細はお問い合わせください。
| 家賃 | 9.5万円 | 管理費・共益費 | なし |
|---|---|---|---|
| 敷金 | 9.5万円 | 礼金 | 9.5万円 |
| 入居決定でお祝い金最大100,000円 | |||
| 保証金 | - | 償却・敷引 | - |
| 住宅保険料 | - | 更新料 | - |
| 保証会社利用 | 必須 | 保証会社名 | - |
| 保証会社費用 | - | 保証会社備考 | 保証会社利用必 その他 初回保証料:総賃料の50% 月額:700円 |
| 契約形態 | 定期借家 | 契約期間 | 2年 |
| 入居・引渡期間 | - | 現況 | - |
| 契約備考 | 合計5.72万円(内訳:鍵交換代3.3万円/入居者サポート2.42万円) 1K 定期借家2年 損保【2万円2年】 バストイレ別、バルコニー、エアコン、クロゼット、フローリング、TVインターホン、浴室乾燥機、オートロック、室内洗濯置、シューズボックス、システムキッチン、脱衣所、エレベーター、洗面所独立、2口コンロ、宅配ボックス、光ファイバー、外壁タイル張り、分譲賃貸、全居室洋室、全居室フローリング、3沿線以上利用可、駅徒歩5分以内、駅徒歩10分以内、全居室6畳以上、都市ガス、洗面所にドア 入居日:'26年5月上旬 | ||
部屋の情報
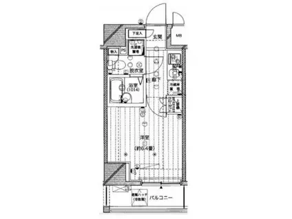
| 間取り | 1K | 専有面積 | 20.8m2 |
|---|---|---|---|
| 所在階 / 向き | 8階 / 西 | バルコニー面積 | - |
| 水道 / ガス | - | ||
| 設備 | バス・トイレ別、2階以上、オートロック、テレビドアホン、宅配ボックス、浴室乾燥機、インターネット対応、システムキッチン、エアコン、エレベーター、バルコニー、フローリング、洗髪洗面化粧台、2口コンロ、洗濯機:室内 | ||
| 当社物件ID | 160523803 | ||
建物の情報
| 建物名 | プレール・ドゥーク森下II | ||
|---|---|---|---|
| 所在地 | 東京都墨田区立川 | ||
| 交通 | 都営新宿線 森下駅(東京) 徒歩4分 都営大江戸線 両国駅 徒歩6分 東京メトロ半蔵門線 清澄白河駅 徒歩13分 | ||
| 階数 | 11階建 | 総戸数 | 41戸 |
| 築年月 | 2010年02月 / 築17年 | エレベーター | あり |
| 駐車場 | なし | バイク置き場 | - |
| 駐輪場 | - | 管理人/管理会社 | - |
| 周辺環境 | その他 ローソン墨田千歳三丁目店(コンビニ)まで233m その他 ローソンストア100両国店(コンビニ)まで233m その他 墨田区役所(役所)まで2380m その他 マルエツプチ両国緑一丁目店(スーパー)まで373m その他 丸井錦糸町店(ショッピングセンター)まで1784m その他 くすりの福太郎森下駅前店(ドラッグストア)まで478m | ||
| 建物種別 | マンション | 建物構造 | RC(鉄筋コンクリート) |
この部屋の取扱い不動産会社
| 会社名 | ピタットハウス清澄白河店(株)東京PM不動産(SUUMO経由) | ||
|---|---|---|---|
| 所在地 | 東京都江東区三好2-17-11 | 交通 | - |
| 営業時間 | 10時~18時 | 定休日 | 毎週水曜日 |
| 免許番号 | 東京都知事96076 | 取引態様 | 仲介 |
| 不動産会社管理番号 | 100492427888 | 当社管理番号 | 89 |
| 所属団体 | (公社)全日本不動産協会東京都本部会員 | ||
| 公正取引協議会 | (公社)首都圏不動産公正取引協議会加盟 | ||
| 取扱い物件情報 | 物件詳細へ | ||
※各種情報と現状に差異がある場合は、現状優先となります。問い合わせをすることで、より詳しい条件、情報を確認する事ができます。
提供:ピタットハウス清澄白河店(株)東京PM不動産(SUUMO経由)
この物件が気になったら掲載期限まであと11日
プレール・ドゥーク森下IIに条件(家賃・エリア)が近い物件一覧
| 写真 | 家賃 管理費等 | 敷金 礼金 | 間取り 専有面積 | 築年数 | 最寄り駅 所在地 | キープ | 詳細 |
|---|---|---|---|---|---|---|---|
マンション レピュア町屋レジデンスⅡ4階(1K/4階) | |||||||
![]() | 9.5万円 1.2万円 | 9.5万円 9.5万円 | 1K 21.25m2 | 築3年 | 東京地下鉄千代田線 町屋駅 徒歩7分 東京都荒川線 町屋駅前駅 徒歩7分 京成電鉄本線 町屋駅 徒歩8分 東京都荒川区町屋 一丁目 | 詳細を見る | |
マンション レガスタ東向島(1K/8階) | |||||||
![]() | 9.7万円 6,000円 | 9.7万円 9.7万円 | 1K 25.24m2 | 築20年 | 東武伊勢崎線 東向島駅 徒歩2分 京成押上線 京成曳舟駅 徒歩11分 京成押上線 八広駅 徒歩13分 東京都墨田区東向島 | 詳細を見る | |
マンション ドルチェ月島・弐番館(1K/10階) | |||||||
![]() | 12.8万円 1.1万円 | なし 12.8万円 | 1K 22.7m2 | 築23年 | 都営大江戸線 勝どき駅 徒歩4分 東京メトロ有楽町線 月島駅 徒歩6分 東京メトロ日比谷線 築地駅 徒歩20分 東京都中央区月島 | 詳細を見る | |
マンション アジールコート汐浜キャナル(1K/2階) | |||||||
![]() | 11.2万円 1万円 | 11.2万円 11.2万円 | 1K 25.2m2 | 築3年 | JR京葉線 越中島駅 徒歩10分 東京メトロ東西線 木場駅 徒歩14分 東京メトロ有楽町線 豊洲駅 徒歩16分 東京都江東区塩浜 | 詳細を見る | |
マンション プレール日本橋壱番館(1K/3階) | |||||||
![]() | 9.6万円 7,000円 | 9.6万円 9.6万円 | 1K 20.41m2 | 築25年 | 東京地下鉄半蔵門線 水天宮前駅 徒歩3分 東京地下鉄日比谷線 人形町駅 徒歩6分 東京都浅草線 人形町駅 徒歩6分 東京都中央区日本橋蛎殻町2丁目 | 詳細を見る | |
マンション GRAN PASEO 両国(1K/10階) | |||||||
![]() | 12.8万円 1.5万円 | なし 12.8万円 | 1K 25.35m2 | 築5年 | JR総武線 両国駅 徒歩6分 都営大江戸線 両国駅 徒歩7分 都営新宿線 浜町駅 徒歩17分 東京都墨田区両国 | 詳細を見る | |
マンション GARDEN XAVIS木場(1LDK/4階) | |||||||
![]() | 15.1万円 1.2万円 | 15.1万円 なし | 1LDK 27.28m2 | 築1年 | 東京メトロ東西線 木場駅 徒歩4分 東京メトロ東西線 東陽町駅 徒歩7分 都営大江戸線 門前仲町駅 徒歩19分 東京都江東区東陽 | 詳細を見る | |
マンション ライオンズマンション亀戸(1LDK/6階) | |||||||
![]() | 14.9万円 1.1万円 | 14.9万円 14.9万円 | 1LDK 49.74m2 | 築46年 | JR総武線 亀戸駅 徒歩4分 東武亀戸線 亀戸水神駅 徒歩4分 都営新宿線 住吉駅(東京) 徒歩25分 東京都江東区亀戸 | 詳細を見る | |








