賃貸マンション
コンフォリア・リヴ北新宿の賃貸物件情報(2K/5階)
| 家賃 | 管理費等 | 敷金 | 礼金 | 間取り | 専有面積 |
|---|---|---|---|---|---|
| 15.9万円 | 1万円 | 15.9万円 | なし | 2K | 25.36m2 |
入居決定でお祝い金最大100,000円
- 保証金
- -
- 償却・敷引
- -
- 築年数
- 新築(築1年)
- 所在階
- 5階
- 向き
- 南
Point
収納はクロゼット・シューズボックスなど豊富なので、衣類や履き物の整理がしやすく便利です。
提供:東急リバブル(株)新宿センター(SUUMO経由)

詳細情報 コンフォリア・リヴ北新宿
物件紹介
コンフォリア・リヴ北新宿はJR中央線東中野駅から徒歩9分にあり、駅近で通勤通学に便利なマンションです。
このお部屋は2階以上に位置しているので、通行人や周囲の住人からの視線が気になりにくく、防犯面でも安心。建物のエントランスはオートロックがついており、インターホンにはTVモニタもついているため、相手の顔を確認してから来客対応することができます。
人気の南向きのお部屋。また、フローリングなのでお掃除もラクラク。キッチンはシステムキッチン仕様になっていますので、お料理好きの方にもぴったり。バス・トイレは別なので、のんびりお風呂タイムも楽しめるでしょう。また、雨の日でも浴室乾燥機を使えば、お洗濯も問題ありません。
通信設備面では、インターネットが無料で使えるので、月々の出費を抑えられるのも魅力です。また、BSアンテナ・CSアンテナもありますので、おうち時間も充実するでしょう(別途工事、BS・CSの契約料等が必要な場合あり)。
建物にはエレベーターがついているので、重い荷物があっても安心。共用部には宅配ボックスが設定されているので、不在の時にも荷物を受け取ることができます。また、ペット飼育の相談ができますので、あなたの大切な家族の一員も快適に暮らせるか、ぜひ確認してみてください。
このお部屋は2階以上に位置しているので、通行人や周囲の住人からの視線が気になりにくく、防犯面でも安心。建物のエントランスはオートロックがついており、インターホンにはTVモニタもついているため、相手の顔を確認してから来客対応することができます。
人気の南向きのお部屋。また、フローリングなのでお掃除もラクラク。キッチンはシステムキッチン仕様になっていますので、お料理好きの方にもぴったり。バス・トイレは別なので、のんびりお風呂タイムも楽しめるでしょう。また、雨の日でも浴室乾燥機を使えば、お洗濯も問題ありません。
通信設備面では、インターネットが無料で使えるので、月々の出費を抑えられるのも魅力です。また、BSアンテナ・CSアンテナもありますので、おうち時間も充実するでしょう(別途工事、BS・CSの契約料等が必要な場合あり)。
建物にはエレベーターがついているので、重い荷物があっても安心。共用部には宅配ボックスが設定されているので、不在の時にも荷物を受け取ることができます。また、ペット飼育の相談ができますので、あなたの大切な家族の一員も快適に暮らせるか、ぜひ確認してみてください。
お金・契約の情報
※「-」と表示されているものは、実際は料金が発生するものもございます。詳細はお問い合わせください。
| 家賃 | 15.9万円 | 管理費・共益費 | 1万円 |
|---|---|---|---|
| 敷金 | 15.9万円 | 礼金 | なし |
| 入居決定でお祝い金最大100,000円 | |||
| 保証金 | - | 償却・敷引 | - |
| 住宅保険料 | 1円 | 更新料 | - |
| 保証会社利用 | 必須 | 保証会社名 | - |
| 保証会社費用 | - | 保証会社備考 | エポスカード(RP) 保証料:賃料等の50%(最低2万)、月額保証料:賃料等の1%(更新料無) |
| 契約形態 | - | 契約期間 | 2年 |
| 入居・引渡期間 | 即時 | 現況 | - |
| 入居可能条件 | ペット相談 | ||
| 契約備考 | 清掃費:38500円(退去時請求).エアコン清掃費:11000円(退去時請求) その他設備/条件:室内洗濯機置き場、独立洗面台、防犯カメラ、クローゼット、シューズボックス | ||
部屋の情報
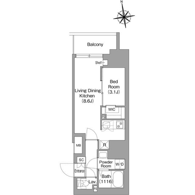
| 間取り | 2K | 専有面積 | 25.36m2 |
|---|---|---|---|
| 間取り詳細 | 洋室(4.4帖)、洋室(3.9帖) | ||
| 所在階 / 向き | 5階 / 南 | バルコニー面積 | - |
| 水道 / ガス | - | ||
| 設備 | バス・トイレ別、オートロック、宅配ボックス、浴室乾燥機、システムキッチン、エアコン、エレベーター、温水洗浄便座、バルコニー、フローリング、2口コンロ、コンロ:ガス、インターネット使用料無料、シャワー、給湯 | ||
| 当社物件ID | 159988305 | ||
建物の情報
| 建物名 | コンフォリア・リヴ北新宿 | ||
|---|---|---|---|
| 所在地 | 東京都新宿区北新宿4丁目 | ||
| 交通 | 総武・中央緩行線 東中野駅 徒歩9分 総武・中央緩行線 大久保駅(東京) 徒歩11分 | ||
| 階数 | 13階建 | 総戸数 | 48戸 |
| 築年月 | 2025年02月 / 新築(築1年) | エレベーター | あり |
| 駐車場 | なし | バイク置き場 | あり |
| 駐輪場 | - | 管理人/管理会社 | - |
| 周辺環境 | その他 ドラッグストア その他 公園 その他 銀行 その他 * | ||
| 建物種別 | マンション | 建物構造 | RC(鉄筋コンクリート) |
この部屋の取扱い不動産会社
| 会社名 | ハウスコム東東京株式会社 池袋西口店 | ||
|---|---|---|---|
| 所在地 | 東京都豊島区19-6松長ビル2階 | 交通 | - |
| 営業時間 | 10:00~18:00 | 定休日 | - |
| 免許番号 | 東京都知事(1)第108283号 | 取引態様 | 仲介 |
| 不動産会社管理番号 | HC5-5125121-0504-0113 | 当社管理番号 | 468 |
| 所属団体 | 、 | ||
| 取扱い物件情報 | 物件詳細へ | ||
※各種情報と現状に差異がある場合は、現状優先となります。問い合わせをすることで、より詳しい条件、情報を確認する事ができます。
提供:ハウスコム東東京株式会社 池袋西口店
この物件が気になったら掲載期限まであと5日
コンフォリア・リヴ北新宿に条件(家賃・エリア)が近い物件一覧
| 写真 | 家賃 管理費等 | 敷金 礼金 | 間取り 専有面積 | 築年数 | 最寄り駅 所在地 | キープ | 詳細 |
|---|---|---|---|---|---|---|---|
マンション アーバンプレミア秋葉原(1K/9階) | |||||||
![]() | 14.9万円 1万円 | 14.9万円 なし | 1K 27.34m2 | 築6年 | 東京地下鉄銀座線 末広町駅(東京) 徒歩2分 山手線 秋葉原駅 徒歩10分 東京都千代田区外神田6丁目 | 詳細を見る | |
マンション エスティメゾン千石(1K/1階) | |||||||
![]() | 9.7万円 1万円 | 9.7万円 9.7万円 | 1K 20.2m2 | 築17年 | 東京都三田線 千石駅 徒歩7分 山手線 巣鴨駅 徒歩9分 東京都文京区千石4丁目 | 詳細を見る | |
マンション パティオ神田(1K/5階) | |||||||
![]() | 12.4万円 1.5万円 | なし なし | 1K 25.07m2 | 築12年 | 東京都新宿線 岩本町駅 徒歩4分 山手線 神田駅(東京) 徒歩6分 山手線 秋葉原駅 徒歩9分 東京都千代田区岩本町2丁目 | 詳細を見る | |
マンション レジディア文京本駒込(1K/8階) | |||||||
![]() | 15.2万円 1万円 | なし なし | 1K 29.16m2 | 築18年 | 東京地下鉄南北線 本駒込駅 徒歩5分 山手線 駒込駅 徒歩10分 東京都三田線 白山駅(東京) 徒歩11分 東京都文京区本駒込3丁目 | 詳細を見る | |
マンション VIDA017(1K/3階) | |||||||
![]() | 9.7万円 1万円 | 9.7万円 9.7万円 | 1K 24.77m2 | 築24年 | 総武・中央緩行線 浅草橋駅 徒歩5分 東京都新宿線 岩本町駅 徒歩6分 山手線 秋葉原駅 徒歩7分 東京都千代田区東神田2丁目 | 詳細を見る | |
マンション ペントス神田五軒町(1K/3階) | |||||||
![]() | 9.8万円 3,000円 | 4.9万円 19.6万円 | 1K 20.65m2 | 築17年 | 東京地下鉄銀座線 末広町駅(東京) 徒歩3分 山手線 御徒町駅 徒歩8分 山手線 秋葉原駅 徒歩9分 東京都千代田区外神田6丁目 | 詳細を見る | |
マンション クリーンガーデン御茶ノ水(1K/5階) | |||||||
![]() | 10.3万円 4,000円 | なし 10.3万円 | 1K 22.5m2 | 築24年 | 東京都新宿線 小川町駅(東京) 徒歩2分 東京地下鉄丸ノ内線 淡路町駅 徒歩3分 総武・中央緩行線 御茶ノ水駅 徒歩6分 東京都千代田区神田淡路町2丁目 | 詳細を見る | |
マンション クラリティア文京湯島(1DK/3階) | |||||||
![]() | 15.9万円 1.5万円 | 15.9万円 なし | 1DK 25.13m2 | 築1年 | 東京地下鉄千代田線 湯島駅 徒歩5分 東京地下鉄銀座線 末広町駅(東京) 徒歩7分 中央本線 御茶ノ水駅 徒歩9分 東京都文京区湯島3丁目 | 詳細を見る | |








