賃貸マンション
新宿第二ローヤルコーポの賃貸物件情報(1DK/1階)
| 家賃 | 管理費等 | 敷金 | 礼金 | 間取り | 専有面積 |
|---|---|---|---|---|---|
| 17万円 | 1万円 | 17万円 | 17万円 | 1DK | 30.16m2 |
入居決定でお祝い金最大100,000円
- 保証金
- -
- 償却・敷引
- -
- 築年数
- 築53年
- 所在階
- 1階
- 向き
- 南西
Point
いよいよ内見可! 3月上旬~入居可です♪ 全室エアコン♪ リノベ仕様で室内は新築♪ ネット320Mが割安利用可(2,680円/月々)♪ SOHO相談♪ 楽器相談♪ 内見ご予約お待ちしております♪
提供:(有)シンクリエイティブ(SUUMO経由)

詳細情報 新宿第二ローヤルコーポ
物件紹介
新宿第二ローヤルコーポは東京メトロ丸ノ内線西新宿駅から徒歩5分にあり、駅近で通勤通学に便利なマンションです。
このお部屋のインターホンにはTVモニタがついているため、相手の顔を確認してから来客対応することができます。
こちらは楽器相談が可能な物件。楽器演奏をお考えの方はぜひ相談してみてください。人気の南向きのお部屋。また、フローリングなのでお掃除もラクラク。キッチンはシステムキッチン仕様になっていますので、お料理好きの方にもぴったり。
通信設備面では、インターネット接続が可能です。また、CATVにも対応しているので、おうち時間も充実するでしょう(別途工事、契約料が必要な場合あり)。
このお部屋のインターホンにはTVモニタがついているため、相手の顔を確認してから来客対応することができます。
こちらは楽器相談が可能な物件。楽器演奏をお考えの方はぜひ相談してみてください。人気の南向きのお部屋。また、フローリングなのでお掃除もラクラク。キッチンはシステムキッチン仕様になっていますので、お料理好きの方にもぴったり。
通信設備面では、インターネット接続が可能です。また、CATVにも対応しているので、おうち時間も充実するでしょう(別途工事、契約料が必要な場合あり)。
お金・契約の情報
※「-」と表示されているものは、実際は料金が発生するものもございます。詳細はお問い合わせください。
| 家賃 | 17万円 | 管理費・共益費 | 1万円 |
|---|---|---|---|
| 敷金 | 17万円 | 礼金 | 17万円 |
| 入居決定でお祝い金最大100,000円 | |||
| 保証金 | - | 償却・敷引 | - |
| 住宅保険料 | - | 更新料 | - |
| 保証会社利用 | 必須 | 保証会社名 | - |
| 保証会社費用 | - | 保証会社備考 | 保証会社利用必 ( 保証委託料 初回:賃料と管理費合計の50%。2年目以降:10,000円/年 ) |
| 契約形態 | - | 契約期間 | - |
| 入居・引渡期間 | - | 現況 | - |
| 入居可能条件 | 楽器相談 | ||
| 契約備考 | 巡回管理/リフォーム:2026年2月末日完成予定♪フルリノベーション完成間近♪※2DK→1DKへ変更、全面リノベ 1DK 二人入居可/子供可/楽器相談/ルームシェア相談 損保【2万円2年】 バルコニー、エアコン、クロゼット、フローリング、シャワー付洗面台、TVインターホン、室内洗濯置、シューズボックス、システムキッチン、追焚機能浴室、温水洗浄便座、脱衣所、洗面所独立、2口コンロ、駐輪場、CATV、閑静な住宅地、分譲賃貸、オートバス、保証人不要、CATVインターネット、全居室フローリング、エアコン2台、駅まで平坦、エアコン全室、ダブルロックキー、楽器相談、ルームシェア相談、敷地内ごみ置き場、南西向き、都市ガス、三面鏡付洗面化粧台、南面バルコニー、室内物干機、高速ネット対応、リノベーション、初期費用カード決済可 入居日:'26年3月初旬 | ||
部屋の情報
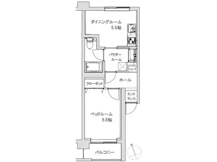
| 間取り | 1DK | 専有面積 | 30.16m2 |
|---|---|---|---|
| 所在階 / 向き | 1階 / 南西 | バルコニー面積 | 3m2 |
| 水道 / ガス | - | ||
| 設備 | テレビドアホン、追い焚き、インターネット対応、システムキッチン、エアコン、温水洗浄便座、南向き、バルコニー、フローリング、洗髪洗面化粧台、2口コンロ、CATV、洗濯機:室内 | ||
| 当社物件ID | 160172435 | ||
建物の情報
| 建物名 | 新宿第二ローヤルコーポ | ||
|---|---|---|---|
| 所在地 | 東京都新宿区西新宿 | ||
| 交通 | 東京メトロ丸ノ内線 西新宿駅 徒歩5分 JR中央線 大久保駅(東京) 徒歩7分 JR山手線 新宿駅 徒歩11分 | ||
| 階数 | 5階建 | 総戸数 | - |
| 築年月 | 1973年05月 / 築53年 | エレベーター | - |
| 駐車場 | なし | バイク置き場 | - |
| 駐輪場 | あり | 管理人/管理会社 | - |
| 周辺環境 | その他 まいばすけっと西新宿7丁目店(スーパー)まで361m その他 セブンイレブン北新宿1丁目店(コンビニ)まで219m その他 マツモトキヨシ大久保駅南口店(ドラッグストア)まで462m その他 医療法人社団広恵会春山記念病院(病院)まで381m その他 新宿警察署(警察署・交番)まで516m その他 西新宿八郵便局(郵便局)まで474m | ||
| 建物種別 | マンション | 建物構造 | RC(鉄筋コンクリート) |
この部屋の取扱い不動産会社
| 会社名 | (有)シンクリエイティブ(SUUMO経由) | ||
|---|---|---|---|
| 所在地 | 神奈川県川崎市高津区諏訪1-23-18 | 交通 | - |
| 営業時間 | 10:00~19:00 | 定休日 | 火曜、水曜 |
| 免許番号 | 神奈川県知事24237 | 取引態様 | 仲介 |
| 不動産会社管理番号 | 100490656230 | 当社管理番号 | 89 |
| 所属団体 | (公社)神奈川県宅地建物取引業協会会員 | ||
| 公正取引協議会 | (公社)首都圏不動産公正取引協議会加盟 | ||
| 取扱い物件情報 | 物件詳細へ | ||
※各種情報と現状に差異がある場合は、現状優先となります。問い合わせをすることで、より詳しい条件、情報を確認する事ができます。
提供:(有)シンクリエイティブ(SUUMO経由)
この物件が気になったら掲載期限まであと11日
新宿第二ローヤルコーポに条件(家賃・エリア)が近い物件一覧
| 写真 | 家賃 管理費等 | 敷金 礼金 | 間取り 専有面積 | 築年数 | 最寄り駅 所在地 | キープ | 詳細 |
|---|---|---|---|---|---|---|---|
マンション アルティオ ドマーニ(1K/9階) | |||||||
![]() | 17.5万円 1.2万円 | なし 17.5万円 | 1K 32.58m2 | 築6年 | JR山手線 神田駅(東京) 徒歩3分 東京メトロ丸ノ内線 大手町駅(東京) 徒歩6分 JR総武線快速 新日本橋駅 徒歩8分 東京都千代田区内神田 | 詳細を見る | |
アパート シャーメゾン広尾(1LDK/1階) | |||||||
![]() | 18.5万円 7,000円 | なし 37万円 | 1LDK 46.12m2 | 築13年 | JR山手線 恵比寿駅 徒歩12分 東京メトロ日比谷線 広尾駅 徒歩15分 東急東横線 代官山駅 徒歩16分 東京都渋谷区広尾 | 詳細を見る | |
マンション イプセ白金台(1LDK/2階) | |||||||
![]() | 23.6万円 1万円 | 23.6万円 23.6万円 | 1LDK 37.55m2 | 築1年 | 東京地下鉄南北線 白金台駅 徒歩8分 東京都港区白金台2丁目 | 詳細を見る | |
マンション ラティエラ中野新井(1K/5階) | |||||||
![]() | 15.6万円 1万円 | 15.6万円 なし | 1K 25.36m2 | 築1年 | 中央本線 中野駅(東京) 徒歩10分 東京都中野区新井1丁目 | 詳細を見る | |
マンション ライオンズプラザ初台グランフォート(1LDK/8階) | |||||||
![]() | 21.5万円 1.5万円 | なし なし | 1LDK 55.3m2 | 築23年 | 京王新線 初台駅 徒歩5分 京王新線 幡ケ谷駅 徒歩9分 小田急線 参宮橋駅 徒歩15分 東京都渋谷区初台 | 詳細を見る | |
マンション リーガランド早稲田鶴巻町(1LDK/1階) | |||||||
![]() | 18.5万円 2万円 | なし なし | 1LDK 52.94m2 | 築5年 | 東京メトロ東西線 早稲田駅(メトロ) 徒歩10分 東京メトロ有楽町線 江戸川橋駅 徒歩10分 東京メトロ東西線 神楽坂駅 徒歩16分 東京都新宿区早稲田鶴巻町 | 詳細を見る | |
マンション TRADIS大塚(1DK/5階) | |||||||
![]() | 17.2万円 1万円 | なし なし | 1DK 30.62m2 | 築1年 | 都電荒川線 巣鴨新田駅 徒歩5分 JR山手線 大塚駅(東京) 徒歩8分 東武東上線 北池袋駅 徒歩13分 東京都豊島区北大塚 | 詳細を見る | |








