賃貸マンション
藤和新宿御苑コープの賃貸物件情報(1LDK/10階)
| 家賃 | 管理費等 | 敷金 | 礼金 | 間取り | 専有面積 |
|---|---|---|---|---|---|
| 19万円 | 8,000円 | 38万円 | 19万円 | 1LDK | 40.8m2 |
入居決定でお祝い金最大100,000円
- 保証金
- -
- 償却・敷引
- -
- 築年数
- 築43年
- 所在階
- 10階
- 向き
- 南
Point
事務所使用相談可★新宿三丁目・新宿駅も徒歩圏内!品川駅行のバス停も目の前★室内綺麗です、ご内見ください★
提供:不動産情報プラザ 東洋珈琲(株)(SUUMO経由)

詳細情報 藤和新宿御苑コープ
物件紹介
藤和新宿御苑コープは東京メトロ丸ノ内線新宿御苑前駅から徒歩2分にあり、駅近で通勤通学に便利なマンションです。
このお部屋は2階以上に位置しているので通行人や周囲の住人からの視線が気になりにくく、建物のエントランスはオートロックがついているので防犯性が高くなっています。
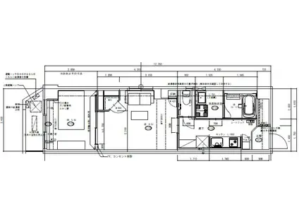
人気の南向き・フローリングのお部屋。角部屋でもあるため、周囲の居住者の生活音も気になりにくい場所です。室内にはウォークインクローゼットがありますので、たくさんの荷物も効率的に収納ができます。キッチンはシステムキッチン仕様になっていますので、お料理好きの方にもぴったり。バス・トイレは別なので、のんびりお風呂タイムも楽しめるでしょう。また、雨の日でも浴室乾燥機を使えば、お洗濯も問題ありません。
建物にはエレベーターがついているので、重い荷物があっても安心。
このお部屋は2階以上に位置しているので通行人や周囲の住人からの視線が気になりにくく、建物のエントランスはオートロックがついているので防犯性が高くなっています。
人気の南向き・フローリングのお部屋。角部屋でもあるため、周囲の居住者の生活音も気になりにくい場所です。室内にはウォークインクローゼットがありますので、たくさんの荷物も効率的に収納ができます。キッチンはシステムキッチン仕様になっていますので、お料理好きの方にもぴったり。バス・トイレは別なので、のんびりお風呂タイムも楽しめるでしょう。また、雨の日でも浴室乾燥機を使えば、お洗濯も問題ありません。
建物にはエレベーターがついているので、重い荷物があっても安心。
お金・契約の情報
※「-」と表示されているものは、実際は料金が発生するものもございます。詳細はお問い合わせください。
| 家賃 | 19万円 | 管理費・共益費 | 8,000円 |
|---|---|---|---|
| 敷金 | 38万円 | 礼金 | 19万円 |
| 入居決定でお祝い金最大100,000円 | |||
| 保証金 | - | 償却・敷引 | - |
| 住宅保険料 | - | 更新料 | - |
| 保証会社利用 | 必須 | 保証会社名 | - |
| 保証会社費用 | - | 保証会社備考 | 保証会社利用必 (株)エポスカード【初回保証料】総賃料の50%+【年次保証料】14000円 |
| 契約形態 | - | 契約期間 | - |
| 入居・引渡期間 | 即時 | 現況 | - |
| 入居可能条件 | 事務所可 | ||
| 契約備考 | ※オートロックは夜間のみ解約予告:2ヶ月前更新料:新賃料の1ヶ月分事務所使用の場合、賃料:21万円(税別)、保証金3ヶ月、解約予告3ヶ月前となります。事務所使用をご希望の場合は、お問い合わせ下さい。 退去時に、クリーニング費用・エアコンクリーニング費用が使用期間・使用状況にかかわらずかかります。 1LDK 事務所利用相談 普通借家2年 損保【要】 バストイレ別、バルコニー、エアコン、フローリング、浴室乾燥機、オートロック、室内洗濯置、システムキッチン、南向き、追焚機能浴室、角住戸、温水洗浄便座、エレベーター、洗面所独立、2口コンロ、即入居可、2面採光、分譲賃貸、グリル付、ウォークインクロゼット、保証人不要、全居室フローリング、2沿線利用可、ディンプルキー、1フロア2住戸、事務所相談、2駅利用可、3駅以上利用可、バス停徒歩3分以内、敷地内ごみ置き場、都市ガス、南面バルコニー、IT重説対応物件 | ||
部屋の情報
| 間取り | 1LDK | 専有面積 | 40.8m2 |
|---|---|---|---|
| 所在階 / 向き | 10階 / 南 | バルコニー面積 | - |
| 水道 / ガス | - | ||
| 設備 | バス・トイレ別、2階以上、オートロック、浴室乾燥機、ウォークインクローゼット、追い焚き、システムキッチン、エアコン、エレベーター、温水洗浄便座、南向き、角部屋、バルコニー、フローリング、洗髪洗面化粧台、2口コンロ、洗濯機:室内 | ||
| 当社物件ID | 159995555 | ||
建物の情報
| 建物名 | 藤和新宿御苑コープ | ||
|---|---|---|---|
| 所在地 | 東京都新宿区新宿 | ||
| 交通 | 東京メトロ丸ノ内線 新宿御苑前駅 徒歩2分 都営新宿線 新宿三丁目駅 徒歩6分 JR山手線 新宿駅 徒歩12分 | ||
| 階数 | 11階建 | 総戸数 | - |
| 築年月 | 1983年03月 / 築43年 | エレベーター | あり |
| 駐車場 | なし | バイク置き場 | - |
| 駐輪場 | - | 管理人/管理会社 | - |
| 周辺環境 | その他 まいばすけっと新宿1丁目店(スーパー)まで358m その他 クック-Y新宿店(スーパー)まで347m その他 サンマルクカフェ新宿御苑前店(飲食店)まで134m その他 スギ薬局新宿御苑店(ドラッグストア)まで246m その他 ローソン新宿御苑中央店(コンビニ)まで93m その他 新宿一郵便局(郵便局)まで146m | ||
| 建物種別 | マンション | 建物構造 | SRC(鉄骨鉄筋コンクリート) |
この部屋の取扱い不動産会社
| 会社名 | 不動産情報プラザ 東洋珈琲(株)(SUUMO経由) | ||
|---|---|---|---|
| 所在地 | 東京都新宿区新宿2-8-1 セブンビル | 交通 | - |
| 営業時間 | 10:00~18:00 | 定休日 | 土日祝 |
| 免許番号 | 東京都知事57712 | 取引態様 | 仲介 |
| 不動産会社管理番号 | 100476293582 | 当社管理番号 | 89 |
| 所属団体 | (公社)東京都宅地建物取引業協会会員 | ||
| 公正取引協議会 | (公社)首都圏不動産公正取引協議会加盟 | ||
| 取扱い物件情報 | 物件詳細へ | ||
※各種情報と現状に差異がある場合は、現状優先となります。問い合わせをすることで、より詳しい条件、情報を確認する事ができます。
提供:不動産情報プラザ 東洋珈琲(株)(SUUMO経由)
この物件が気になったら掲載期限まであと11日
藤和新宿御苑コープに条件(家賃・エリア)が近い物件一覧
| 写真 | 家賃 管理費等 | 敷金 礼金 | 間取り 専有面積 | 築年数 | 最寄り駅 所在地 | キープ | 詳細 |
|---|---|---|---|---|---|---|---|
マンション チェスターコート御茶ノ水(1K/13階) | |||||||
![]() | 15.5万円 1万円 | なし なし | 1K 26.7m2 | 築19年 | 東京都新宿線 小川町駅(東京) 徒歩3分 東京地下鉄千代田線 新御茶ノ水駅 徒歩5分 東京地下鉄丸ノ内線 淡路町駅 徒歩6分 東京都千代田区神田小川町3丁目 | 詳細を見る | |
マンション プレール・ドゥーク文京湯島(1K/11階) | |||||||
![]() | 12.5万円 1万円 | なし 12.5万円 | 1K 26.22m2 | 築5年 | 東京地下鉄千代田線 湯島駅 徒歩1分 東京都大江戸線 上野御徒町駅 徒歩5分 東京地下鉄銀座線 上野広小路駅 徒歩5分 東京都文京区湯島3丁目 | 詳細を見る | |
マンション アーバンプレミア秋葉原(1K/9階) | |||||||
![]() | 14.9万円 1万円 | 14.9万円 なし | 1K 27.34m2 | 築6年 | 東京地下鉄銀座線 末広町駅(東京) 徒歩2分 山手線 秋葉原駅 徒歩10分 東京都千代田区外神田6丁目 | 詳細を見る | |
マンション ジェノヴィア新大塚(1DK/2階) | |||||||
![]() | 13.9万円 1.5万円 | なし なし | 1DK 29.56m2 | 築5年 | 東京地下鉄丸ノ内線 新大塚駅 徒歩9分 東京地下鉄丸ノ内線 茗荷谷駅 徒歩10分 東京地下鉄有楽町線 護国寺駅 徒歩12分 東京都文京区大塚4丁目 | 詳細を見る | |
マンション ジェノヴィア文京千駄木(1LDK/8階) | |||||||
![]() | 19.9万円 1.5万円 | なし なし | 1LDK 41.15m2 | 築1年 | 山手線 田端駅 徒歩10分 山手線 西日暮里駅 徒歩10分 東京地下鉄千代田線 千駄木駅 徒歩11分 東京都文京区千駄木4丁目 | 詳細を見る | |
マンション コスモリード文京千駄木(1DK/5階) | |||||||
![]() | 13万円 1.5万円 | 13万円 なし | 1DK 36.2m2 | 築36年 | 東京地下鉄千代田線 千駄木駅 徒歩3分 東京地下鉄南北線 本駒込駅 徒歩10分 山手線 西日暮里駅 徒歩16分 東京都文京区千駄木1丁目 | 詳細を見る | |
マンション パークアクシス御茶ノ水ステージ(1K/8階) | |||||||
![]() | 12.9万円 8,000円 | 12.9万円 12.9万円 | 1K 22.79m2 | 築20年 | 東京地下鉄銀座線 末広町駅(東京) 徒歩6分 中央本線 御茶ノ水駅 徒歩8分 山手線 秋葉原駅 徒歩13分 東京都文京区湯島3丁目 | 詳細を見る | |
マンション レジディア文京千石(1DK/12階) | |||||||
![]() | 15.2万円 1万円 | 15.2万円 なし | 1DK 30.2m2 | 築23年 | 東京都三田線 千石駅 徒歩3分 山手線 巣鴨駅 徒歩7分 東京地下鉄南北線 駒込駅 徒歩12分 東京都文京区千石4丁目 | 詳細を見る | |









