賃貸マンション
ノルテ3条通の賃貸物件情報(1LDK/11階)
| 家賃 | 管理費等 | 敷金 | 礼金 | 間取り | 専有面積 |
|---|---|---|---|---|---|
| 5.4万円 | 3,000円 | 5.4万円 | なし | 1LDK | 40.16m2 |
入居決定でお祝い金最大100,000円
Point
都市ガスなので経済的♪♪中心部・SRC造の物件です☆
提供:アパマンショップ旭川駅前店

詳細情報 ノルテ3条通
物件紹介
ノルテ3条通は函館本線旭川駅から徒歩11分にあるマンションです。
このお部屋は2階以上に位置しているので、通行人や周囲の住人からの視線が気になりにくく、防犯面でも安心。建物のエントランスはオートロックがついており、インターホンにはTVモニタもついているため、相手の顔を確認してから来客対応することができます。
フローリングのお部屋なのでお掃除もラクラク。バス・トイレ別の仕様で、のんびりお風呂タイムも楽しめます。
通信設備面ではBSアンテナがありCATVにも対応しているので、おうち時間も充実するでしょう(別途工事、契約料が必要な場合あり)。
また、こちらはガス暖房が可能な物件。ガスファンヒーターの使用も考えている方にはおすすめです。建物にはエレベーターがついているので、重い荷物があっても安心。
このお部屋は2階以上に位置しているので、通行人や周囲の住人からの視線が気になりにくく、防犯面でも安心。建物のエントランスはオートロックがついており、インターホンにはTVモニタもついているため、相手の顔を確認してから来客対応することができます。
フローリングのお部屋なのでお掃除もラクラク。バス・トイレ別の仕様で、のんびりお風呂タイムも楽しめます。
通信設備面ではBSアンテナがありCATVにも対応しているので、おうち時間も充実するでしょう(別途工事、契約料が必要な場合あり)。
また、こちらはガス暖房が可能な物件。ガスファンヒーターの使用も考えている方にはおすすめです。建物にはエレベーターがついているので、重い荷物があっても安心。
お金・契約の情報
※「-」と表示されているものは、実際は料金が発生するものもございます。詳細はお問い合わせください。
| 家賃 | 5.4万円 | 管理費・共益費 | 3,000円 |
|---|---|---|---|
| 敷金 | 5.4万円 | 礼金 | なし |
| 入居決定でお祝い金最大100,000円 | |||
| 保証金 | - | 償却・敷引 | - |
| 住宅保険料 | 1.8万円(2年) | 更新料 | - |
| 保証会社利用 | 必須 | 保証会社名 | 株式会社オリコフォレントインシュア |
| 保証会社費用 | - | 保証会社備考 | 【初回保証料】月額賃料合計額の50%/【月額保証料】1.5%【更新保証料】10.000円/年 |
| 契約形態 | - | 契約期間 | 2年 |
| 入居・引渡期間 | 相談 | 現況 | - |
| 契約備考 | 更新事務手数料 5500円/エアコン付(暖房機能あり/秋ぐらいまで使用可能) 安心サービス24 1650円/室内清掃除菌消臭料 28600円、[退去時費用:ストーブ分解清掃料 22,000円 ※故意・過失等別途実費] | ||
部屋の情報
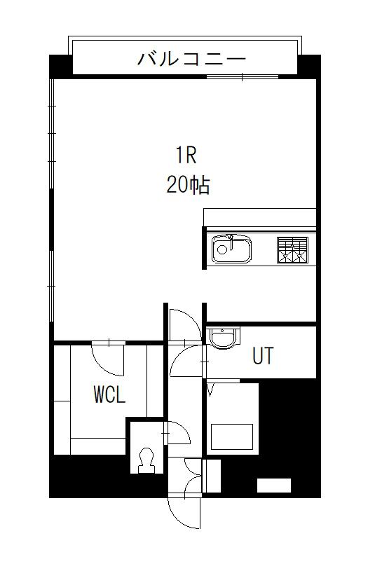
| 間取り | 1LDK | 専有面積 | 40.16m2 |
|---|---|---|---|
| 間取り詳細 | LD(11帖)、K(2帖)、洋室(6帖) | ||
| 所在階 / 向き | 11階 / - | バルコニー面積 | - |
| 水道 / ガス | ガス【都市】 | ||
| 設備 | バス・トイレ別、オートロック、テレビドアホン、エレベーター、温水洗浄便座、バルコニー、フローリング、CATV、BSアンテナ、シャワー、給湯、ガス暖房、洗濯機:室内 | ||
| 当社物件ID | 18583442 | ||
建物の情報
| 建物名 | ノルテ3条通 | ||
|---|---|---|---|
| 所在地 | 北海道旭川市三条通9丁目 | ||
| 交通 | 函館本線 旭川駅 徒歩11分 | ||
| 階数 | 11階建 | 総戸数 | 32戸 |
| 築年月 | 1991年08月 / 築35年 | エレベーター | あり |
| 駐車場 | ご確認ください | バイク置き場 | - |
| 駐輪場 | あり | 管理人/管理会社 | - |
| 建物種別 | マンション | 建物構造 | SRC(鉄骨鉄筋コンクリート) |
この部屋の取扱い不動産会社
| 会社名 | アパマンショップ旭川駅前店 | ||
|---|---|---|---|
| 所在地 | 北海道旭川市宮下通9丁目 780-1日宝旭川駅前第一ビル・1階 | 交通 | 函館本線旭川から徒歩3分 |
| 営業時間 | 09:30〜18:00(4〜12月木曜定休) | 定休日 | 火曜日、木曜日 |
| 免許番号 | 北海道知事上川(11)660 | 取引態様 | 仲介 |
| 不動産会社管理番号 | 105053302 | 当社管理番号 | 4 |
| 所属団体 | (公社)北海道宅地建物取引業協会 | ||
| 公正取引協議会 | (一社) 北海道不動産公正取引協議会加盟 | ||
| 取扱い物件情報 | 物件詳細へ | ||
※各種情報と現状に差異がある場合は、現状優先となります。問い合わせをすることで、より詳しい条件、情報を確認する事ができます。
提供:アパマンショップ旭川駅前店
この物件が気になったら掲載期限まであと13日
ノルテ3条通に条件(家賃・エリア)が近い物件一覧
| 写真 | 家賃 管理費等 | 敷金 礼金 | 間取り 専有面積 | 築年数 | 最寄り駅 所在地 | キープ | 詳細 |
|---|---|---|---|---|---|---|---|
マンション ユニベール(1DK/8階) | |||||||
![]() | 3.5万円 3,000円 | 3.5万円 なし | 1DK 32.72m2 | 築30年 | 函館本線 旭川駅 徒歩34分 北海道旭川市旭町一条3丁目 | 詳細を見る | |
アパート アイランドハイツ永山(2LDK/2階) | |||||||
![]() | 3.8万円 2,000円 | 3.8万円 なし | 2LDK 51.84m2 | 築29年 | JR石北本線 南永山駅 徒歩20分 JR函館本線 旭川駅 徒歩88分 北海道旭川市永山九条 | 詳細を見る | |
アパート コーポうめの(3LDK/2階) | |||||||
![]() | 5万円 なし | なし なし | 3LDK 74.34m2 | 築37年 | 宗谷本線 永山駅 徒歩60分 北海道旭川市末広三条8丁目 | 詳細を見る | |
アパート レオパレスオーキッドⅡ(1K/2階) | |||||||
![]() | 4.3万円 6,500円 | なし なし | 1K 23.18m2 | 築22年 | 北海道旭川市四条通24丁目 | 詳細を見る | |
アパート レオパレスミラクⅢ(1K/2階) | |||||||
![]() | 5.7万円 4,000円 | なし 5.7万円 | 1K 23.18m2 | 築18年 | 宗谷本線 永山駅 徒歩14分 北海道旭川市永山北二条11丁目 | 詳細を見る | |
マンション ルチア116(1LDK/2階) | |||||||
![]() | 4.5万円 なし | 4.5万円 なし | 1LDK 49.05m2 | 築29年 | 石北本線 旭川四条駅 徒歩7分 北海道旭川市一条通16丁目 | 詳細を見る | |
アパート シャトル58(2LDK/2階) | |||||||
![]() | 5万円 なし | 5万円 なし | 2LDK 62.37m2 | 築27年 | 函館本線 近文駅 徒歩35分 北海道旭川市五条西8丁目 | 詳細を見る | |
アパート からふるやA(2LDK/1階) | |||||||
![]() | 5.5万円 なし | なし なし | 2LDK 72.5m2 | 築21年 | JR石北本線 南永山駅 徒歩29分 JR石北本線 新旭川駅 徒歩30分 JR宗谷本線 永山駅 徒歩53分 北海道旭川市流通団地二条 | 詳細を見る | |









