現金
最大
100,000

入居決定で対象者全員に
プレゼント!

12/31までのお問い合わせ限定

詳細はこちら

賃貸マンション

ノルテ3条通の賃貸物件情報

ノルテ3条通の空室一覧(全5件)

チェックした物件をまとめて
問合わせ物件写真枚数所在階
方位
間取り
専有面積
家賃
管理費等
敷金
礼金
詳細
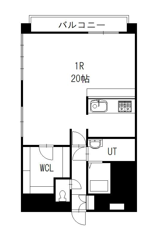
23枚〜11階

ワンルーム
49.4m2
6.2万円
4,000円
なし
なし
詳細を見る
22枚〜11階

1LDK
40.16m2
5.4万円
3,000円
5.4万円
なし
詳細を見る
4枚〜10階

1LDK
40.16m2
5.3万円
3,000円
5.3万円
なし
詳細を見る
25枚〜7階

1LDK
40.16m2
5.2万円
3,000円
5.2万円
なし
詳細を見る
24枚〜3階

1LDK
40.16m2
5万円
3,000円
5万円
なし
詳細を見る
チェックした物件をまとめて

ノルテ3条通の特徴

所在地
北海道 旭川市三条通9丁目
交通
宗谷本線 旭川駅 徒歩15分
特徴・設備
エレベーター、オートロック
建階
11階建
築年月
1991年10月 / 築35年
建物構造
マンション/RC(鉄筋コンクリート)
総戸数
32戸
エレベーター
あり
管理会社
-
駐車場
ご確認ください
駐輪場
あり
バイク置き場
-
建物種別
マンション
設備
オートロック、エレベーター、CATV、BSアンテナ

ノルテ3条通によく似たおすすめの物件

ノルテ3条通の周辺エリアにある新着物件

現金
最大
100,000

入居決定で対象者全員に
プレゼント!

12/31までのお問い合わせ限定

詳細はこちら

12/31までの問い合わせ限定
入居決定で対象者全員に現金最大
100,000円プレゼント!
賃貸物件・中古不動産住宅情報のDOOR不動産
【豊富な新着物件情報】でお部屋探しをサポート!
掘り出し物の物件は早いもの勝ち。理想のお部屋を見逃さないために、おススメです。