賃貸マンション
リバーシティ21 イーストタワーズ 10棟の賃貸物件情報(ワンルーム/35階)
| 家賃 | 管理費等 | 敷金 | 礼金 | 間取り | 専有面積 |
|---|---|---|---|---|---|
| 18.9万円 | 1万円 | 18.9万円 | 18.9万円 | ワンルーム | 44.97m2 |
入居決定でお祝い金最大100,000円
- 保証金
- -
- 償却・敷引
- -
- 築年数
- 築35年
- 所在階
- 35階
- 向き
- 西
Point
オンライン内見・契約実施中! 初期費用クレカ決済もご相談ください◎お部屋探しはピアホームにお任せください!
提供:(株)CreaVision(SUUMO経由)

詳細情報 リバーシティ21 イーストタワーズ 10棟
物件紹介
リバーシティ21 イーストタワーズ 10棟は東京メトロ有楽町線月島駅から徒歩5分にあり、駅近で通勤通学に便利なマンションです。
このお部屋は2階以上に位置しているので、通行人や周囲の住人からの視線が気になりにくく、防犯面でも安心。建物のエントランスはオートロックがついており、インターホンにはTVモニタもついているため、相手の顔を確認してから来客対応することができます。
フローリングのお部屋なのでお掃除もラクラク。キッチンはシステムキッチン仕様になっていますので、お料理好きの方にもぴったり。バス・トイレは別なので、のんびりお風呂タイムも楽しめるでしょう。また、雨の日でも浴室乾燥機を使えば、お洗濯も問題ありません。
通信設備面では、インターネット接続が可能です。また、BSアンテナがありCATVにも対応しているので、おうち時間も充実するでしょう(別途工事、契約料が必要な場合あり)。
床暖房があり、冬も足元から暖かく快適に過ごすことができます。建物にはエレベーターがついているので、重い荷物があっても安心。共用部には宅配ボックスが設定されているので、不在の時にも荷物を受け取ることができます。
このお部屋は2階以上に位置しているので、通行人や周囲の住人からの視線が気になりにくく、防犯面でも安心。建物のエントランスはオートロックがついており、インターホンにはTVモニタもついているため、相手の顔を確認してから来客対応することができます。
フローリングのお部屋なのでお掃除もラクラク。キッチンはシステムキッチン仕様になっていますので、お料理好きの方にもぴったり。バス・トイレは別なので、のんびりお風呂タイムも楽しめるでしょう。また、雨の日でも浴室乾燥機を使えば、お洗濯も問題ありません。
通信設備面では、インターネット接続が可能です。また、BSアンテナがありCATVにも対応しているので、おうち時間も充実するでしょう(別途工事、契約料が必要な場合あり)。
床暖房があり、冬も足元から暖かく快適に過ごすことができます。建物にはエレベーターがついているので、重い荷物があっても安心。共用部には宅配ボックスが設定されているので、不在の時にも荷物を受け取ることができます。
お金・契約の情報
※「-」と表示されているものは、実際は料金が発生するものもございます。詳細はお問い合わせください。
| 家賃 | 18.9万円 | 管理費・共益費 | 1万円 |
|---|---|---|---|
| 敷金 | 18.9万円 | 礼金 | 18.9万円 |
| 入居決定でお祝い金最大100,000円 | |||
| 保証金 | - | 償却・敷引 | - |
| 住宅保険料 | - | 更新料 | - |
| 保証会社利用 | 必須 | 保証会社名 | - |
| 保証会社費用 | - | 保証会社備考 | 保証会社利用必 ■ケン賃貸保証■ 初回保証料40%+月次1% |
| 契約形態 | - | 契約期間 | - |
| 入居・引渡期間 | - | 現況 | - |
| 契約備考 | 通勤管理/※短期解約時、違約金が発生する場合がございます。※同タイプ・別階の内観写真を掲載している場合があります。図面と現況が異なる場合は現況を優先いたします。 合計1.65万円(内訳:鍵交換費用:16500円) エアコン清掃費:11000円/基退去時清掃費:1320円/平米 ワンルーム 二人入居可 損保【2.7万円2年】 バストイレ別、バルコニー、エアコン、クロゼット、フローリング、TVインターホン、浴室乾燥機、オートロック、室内洗濯置、陽当り良好、シューズボックス、システムキッチン、追焚機能浴室、温水洗浄便座、エレベーター、洗面所独立、2口コンロ、宅配ボックス、光ファイバー、3口以上コンロ、防犯カメラ、IHクッキングヒーター、オートバス、保証人不要、二人入居相談、全居室フローリング、エアコン全室、トランクルーム、耐震構造、24時間ゴミ出し可、敷地内ごみ置き場、日勤管理、都市ガス、BS、初期費用カード決済可 入居日:'26年1月下旬 | ||
部屋の情報
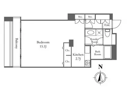
| 間取り | ワンルーム | 専有面積 | 44.97m2 |
|---|---|---|---|
| 所在階 / 向き | 35階 / 西 | バルコニー面積 | - |
| 水道 / ガス | - | ||
| 設備 | バス・トイレ別、2階以上、オートロック、テレビドアホン、宅配ボックス、浴室乾燥機、追い焚き、インターネット対応、システムキッチン、エアコン、エレベーター、温水洗浄便座、バルコニー、フローリング、トランクルーム、洗髪洗面化粧台、2口コンロ、コンロ:IH、BSアンテナ、洗濯機:室内 | ||
| 当社物件ID | 45084624 | ||
建物の情報
| 建物名 | リバーシティ21 イーストタワーズ 10棟 | ||
|---|---|---|---|
| 所在地 | 東京都中央区佃 | ||
| 交通 | 東京メトロ有楽町線 月島駅 徒歩7分 JR京葉線 越中島駅 徒歩13分 東京メトロ東西線 門前仲町駅 徒歩20分 | ||
| 階数 | 地下2地上37階建 | 総戸数 | - |
| 築年月 | 1991年03月 / 築35年 | エレベーター | あり |
| 駐車場 | 空有 36300円 | バイク置き場 | - |
| 駐輪場 | - | 管理人/管理会社 | - |
| 周辺環境 | その他 マルエツ プチ 八丁堀店(スーパー)まで1243m その他 石川島記念病院(病院)まで160m その他 ローソン 佃二丁目店(コンビニ)まで77m その他 佃島小学校(小学校)まで192m その他 佃中学校(中学校)まで148m | ||
| 建物種別 | マンション | 建物構造 | SRC(鉄骨鉄筋コンクリート) |
この部屋の取扱い不動産会社
| 会社名 | ピアホーム広尾駅前店(株)PH.C(SUUMO経由) | ||
|---|---|---|---|
| 所在地 | 東京都港区南麻布5-15-11広尾セオハウス2階 | 交通 | - |
| 営業時間 | 9:00~18:30 | 定休日 | 無し |
| 免許番号 | 東京都知事106525 | 取引態様 | 仲介 |
| 不動産会社管理番号 | 100480007391 | 当社管理番号 | 89 |
| 所属団体 | (公社)東京都宅地建物取引業協会会員 | ||
| 公正取引協議会 | (公社)首都圏不動産公正取引協議会加盟 | ||
| 取扱い物件情報 | 物件詳細へ | ||
※各種情報と現状に差異がある場合は、現状優先となります。問い合わせをすることで、より詳しい条件、情報を確認する事ができます。
提供:ピアホーム広尾駅前店(株)PH.C(SUUMO経由)
この物件が気になったら掲載期限まであと10日
リバーシティ21 イーストタワーズ 10棟に条件(家賃・エリア)が近い物件一覧
| 写真 | 家賃 管理費等 | 敷金 礼金 | 間取り 専有面積 | 築年数 | 最寄り駅 所在地 | キープ | 詳細 |
|---|---|---|---|---|---|---|---|
マンション ZOOM東陽町(1K/15階) | |||||||
![]() | 12万円 1万円 | 12万円 12万円 | 1K 30.22m2 | 築10年 | 東京地下鉄東西線 東陽町駅 徒歩5分 東京都江東区東陽3丁目 | 詳細を見る | |
マンション ベルフェリーク木場(1K/3階) | |||||||
![]() | 11.6万円 1万円 | 11.6万円 11.6万円 | 1K 25.19m2 | 築9年 | 東京地下鉄東西線 木場駅 徒歩6分 東京地下鉄東西線 東陽町駅 徒歩10分 東京都江東区東陽1丁目 | 詳細を見る | |
マンション ビエラコート日本橋久松町(1LDK/4階) | |||||||
![]() | 22.1万円 1.5万円 | 22.1万円 なし | 1LDK 42.44m2 | 築2年 | 東京地下鉄日比谷線 人形町駅 徒歩5分 東京都浅草線 東日本橋駅 徒歩5分 東京都新宿線 馬喰横山駅 徒歩5分 東京都中央区日本橋久松町 | 詳細を見る | |
マンション パークフィルヴェール(1LDK/14階) | |||||||
![]() | 20.5万円 1万円 | 20.5万円 20.5万円 | 1LDK 44.71m2 | 築13年 | 東京都大江戸線 両国駅 徒歩4分 総武・中央緩行線 両国駅 徒歩8分 東京都墨田区緑1丁目 | 詳細を見る | |
マンション オンズマリーナ浅草(1K/9階) | |||||||
![]() | 13万円 1.2万円 | なし 13万円 | 1K 30.02m2 | 築3年 | 東京地下鉄日比谷線 入谷駅(東京) 徒歩7分 つくばエクスプレス 浅草駅(つくばEXP) 徒歩9分 東京都台東区千束2丁目 | 詳細を見る | |
マンション リテラス押上(ワンルーム/4階) | |||||||
![]() | 12.2万円 1.2万円 | なし なし | ワンルーム 25.32m2 | 築5年 | 東京地下鉄半蔵門線 押上駅 徒歩1分 東京都浅草線 押上駅 徒歩1分 東京都墨田区業平4丁目 | 詳細を見る | |
マンション S-RESIDENCE両国AVENUE(1K/5階) | |||||||
![]() | 11.5万円 1万円 | 11.5万円 11.5万円 | 1K 25.15m2 | 築6年 | 総武・中央緩行線 両国駅 徒歩6分 東京都大江戸線 森下駅(東京) 徒歩6分 東京都大江戸線 両国駅 徒歩6分 東京都墨田区緑1丁目 | 詳細を見る | |
マンション NIDO MINOWA(1LDK/10階) | |||||||
![]() | 16.3万円 1.5万円 | なし なし | 1LDK 35.2m2 | 築1年 | 東京都荒川線 三ノ輪橋駅 徒歩4分 東京地下鉄日比谷線 三ノ輪駅 徒歩6分 常磐線 南千住駅 徒歩15分 東京都台東区三ノ輪1丁目 | 詳細を見る | |








