賃貸マンション
NIDO MINOWAの賃貸物件情報(1LDK/10階)
| 家賃 | 管理費等 | 敷金 | 礼金 | 間取り | 専有面積 |
|---|---|---|---|---|---|
| 16.5万円 | 1.5万円 | なし | なし | 1LDK | 35.2m2 |
入居決定でお祝い金最大100,000円
- 保証金
- -
- 償却・敷引
- -
- 築年数
- 新築(築1年)
- 所在階
- 10階
- 向き
- 西
Point
仲手無料 敷金礼金不要 宅配BOX ネット無料
提供:株式会社サンコーホーム(賃貸スモッカ経由)

詳細情報 NIDO MINOWA
物件紹介
NIDO MINOWAは東京都荒川線三ノ輪橋駅から徒歩4分にあり、駅近で通勤通学に便利なマンションです。
このお部屋は2階以上に位置しているので通行人や周囲の住人からの視線が気になりにくく、建物のエントランスはオートロックがついているので防犯性が高くなっています。
フローリングのお部屋なのでお掃除もラクラク。キッチンはシステムキッチン仕様になっていますので、お料理好きの方にもぴったり。バス・トイレは別なので、のんびりお風呂タイムも楽しめるでしょう。また、雨の日でも浴室乾燥機を使えば、お洗濯も問題ありません。
通信設備面では、インターネット接続が可能です。また、BSアンテナ・CSアンテナもありますので、おうち時間も充実するでしょう(別途工事、契約料が必要な場合あり)。
建物にはエレベーターがついているので、重い荷物があっても安心。共用部には宅配ボックスが設定されているので、不在の時にも荷物を受け取ることができます。
このお部屋は2階以上に位置しているので通行人や周囲の住人からの視線が気になりにくく、建物のエントランスはオートロックがついているので防犯性が高くなっています。
フローリングのお部屋なのでお掃除もラクラク。キッチンはシステムキッチン仕様になっていますので、お料理好きの方にもぴったり。バス・トイレは別なので、のんびりお風呂タイムも楽しめるでしょう。また、雨の日でも浴室乾燥機を使えば、お洗濯も問題ありません。
通信設備面では、インターネット接続が可能です。また、BSアンテナ・CSアンテナもありますので、おうち時間も充実するでしょう(別途工事、契約料が必要な場合あり)。
建物にはエレベーターがついているので、重い荷物があっても安心。共用部には宅配ボックスが設定されているので、不在の時にも荷物を受け取ることができます。
お金・契約の情報
※「-」と表示されているものは、実際は料金が発生するものもございます。詳細はお問い合わせください。
| 家賃 | 16.5万円 | 管理費・共益費 | 1.5万円 |
|---|---|---|---|
| 敷金 | なし | 礼金 | なし |
| 入居決定でお祝い金最大100,000円 | |||
| 保証金 | - | 償却・敷引 | - |
| 住宅保険料 | 住宅保険料あり | 更新料 | - |
| 契約形態 | - | 契約期間 | 2年 |
| 入居・引渡期間 | 即時 | 現況 | 空室 |
| 契約備考 | 初期費用のクレジットカード払いや各種分割払い可能です。諸条件ご相談ください。その他インターネット掲載物件は当店で併せてご紹介可能です Goodプレミアムα(24Hサポートのみ):16,500円 Goodプレミアムα登録料:3,300円 更新料:165,000円 保証会社:利用可 総賃料の50% その他設備/条件:防犯カメラ、コンロ2口以上、独立洗面台、TVドアホン、即入居可 | ||
部屋の情報
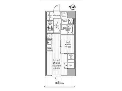
| 間取り | 1LDK | 専有面積 | 35.2m2 |
|---|---|---|---|
| 所在階 / 向き | 10階 / 西 | バルコニー面積 | - |
| 水道 / ガス | ガス【都市】 | ||
| 設備 | バス・トイレ別、2階以上、オートロック、宅配ボックス、浴室乾燥機、追い焚き、インターネット対応、システムキッチン、エアコン、エレベーター、温水洗浄便座、バルコニー、フローリング、コンロ:ガス、CSアンテナ、BSアンテナ、洗濯機:室内、タイル張り | ||
| 当社物件ID | 160000498 | ||
建物の情報
| 建物名 | NIDO MINOWA | ||
|---|---|---|---|
| 所在地 | 東京都台東区三ノ輪1丁目 | ||
| 交通 | 東京都荒川線 三ノ輪橋駅 徒歩4分 東京地下鉄日比谷線 三ノ輪駅 徒歩6分 常磐線 南千住駅 徒歩15分 | ||
| 階数 | 11階建 | 総戸数 | - |
| 築年月 | 2025年07月 / 新築(築1年) | エレベーター | あり |
| 駐車場 | - | バイク置き場 | - |
| 駐輪場 | - | 管理人/管理会社 | - |
| 建物種別 | マンション | 建物構造 | RC(鉄筋コンクリート) |
この部屋の取扱い不動産会社
| 会社名 | 株式会社サンコーホーム(賃貸スモッカ経由) | ||
|---|---|---|---|
| 所在地 | 東京都台東区上野5丁目23-8 キューアス御徒町ビル3F | 交通 | - |
| 営業時間 | - | 定休日 | - |
| 免許番号 | 東京都知事免許(2)第96594号 | 取引態様 | 仲介 |
| 不動産会社管理番号 | sankohome_120160010129331 | 当社管理番号 | 463 |
| 所属団体 | (公社)全国宅地建物取引業協会連合会\n公益社団法人首都圏不動産公正取引協議会 | ||
| 公正取引協議会 | (公社)全国宅地建物取引業保証協会 | ||
| 取扱い物件情報 | 物件詳細へ | ||
※各種情報と現状に差異がある場合は、現状優先となります。問い合わせをすることで、より詳しい条件、情報を確認する事ができます。
提供:株式会社サンコーホーム(賃貸スモッカ経由)
この物件が気になったら掲載期限まであと6日
NIDO MINOWAに条件(家賃・エリア)が近い物件一覧
| 写真 | 家賃 管理費等 | 敷金 礼金 | 間取り 専有面積 | 築年数 | 最寄り駅 所在地 | キープ | 詳細 |
|---|---|---|---|---|---|---|---|
マンション ドゥーエ入谷2(1LDK/5階) | |||||||
![]() | 14万円 1.5万円 | なし なし | 1LDK 28.43m2 | 築3年 | 東京地下鉄日比谷線 入谷駅(東京) 徒歩3分 山手線 鶯谷駅 徒歩11分 京浜東北・根岸線 鶯谷駅 徒歩11分 東京都台東区入谷1丁目 | 詳細を見る | |
マンション パークアクシス上野三丁目(1LDK/10階) | |||||||
![]() | 19.9万円 1.2万円 | 19.9万円 なし | 1LDK 35.9m2 | 築12年 | 山手線 御徒町駅 徒歩3分 東京地下鉄銀座線 上野広小路駅 徒歩4分 東京地下鉄日比谷線 仲御徒町駅 徒歩5分 東京都台東区上野3丁目 | 詳細を見る | |
マンション HAUS FRIEDE(1LDK/2階) | |||||||
![]() | 15.6万円 8,000円 | 7.8万円 23.4万円 | 1LDK 46.92m2 | 築6年 | 都営新宿線 菊川駅(東京) 徒歩6分 東京メトロ半蔵門線 住吉駅(東京) 徒歩8分 JR総武線 錦糸町駅 徒歩14分 東京都墨田区江東橋 | 詳細を見る | |
マンション グランデュール富士(1SLDK/6階) | |||||||
![]() | 20.7万円 8,000円 | 20.7万円 20.7万円 | 1SLDK 52.25m2 | 築6年 | 山手線 西日暮里駅 徒歩3分 東京地下鉄千代田線 西日暮里駅 徒歩3分 京浜東北・根岸線 西日暮里駅 徒歩3分 東京都荒川区西日暮里2丁目 | 詳細を見る | |
マンション J.GRAN COURT 浅草(1DK/9階) | |||||||
![]() | 13.9万円 1万円 | 13.9万円 なし | 1DK 26.26m2 | 築3年 | つくばエクスプレス 浅草駅(つくばEXP) 徒歩7分 東京地下鉄銀座線 浅草駅(東武・都営・メトロ) 徒歩8分 東京都浅草線 浅草駅(東武・都営・メトロ) 徒歩8分 東京都台東区浅草3丁目 | 詳細を見る | |
マンション ミリアレジデンス浅草橋Ⅱ(1DK/4階) | |||||||
![]() | 14.7万円 1万円 | なし なし | 1DK 25.15m2 | 築4年 | 東京都浅草線 浅草橋駅 徒歩4分 総武・中央緩行線 浅草橋駅 徒歩5分 東京都浅草線 蔵前駅 徒歩7分 東京都台東区柳橋2丁目 | 詳細を見る | |
マンション BLUROCK後楽園(1DK/11階) | |||||||
![]() | 15.3万円 1.2万円 | 15.3万円 なし | 1DK 25.01m2 | 築4年 | 東京地下鉄南北線 後楽園駅 徒歩7分 東京都三田線 春日駅(東京) 徒歩7分 東京都大江戸線 飯田橋駅 徒歩11分 東京都文京区春日1丁目 | 詳細を見る | |
マンション NOEL本郷(1K/5階) | |||||||
![]() | 12万円 7,000円 | なし 12万円 | 1K 23.28m2 | 築8年 | 総武・中央緩行線 水道橋駅 徒歩4分 東京都三田線 水道橋駅 徒歩4分 東京地下鉄丸ノ内線 本郷三丁目駅 徒歩5分 東京都文京区本郷2丁目 | 詳細を見る | |








