賃貸アパート
JACK HOSOKOMEIの賃貸物件情報(1LDK/3階)
| 家賃 | 管理費等 | 敷金 | 礼金 | 間取り | 専有面積 |
|---|---|---|---|---|---|
| 7.05万円 | 3,500円 | なし | 7.05万円 | 1LDK | 29.99m2 |
入居決定でお祝い金最大100,000円
- 保証金
- -
- 償却・敷引
- -
- 築年数
- 新築
- 所在階
- 3階
- 向き
- 西
Point
オートロック付なので女性、はじめての一人暮らしでも安心してご入居頂けます☆インターネット使用料不要なので面倒な手続き不要です◎LINE・メール・お電話でやり取り可能!
提供:スタイルエステート西支店(株)エムホームエステート(SUUMO経由)

詳細情報 JACK HOSOKOMEI
物件紹介
JACK HOSOKOMEIはあおなみ線荒子駅から徒歩8分にあり、駅近で通勤通学に便利なアパートです。
このお部屋は2階以上に位置しているので、通行人や周囲の住人からの視線が気になりにくく、防犯面でも安心。建物のエントランスはオートロックがついており、インターホンにはTVモニタもついているため、相手の顔を確認してから来客対応することができます。
おしゃれなデザイナーズ物件!人気の角部屋で周囲の居住者の生活音も気になりにくく、また、フローリングのお部屋なのでお掃除もラクラク。キッチンはシステムキッチン仕様になっていますので、お料理好きの方にもぴったり。バス・トイレは別なので、のんびりお風呂タイムも楽しめるでしょう。また、雨の日でも浴室乾燥機を使えば、お洗濯も問題ありません。
通信設備面では、インターネットが無料で使えるので、月々の出費を抑えられるのも魅力です(別途工事等が必要な場合あり)。
共用部には宅配ボックスが設定されているので、不在の時にも荷物を受け取ることができます。
このお部屋は2階以上に位置しているので、通行人や周囲の住人からの視線が気になりにくく、防犯面でも安心。建物のエントランスはオートロックがついており、インターホンにはTVモニタもついているため、相手の顔を確認してから来客対応することができます。
おしゃれなデザイナーズ物件!人気の角部屋で周囲の居住者の生活音も気になりにくく、また、フローリングのお部屋なのでお掃除もラクラク。キッチンはシステムキッチン仕様になっていますので、お料理好きの方にもぴったり。バス・トイレは別なので、のんびりお風呂タイムも楽しめるでしょう。また、雨の日でも浴室乾燥機を使えば、お洗濯も問題ありません。
通信設備面では、インターネットが無料で使えるので、月々の出費を抑えられるのも魅力です(別途工事等が必要な場合あり)。
共用部には宅配ボックスが設定されているので、不在の時にも荷物を受け取ることができます。
お金・契約の情報
※「-」と表示されているものは、実際は料金が発生するものもございます。詳細はお問い合わせください。
| 家賃 | 7.05万円 | 管理費・共益費 | 3,500円 |
|---|---|---|---|
| 敷金 | なし | 礼金 | 7.05万円 |
| 入居決定でお祝い金最大100,000円 | |||
| 保証金 | - | 償却・敷引 | - |
| 住宅保険料 | - | 更新料 | - |
| 契約形態 | - | 契約期間 | - |
| 入居・引渡期間 | - | 現況 | - |
| 契約備考 | 巡回管理/見学から契約までご来店不要でご対応可能です♪駐車場の空き状況は別途お問い合わせ下さい。 1LDK 単身者可/二人入居可 普通借家2年 バストイレ別、バルコニー、エアコン、ガスコンロ対応、クロゼット、フローリング、シャワー付洗面台、TVインターホン、浴室乾燥機、オートロック、室内洗濯置、シューズボックス、システムキッチン、追焚機能浴室、角住戸、温水洗浄便座、脱衣所、洗面所独立、洗面化粧台、2口コンロ、宅配ボックス、最上階、敷金不要、防犯カメラ、保証人不要、デザイナーズ、2沿線利用可、ネット使用料不要、築2年以内、未入居、3駅以上利用可、駅徒歩10分以内、上階無し、敷地内ごみ置き場、プロパンガス、洗面所にドア、礼金1ヶ月、IT重説対応物件、初期費用カード決済可 入居日:'26年4月下旬 | ||
部屋の情報
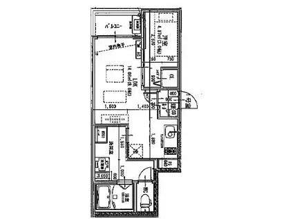
| 間取り | 1LDK | 専有面積 | 29.99m2 |
|---|---|---|---|
| 所在階 / 向き | 3階 / 西 | バルコニー面積 | - |
| 水道 / ガス | - | ||
| 設備 | バス・トイレ別、2階以上、オートロック、テレビドアホン、宅配ボックス、浴室乾燥機、追い焚き、インターネット対応、システムキッチン、エアコン、温水洗浄便座、角部屋、バルコニー、フローリング、洗髪洗面化粧台、2口コンロ、コンロ:ガス、デザイナーズ、インターネット使用料無料、洗濯機:室内 | ||
| 当社物件ID | 160325882 | ||
建物の情報
| 建物名 | JACK HOSOKOMEI | ||
|---|---|---|---|
| 所在地 | 愛知県名古屋市中川区細米町 | ||
| 交通 | あおなみ線 荒子駅 徒歩8分 あおなみ線 南荒子駅 徒歩8分 地下鉄東山線 高畑駅 徒歩16分 | ||
| 階数 | 3階建 | 総戸数 | 9戸 |
| 築年月 | 2026年04月 / 新築 | エレベーター | - |
| 駐車場 | 近隣 200m9000円 | バイク置き場 | - |
| 駐輪場 | - | 管理人/管理会社 | - |
| 周辺環境 | その他 The Big Express(ザ・ビッグエクスプレス) 荒(スーパー)まで667m その他 ミニストップ 名古屋小塚店(コンビニ)まで385m その他 スギ薬局 太平通店(ドラッグストア)まで500m その他 GRANCIA(グランシア) 太平通り店(スーパー)まで731m その他 名古屋太平通郵便局(郵便局)まで599m その他 名古屋西病院(病院)まで865m | ||
| 建物種別 | アパート | 建物構造 | 木造 |
この部屋の取扱い不動産会社
| 会社名 | スタイルエステート西支店(株)エムホームエステート(SUUMO経由) | ||
|---|---|---|---|
| 所在地 | 愛知県名古屋市中川区高畑1-235 | 交通 | - |
| 営業時間 | 10:00~20:00 | 定休日 | - |
| 免許番号 | 愛知県知事22094 | 取引態様 | 仲介 |
| 不動産会社管理番号 | 100486152372 | 当社管理番号 | 89 |
| 所属団体 | (公社)愛知県宅地建物取引業協会会員 | ||
| 公正取引協議会 | 東海不動産公正取引協議会加盟 | ||
| 取扱い物件情報 | 物件詳細へ | ||
※各種情報と現状に差異がある場合は、現状優先となります。問い合わせをすることで、より詳しい条件、情報を確認する事ができます。
提供:スタイルエステート西支店(株)エムホームエステート(SUUMO経由)
この物件が気になったら掲載期限まであと11日
JACK HOSOKOMEIに条件(家賃・エリア)が近い物件一覧
| 写真 | 家賃 管理費等 | 敷金 礼金 | 間取り 専有面積 | 築年数 | 最寄り駅 所在地 | キープ | 詳細 |
|---|---|---|---|---|---|---|---|
アパート レオパレスさくらハイツ(1K/2階) | |||||||
![]() | 6万円 7,500円 | なし 6万円 | 1K 22.35m2 | 築21年 | 関西本線 春田駅 徒歩4分 愛知県名古屋市中川区春田1丁目 | 詳細を見る | |
マンション メゾンしかた(2LDK/3階) | |||||||
![]() | 6.2万円 4,500円 | 10万円 なし | 2LDK 60.5m2 | 築38年 | 名鉄犬山線 西春駅 徒歩20分 名鉄犬山線 徳重・名古屋芸大駅 徒歩24分 愛知県北名古屋市鹿田西赤土 | 詳細を見る | |
アパート BAILA &PREMIUM(1LDK/1階) | |||||||
![]() | 6.7万円 3,000円 | なし なし | 1LDK 30.36m2 | 築1年 | 地下鉄東山線 高畑駅 徒歩7分 あおなみ線 荒子駅 徒歩10分 あおなみ線 南荒子駅 徒歩13分 愛知県名古屋市中川区荒子町塔堂屋敷 | 詳細を見る | |
アパート アムールII(1LDK/2階) | |||||||
![]() | 6.4万円 4,000円 | なし なし | 1LDK 41.9m2 | 築20年 | JR中央本線 神領駅 徒歩8分 愛知県春日井市堀ノ内町 | 詳細を見る | |
マンション レオパレスシリウス(1K/3階) | |||||||
![]() | 6.2万円 7,000円 | なし 6.2万円 | 1K 23.18m2 | 築18年 | JR東海交通事業城北線 比良駅(愛知) 徒歩23分 愛知県北名古屋市高田寺東の川 | 詳細を見る | |
アパート 大治町八ツ屋アパート(1LDK/2階) | |||||||
![]() | 6.72万円 5,000円 | 6.72万円 なし | 1LDK 48.2m2 | 築1年 | 地下鉄東山線 中村公園駅 徒歩22分 愛知県海部郡大治町大字八ツ屋堤添 | 詳細を見る | |
アパート アーバンストーンVI(2LDK/2階) | |||||||
![]() | 5.6万円 4,000円 | なし なし | 2LDK 53.98m2 | 築19年 | 名鉄小牧線 春日井駅(名鉄) 徒歩18分 名鉄小牧線 味美駅(名鉄) 徒歩24分 名鉄小牧線 牛山駅 徒歩33分 愛知県春日井市如意申町 | 詳細を見る | |
アパート レオパレスセラヴィ町屋(1K/2階) | |||||||
![]() | 5.7万円 5,000円 | なし 5.7万円 | 1K 26.08m2 | 築21年 | 愛知県春日井市田楽町 | 詳細を見る | |









