賃貸マンション
ガラ・グランディ西新宿の賃貸物件情報(1K/4階)
| 家賃 | 管理費等 | 敷金 | 礼金 | 間取り | 専有面積 |
|---|---|---|---|---|---|
| 9.7万円 | 9,000円 | 9.7万円 | 19.4万円 | 1K | 25.8m2 |
入居決定でお祝い金最大100,000円
- 保証金
- -
- 償却・敷引
- -
- 築年数
- 築21年
- 所在階
- 4階
- 向き
- 西
Point
弊社は都内全域の物件が仲介手数料最大無料でご紹介可能!※一部対象外物件もございますので詳しくは一度お問合せください。
提供:三木ホールディングス(株)Forest Rent 新宿店(SUUMO経由)

詳細情報 ガラ・グランディ西新宿
物件紹介
ガラ・グランディ西新宿は都営大江戸線西新宿五丁目駅から徒歩4分にあり、駅近で通勤通学に便利なマンションです。
このお部屋は2階以上に位置しているので、通行人や周囲の住人からの視線が気になりにくく、防犯面でも安心。建物のエントランスはオートロックがついており、インターホンにはTVモニタもついているため、相手の顔を確認してから来客対応することができます。
おしゃれなデザイナーズ物件!人気の角部屋で周囲の居住者の生活音も気になりにくく、また、フローリングのお部屋なのでお掃除もラクラク。キッチンはシステムキッチン仕様になっていますので、お料理好きの方にもぴったり。バス・トイレは別なので、のんびりお風呂タイムも楽しめるでしょう。また、雨の日でも浴室乾燥機を使えば、お洗濯も問題ありません。
通信設備面では、インターネットが無料で使えるので、月々の出費を抑えられるのも魅力です。また、BSアンテナ・CSアンテナがありCATVにも対応しているので、おうち時間も充実するでしょう(別途工事、BS・CS・CATVの契約料等が必要な場合あり)。
建物にはエレベーターがついているので、重い荷物があっても安心。共用部には宅配ボックスが設定されているので、不在の時にも荷物を受け取ることができます。
このお部屋は2階以上に位置しているので、通行人や周囲の住人からの視線が気になりにくく、防犯面でも安心。建物のエントランスはオートロックがついており、インターホンにはTVモニタもついているため、相手の顔を確認してから来客対応することができます。
おしゃれなデザイナーズ物件!人気の角部屋で周囲の居住者の生活音も気になりにくく、また、フローリングのお部屋なのでお掃除もラクラク。キッチンはシステムキッチン仕様になっていますので、お料理好きの方にもぴったり。バス・トイレは別なので、のんびりお風呂タイムも楽しめるでしょう。また、雨の日でも浴室乾燥機を使えば、お洗濯も問題ありません。
通信設備面では、インターネットが無料で使えるので、月々の出費を抑えられるのも魅力です。また、BSアンテナ・CSアンテナがありCATVにも対応しているので、おうち時間も充実するでしょう(別途工事、BS・CS・CATVの契約料等が必要な場合あり)。
建物にはエレベーターがついているので、重い荷物があっても安心。共用部には宅配ボックスが設定されているので、不在の時にも荷物を受け取ることができます。
お金・契約の情報
※「-」と表示されているものは、実際は料金が発生するものもございます。詳細はお問い合わせください。
| 家賃 | 9.7万円 | 管理費・共益費 | 9,000円 |
|---|---|---|---|
| 敷金 | 9.7万円 | 礼金 | 19.4万円 |
| 入居決定でお祝い金最大100,000円 | |||
| 保証金 | - | 償却・敷引 | - |
| 住宅保険料 | - | 更新料 | - |
| 保証会社利用 | 必須 | 保証会社名 | - |
| 保証会社費用 | - | 保証会社備考 | 保証会社利用必 初回保証料:総賃料の50%・月額保証料:800円 |
| 契約形態 | - | 契約期間 | - |
| 入居・引渡期間 | 相談 | 現況 | - |
| 契約備考 | 合計2.31万円(内訳:鍵交換代:23100円) 1K 普通借家2年 損保【2万円2年】 バストイレ別、バルコニー、エアコン、ガスコンロ対応、クロゼット、フローリング、TVインターホン、浴室乾燥機、オートロック、室内洗濯置、シューズボックス、システムキッチン、角住戸、温水洗浄便座、脱衣所、エレベーター、洗面所独立、洗面化粧台、2口コンロ、駐輪場、宅配ボックス、CATV、外壁タイル張り、閑静な住宅地、2面採光、BS・CS、防犯カメラ、照明付、全居室収納、分譲賃貸、オートバス、グリル付、全居室洋室、保証人不要、全居室フローリング、2面バルコニー、デザイナーズ、ネット専用回線、ネット使用料不要、エアコン全室、24時間換気システム、人感照明センサー、エレベーター2基、耐火構造、耐震構造、3駅以上利用可、3沿線以上利用可、駅徒歩10分以内、24時間ゴミ出し可、敷地内ごみ置き場、セキュリティ会社加入済、全居室6畳以上、都市ガス、洗面所にドア、玄関収納、オートライト、高速ネット対応、IT重説対応物件、初期費用カード決済可、全室照明付 | ||
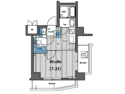
部屋の情報
| 間取り | 1K | 専有面積 | 25.8m2 |
|---|---|---|---|
| 所在階 / 向き | 4階 / 西 | バルコニー面積 | 7m2 |
| 水道 / ガス | - | ||
| 設備 | バス・トイレ別、2階以上、オートロック、テレビドアホン、宅配ボックス、浴室乾燥機、追い焚き、インターネット対応、システムキッチン、エアコン、エレベーター、温水洗浄便座、角部屋、バルコニー、フローリング、洗髪洗面化粧台、2口コンロ、コンロ:ガス、デザイナーズ、CATV、CSアンテナ、BSアンテナ、インターネット使用料無料、洗濯機:室内 | ||
| 当社物件ID | 9939527 | ||
建物の情報
| 建物名 | ガラ・グランディ西新宿 | ||
|---|---|---|---|
| 所在地 | 東京都新宿区西新宿 | ||
| 交通 | 都営大江戸線 西新宿五丁目駅 徒歩4分 東京メトロ丸ノ内線 西新宿駅 徒歩9分 JR山手線 新宿駅 徒歩15分 | ||
| 階数 | 15階建 | 総戸数 | - |
| 築年月 | 2005年08月 / 築21年 | エレベーター | あり |
| 駐車場 | なし | バイク置き場 | - |
| 駐輪場 | あり | 管理人/管理会社 | - |
| 周辺環境 | その他 新宿国際ビルディングヒルトピア(ショッピングセンター)まで471m その他 マルエツ西新宿六丁目店(スーパー)まで289m その他 ファミリーマート新宿十二社店(コンビニ)まで208m その他 ドラッグセイムス西新宿6丁目店(ドラッグストア)まで164m その他 キッチンハウス新宿ショールーム(ホームセンター)まで546m その他 CoCo壱番屋西新宿五丁目駅前通店(飲食店)まで93m | ||
| 建物種別 | マンション | 建物構造 | SRC(鉄骨鉄筋コンクリート) |
この部屋の取扱い不動産会社
| 会社名 | 三木ホールディングス(株)Forest Rent 新宿店(SUUMO経由) | ||
|---|---|---|---|
| 所在地 | 東京都新宿区西新宿6-12-4 コイトビル2階 | 交通 | - |
| 営業時間 | 10時~18時 | 定休日 | 無 |
| 免許番号 | 東京都知事112461 | 取引態様 | 仲介 |
| 不動産会社管理番号 | 100480436918 | 当社管理番号 | 89 |
| 所属団体 | (公社)全日本不動産協会東京都本部会員 | ||
| 公正取引協議会 | (公社)首都圏不動産公正取引協議会加盟 | ||
| 取扱い物件情報 | 物件詳細へ | ||
※各種情報と現状に差異がある場合は、現状優先となります。問い合わせをすることで、より詳しい条件、情報を確認する事ができます。
提供:三木ホールディングス(株)Forest Rent 新宿店(SUUMO経由)
この物件が気になったら掲載期限まであと9日
ガラ・グランディ西新宿に条件(家賃・エリア)が近い物件一覧
| 写真 | 家賃 管理費等 | 敷金 礼金 | 間取り 専有面積 | 築年数 | 最寄り駅 所在地 | キープ | 詳細 |
|---|---|---|---|---|---|---|---|
マンション アーバイル文京白山(1K/2階) | |||||||
![]() | 9.4万円 5,000円 | なし なし | 1K 17.28m2 | 築22年 | 東京都三田線 千石駅 徒歩2分 東京地下鉄南北線 本駒込駅 徒歩11分 山手線 巣鴨駅 徒歩12分 東京都文京区白山5丁目 | 詳細を見る | |
マンション グランレスト文京茗荷谷(1K/1階) | |||||||
![]() | 11.8万円 1.2万円 | 11.8万円 11.8万円 | 1K 26.89m2 | 築4年 | 東京地下鉄丸ノ内線 茗荷谷駅 徒歩8分 東京都三田線 千石駅 徒歩16分 山手線 巣鴨駅 徒歩24分 東京都文京区大塚3丁目 | 詳細を見る | |
マンション スカイコート後楽園第3(ワンルーム/1階) | |||||||
![]() | 7.2万円 6,000円 | 7.2万円 7.2万円 | ワンルーム 16.22m2 | 築30年 | 東京メトロ丸ノ内線 後楽園駅 徒歩2分 都営三田線 春日駅(東京) 徒歩7分 JR中央線 水道橋駅 徒歩14分 東京都文京区小石川 | 詳細を見る | |
マンション スカイコート東大前壱番館(1K/3階) | |||||||
![]() | 9.02万円 6,800円 | 9.02万円 9.02万円 | 1K 19.39m2 | 築22年 | 東京地下鉄南北線 東大前駅 徒歩3分 東京都三田線 白山駅(東京) 徒歩10分 東京地下鉄南北線 本駒込駅 徒歩14分 東京都文京区西片2丁目 | 詳細を見る | |
マンション パティオ神田(1K/5階) | |||||||
![]() | 12.4万円 1.5万円 | なし なし | 1K 25.07m2 | 築12年 | 東京都新宿線 岩本町駅 徒歩4分 山手線 神田駅(東京) 徒歩6分 山手線 秋葉原駅 徒歩9分 東京都千代田区岩本町2丁目 | 詳細を見る | |
マンション ルフォンプログレ文京湯島(1K/7階) | |||||||
![]() | 15万円 1.5万円 | 15万円 15万円 | 1K 25.42m2 | 築6年 | 東京地下鉄千代田線 湯島駅 徒歩3分 山手線 御徒町駅 徒歩9分 中央本線 御茶ノ水駅 徒歩12分 東京都文京区湯島3丁目 | 詳細を見る | |
マンション VIDA017(1K/3階) | |||||||
![]() | 9.7万円 1万円 | 9.7万円 9.7万円 | 1K 24.77m2 | 築24年 | 総武・中央緩行線 浅草橋駅 徒歩5分 東京都新宿線 岩本町駅 徒歩6分 山手線 秋葉原駅 徒歩7分 東京都千代田区東神田2丁目 | 詳細を見る | |
マンション インペリアルお茶の水(ワンルーム/3階) | |||||||
![]() | 7.6万円 8,000円 | なし 7.6万円 | ワンルーム 14.84m2 | 築46年 | 東京都新宿線 小川町駅(東京) 徒歩5分 東京都三田線 神保町駅 徒歩5分 東京地下鉄半蔵門線 神保町駅 徒歩6分 東京都千代田区神田小川町3丁目 | 詳細を見る | |









