賃貸マンション
ハイネスロワイヤルの賃貸物件情報(1LDK/14階)
| 家賃 | 管理費等 | 敷金 | 礼金 | 間取り | 専有面積 |
|---|---|---|---|---|---|
| 25万円 | なし | 25万円 | 25万円 | 1LDK | 45.06m2 |
入居決定でお祝い金最大100,000円
Point
セキュリティ面は、オートロック・TVインターホンなどを備え付けているので安心して暮らせます。洗面化粧台はコンセントや照明、大きな鏡などがついているので化粧や身支度を整える際に便利です。
提供:(株)SKCrew(SUUMO経由)

詳細情報 ハイネスロワイヤル
物件紹介
ハイネスロワイヤルは京王新線初台駅から徒歩7分にあり、駅近で通勤通学に便利なマンションです。
このお部屋は2階以上に位置しているので、通行人や周囲の住人からの視線が気になりにくく、防犯面でも安心。建物のエントランスはオートロックがついており、インターホンにはTVモニタもついているため、相手の顔を確認してから来客対応することができます。
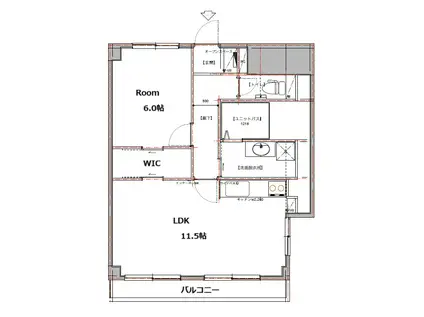
人気の南向き・フローリングのお部屋。角部屋でもあるため、周囲の居住者の生活音も気になりにくい場所です。室内にはウォークインクローゼットがありますので、たくさんの荷物も効率的に収納ができます。キッチンはシステムキッチン仕様になっていますので、お料理好きの方にもぴったり。また、バス・トイレは別で、のんびりお風呂タイムも楽しめるでしょう。
通信設備面では、インターネット接続が可能です(別途工事、契約料が必要な場合あり)。
建物にはエレベーターがついているので、重い荷物があっても安心。
このお部屋は2階以上に位置しているので、通行人や周囲の住人からの視線が気になりにくく、防犯面でも安心。建物のエントランスはオートロックがついており、インターホンにはTVモニタもついているため、相手の顔を確認してから来客対応することができます。
人気の南向き・フローリングのお部屋。角部屋でもあるため、周囲の居住者の生活音も気になりにくい場所です。室内にはウォークインクローゼットがありますので、たくさんの荷物も効率的に収納ができます。キッチンはシステムキッチン仕様になっていますので、お料理好きの方にもぴったり。また、バス・トイレは別で、のんびりお風呂タイムも楽しめるでしょう。
通信設備面では、インターネット接続が可能です(別途工事、契約料が必要な場合あり)。
建物にはエレベーターがついているので、重い荷物があっても安心。
お金・契約の情報
※「-」と表示されているものは、実際は料金が発生するものもございます。詳細はお問い合わせください。
| 家賃 | 25万円 | 管理費・共益費 | なし |
|---|---|---|---|
| 敷金 | 25万円 | 礼金 | 25万円 |
| 入居決定でお祝い金最大100,000円 | |||
| 保証金 | - | 償却・敷引 | - |
| 住宅保険料 | - | 更新料 | - |
| 保証会社利用 | 必須 | 保証会社名 | - |
| 保証会社費用 | - | 保証会社備考 | 保証会社利用必 初回保証料:総賃料の50% |
| 契約形態 | 定期借家 | 契約期間 | 2年 |
| 入居・引渡期間 | - | 現況 | - |
| 入居可能条件 | 事務所可 | ||
| 契約備考 | 巡回管理/リフォーム:2025/12内装スケルトンリノベーション工事 合計5.5万円(内訳:24時間安心サポート2.2万円鍵交換代3.3万円) 更新料 新賃料1.00ヶ月分 1LDK 二人入居可/事務所利用相談 定期借家2年 損保【2.2万円2年】 バストイレ別、バルコニー、エアコン、ガスコンロ対応、クロゼット、フローリング、TVインターホン、オートロック、室内洗濯置、陽当り良好、シューズボックス、システムキッチン、南向き、角住戸、温水洗浄便座、脱衣所、エレベーター、洗面所独立、洗面化粧台、2口コンロ、駐輪場、最上階、全居室洋室、ウォークインクロゼット、保証人不要、敷金1ヶ月、バイク置場、全居室フローリング、2沿線利用可、エアコン2台、ネット専用回線、眺望良好、エアコン全室、24時間換気システム、エレベーター2基、2駅利用可、3駅以上利用可、3沿線以上利用可、駅徒歩10分以内、上階無し、全居室6畳以上、都市ガス、ウォークスルークロゼット、玄関収納、マルチメディアコンセント、リノベーション、礼金1ヶ月、IT重説対応物件、初期費用カード決済可、通風良好 入居日:'25年12月下旬 | ||
部屋の情報
| 間取り | 1LDK | 専有面積 | 45.06m2 |
|---|---|---|---|
| 所在階 / 向き | 14階 / 南 | バルコニー面積 | - |
| 水道 / ガス | - | ||
| 設備 | バス・トイレ別、2階以上、オートロック、テレビドアホン、ウォークインクローゼット、インターネット対応、システムキッチン、エアコン、エレベーター、温水洗浄便座、南向き、角部屋、バルコニー、フローリング、洗髪洗面化粧台、2口コンロ、コンロ:ガス、洗濯機:室内 | ||
| 当社物件ID | 159775405 | ||
建物の情報
| 建物名 | ハイネスロワイヤル | ||
|---|---|---|---|
| 所在地 | 東京都新宿区西新宿 | ||
| 交通 | 京王新線 初台駅 徒歩7分 小田急線 参宮橋駅 徒歩9分 JR山手線 新宿駅 徒歩14分 | ||
| 階数 | 14階建 | 総戸数 | - |
| 築年月 | 1983年04月 / 築43年 | エレベーター | あり |
| 駐車場 | なし | バイク置き場 | あり |
| 駐輪場 | あり | 管理人/管理会社 | - |
| 周辺環境 | その他 まいばすけっと 渋谷本町2丁目店(スーパー)まで768m その他 mini(ミニ)ピアゴ 渋谷本町3丁目店(スーパー)まで876m その他 まいばすけっと 参宮橋駅前店(スーパー)まで841m その他 ミニストップ 西新宿3丁目店(コンビニ)まで401m その他 ファミリーマート 新宿中央公園店(コンビニ)まで342m その他 ファミリーマート 新宿ワシントンホテル店(コンビニ)まで537m | ||
| 建物種別 | マンション | 建物構造 | SRC(鉄骨鉄筋コンクリート) |
この部屋の取扱い不動産会社
| 会社名 | (株)SKCrew(SUUMO経由) | ||
|---|---|---|---|
| 所在地 | 東京都中野区東中野3-8-13 ドーンNSビル6階 | 交通 | - |
| 営業時間 | 10:00~20:00 | 定休日 | なし |
| 免許番号 | 東京都知事107658 | 取引態様 | 仲介 |
| 不動産会社管理番号 | 100469955013 | 当社管理番号 | 89 |
| 所属団体 | (公社)全日本不動産協会東京都本部会員 | ||
| 公正取引協議会 | (公社)首都圏不動産公正取引協議会加盟 | ||
| 取扱い物件情報 | 物件詳細へ | ||
※各種情報と現状に差異がある場合は、現状優先となります。問い合わせをすることで、より詳しい条件、情報を確認する事ができます。
提供:(株)SKCrew(SUUMO経由)
この物件が気になったら掲載期限まであと10日
ハイネスロワイヤルに条件(家賃・エリア)が近い物件一覧
| 写真 | 家賃 管理費等 | 敷金 礼金 | 間取り 専有面積 | 築年数 | 最寄り駅 所在地 | キープ | 詳細 |
|---|---|---|---|---|---|---|---|
マンション パークアクシス御茶ノ水ステージ(1K/3階) | |||||||
![]() | 15.2万円 8,000円 | 15.2万円 15.2万円 | 1K 29.7m2 | 築20年 | 東京地下鉄銀座線 末広町駅(東京) 徒歩6分 中央本線 御茶ノ水駅 徒歩8分 山手線 秋葉原駅 徒歩13分 東京都文京区湯島3丁目 | 詳細を見る | |
マンション ACPレジデンス文京春日(1LDK/4階) | |||||||
![]() | 21.2万円 2万円 | なし なし | 1LDK 40.65m2 | 築2年 | 東京地下鉄南北線 後楽園駅 徒歩11分 東京地下鉄丸ノ内線 後楽園駅 徒歩11分 東京都文京区春日2丁目 | 詳細を見る | |
マンション レジディア文京千石(1DK/12階) | |||||||
![]() | 15.2万円 1万円 | 15.2万円 なし | 1DK 30.2m2 | 築23年 | 東京都三田線 千石駅 徒歩3分 山手線 巣鴨駅 徒歩7分 東京地下鉄南北線 駒込駅 徒歩12分 東京都文京区千石4丁目 | 詳細を見る | |
マンション チェスターコート御茶ノ水(1K/13階) | |||||||
![]() | 15.5万円 1万円 | なし なし | 1K 26.7m2 | 築19年 | 東京都新宿線 小川町駅(東京) 徒歩3分 東京地下鉄千代田線 新御茶ノ水駅 徒歩5分 東京地下鉄丸ノ内線 淡路町駅 徒歩6分 東京都千代田区神田小川町3丁目 | 詳細を見る | |
マンション ジェノヴィア文京千駄木(1LDK/8階) | |||||||
![]() | 19.9万円 1.5万円 | なし なし | 1LDK 41.15m2 | 築1年 | 山手線 田端駅 徒歩10分 山手線 西日暮里駅 徒歩10分 東京地下鉄千代田線 千駄木駅 徒歩11分 東京都文京区千駄木4丁目 | 詳細を見る | |
マンション クラリティア文京湯島(1DK/3階) | |||||||
![]() | 15.9万円 1.5万円 | 15.9万円 なし | 1DK 25.13m2 | 築1年 | 東京地下鉄千代田線 湯島駅 徒歩5分 東京地下鉄銀座線 末広町駅(東京) 徒歩7分 中央本線 御茶ノ水駅 徒歩9分 東京都文京区湯島3丁目 | 詳細を見る | |
マンション オーパスホームズ白山(1LDK/4階) | |||||||
![]() | 26万円 2万円 | なし なし | 1LDK 52.31m2 | 築26年 | 東京都三田線 白山駅(東京) 徒歩5分 東京地下鉄南北線 東大前駅 徒歩5分 東京都文京区向丘1丁目 | 詳細を見る | |
マンション コンフォリア本駒込(1SLDK/2階) | |||||||
![]() | 26.1万円 1万円 | 26.1万円 なし | 1SLDK 60.06m2 | 築21年 | 東京都三田線 千石駅 徒歩1分 山手線 巣鴨駅 徒歩9分 東京都文京区本駒込2丁目 | 詳細を見る | |









