賃貸マンション
ヒューリックレジデンス駒込の賃貸物件情報(1K/2階)
| 家賃 | 管理費等 | 敷金 | 礼金 | 間取り | 専有面積 |
|---|---|---|---|---|---|
| 11.4万円 | 6,000円 | 11.4万円 | 11.4万円 | 1K | 27m2 |
入居決定でお祝い金最大100,000円
- 保証金
- -
- 償却・敷引
- -
- 築年数
- 築14年
- 所在階
- 2階
- 向き
- 南東
Point
2022年9月インターネット NURO光導入済♪JR山手線「巣鴨」も利用可能です♪遮音フローリングやペアガラスなど内廊下等設備仕様充実★
提供:リロの不動産(株)日商ベックス上野店(SUUMO経由)

詳細情報 ヒューリックレジデンス駒込
物件紹介
ヒューリックレジデンス駒込は都営三田線千石駅から徒歩2分にあり、駅近で通勤通学に便利なマンションです。
このお部屋は2階以上に位置しているので、通行人や周囲の住人からの視線が気になりにくく、防犯面でも安心。建物のエントランスはオートロックがついており、インターホンにはTVモニタもついているため、相手の顔を確認してから来客対応することができます。
人気の南向きのお部屋。また、フローリングなのでお掃除もラクラク。キッチンはシステムキッチン仕様になっていますので、お料理好きの方にもぴったり。バス・トイレは別なので、のんびりお風呂タイムも楽しめるでしょう。また、雨の日でも浴室乾燥機を使えば、お洗濯も問題ありません。
通信設備面では、インターネット接続が可能です。また、BSアンテナ・CSアンテナがありCATVにも対応しているので、おうち時間も充実するでしょう(別途工事、契約料が必要な場合あり)。
建物にはエレベーターがついているので、重い荷物があっても安心。共用部には宅配ボックスが設定されているので、不在の時にも荷物を受け取ることができます。
このお部屋は2階以上に位置しているので、通行人や周囲の住人からの視線が気になりにくく、防犯面でも安心。建物のエントランスはオートロックがついており、インターホンにはTVモニタもついているため、相手の顔を確認してから来客対応することができます。
人気の南向きのお部屋。また、フローリングなのでお掃除もラクラク。キッチンはシステムキッチン仕様になっていますので、お料理好きの方にもぴったり。バス・トイレは別なので、のんびりお風呂タイムも楽しめるでしょう。また、雨の日でも浴室乾燥機を使えば、お洗濯も問題ありません。
通信設備面では、インターネット接続が可能です。また、BSアンテナ・CSアンテナがありCATVにも対応しているので、おうち時間も充実するでしょう(別途工事、契約料が必要な場合あり)。
建物にはエレベーターがついているので、重い荷物があっても安心。共用部には宅配ボックスが設定されているので、不在の時にも荷物を受け取ることができます。
お金・契約の情報
※「-」と表示されているものは、実際は料金が発生するものもございます。詳細はお問い合わせください。
| 家賃 | 11.4万円 | 管理費・共益費 | 6,000円 |
|---|---|---|---|
| 敷金 | 11.4万円 | 礼金 | 11.4万円 |
| 入居決定でお祝い金最大100,000円 | |||
| 保証金 | - | 償却・敷引 | - |
| 住宅保険料 | - | 更新料 | - |
| 保証会社利用 | 必須 | 保証会社名 | - |
| 保証会社費用 | - | 保証会社備考 | 保証会社利用必 初回契約時:40%、更新時:1%、月額:1% |
| 契約形態 | - | 契約期間 | - |
| 入居・引渡期間 | 相談 | 現況 | - |
| 契約備考 | 内覧予約随時受付中☆お問い合わせは日商ベックス代々木店へ♪何かお困りな事などありましたらお気軽にご相談ください☆ご要望にぴったりなお部屋を、一緒にお探しします♪ 合計2.75万円(内訳:鍵交換代 27500円税込) ハウスクリーニング 38500円/退去時 更新料 1ヶ月 1K 単身者限定/ルームシェア不可 普通借家2年 損保【要】 バストイレ別、バルコニー、エアコン、ガスコンロ対応、クロゼット、フローリング、TVインターホン、浴室乾燥機、オートロック、室内洗濯置、陽当り良好、シューズボックス、システムキッチン、追焚機能浴室、温水洗浄便座、脱衣所、エレベーター、洗面所独立、洗面化粧台、2口コンロ、駐輪場、宅配ボックス、光ファイバー、閑静な住宅地、BS・CS、防犯カメラ、全居室洋室、保証人不要、単身者相談、敷金1ヶ月、バイク置場、全居室フローリング、2沿線利用可、CS、ネット専用回線、駅まで平坦、眺望良好、平坦地、全室東南向き、3駅以上利用可、駅前、駅徒歩5分以内、東南向き、都市ガス、洗面所にドア、BS、高速ネット対応、礼金1ヶ月、IT重説対応物件、通風良好 | ||
部屋の情報
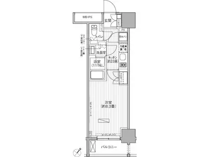
| 間取り | 1K | 専有面積 | 27m2 |
|---|---|---|---|
| 所在階 / 向き | 2階 / 南東 | バルコニー面積 | - |
| 水道 / ガス | - | ||
| 設備 | バス・トイレ別、2階以上、オートロック、テレビドアホン、宅配ボックス、浴室乾燥機、追い焚き、インターネット対応、システムキッチン、エアコン、エレベーター、温水洗浄便座、南向き、バルコニー、フローリング、洗髪洗面化粧台、2口コンロ、コンロ:ガス、CSアンテナ、BSアンテナ、洗濯機:室内 | ||
| 当社物件ID | 4229272 | ||
建物の情報
| 建物名 | ヒューリックレジデンス駒込 | ||
|---|---|---|---|
| 所在地 | 東京都文京区本駒込 | ||
| 交通 | 都営三田線 千石駅 徒歩2分 JR山手線 巣鴨駅 徒歩8分 JR山手線 駒込駅 徒歩16分 | ||
| 階数 | 12階建 | 総戸数 | - |
| 築年月 | 2012年03月 / 築14年 | エレベーター | あり |
| 駐車場 | なし | バイク置き場 | あり |
| 駐輪場 | あり | 管理人/管理会社 | - |
| 周辺環境 | その他 まいばすけっと白山5丁目店(スーパー)まで438m その他 ローソンストア100文京千石四丁目店(コンビニ)まで199m その他 セブンイレブン文京千石駅前店(コンビニ)まで156m その他 どらっぐぱぱす千石駅前店(ドラッグストア)まで126m その他 文京千石郵便局(郵便局)まで330m その他 みずほ銀行駒込支店(銀行)まで97m | ||
| 建物種別 | マンション | 建物構造 | RC(鉄筋コンクリート) |
この部屋の取扱い不動産会社
| 会社名 | リロの不動産(株)日商ベックス上野店(SUUMO経由) | ||
|---|---|---|---|
| 所在地 | 東京都台東区上野2-7-13 4階 | 交通 | - |
| 営業時間 | 9:00~18:00 | 定休日 | 水曜日 |
| 免許番号 | 国土交通大臣3273 | 取引態様 | 仲介 |
| 不動産会社管理番号 | 100479050107 | 当社管理番号 | 89 |
| 所属団体 | (公社)東京都宅地建物取引業協会会員 | ||
| 公正取引協議会 | (公社)首都圏不動産公正取引協議会加盟 | ||
| 取扱い物件情報 | 物件詳細へ | ||
※各種情報と現状に差異がある場合は、現状優先となります。問い合わせをすることで、より詳しい条件、情報を確認する事ができます。
提供:リロの不動産(株)日商ベックス上野店(SUUMO経由)
この物件が気になったら掲載期限まであと11日
ヒューリックレジデンス駒込に条件(家賃・エリア)が近い物件一覧
| 写真 | 家賃 管理費等 | 敷金 礼金 | 間取り 専有面積 | 築年数 | 最寄り駅 所在地 | キープ | 詳細 |
|---|---|---|---|---|---|---|---|
マンション AZEST浅草(1LDK/7階) | |||||||
![]() | 17.5万円 1.5万円 | なし なし | 1LDK 40.7m2 | 築4年 | 東武伊勢崎・大師線 浅草駅(東武・都営・メトロ) 徒歩10分 東京都台東区浅草6丁目 | 詳細を見る | |
マンション ラグジュアリーアパートメント御徒町(ワンルーム/6階) | |||||||
![]() | 11万円 1.5万円 | 11万円 なし | ワンルーム 31.35m2 | 築21年 | 東京地下鉄日比谷線 仲御徒町駅 徒歩4分 東京都大江戸線 新御徒町駅 徒歩5分 山手線 御徒町駅 徒歩7分 東京都台東区台東4丁目 | 詳細を見る | |
マンション SYFORME浅草Ⅱ(2K/10階) | |||||||
![]() | 12.2万円 1万円 | なし なし | 2K 25.48m2 | 築4年 | 東京都浅草線 浅草駅(東武・都営・メトロ) 徒歩8分 東武伊勢崎・大師線 浅草駅(東武・都営・メトロ) 徒歩8分 東京都台東区浅草3丁目 | 詳細を見る | |
マンション ライトテラス蔵前(1K/5階) | |||||||
![]() | 12.5万円 1万円 | 12.5万円 12.5万円 | 1K 25.52m2 | 築7年 | 東京都大江戸線 蔵前駅 徒歩2分 東京都浅草線 蔵前駅 徒歩3分 東京都台東区蔵前2丁目 | 詳細を見る | |
マンション 日神デュオステージ三ノ輪(1DK/2階) | |||||||
![]() | 9.5万円 1万円 | なし 9.5万円 | 1DK 30.96m2 | 築18年 | 東京地下鉄日比谷線 三ノ輪駅 徒歩10分 東京都台東区千束4丁目 | 詳細を見る | |
マンション リテラス上野入谷(1K/6階) | |||||||
![]() | 11.8万円 1.5万円 | 11.8万円 なし | 1K 25.04m2 | 築4年 | 東京地下鉄日比谷線 入谷駅(東京) 徒歩7分 東京地下鉄日比谷線 三ノ輪駅 徒歩10分 つくばエクスプレス 浅草駅(つくばEXP) 徒歩12分 東京都台東区竜泉1丁目 | 詳細を見る | |
マンション パレドール文京メトロプラザ1(ワンルーム/3階) | |||||||
![]() | 8万円 1万円 | なし 8万円 | ワンルーム 22.17m2 | 築42年 | 東京地下鉄丸ノ内線 新大塚駅 徒歩3分 東京地下鉄有楽町線 護国寺駅 徒歩9分 東京都荒川線 向原駅(東京) 徒歩9分 東京都文京区大塚5丁目 | 詳細を見る | |







