賃貸マンション
ヒューリックレジデンス駒込の賃貸物件情報(2LDK/11階)
| 家賃 | 管理費等 | 敷金 | 礼金 | 間取り | 専有面積 |
|---|---|---|---|---|---|
| 23.6万円 | 9,000円 | 23.6万円 | 47.2万円 | 2LDK | 54.25m2 |
入居決定でお祝い金最大100,000円
- 保証金
- -
- 償却・敷引
- -
- 築年数
- 築14年
- 所在階
- 11階
- 向き
- 南東
Point
弊社のAIお部屋探しでは多条件の物件でも広範囲からお探しできます。SUUMO掲載は募集後4~9時間遅れます。LINEでは最新物件をご提案!管理会社・オーナー意向での掲載不可物件も多数紹介可能!
提供:(株)トナリスク(SUUMO経由)

詳細情報 ヒューリックレジデンス駒込
物件紹介
ヒューリックレジデンス駒込は都営三田線千石駅から徒歩2分にあり、駅近で通勤通学に便利なマンションです。
このお部屋は2階以上に位置しているので、通行人や周囲の住人からの視線が気になりにくく、防犯面でも安心。建物のエントランスはオートロックがついており、インターホンにはTVモニタもついているため、相手の顔を確認してから来客対応することができます。
人気の南向きのお部屋。また、フローリングなのでお掃除もラクラク。キッチンはシステムキッチン仕様になっていますので、お料理好きの方にもぴったり。バス・トイレは別なので、のんびりお風呂タイムも楽しめるでしょう。また、雨の日でも浴室乾燥機を使えば、お洗濯も問題ありません。
通信設備面では、インターネット接続が可能です。また、BSアンテナ・CSアンテナもありますので、おうち時間も充実するでしょう(別途工事、契約料が必要な場合あり)。
建物にはエレベーターがついているので、重い荷物があっても安心。共用部には宅配ボックスが設定されているので、不在の時にも荷物を受け取ることができます。
このお部屋は2階以上に位置しているので、通行人や周囲の住人からの視線が気になりにくく、防犯面でも安心。建物のエントランスはオートロックがついており、インターホンにはTVモニタもついているため、相手の顔を確認してから来客対応することができます。
人気の南向きのお部屋。また、フローリングなのでお掃除もラクラク。キッチンはシステムキッチン仕様になっていますので、お料理好きの方にもぴったり。バス・トイレは別なので、のんびりお風呂タイムも楽しめるでしょう。また、雨の日でも浴室乾燥機を使えば、お洗濯も問題ありません。
通信設備面では、インターネット接続が可能です。また、BSアンテナ・CSアンテナもありますので、おうち時間も充実するでしょう(別途工事、契約料が必要な場合あり)。
建物にはエレベーターがついているので、重い荷物があっても安心。共用部には宅配ボックスが設定されているので、不在の時にも荷物を受け取ることができます。
お金・契約の情報
※「-」と表示されているものは、実際は料金が発生するものもございます。詳細はお問い合わせください。
| 家賃 | 23.6万円 | 管理費・共益費 | 9,000円 |
|---|---|---|---|
| 敷金 | 23.6万円 | 礼金 | 47.2万円 |
| 入居決定でお祝い金最大100,000円 | |||
| 保証金 | - | 償却・敷引 | - |
| 住宅保険料 | - | 更新料 | - |
| 保証会社利用 | 利用可 | 保証会社名 | - |
| 保証会社費用 | - | 保証会社備考 | 保証会社利用可 確認中 |
| 契約形態 | - | 契約期間 | - |
| 入居・引渡期間 | 相談 | 現況 | - |
| 契約備考 | 合計2.75万円(内訳:鍵交換代2.75万円) 更新料 新賃料1.00ヶ月分 2LDK 普通借家2年 バストイレ別、エアコン、フローリング、TVインターホン、浴室乾燥機、オートロック、室内洗濯置、システムキッチン、追焚機能浴室、温水洗浄便座、エレベーター、洗面所独立、駐輪場、宅配ボックス、バイク置場、CS、都市ガス、BS、高速ネット対応 | ||
部屋の情報
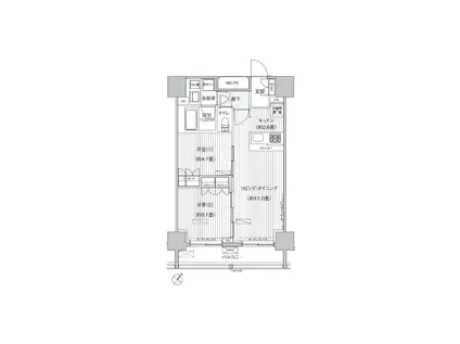
| 間取り | 2LDK | 専有面積 | 54.25m2 |
|---|---|---|---|
| 所在階 / 向き | 11階 / 南東 | バルコニー面積 | - |
| 水道 / ガス | - | ||
| 設備 | バス・トイレ別、2階以上、オートロック、テレビドアホン、宅配ボックス、浴室乾燥機、追い焚き、インターネット対応、システムキッチン、エアコン、エレベーター、温水洗浄便座、南向き、フローリング、洗髪洗面化粧台、CSアンテナ、BSアンテナ、洗濯機:室内 | ||
| 当社物件ID | 4228535 | ||
建物の情報
| 建物名 | ヒューリックレジデンス駒込 | ||
|---|---|---|---|
| 所在地 | 東京都文京区本駒込 | ||
| 交通 | 都営三田線 千石駅 徒歩2分 JR山手線 巣鴨駅 徒歩8分 JR山手線 駒込駅 徒歩16分 | ||
| 階数 | 12階建 | 総戸数 | - |
| 築年月 | 2012年03月 / 築14年 | エレベーター | あり |
| 駐車場 | なし | バイク置き場 | あり |
| 駐輪場 | あり | 管理人/管理会社 | - |
| 周辺環境 | その他 ピーコックストア 文京グリーンコート店(スーパー)まで522m その他 セブンイレブン 文京千石1丁目店(コンビニ)まで316m その他 ファミリーマート 本駒込二丁目店(コンビニ)まで355m | ||
| 建物種別 | マンション | 建物構造 | RC(鉄筋コンクリート) |
この部屋の取扱い不動産会社
| 会社名 | (株)トナリスク(SUUMO経由) | ||
|---|---|---|---|
| 所在地 | 東京都豊島区北大塚2-14-1 鈴矢ビル402 | 交通 | - |
| 営業時間 | 10時~19時 | 定休日 | 火曜・水曜 |
| 免許番号 | 東京都知事112620 | 取引態様 | 仲介 |
| 不動産会社管理番号 | 100482304057 | 当社管理番号 | 89 |
| 所属団体 | (公社)東京都宅地建物取引業協会会員 | ||
| 公正取引協議会 | (公社)首都圏不動産公正取引協議会加盟 | ||
| 取扱い物件情報 | 物件詳細へ | ||
※各種情報と現状に差異がある場合は、現状優先となります。問い合わせをすることで、より詳しい条件、情報を確認する事ができます。
提供:(株)トナリスク(SUUMO経由)
この物件が気になったら掲載期限まであと12日
ヒューリックレジデンス駒込に条件(家賃・エリア)が近い物件一覧
| 写真 | 家賃 管理費等 | 敷金 礼金 | 間取り 専有面積 | 築年数 | 最寄り駅 所在地 | キープ | 詳細 |
|---|---|---|---|---|---|---|---|
マンション ALTERNA東池袋(2K/7階) | |||||||
![]() | 15.3万円 1万円 | なし なし | 2K 25.74m2 | 築4年 | 都電荒川線 都電雑司ケ谷駅 徒歩4分 東京メトロ有楽町線 東池袋駅 徒歩5分 都電荒川線 東池袋四丁目駅 徒歩7分 東京都豊島区南池袋 | 詳細を見る | |
マンション ルフォンプログレ上野御徒町(2LDK/11階) | |||||||
![]() | 24.5万円 2.5万円 | 24.5万円 なし | 2LDK 45m2 | 築1年 | 都営大江戸線 新御徒町駅 徒歩5分 東京メトロ日比谷線 仲御徒町駅 徒歩5分 JR山手線 御徒町駅 徒歩8分 東京都台東区台東 | 詳細を見る | |
アパート スカイノッツ北赤羽(1LDK/3階) | |||||||
![]() | 14.75万円 3,900円 | なし 14.75万円 | 1LDK 43.02m2 | 新築 | JR埼京線 浮間舟渡駅 徒歩11分 JR埼京線 北赤羽駅 徒歩15分 都営三田線 志村坂上駅 徒歩29分 東京都北区浮間 | 詳細を見る | |
マンション オーキッドレジデンス神楽坂(1K/3階) | |||||||
![]() | 15.4万円 1.2万円 | 15.4万円 なし | 1K 28.55m2 | 築23年 | 東京メトロ有楽町線 飯田橋駅 徒歩8分 東京メトロ東西線 神楽坂駅 徒歩10分 東京メトロ丸ノ内線 後楽園駅 徒歩14分 東京都新宿区新小川町 | 詳細を見る | |
マンション フルール アベニール(1LDK/1階) | |||||||
![]() | 19.9万円 1万円 | なし 39.8万円 | 1LDK 46.05m2 | 新築 | JR山手線 高田馬場駅 徒歩6分 東京メトロ副都心線 西早稲田駅 徒歩14分 JR山手線 新大久保駅 徒歩17分 東京都新宿区高田馬場 | 詳細を見る | |
マンション クラリティア文京湯島(1DK/10階) | |||||||
![]() | 16.5万円 1.5万円 | 16.5万円 なし | 1DK 25.06m2 | 築1年 | 東京メトロ千代田線 湯島駅 徒歩5分 東京メトロ銀座線 末広町駅(東京) 徒歩7分 JR中央線 御茶ノ水駅 徒歩9分 東京都文京区湯島 | 詳細を見る | |
マンション オアーゼ日暮里レジデンス(2LDK/11階) | |||||||
![]() | 24.5万円 1万円 | 24.5万円 24.5万円 | 2LDK 50.11m2 | 築1年 | 山手線 日暮里駅 徒歩7分 山手線 西日暮里駅 徒歩9分 東京都荒川区西日暮里2丁目 | 詳細を見る | |
マンション ドゥーエ王子神谷(1SLDK/5階) | |||||||
![]() | 19万円 1.5万円 | なし なし | 1SLDK 46.58m2 | 新築 | 東京メトロ南北線 王子神谷駅 徒歩15分 JR京浜東北線 王子駅 徒歩21分 都電荒川線 荒川車庫前駅 徒歩27分 東京都北区豊島 | 詳細を見る | |









