賃貸マンション
シーフォルム東新宿Ⅱの賃貸物件情報(1DK/2階)
| 家賃 | 管理費等 | 敷金 | 礼金 | 間取り | 専有面積 |
|---|---|---|---|---|---|
| 17.5万円 | 1.1万円 | なし | 17.5万円 | 1DK | 25.41m2 |
入居決定でお祝い金最大100,000円
- 保証金
- -
- 償却・敷引
- -
- 築年数
- 築8年
- 所在階
- 2階
- 向き
- 西
Point
セキュリティ面は、TVインターホン・オートロックなど充実しているので安心して生活できます。
提供:ハウスコム西東京株式会社 明大前店

詳細情報 シーフォルム東新宿Ⅱ
物件紹介
シーフォルム東新宿Ⅱは東京地下鉄副都心線東新宿駅から徒歩3分にあり、駅近で通勤通学に便利なマンションです。
このお部屋は2階以上に位置しているので、通行人や周囲の住人からの視線が気になりにくく、防犯面でも安心。建物のエントランスはオートロックがついており、インターホンにはTVモニタもついているため、相手の顔を確認してから来客対応することができます。
フローリングのお部屋なのでお掃除もラクラク。キッチンはシステムキッチン仕様になっていますので、お料理好きの方にもぴったり。バス・トイレは別なので、のんびりお風呂タイムも楽しめるでしょう。また、雨の日でも浴室乾燥機を使えば、お洗濯も問題ありません。
通信設備面では、インターネットが無料で使えるので、月々の出費を抑えられるのも魅力です。また、BSアンテナ・CSアンテナがありCATVにも対応しているので、おうち時間も充実するでしょう(別途工事、BS・CS・CATVの契約料等が必要な場合あり)。
共用部には宅配ボックスが設定されているので、不在の時にも荷物を受け取ることができます。
コンビニまで徒歩6分の場所にあり、日用品や食料品のお買い物にも便利です。
このお部屋は2階以上に位置しているので、通行人や周囲の住人からの視線が気になりにくく、防犯面でも安心。建物のエントランスはオートロックがついており、インターホンにはTVモニタもついているため、相手の顔を確認してから来客対応することができます。
フローリングのお部屋なのでお掃除もラクラク。キッチンはシステムキッチン仕様になっていますので、お料理好きの方にもぴったり。バス・トイレは別なので、のんびりお風呂タイムも楽しめるでしょう。また、雨の日でも浴室乾燥機を使えば、お洗濯も問題ありません。
通信設備面では、インターネットが無料で使えるので、月々の出費を抑えられるのも魅力です。また、BSアンテナ・CSアンテナがありCATVにも対応しているので、おうち時間も充実するでしょう(別途工事、BS・CS・CATVの契約料等が必要な場合あり)。
共用部には宅配ボックスが設定されているので、不在の時にも荷物を受け取ることができます。
コンビニまで徒歩6分の場所にあり、日用品や食料品のお買い物にも便利です。
お金・契約の情報
※「-」と表示されているものは、実際は料金が発生するものもございます。詳細はお問い合わせください。
| 家賃 | 17.5万円 | 管理費・共益費 | 1.1万円 |
|---|---|---|---|
| 敷金 | なし | 礼金 | 17.5万円 |
| 入居決定でお祝い金最大100,000円 | |||
| 保証金 | - | 償却・敷引 | - |
| 住宅保険料 | 1円 | 更新料 | - |
| 保証会社利用 | 必須 | 保証会社名 | - |
| 保証会社費用 | - | 保証会社備考 | 加入要 初回保証料:総賃料の100% 更新時:20,000円/年毎 |
| 契約形態 | - | 契約期間 | 2年 |
| 入居・引渡期間 | 2026年03月上旬 | 現況 | - |
| 入居可能条件 | 事務所不可、楽器不可、ペット不可 | ||
| 契約備考 | 鍵交換代33,000円退去時クリーンコート代55,000円事務手数料22,000円退去時精算手数料5,500円(最終請求時)リブクラブ2,200円/月SBI少額短期保険800円/月 月額(リブクラブ 2200円 SBI少額短期保険 800円) 鍵交換費用:30000 室内清掃費用:55000 その他設備/条件:室内洗濯機置き場、独立洗面台、防犯カメラ、クローゼット、シューズボックス、分譲賃貸 | ||
部屋の情報
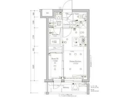
| 間取り | 1DK | 専有面積 | 25.41m2 |
|---|---|---|---|
| 間取り詳細 | K(2.1帖)、洋室(7.7帖)、洋室(2.4帖)、DK(7.7帖) | ||
| 所在階 / 向き | 2階 / 西 | バルコニー面積 | - |
| 水道 / ガス | 水道【公営】、ガス【都市】 | ||
| 設備 | バス・トイレ別、オートロック、テレビドアホン、宅配ボックス、浴室乾燥機、インターネット対応、システムキッチン、カウンターキッチン、エアコン、温水洗浄便座、バルコニー、フローリング、家具家電付き、2口コンロ、コンロ:ガス、CATV、CSアンテナ、BSアンテナ、インターネット使用料無料、シャワー、給湯 | ||
| 当社物件ID | 160272458 | ||
建物の情報
| 建物名 | シーフォルム東新宿Ⅱ | ||
|---|---|---|---|
| 所在地 | 東京都新宿区大久保1丁目 | ||
| 交通 | 京浜急行電鉄空港線 京急蒲田駅 徒歩3分 東京地下鉄副都心線 東新宿駅 徒歩3分 西武鉄道新宿線 西武新宿駅 徒歩10分 | ||
| 階数 | 5階建 | 総戸数 | - |
| 築年月 | 2018年12月 / 築8年 | エレベーター | - |
| 駐車場 | - | バイク置き場 | あり |
| 駐輪場 | あり | 管理人/管理会社 | - |
| 周辺環境 | コンビニ 徒歩6分(437m) 販売店 徒歩8分(569m) その他 JR蒲田駅 徒歩4分(310m) その他 蒲田駅 徒歩8分(589m) その他 大田西糀谷郵便局 徒歩12分(950m) その他 梅屋敷駅 徒歩14分(1046m) その他 ローソン新蒲田一丁目店 徒歩19分(1462m) その他 大森町駅 徒歩24分(1843m) その他 平和島駅 徒歩33分(2629m) その他 まいばすけっと 六郷土手店 徒歩34分(2688m) その他 ドラッグストア その他 公園 その他 銀行 その他 * | ||
| 建物種別 | マンション | 建物構造 | RC(鉄筋コンクリート) |
この部屋の取扱い不動産会社
| 会社名 | ハウスコム東東京株式会社 高田馬場店 | ||
|---|---|---|---|
| 所在地 | 東京都新宿区17-18マルシメビル1階 | 交通 | - |
| 営業時間 | 10:00~18:00 | 定休日 | 水曜定休 |
| 免許番号 | 東京都知事(1)第108283号 | 取引態様 | 仲介 |
| 不動産会社管理番号 | HC2-3288819-201-0227 | 当社管理番号 | 468 |
| 所属団体 | 、 | ||
| 取扱い物件情報 | 物件詳細へ | ||
※各種情報と現状に差異がある場合は、現状優先となります。問い合わせをすることで、より詳しい条件、情報を確認する事ができます。
提供:ハウスコム東東京株式会社 高田馬場店
この物件が気になったら掲載期限まであと4日
シーフォルム東新宿Ⅱに条件(家賃・エリア)が近い物件一覧
| 写真 | 家賃 管理費等 | 敷金 礼金 | 間取り 専有面積 | 築年数 | 最寄り駅 所在地 | キープ | 詳細 |
|---|---|---|---|---|---|---|---|
マンション パークフロント代々木(1K/1階) | |||||||
![]() | 14.3万円 7,000円 | 14.3万円 21.45万円 | 1K 24.94m2 | 築6年 | 小田急線 代々木八幡駅 徒歩4分 東京メトロ千代田線 代々木公園駅 徒歩4分 東京都渋谷区代々木 | 詳細を見る | |
マンション MIA CASA Ⅱ(1K/4階) | |||||||
![]() | 12.5万円 1万円 | 12.5万円 18.75万円 | 1K 27m2 | 築10年 | 京浜東北・根岸線 蒲田駅 徒歩5分 東京都大田区西蒲田5丁目 | 詳細を見る | |
マンション グランレスト文京茗荷谷(1K/1階) | |||||||
![]() | 11.8万円 1.2万円 | 11.8万円 なし | 1K 26.89m2 | 築4年 | 東京地下鉄丸ノ内線 茗荷谷駅 徒歩8分 東京都三田線 千石駅 徒歩16分 山手線 巣鴨駅 徒歩24分 東京都文京区大塚3丁目 | 詳細を見る | |
マンション コンフォリア・リヴ大森西(2LDK/4階) | |||||||
![]() | 20万円 1.8万円 | 20万円 なし | 2LDK 45.2m2 | 築1年 | 京浜急行電鉄本線 大森町駅 徒歩10分 東京都大田区大森西4丁目 | 詳細を見る | |
マンション ELYSEEEKODA(2LDK/2階) | |||||||
![]() | 22.7万円 1.2万円 | 11.35万円 なし | 2LDK 58.75m2 | 築1年 | 西武新宿線 沼袋駅 徒歩7分 都営大江戸線 新江古田駅 徒歩9分 西武池袋線 東長崎駅 徒歩9分 東京都中野区江原町 | 詳細を見る | |
マンション コルニーチェ小石川(1K/7階) | |||||||
![]() | 12万円 7,000円 | 24万円 12万円 | 1K 30.96m2 | 築17年 | 東京地下鉄丸ノ内線 茗荷谷駅 徒歩8分 東京都文京区大塚3丁目 | 詳細を見る | |
マンション ラティエラ大鳥居(1K/12階) | |||||||
![]() | 12.3万円 1万円 | 12.3万円 12.3万円 | 1K 26.29m2 | 築4年 | 京浜急行電鉄空港線 大鳥居駅 徒歩5分 京浜急行電鉄本線 京急蒲田駅 徒歩19分 東京モノレール羽田 整備場駅 徒歩29分 東京都大田区萩中3丁目 | 詳細を見る | |








