賃貸アパート
グランメゾンクレスト南蔵王IIの賃貸物件情報(3LDK/1階)
| 家賃 | 管理費等 | 敷金 | 礼金 | 間取り | 専有面積 |
|---|---|---|---|---|---|
| 12.8万円 | 5,000円 | なし | なし | 3LDK | 91.91m2 |
入居決定でお祝い金最大100,000円
- 保証金
- -
- 償却・敷引
- -
- 築年数
- 新築
- 所在階
- 1階
- 向き
- 東
Point
★南蔵王町ZEH新築★戸建て感覚で住めるメゾネットタイプ。駐車場1台込み♪吹き抜けのある広いリビングは開放的な対面システムキッチン付き♪ネット無料、エアコン2台、全室照明などの設備や収納も充実!
提供:いい部屋ネット大東建託リーシング(株)三原店(SUUMO経由)

詳細情報 グランメゾンクレスト南蔵王II
物件紹介
グランメゾンクレスト南蔵王IIはJR山陽本線東福山駅から徒歩19分にあるアパートです。
このお部屋のインターホンにはTVモニタがついているため、相手の顔を確認してから来客対応することができます。
フローリングのお部屋なのでお掃除もラクラク。キッチンはシステムキッチン仕様になっていますので、お料理好きの方にもぴったり。バス・トイレは別なので、のんびりお風呂タイムも楽しめるでしょう。また、雨の日でも浴室乾燥機を使えば、お洗濯も問題ありません。
通信設備面では、インターネットが無料で使えるので、月々の出費を抑えられるのも魅力です。また、BSアンテナ・CSアンテナもありますので、おうち時間も充実するでしょう(別途工事、BS・CSの契約料等が必要な場合あり)。
このお部屋のインターホンにはTVモニタがついているため、相手の顔を確認してから来客対応することができます。
フローリングのお部屋なのでお掃除もラクラク。キッチンはシステムキッチン仕様になっていますので、お料理好きの方にもぴったり。バス・トイレは別なので、のんびりお風呂タイムも楽しめるでしょう。また、雨の日でも浴室乾燥機を使えば、お洗濯も問題ありません。
通信設備面では、インターネットが無料で使えるので、月々の出費を抑えられるのも魅力です。また、BSアンテナ・CSアンテナもありますので、おうち時間も充実するでしょう(別途工事、BS・CSの契約料等が必要な場合あり)。
お金・契約の情報
※「-」と表示されているものは、実際は料金が発生するものもございます。詳細はお問い合わせください。
| 家賃 | 12.8万円 | 管理費・共益費 | 5,000円 |
|---|---|---|---|
| 敷金 | なし | 礼金 | なし |
| 入居決定でお祝い金最大100,000円 | |||
| 保証金 | - | 償却・敷引 | - |
| 住宅保険料 | - | 更新料 | - |
| 保証会社利用 | 必須 | 保証会社名 | - |
| 保証会社費用 | - | 保証会社備考 | 保証会社利用必 初回賃料等総額の65%(最低保証料20 000円) 毎月保証料:1 000円、年間更新料:10 000円要 |
| 契約形態 | - | 契約期間 | - |
| 入居・引渡期間 | - | 現況 | - |
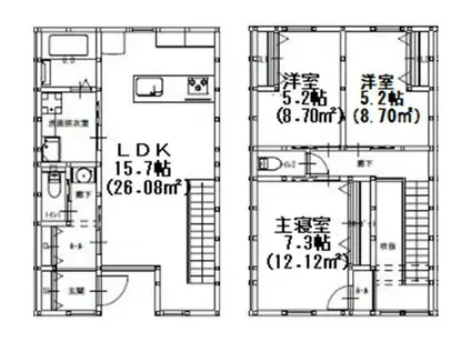
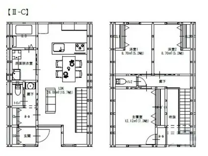
| 契約備考 | ■更新事務手数料:賃料×0.5ケ月分/2年(税込)■鍵代:新築につき不要 安心入居サポート 990円(月額) 3LDK 事務所利用不可 損保【2万円2年】 バストイレ別、エアコン、ガスコンロ対応、クロゼット、シャワー付洗面台、TVインターホン、浴室乾燥機、室内洗濯置、シューズボックス、システムキッチン、追焚機能浴室、温水洗浄便座、脱衣所、洗面所独立、駐輪場、3口以上コンロ、対面式キッチン、照明付、駐車場1台無料、全居室収納、オートバス、全居室洋室、バイク置場、エアコン2台、メゾネット、ネット使用料不要、複層ガラス、トイレ2ヶ所、電子ロック、浴室1坪以上、クロゼット3ヶ所、敷地内ごみ置き場、リビング吹抜け、備付食器棚、プロパンガス、三面鏡付洗面化粧台、BS、IT重説対応物件、全室照明付 入居日:'26年3月中旬 | ||
部屋の情報
| 間取り | 3LDK | 専有面積 | 91.91m2 |
|---|---|---|---|
| 所在階 / 向き | 1階 / 東 | バルコニー面積 | - |
| 水道 / ガス | - | ||
| 設備 | バス・トイレ別、テレビドアホン、浴室乾燥機、追い焚き、インターネット対応、システムキッチン、エアコン、温水洗浄便座、洗髪洗面化粧台、2口コンロ、コンロ:ガス、BSアンテナ、インターネット使用料無料、洗濯機:室内 | ||
| 当社物件ID | 158916759 | ||
建物の情報
| 建物名 | グランメゾンクレスト南蔵王II | ||
|---|---|---|---|
| 所在地 | 広島県福山市南蔵王町 | ||
| 交通 | JR山陽本線 東福山駅 徒歩19分 JR山陽本線 福山駅 バス乗車時間:20分 最寄りバス停で下車 徒歩9分 | ||
| 階数 | 2階建 | 総戸数 | - |
| 築年月 | 2026年02月 / 新築 | エレベーター | - |
| 駐車場 | 空有 付無料 | バイク置き場 | あり |
| 駐輪場 | あり | 管理人/管理会社 | - |
| 周辺環境 | その他 城東中学校(中学校)まで355m その他 フレスタ 蔵王店(スーパー)まで322m その他 ププレひまわり 蔵王店(ドラッグストア)まで525m その他 セブンイレブン 福山東深津3丁目店(コンビニ)まで171m その他 ウエルシア福山東深津店(ドラッグストア)まで333m その他 クックチャム 南蔵王店(その他)まで658m | ||
| 建物種別 | アパート | 建物構造 | 木造 |
この部屋の取扱い不動産会社
| 会社名 | いい部屋ネット大東建託リーシング(株)福山店(SUUMO経由) | ||
|---|---|---|---|
| 所在地 | 広島県福山市南蔵王町3-9-26 | 交通 | - |
| 営業時間 | 10:00~12:30、13:30~18:00 | 定休日 | 火・水曜日 |
| 免許番号 | 国土交通大臣9120 | 取引態様 | 仲介 |
| 不動産会社管理番号 | 100451790147 | 当社管理番号 | 89 |
| 所属団体 | (公財)日本賃貸住宅管理協会会員 | ||
| 公正取引協議会 | (公社)首都圏不動産公正取引協議会加盟 | ||
| 取扱い物件情報 | 物件詳細へ | ||
※各種情報と現状に差異がある場合は、現状優先となります。問い合わせをすることで、より詳しい条件、情報を確認する事ができます。
提供:いい部屋ネット大東建託リーシング(株)福山店(SUUMO経由)
この物件が気になったら掲載期限まであと10日
グランメゾンクレスト南蔵王IIに条件(家賃・エリア)が近い物件一覧
| 写真 | 家賃 管理費等 | 敷金 礼金 | 間取り 専有面積 | 築年数 | 最寄り駅 所在地 | キープ | 詳細 |
|---|---|---|---|---|---|---|---|
アパート 敬正会御門ホームズ(2LDK/1階) | |||||||
![]() | 10.8万円 4,500円 | なし 21.6万円 | 2LDK 62.68m2 | 築2年 | JR山陽本線 福山駅 徒歩17分 広島県福山市御門町 | 詳細を見る | |
アパート ベル ルミエールI(2LDK/2階) | |||||||
![]() | 8.45万円 2,800円 | なし 8.45万円 | 2LDK 58.57m2 | 新築 | 広島県福山市東手城町 | 詳細を見る | |
アパート サンヴァリー21C棟(2LDK/2階) | |||||||
![]() | 7.85万円 3,500円 | なし 8.85万円 | 2LDK 59.55m2 | 築3年 | JR山陽本線 福山駅 徒歩51分 JR山陽本線 東福山駅 徒歩58分 JR福塩線 備後本庄駅 徒歩73分 広島県福山市川口町 | 詳細を見る | |
アパート あけぼの6番館やまさ B棟(2LDK/3階) | |||||||
![]() | 7万円 4,500円 | なし 7万円 | 2LDK 67.53m2 | 築16年 | JR山陽本線 東福山駅 徒歩43分 広島県福山市曙町 | 詳細を見る | |
アパート D-RESIDENCE川口A(2LDK/1階) | |||||||
![]() | 9.9万円 6,000円 | なし 9.9万円 | 2LDK 56.15m2 | 築2年 | 広島県福山市川口町2丁目 | 詳細を見る | |
アパート D-ROOMフィオーレ(2LDK/1階) | |||||||
![]() | 11.9万円 5,000円 | なし 23.8万円 | 2LDK 59.93m2 | 築1年 | 広島県福山市手城町2丁目 | 詳細を見る | |
アパート アステリア(2LDK/2階) | |||||||
![]() | 7.8万円 5,000円 | なし 7.8万円 | 2LDK 62.92m2 | 築9年 | JR山陽本線 東福山駅 徒歩63分 JR山陽本線 福山駅 徒歩72分 JR福塩線 備後本庄駅 徒歩89分 広島県福山市新涯町 | 詳細を見る | |
アパート リライズ東雲(2LDK/2階) | |||||||
![]() | 9.9万円 4,500円 | なし 19.8万円 | 2LDK 52.82m2 | 築2年 | 東海道・山陽新幹線 福山駅 徒歩21分 広島県福山市三吉町3丁目 | 詳細を見る | |








/105x80-f1-q70-wp1)