賃貸アパート
グランメゾンクレスト南蔵王IIの賃貸物件情報(3LDK/1階)
| 家賃 | 管理費等 | 敷金 | 礼金 | 間取り | 専有面積 |
|---|---|---|---|---|---|
| 12.8万円 | 5,000円 | なし | なし | 3LDK | 91.91m2 |
入居決定でお祝い金最大100,000円
- 保証金
- -
- 償却・敷引
- -
- 築年数
- 築1年
- 所在階
- 1階
- 向き
- 東
Point
共用部には敷地内ごみ置き場・バイク置場など様々な設備やサービスが揃っているので便利です。ドアを開けたり直接会話しなくてもモニター越しに来訪者を確認できるモニター付きインターホンがあります。
提供:エイブルネットワーク神辺店(株)アークス(SUUMO経由)

詳細情報 グランメゾンクレスト南蔵王II
物件紹介
グランメゾンクレスト南蔵王IIはJR山陽本線東福山駅から徒歩19分にあるアパートです。
このお部屋のインターホンにはTVモニタがついているため、相手の顔を確認してから来客対応することができます。
フローリングのお部屋なのでお掃除もラクラク。キッチンはシステムキッチン仕様になっていますので、お料理好きの方にもぴったり。バス・トイレは別なので、のんびりお風呂タイムも楽しめるでしょう。また、雨の日でも浴室乾燥機を使えば、お洗濯も問題ありません。
通信設備面では、インターネットが無料で使えるので、月々の出費を抑えられるのも魅力です。また、BSアンテナもありますので、おうち時間も充実するでしょう(別途工事、BSの契約料等が必要な場合あり)。
このお部屋のインターホンにはTVモニタがついているため、相手の顔を確認してから来客対応することができます。
フローリングのお部屋なのでお掃除もラクラク。キッチンはシステムキッチン仕様になっていますので、お料理好きの方にもぴったり。バス・トイレは別なので、のんびりお風呂タイムも楽しめるでしょう。また、雨の日でも浴室乾燥機を使えば、お洗濯も問題ありません。
通信設備面では、インターネットが無料で使えるので、月々の出費を抑えられるのも魅力です。また、BSアンテナもありますので、おうち時間も充実するでしょう(別途工事、BSの契約料等が必要な場合あり)。
お金・契約の情報
※「-」と表示されているものは、実際は料金が発生するものもございます。詳細はお問い合わせください。
| 家賃 | 12.8万円 | 管理費・共益費 | 5,000円 |
|---|---|---|---|
| 敷金 | なし | 礼金 | なし |
| 入居決定でお祝い金最大100,000円 | |||
| 保証金 | - | 償却・敷引 | - |
| 住宅保険料 | - | 更新料 | - |
| 保証会社利用 | 必須 | 保証会社名 | - |
| 保証会社費用 | - | 保証会社備考 | 保証会社利用必 ■家賃保証 ジェイリース 初回賃料等総額の 50% (最低保証料 20 000円) 月額保証料880円・年間更新料10 000円 |
| 契約形態 | - | 契約期間 | - |
| 入居・引渡期間 | - | 現況 | - |
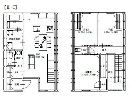
| 契約備考 | 3LDK 事務所利用不可 普通借家2年 損保【要】 バストイレ別、バルコニー、エアコン、ガスコンロ対応、クロゼット、TVインターホン、浴室乾燥機、室内洗濯置、シューズボックス、システムキッチン、追焚機能浴室、温水洗浄便座、脱衣所、洗面所独立、駐輪場、礼金不要、最上階、敷金不要、3口以上コンロ、照明付、駐車場1台無料、駐車2台可、バイク置場、LDK15畳以上、ネット使用料不要、築2年以内、複層ガラス、クロゼット2ヶ所、クロゼット3ヶ所、敷地内ごみ置き場、専有面積25坪以上、プロパンガス、BS、敷金・礼金不要 入居日:'26年3月中旬 | ||
部屋の情報
| 間取り | 3LDK | 専有面積 | 91.91m2 |
|---|---|---|---|
| 所在階 / 向き | 1階 / 東 | バルコニー面積 | - |
| 水道 / ガス | - | ||
| 設備 | バス・トイレ別、テレビドアホン、浴室乾燥機、追い焚き、インターネット対応、システムキッチン、エアコン、温水洗浄便座、バルコニー、洗髪洗面化粧台、2口コンロ、コンロ:ガス、BSアンテナ、インターネット使用料無料、洗濯機:室内 | ||
| 当社物件ID | 158916755 | ||
建物の情報
| 建物名 | グランメゾンクレスト南蔵王II | ||
|---|---|---|---|
| 所在地 | 広島県福山市南蔵王町 | ||
| 交通 | JR山陽本線 東福山駅 徒歩19分 JR山陽本線 福山駅 徒歩43分 JR福塩線 横尾駅 徒歩60分 | ||
| 階数 | 2階建 | 総戸数 | - |
| 築年月 | 2026年02月 / 築1年 | エレベーター | - |
| 駐車場 | 空有 駐2台可 | バイク置き場 | あり |
| 駐輪場 | あり | 管理人/管理会社 | - |
| 周辺環境 | その他 FRESTA(フレスタ) 蔵王店(スーパー)まで318m その他 業務スーパー エブリイ蔵王店(スーパー)まで1015m その他 ダイレックス 明神店(その他)まで967m その他 ドン・キホーテ福山店(その他)まで1169m その他 セブンイレブン 福山東深津3丁目店(コンビニ)まで172m その他 セブンイレブン 福山東深津1丁目店(コンビニ)まで406m | ||
| 建物種別 | アパート | 建物構造 | 木造 |
この部屋の取扱い不動産会社
| 会社名 | エイブルネットワーク神辺店(株)アークス(SUUMO経由) | ||
|---|---|---|---|
| 所在地 | 広島県福山市神辺町大字新十九 1-17 | 交通 | - |
| 営業時間 | 10:00~18:00 | 定休日 | なし |
| 免許番号 | 国土交通大臣9898 | 取引態様 | 仲介 |
| 不動産会社管理番号 | 100447953393 | 当社管理番号 | 89 |
| 所属団体 | (公社)全日本不動産協会広島県本部会員 | ||
| 公正取引協議会 | 中国地区不動産公正取引協議会加盟 | ||
| 取扱い物件情報 | 物件詳細へ | ||
※各種情報と現状に差異がある場合は、現状優先となります。問い合わせをすることで、より詳しい条件、情報を確認する事ができます。
提供:エイブルネットワーク神辺店(株)アークス(SUUMO経由)
この物件が気になったら掲載期限まであと11日
グランメゾンクレスト南蔵王IIに条件(家賃・エリア)が近い物件一覧
| 写真 | 家賃 管理費等 | 敷金 礼金 | 間取り 専有面積 | 築年数 | 最寄り駅 所在地 | キープ | 詳細 |
|---|---|---|---|---|---|---|---|
アパート 西町SUZUKAZE(1LDK/2階) | |||||||
![]() | 8.55万円 5,000円 | なし 17.1万円 | 1LDK 40.32m2 | 築1年 | JR山陽本線 福山駅 徒歩12分 JR福塩線 備後本庄駅 徒歩19分 JR福塩線 横尾駅 徒歩63分 広島県福山市西町 | 詳細を見る | |
アパート クレストみすず(3LDK/1階) | |||||||
![]() | 11.5万円 6,000円 | なし 11.5万円 | 3LDK 88.95m2 | 築8年 | 山陽本線 福山駅 徒歩20分 広島県福山市草戸町1丁目 | 詳細を見る | |
マンション LAULEA(2LDK/3階) | |||||||
![]() | 9.4万円 4,000円 | なし 14.1万円 | 2LDK 51.08m2 | 築5年 | JR山陽本線 東福山駅 徒歩28分 広島県福山市南蔵王町 | 詳細を見る | |
マンション クロノス(2LDK/2階) | |||||||
![]() | 13.4万円 4,000円 | なし 13.4万円 | 2LDK 72.77m2 | 築6年 | 広島県福山市沖野上町 | 詳細を見る | |
テラスハウス LEAD みすず B棟(3LDK) | |||||||
![]() | 9.3万円 5,000円 | なし 9.3万円 | 3LDK 78.95m2 | 築15年 | 福塩線 福山駅 徒歩23分 広島県福山市草戸町1丁目 | 詳細を見る | |
テラスハウス シャルムグレイスII A棟(3LDK) | |||||||
![]() | 8.6万円 3,500円 | なし 8.6万円 | 3LDK 80.59m2 | 築14年 | 山陽本線 東福山駅 徒歩43分 広島県福山市曙町3丁目 | 詳細を見る | |
アパート さくらハウス(2LDK/1階) | |||||||
![]() | 9.0399万円 5,500円 | なし 9.0399万円 | 2LDK 61.33m2 | 築1年 | JR山陽本線 福山駅 徒歩18分 JR福塩線 備後本庄駅 徒歩33分 広島県福山市桜馬場町 | 詳細を見る | |
マンション イスタナ若松(1LDK/1階) | |||||||
![]() | 8.9万円 5,000円 | なし 8.9万円 | 1LDK 48.42m2 | 築3年 | 山陽新幹線 福山駅 徒歩17分 広島県福山市若松町 | 詳細を見る | |





/105x80-f1-q70-wp1)
/105x80-f1-q70-wp1)

