賃貸マンション
MAXIV CITY神楽坂の賃貸物件情報(1K/3階)
| 家賃 | 管理費等 | 敷金 | 礼金 | 間取り | 専有面積 |
|---|---|---|---|---|---|
| 11.7万円 | 5,000円 | なし | なし | 1K | 20m2 |
入居決定でお祝い金最大100,000円
- 保証金
- -
- 償却・敷引
- -
- 築年数
- 新築(築1年)
- 所在階
- 3階
- 向き
- 西
Point
室内設備は浴室乾燥機・洗面所独立など大変充実しております。
提供:(株)リライフ飯田橋店(SUUMO経由)

詳細情報 MAXIV CITY神楽坂
物件紹介
MAXIV CITY神楽坂は東京メトロ有楽町線江戸川橋駅から徒歩5分にあり、駅近で通勤通学に便利なマンションです。
このお部屋は2階以上に位置しているので、通行人や周囲の住人からの視線が気になりにくく、防犯面でも安心。建物のエントランスはオートロックがついており、インターホンにはTVモニタもついているため、相手の顔を確認してから来客対応することができます。
人気の角部屋で周囲の居住者の生活音も気になりにくく、また、フローリングのお部屋なのでお掃除もラクラク。キッチンはシステムキッチン仕様になっていますので、お料理好きの方にもぴったり。バス・トイレは別なので、のんびりお風呂タイムも楽しめるでしょう。また、雨の日でも浴室乾燥機を使えば、お洗濯も問題ありません。
通信設備面では、インターネットが無料で使えるので、月々の出費を抑えられるのも魅力です。また、BSアンテナ・CSアンテナもありますので、おうち時間も充実するでしょう(別途工事、BS・CSの契約料等が必要な場合あり)。
共用部には宅配ボックスが設定されているので、不在の時にも荷物を受け取ることができます。
このお部屋は2階以上に位置しているので、通行人や周囲の住人からの視線が気になりにくく、防犯面でも安心。建物のエントランスはオートロックがついており、インターホンにはTVモニタもついているため、相手の顔を確認してから来客対応することができます。
人気の角部屋で周囲の居住者の生活音も気になりにくく、また、フローリングのお部屋なのでお掃除もラクラク。キッチンはシステムキッチン仕様になっていますので、お料理好きの方にもぴったり。バス・トイレは別なので、のんびりお風呂タイムも楽しめるでしょう。また、雨の日でも浴室乾燥機を使えば、お洗濯も問題ありません。
通信設備面では、インターネットが無料で使えるので、月々の出費を抑えられるのも魅力です。また、BSアンテナ・CSアンテナもありますので、おうち時間も充実するでしょう(別途工事、BS・CSの契約料等が必要な場合あり)。
共用部には宅配ボックスが設定されているので、不在の時にも荷物を受け取ることができます。
お金・契約の情報
※「-」と表示されているものは、実際は料金が発生するものもございます。詳細はお問い合わせください。
| 家賃 | 11.7万円 | 管理費・共益費 | 5,000円 |
|---|---|---|---|
| 敷金 | なし | 礼金 | なし |
| 入居決定でお祝い金最大100,000円 | |||
| 保証金 | - | 償却・敷引 | - |
| 住宅保険料 | 1円 | 更新料 | - |
| その他費用 | 24時間安心サポート:1.65万円、55000円:、エアコンクリーニング費用:1.5万円 | ||
| 保証会社利用 | 必須 | 保証会社名 | - |
| 保証会社費用 | - | 保証会社備考 | 初回総賃料50% 契約以降月々総賃料の1 % |
| 契約形態 | - | 契約期間 | 2年 |
| 入居・引渡期間 | 2026年01月中旬 | 現況 | - |
| 入居可能条件 | 法人可 | ||
| 契約備考 | 24時間安心サポート(入居時)/16500円 ハウスクリーニング費用(入居時)/55000円 エアコンクリーニング費用(退去時)/15000円(税抜) インターネット使用料無料 その他設備/条件:室内洗濯機置き場、独立洗面台、防犯カメラ、クローゼット、シューズボックス、照明器具付き | ||
部屋の情報
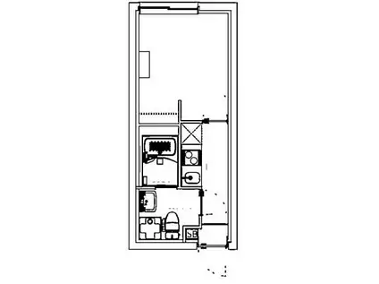
| 間取り | 1K | 専有面積 | 20m2 |
|---|---|---|---|
| 所在階 / 向き | 3階 / 西 | バルコニー面積 | - |
| 水道 / ガス | 水道【公営】、ガス【都市】 | ||
| 設備 | バス・トイレ別、オートロック、テレビドアホン、宅配ボックス、浴室乾燥機、インターネット対応、システムキッチン、エアコン、温水洗浄便座、角部屋、フローリング、2口コンロ、コンロ:IH、CSアンテナ、BSアンテナ、インターネット使用料無料、シャワー、給湯 | ||
| 当社物件ID | 159902066 | ||
建物の情報
| 建物名 | MAXIV CITY神楽坂 | ||
|---|---|---|---|
| 所在地 | 東京都新宿区西五軒町 | ||
| 交通 | 東京地下鉄有楽町線 江戸川橋駅 徒歩5分 東京地下鉄東西線 神楽坂駅 徒歩8分 | ||
| 階数 | 4階建 | 総戸数 | 15戸 |
| 築年月 | 2025年12月 / 新築(築1年) | エレベーター | - |
| 駐車場 | なし | バイク置き場 | - |
| 駐輪場 | - | 管理人/管理会社 | - |
| 周辺環境 | その他 ドラッグストア その他 公園 その他 銀行 その他 * | ||
| 建物種別 | マンション | 建物構造 | RC(鉄筋コンクリート) |
この部屋の取扱い不動産会社
| 会社名 | ハウスコム東東京株式会社 高田馬場店 | ||
|---|---|---|---|
| 所在地 | 東京都新宿区17-18マルシメビル1階 | 交通 | - |
| 営業時間 | 10:00~18:00 | 定休日 | 水曜定休 |
| 免許番号 | 東京都知事(1)第108283号 | 取引態様 | 仲介 |
| 不動産会社管理番号 | HC5-5248436-301-0227 | 当社管理番号 | 468 |
| 所属団体 | 、 | ||
| 取扱い物件情報 | 物件詳細へ | ||
※各種情報と現状に差異がある場合は、現状優先となります。問い合わせをすることで、より詳しい条件、情報を確認する事ができます。
提供:ハウスコム東東京株式会社 高田馬場店
この物件が気になったら掲載期限まであと4日
MAXIV CITY神楽坂に条件(家賃・エリア)が近い物件一覧
| 写真 | 家賃 管理費等 | 敷金 礼金 | 間取り 専有面積 | 築年数 | 最寄り駅 所在地 | キープ | 詳細 |
|---|---|---|---|---|---|---|---|
マンション アーク江戸川橋(1LDK/2階) | |||||||
![]() | 15万円 なし | 7.5万円 7.5万円 | 1LDK 38.96m2 | 築12年 | 東京地下鉄有楽町線 江戸川橋駅 徒歩2分 東京地下鉄東西線 神楽坂駅 徒歩9分 東京地下鉄丸ノ内線 茗荷谷駅 徒歩14分 東京都文京区関口1丁目 | 詳細を見る | |
マンション サンフォレスタ文京大塚(ワンルーム/4階) | |||||||
![]() | 9万円 6,000円 | なし 9万円 | ワンルーム 21.6m2 | 築4年 | 東京地下鉄丸ノ内線 新大塚駅 徒歩7分 東京地下鉄丸ノ内線 茗荷谷駅 徒歩7分 東京地下鉄有楽町線 護国寺駅 徒歩9分 東京都文京区大塚4丁目 | 詳細を見る | |
マンション アジールコート後楽園(1DK/2階) | |||||||
![]() | 15.1万円 1万円 | 15.1万円 なし | 1DK 27.6m2 | 築1年 | 東京都三田線 春日駅(東京) 徒歩7分 東京地下鉄丸ノ内線 後楽園駅 徒歩10分 東京都文京区白山1丁目 | 詳細を見る | |
マンション ノーブルイズミ(ワンルーム/3階) | |||||||
![]() | 7.5万円 なし | 7.5万円 7.5万円 | ワンルーム 17.5m2 | 築33年 | 山手線 西日暮里駅 徒歩9分 東京地下鉄千代田線 千駄木駅 徒歩9分 山手線 田端駅 徒歩11分 東京都文京区千駄木4丁目 | 詳細を見る | |
マンション シンシア千駄木(ワンルーム/10階) | |||||||
![]() | 8万円 1万円 | 8万円 8万円 | ワンルーム 20.97m2 | 築24年 | 東京地下鉄千代田線 千駄木駅 徒歩1分 山手線 日暮里駅 徒歩11分 東京地下鉄南北線 本駒込駅 徒歩13分 東京都文京区千駄木3丁目 | 詳細を見る | |
マンション パークキューブ神田(1DK/5階) | |||||||
![]() | 16.3万円 1万円 | 16.3万円 16.3万円 | 1DK 32.07m2 | 築21年 | 東京都新宿線 岩本町駅 徒歩3分 中央本線 神田駅(東京) 徒歩3分 山手線 秋葉原駅 徒歩6分 東京都千代田区神田須田町2丁目 | 詳細を見る | |
マンション BLUROCK後楽園(1DK/6階) | |||||||
![]() | 14.3万円 1.2万円 | 14.3万円 なし | 1DK 25.01m2 | 築3年 | 東京地下鉄南北線 後楽園駅 徒歩7分 東京都三田線 春日駅(東京) 徒歩7分 東京都大江戸線 飯田橋駅 徒歩11分 東京都文京区春日1丁目 | 詳細を見る | |
マンション シティハイツ根津(1K/3階) | |||||||
![]() | 16.7万円 なし | 16.7万円 16.7万円 | 1K 53.38m2 | 築36年 | 東京地下鉄千代田線 根津駅 徒歩2分 東京都文京区根津1丁目 | 詳細を見る | |









