賃貸マンション
メゾン・ド・新宿の賃貸物件情報(1K/7階)
| 家賃 | 管理費等 | 敷金 | 礼金 | 間取り | 専有面積 |
|---|---|---|---|---|---|
| 9.6万円 | 5,000円 | 9.6万円 | なし | 1K | 26m2 |
入居決定でお祝い金最大100,000円
- 保証金
- -
- 償却・敷引
- -
- 築年数
- 築24年
- 所在階
- 7階
- 向き
- 南西
Point
眺望・夜景 9.3帖の洋室 浴室乾燥機 グリル付き2口ガスコンロのシステムキッチン クロゼット 保証人不要 保証会社加入必須 フリーレント1ヶ月(2年未満の解約は違約金発生)賃料は口座振替(手数料
提供:マエダ綜建(株)(SUUMO経由)

詳細情報 メゾン・ド・新宿
物件紹介
メゾン・ド・新宿は都営大江戸線西新宿五丁目駅から徒歩3分にあり、駅近で通勤通学に便利なマンションです。
このお部屋は2階以上に位置しているので通行人や周囲の住人からの視線が気になりにくく、建物のエントランスはオートロックがついているので防犯性が高くなっています。
人気の南向きのお部屋。また、フローリングなのでお掃除もラクラク。キッチンはシステムキッチン仕様になっていますので、お料理好きの方にもぴったり。バス・トイレは別なので、のんびりお風呂タイムも楽しめるでしょう。また、雨の日でも浴室乾燥機を使えば、お洗濯も問題ありません。
通信設備面では、インターネット接続が可能です。また、BSアンテナ・CSアンテナがありCATVにも対応しているので、おうち時間も充実するでしょう(別途工事、契約料が必要な場合あり)。
建物にはエレベーターがついているので、重い荷物があっても安心。共用部には宅配ボックスが設定されているので、不在の時にも荷物を受け取ることができます。
このお部屋は2階以上に位置しているので通行人や周囲の住人からの視線が気になりにくく、建物のエントランスはオートロックがついているので防犯性が高くなっています。
人気の南向きのお部屋。また、フローリングなのでお掃除もラクラク。キッチンはシステムキッチン仕様になっていますので、お料理好きの方にもぴったり。バス・トイレは別なので、のんびりお風呂タイムも楽しめるでしょう。また、雨の日でも浴室乾燥機を使えば、お洗濯も問題ありません。
通信設備面では、インターネット接続が可能です。また、BSアンテナ・CSアンテナがありCATVにも対応しているので、おうち時間も充実するでしょう(別途工事、契約料が必要な場合あり)。
建物にはエレベーターがついているので、重い荷物があっても安心。共用部には宅配ボックスが設定されているので、不在の時にも荷物を受け取ることができます。
お金・契約の情報
※「-」と表示されているものは、実際は料金が発生するものもございます。詳細はお問い合わせください。
| 家賃 | 9.6万円 | 管理費・共益費 | 5,000円 |
|---|---|---|---|
| 敷金 | 9.6万円 | 礼金 | なし |
| フリーレント | あり | ||
| 入居決定でお祝い金最大100,000円 | |||
| 保証金 | - | 償却・敷引 | - |
| 住宅保険料 | - | 更新料 | - |
| 保証会社利用 | 必須 | 保証会社名 | 全保連 |
| 保証会社費用 | - | 保証会社備考 | 全保連利用必 総賃料の50%(1年ごとに13,000円)or総賃料の120%(年間保証料無し、他にプランあり |
| 契約形態 | - | 契約期間 | - |
| 入居・引渡期間 | 即時 | 現況 | - |
| 契約備考 | 巡回管理/礼金無し フリーレント1ヶ月(2年未満の解約は違約金発生) 宅配ボックス オートロック BT別 グリル付き2靴ガスコンロ 暖房便座 南向き日当たり良好 眺望 夜景 保証人不要 保証会社加入必須 賃料は口座振替(手数料は借主負担) 1K 二人入居可/子供不可/フリーレント1ヶ月当月日割り 翌月フリーレント(管理費含む 損保【1.6万円2年】 バストイレ別、バルコニー、エアコン、クロゼット、フローリング、浴室乾燥機、オートロック、室内洗濯置、陽当り良好、シューズボックス、システムキッチン、南向き、温水洗浄便座、エレベーター、2口コンロ、宅配ボックス、CATV、光ファイバー、外壁タイル張り、即入居可、礼金不要、2面採光、BS・CS、照明付、グリル付、保証人不要、敷金1ヶ月、CATVインターネット、二人入居相談、24時間緊急通報システム、2沿線利用可、ディンプルキー、フリーレント、眺望良好、天袋、平坦地、防音サッシ、2駅利用可、駅徒歩5分以内、天井高2.7m以上、敷地内ごみ置き場、セキュリティ会社加入済、寝室8畳以上、都市ガス、玄関収納 | ||
部屋の情報
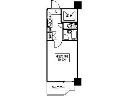
| 間取り | 1K | 専有面積 | 26m2 |
|---|---|---|---|
| 所在階 / 向き | 7階 / 南西 | バルコニー面積 | - |
| 水道 / ガス | - | ||
| 設備 | バス・トイレ別、2階以上、オートロック、宅配ボックス、浴室乾燥機、インターネット対応、システムキッチン、エアコン、エレベーター、温水洗浄便座、南向き、バルコニー、フローリング、2口コンロ、CATV、CSアンテナ、BSアンテナ、洗濯機:室内 | ||
| 当社物件ID | 8883912 | ||
建物の情報
| 建物名 | メゾン・ド・新宿 | ||
|---|---|---|---|
| 所在地 | 東京都新宿区西新宿 | ||
| 交通 | 都営大江戸線 西新宿五丁目駅 徒歩3分 都営大江戸線 都庁前駅 徒歩6分 東京メトロ丸ノ内線 西新宿駅 徒歩10分 | ||
| 階数 | 地下1地上13階建 | 総戸数 | - |
| 築年月 | 2002年03月 / 築24年 | エレベーター | あり |
| 駐車場 | なし | バイク置き場 | - |
| 駐輪場 | - | 管理人/管理会社 | - |
| 周辺環境 | その他 ドラッグセイムス西新宿6丁目薬局(ドラッグストア)まで281m その他 ファミリーマート新宿アイタウン店(コンビニ)まで257m その他 マクドナルド西新宿店(飲食店)まで292m その他 マルエツプチ西新宿六丁目店(スーパー)まで339m その他 新宿アイタウン郵便局(郵便局)まで257m その他 新宿国際ビルディングヒルトピア(ショッピングセンター)まで613m | ||
| 建物種別 | マンション | 建物構造 | SRC(鉄骨鉄筋コンクリート) |
この部屋の取扱い不動産会社
| 会社名 | マエダ綜建(株)(SUUMO経由) | ||
|---|---|---|---|
| 所在地 | 東京都新宿区新宿7-27-9リブレ東新宿1705 | 交通 | - |
| 営業時間 | 9:00~PM18:00土・祭日はPM17:00 | 定休日 | 日曜日 |
| 免許番号 | 東京都知事71678 | 取引態様 | 仲介 |
| 不動産会社管理番号 | 100028960366 | 当社管理番号 | 89 |
| 所属団体 | (公社)東京都宅地建物取引業協会会員 | ||
| 公正取引協議会 | (公社)首都圏不動産公正取引協議会加盟 | ||
| 取扱い物件情報 | 物件詳細へ | ||
※各種情報と現状に差異がある場合は、現状優先となります。問い合わせをすることで、より詳しい条件、情報を確認する事ができます。
提供:マエダ綜建(株)(SUUMO経由)
この物件が気になったら掲載期限まであと10日
メゾン・ド・新宿に条件(家賃・エリア)が近い物件一覧
| 写真 | 家賃 管理費等 | 敷金 礼金 | 間取り 専有面積 | 築年数 | 最寄り駅 所在地 | キープ | 詳細 |
|---|---|---|---|---|---|---|---|
マンション ラ・レジダンス・ド千駄木(1K/6階) | |||||||
![]() | 10万円 6,000円 | 10万円 10万円 | 1K 20.11m2 | 築20年 | 東京地下鉄千代田線 千駄木駅 徒歩2分 東京都文京区千駄木2丁目 | 詳細を見る | |
マンション スカイコート文京本郷(1K/7階) | |||||||
![]() | 8.3万円 7,000円 | 8.3万円 8.3万円 | 1K 18.26m2 | 築25年 | 東京地下鉄丸ノ内線 本郷三丁目駅 徒歩5分 総武・中央緩行線 水道橋駅 徒歩9分 東京都三田線 春日駅(東京) 徒歩12分 東京都文京区本郷2丁目 | 詳細を見る | |
マンション ラティエラ文京音羽(ワンルーム/3階) | |||||||
![]() | 13.6万円 7,000円 | 13.6万円 13.6万円 | ワンルーム 33.07m2 | 築18年 | 東京地下鉄有楽町線 護国寺駅 徒歩5分 東京都文京区音羽1丁目 | 詳細を見る | |
マンション セレニティー神田(1DK/3階) | |||||||
![]() | 15.3万円 1万円 | 15.3万円 15.3万円 | 1DK 30.1m2 | 築11年 | 東京地下鉄銀座線 神田駅(東京) 徒歩3分 山手線 神田駅(東京) 徒歩3分 中央本線 神田駅(東京) 徒歩3分 東京都千代田区鍛冶町2丁目 | 詳細を見る | |
マンション レジディア文京千石(1DK/12階) | |||||||
![]() | 15.2万円 1万円 | 15.2万円 なし | 1DK 30.2m2 | 築23年 | 東京都三田線 千石駅 徒歩3分 山手線 巣鴨駅 徒歩7分 東京地下鉄南北線 駒込駅 徒歩12分 東京都文京区千石4丁目 | 詳細を見る | |
マンション レジディア文京湯島Ⅱ(ワンルーム/8階) | |||||||
![]() | 9万円 1万円 | なし なし | ワンルーム 19.87m2 | 築22年 | 東京地下鉄千代田線 湯島駅 徒歩1分 山手線 御徒町駅 徒歩5分 東京地下鉄銀座線 上野広小路駅 徒歩5分 東京都文京区湯島3丁目 | 詳細を見る | |
マンション テラスミーレ文京弥生(1K/3階) | |||||||
![]() | 12.7万円 8,000円 | 12.7万円 12.7万円 | 1K 27.11m2 | 築3年 | 東京地下鉄南北線 東大前駅 徒歩4分 東京地下鉄千代田線 根津駅 徒歩10分 東京地下鉄千代田線 千駄木駅 徒歩11分 東京都文京区弥生1丁目 | 詳細を見る | |
マンション シャルマン文京千駄木(ワンルーム/7階) | |||||||
![]() | 7.5万円 5,000円 | なし なし | ワンルーム 18.53m2 | 築49年 | 山手線 西日暮里駅 徒歩8分 東京地下鉄千代田線 千駄木駅 徒歩9分 山手線 田端駅 徒歩14分 東京都文京区千駄木3丁目 | 詳細を見る | |









