賃貸マンション
PRIMA STELLA プリマステラの賃貸物件情報(1LDK/10階)
| 家賃 | 管理費等 | 敷金 | 礼金 | 間取り | 専有面積 |
|---|---|---|---|---|---|
| 26.2万円 | 1万円 | 26.2万円 | 26.2万円 | 1LDK | 45.03m2 |
入居決定でお祝い金最大100,000円
- 保証金
- -
- 償却・敷引
- -
- 築年数
- 築1年
- 所在階
- 10階
- 向き
- -
Point
★カウンターキッチン・グリル付3口コンロ★独立洗面台★温水洗浄便座★クローゼット★TVドアホン★オートロック★ディンプルキー★トランクルーム★駐車場・駐輪場★詳細お気軽にお問い合わせ下さい★
提供:そらうみリアルエステート(株)本店(SUUMO経由)

詳細情報 PRIMA STELLA プリマステラ
物件紹介
PRIMA STELLA プリマステラは東京メトロ丸ノ内線西新宿駅から徒歩5分にあり、駅近で通勤通学に便利なマンションです。
このお部屋は2階以上に位置しているので、通行人や周囲の住人からの視線が気になりにくく、防犯面でも安心。建物のエントランスはオートロックがついており、インターホンにはTVモニタもついているため、相手の顔を確認してから来客対応することができます。
フローリングのお部屋なのでお掃除もラクラク。キッチンはシステムキッチン仕様になっていますので、お料理好きの方にもぴったり。バス・トイレは別なので、のんびりお風呂タイムも楽しめるでしょう。また、雨の日でも浴室乾燥機を使えば、お洗濯も問題ありません。
通信設備面では、インターネットが無料で使えるので、月々の出費を抑えられるのも魅力です(別途工事等が必要な場合あり)。
建物にはエレベーターがついているので、重い荷物があっても安心。共用部には宅配ボックスが設定されているので、不在の時にも荷物を受け取ることができます。
このお部屋は2階以上に位置しているので、通行人や周囲の住人からの視線が気になりにくく、防犯面でも安心。建物のエントランスはオートロックがついており、インターホンにはTVモニタもついているため、相手の顔を確認してから来客対応することができます。
フローリングのお部屋なのでお掃除もラクラク。キッチンはシステムキッチン仕様になっていますので、お料理好きの方にもぴったり。バス・トイレは別なので、のんびりお風呂タイムも楽しめるでしょう。また、雨の日でも浴室乾燥機を使えば、お洗濯も問題ありません。
通信設備面では、インターネットが無料で使えるので、月々の出費を抑えられるのも魅力です(別途工事等が必要な場合あり)。
建物にはエレベーターがついているので、重い荷物があっても安心。共用部には宅配ボックスが設定されているので、不在の時にも荷物を受け取ることができます。
お金・契約の情報
※「-」と表示されているものは、実際は料金が発生するものもございます。詳細はお問い合わせください。
| 家賃 | 26.2万円 | 管理費・共益費 | 1万円 |
|---|---|---|---|
| 敷金 | 26.2万円 | 礼金 | 26.2万円 |
| 入居決定でお祝い金最大100,000円 | |||
| 保証金 | - | 償却・敷引 | - |
| 住宅保険料 | - | 更新料 | - |
| 保証会社利用 | 必須 | 保証会社名 | - |
| 保証会社費用 | - | 保証会社備考 | 保証会社利用必 初回保証料:賃料等の100%・詳細はお問い合わせください |
| 契約形態 | - | 契約期間 | - |
| 入居・引渡期間 | 即時 | 現況 | - |
| 契約備考 | 巡回管理/エアコン清掃費用:11000円 トランクルーム:月額6600円9900円 駐輪場:月額330円440円※空要確認 機械式駐車場:月額38500円44000円・敷金1ヶ月※空・詳細はお問い合わせください 退去時、クリーニング費・エアコン清掃費借主負担 室内清掃費用 48950円 1LDK 単身者可 普通借家2年 損保【要】 バストイレ別、バルコニー、エアコン、クロゼット、フローリング、TVインターホン、浴室乾燥機、オートロック、室内洗濯置、シューズボックス、システムキッチン、追焚機能浴室、温水洗浄便座、エレベーター、洗面所独立、洗面化粧台、駐輪場、宅配ボックス、即入居可、3口以上コンロ、対面式キッチン、防犯カメラ、オートバス、保証人不要、2沿線利用可、ディンプルキー、ネット使用料不要、トランクルーム、ダブルロックキー、エレベーター2基、2駅利用可、3駅以上利用可、3沿線以上利用可、駅徒歩5分以内、駅徒歩10分以内、24時間ゴミ出し可、敷地内ごみ置き場、保証会社利用可 | ||
部屋の情報
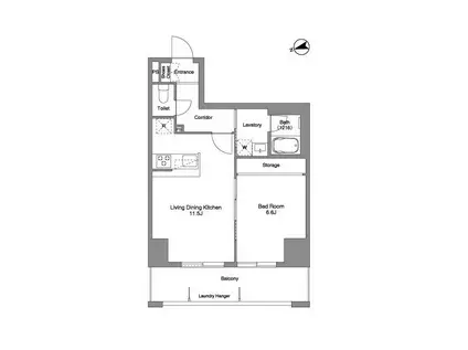
| 間取り | 1LDK | 専有面積 | 45.03m2 |
|---|---|---|---|
| 所在階 / 向き | 10階 / - | バルコニー面積 | - |
| 水道 / ガス | - | ||
| 設備 | バス・トイレ別、2階以上、オートロック、テレビドアホン、宅配ボックス、浴室乾燥機、追い焚き、インターネット対応、システムキッチン、エアコン、エレベーター、温水洗浄便座、バルコニー、フローリング、トランクルーム、洗髪洗面化粧台、2口コンロ、インターネット使用料無料、洗濯機:室内 | ||
| 当社物件ID | 159501337 | ||
建物の情報
| 建物名 | PRIMA STELLA プリマステラ | ||
|---|---|---|---|
| 所在地 | 東京都新宿区西新宿 | ||
| 交通 | 東京メトロ丸ノ内線 西新宿駅 徒歩5分 JR山手線 新宿駅 徒歩12分 JR中央線 大久保駅(東京) 徒歩12分 | ||
| 階数 | 14階建 | 総戸数 | - |
| 築年月 | 2025年07月 / 築1年 | エレベーター | あり |
| 駐車場 | 空有 44000円 | バイク置き場 | - |
| 駐輪場 | あり | 管理人/管理会社 | - |
| 周辺環境 | その他 まいばすけっと西新宿7丁目店(スーパー)まで438m その他 セブンイレブン 新宿グランドプラザ店(コンビニ)まで382m その他 スギ薬局 西新宿医大前店(ドラッグストア)まで141m | ||
| 建物種別 | マンション | 建物構造 | RC(鉄筋コンクリート) |
この部屋の取扱い不動産会社
| 会社名 | (株)ユウキ・ホーム麻布十番サテライト店(SUUMO経由) | ||
|---|---|---|---|
| 所在地 | 東京都港区麻布十番2-19-10 桂麻布十番ビル1階 | 交通 | - |
| 営業時間 | 9:30~21:30 | 定休日 | 年中無休 |
| 免許番号 | 東京都知事76214 | 取引態様 | 仲介 |
| 不動産会社管理番号 | 100459902339 | 当社管理番号 | 89 |
| 所属団体 | (公社)東京都宅地建物取引業協会会員 | ||
| 公正取引協議会 | (公社)首都圏不動産公正取引協議会加盟 | ||
| 取扱い物件情報 | 物件詳細へ | ||
※各種情報と現状に差異がある場合は、現状優先となります。問い合わせをすることで、より詳しい条件、情報を確認する事ができます。
提供:(株)ユウキ・ホーム麻布十番サテライト店(SUUMO経由)
この物件が気になったら掲載期限まであと11日
PRIMA STELLA プリマステラに条件(家賃・エリア)が近い物件一覧
| 写真 | 家賃 管理費等 | 敷金 礼金 | 間取り 専有面積 | 築年数 | 最寄り駅 所在地 | キープ | 詳細 |
|---|---|---|---|---|---|---|---|
マンション パークアクシス文京本郷(1LDK/6階) | |||||||
![]() | 26.5万円 1.5万円 | 26.5万円 なし | 1LDK 43.75m2 | 築1年 | 東京都大江戸線 本郷三丁目駅 徒歩6分 東京地下鉄丸ノ内線 本郷三丁目駅 徒歩6分 東京都文京区本郷5丁目 | 詳細を見る | |
マンション ACPレジデンス文京春日(1LDK/3階) | |||||||
![]() | 20.9万円 2万円 | なし なし | 1LDK 40.65m2 | 築2年 | 東京地下鉄南北線 後楽園駅 徒歩11分 東京地下鉄丸ノ内線 後楽園駅 徒歩11分 東京都文京区春日2丁目 | 詳細を見る | |
マンション ザ・ライオンズフォーシア外神田(1DK/4階) | |||||||
![]() | 18万円 1.5万円 | 18万円 なし | 1DK 33.49m2 | 築1年 | 東京地下鉄銀座線 末広町駅(東京) 徒歩3分 総武・中央緩行線 秋葉原駅 徒歩9分 中央本線 御茶ノ水駅 徒歩10分 東京都千代田区外神田3丁目 | 詳細を見る | |
マンション アルテシモ ルーナ(1LDK/8階) | |||||||
![]() | 17.5万円 2万円 | なし 17.5万円 | 1LDK 40.52m2 | 築8年 | 東京地下鉄有楽町線 護国寺駅 徒歩4分 東京地下鉄丸ノ内線 新大塚駅 徒歩8分 東京地下鉄丸ノ内線 茗荷谷駅 徒歩10分 東京都文京区大塚2丁目 | 詳細を見る | |
マンション レジディア文京本駒込(1SLDK/13階) | |||||||
![]() | 25万円 1.5万円 | 25万円 なし | 1SLDK 59.1m2 | 築18年 | 東京地下鉄南北線 本駒込駅 徒歩5分 山手線 駒込駅 徒歩10分 東京都三田線 白山駅(東京) 徒歩11分 東京都文京区本駒込3丁目 | 詳細を見る | |
マンション オーパスホームズ白山(1LDK/3階) | |||||||
![]() | 27.5万円 2万円 | なし なし | 1LDK 56.24m2 | 築26年 | 東京都三田線 白山駅(東京) 徒歩5分 東京地下鉄南北線 東大前駅 徒歩5分 東京都文京区向丘1丁目 | 詳細を見る | |
マンション LASANTE 千駄木(1LDK/9階) | |||||||
![]() | 22.1万円 1.2万円 | なし なし | 1LDK 42.35m2 | 築18年 | 山手線 西日暮里駅 徒歩5分 東京都文京区千駄木3丁目 | 詳細を見る | |
マンション エスティメゾン千石(1LDK/1階) | |||||||
![]() | 16万円 1.2万円 | 16万円 16万円 | 1LDK 39.85m2 | 築17年 | 東京都三田線 千石駅 徒歩7分 山手線 巣鴨駅 徒歩9分 東京都文京区千石4丁目 | 詳細を見る | |









