賃貸マンション
リーブルグラント西新宿ウエストの賃貸物件情報(1K/11階)
| 家賃 | 管理費等 | 敷金 | 礼金 | 間取り | 専有面積 |
|---|---|---|---|---|---|
| 13.2万円 | 1.5万円 | 13.2万円 | 19.8万円 | 1K | 25.37m2 |
入居決定でお祝い金最大100,000円
- 保証金
- -
- 償却・敷引
- -
- 築年数
- 築7年
- 所在階
- 11階
- 向き
- 東
Point
まずはお問い合わせ!
不動産会社は街のプロ、あなたに合った物件がきっと見つかります。
提供:トレント飯田橋支店(株)クルーズカンパニー(SUUMO経由)

詳細情報 リーブルグラント西新宿ウエスト
物件紹介
リーブルグラント西新宿ウエストは東京メトロ丸ノ内線西新宿駅から徒歩5分にあり、駅近で通勤通学に便利なマンションです。
このお部屋は2階以上に位置しているので、通行人や周囲の住人からの視線が気になりにくく、防犯面でも安心。建物のエントランスはオートロックがついており、インターホンにはTVモニタもついているため、相手の顔を確認してから来客対応することができます。
フローリングのお部屋なのでお掃除もラクラク。キッチンはシステムキッチン仕様になっていますので、お料理好きの方にもぴったり。バス・トイレは別なので、のんびりお風呂タイムも楽しめるでしょう。また、雨の日でも浴室乾燥機を使えば、お洗濯も問題ありません。
通信設備面では、インターネットが無料で使えるので、月々の出費を抑えられるのも魅力です。また、BSアンテナ・CSアンテナもありますので、おうち時間も充実するでしょう(別途工事、BS・CSの契約料等が必要な場合あり)。
建物にはエレベーターがついているので、重い荷物があっても安心。共用部には宅配ボックスが設定されているので、不在の時にも荷物を受け取ることができます。
このお部屋は2階以上に位置しているので、通行人や周囲の住人からの視線が気になりにくく、防犯面でも安心。建物のエントランスはオートロックがついており、インターホンにはTVモニタもついているため、相手の顔を確認してから来客対応することができます。
フローリングのお部屋なのでお掃除もラクラク。キッチンはシステムキッチン仕様になっていますので、お料理好きの方にもぴったり。バス・トイレは別なので、のんびりお風呂タイムも楽しめるでしょう。また、雨の日でも浴室乾燥機を使えば、お洗濯も問題ありません。
通信設備面では、インターネットが無料で使えるので、月々の出費を抑えられるのも魅力です。また、BSアンテナ・CSアンテナもありますので、おうち時間も充実するでしょう(別途工事、BS・CSの契約料等が必要な場合あり)。
建物にはエレベーターがついているので、重い荷物があっても安心。共用部には宅配ボックスが設定されているので、不在の時にも荷物を受け取ることができます。
お金・契約の情報
※「-」と表示されているものは、実際は料金が発生するものもございます。詳細はお問い合わせください。
| 家賃 | 13.2万円 | 管理費・共益費 | 1.5万円 |
|---|---|---|---|
| 敷金 | 13.2万円 | 礼金 | 19.8万円 |
| 入居決定でお祝い金最大100,000円 | |||
| 保証金 | - | 償却・敷引 | - |
| 住宅保険料 | - | 更新料 | - |
| 保証会社利用 | 必須 | 保証会社名 | - |
| 保証会社費用 | - | 保証会社備考 | 保証会社利用必 初回保証料/月額総賃料等の50パーセント 月額保証料/月額総賃料の1パーセント |
| 契約形態 | - | 契約期間 | - |
| 入居・引渡期間 | 即時 | 現況 | - |
| 契約備考 | ■退去時のクリーニング費用38500~71720円■エアコン清掃費8250円/台■口座振替事務手数料110円/月 合計3.85万円(内訳:鍵交換費用:3.85万円) 更新料:新賃料1.0ヵ月、室内清掃費:49500円 1K 普通借家2年 損保【要】 バストイレ別、バルコニー、エアコン、ガスコンロ対応、クロゼット、フローリング、シャワー付洗面台、TVインターホン、浴室乾燥機、オートロック、室内洗濯置、シューズボックス、システムキッチン、追焚機能浴室、温水洗浄便座、脱衣所、エレベーター、洗面所独立、洗面化粧台、2口コンロ、駐輪場、宅配ボックス、光ファイバー、外壁タイル張り、即入居可、オートバス、保証人不要、敷金1ヶ月、バイク置場、2沿線利用可、ディンプルキー、CS、ネット使用料不要、浄水器、ダブルロックキー、24時間換気システム、2駅利用可、敷地内ごみ置き場、都市ガス、BS、礼金1ヶ月、保証会社利用可、初期費用カード決済可 | ||
部屋の情報
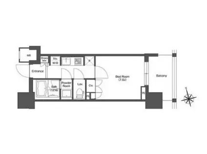
| 間取り | 1K | 専有面積 | 25.37m2 |
|---|---|---|---|
| 所在階 / 向き | 11階 / 東 | バルコニー面積 | - |
| 水道 / ガス | - | ||
| 設備 | バス・トイレ別、2階以上、オートロック、テレビドアホン、宅配ボックス、浴室乾燥機、追い焚き、インターネット対応、システムキッチン、エアコン、エレベーター、温水洗浄便座、バルコニー、フローリング、洗髪洗面化粧台、2口コンロ、コンロ:ガス、CSアンテナ、BSアンテナ、インターネット使用料無料、洗濯機:室内 | ||
| 当社物件ID | 36470974 | ||
建物の情報
| 建物名 | リーブルグラント西新宿ウエスト | ||
|---|---|---|---|
| 所在地 | 東京都新宿区西新宿 | ||
| 交通 | 東京メトロ丸ノ内線 西新宿駅 徒歩5分 西武新宿線 西武新宿駅 徒歩9分 JR山手線 新宿駅 徒歩13分 | ||
| 階数 | 地下1地上13階建 | 総戸数 | - |
| 築年月 | 2020年02月 / 築7年 | エレベーター | あり |
| 駐車場 | なし | バイク置き場 | あり |
| 駐輪場 | あり | 管理人/管理会社 | - |
| 周辺環境 | その他 新宿成子坂愛育園(幼稚園・保育園)まで290m その他 KTC中央高等学院 新宿キャンパス(高校・高専)まで150m その他 宝塚大学 東京新宿キャンパス(大学・短大)まで470m その他 楽釜製麺所(飲食店)まで790m その他 牛角 西新宿店(飲食店)まで490m その他 磯丸水産 西新宿7丁目店(飲食店)まで510m | ||
| 建物種別 | マンション | 建物構造 | RC(鉄筋コンクリート) |
この部屋の取扱い不動産会社
| 会社名 | トレント 新宿本店(株)クルーズカンパニー(SUUMO経由) | ||
|---|---|---|---|
| 所在地 | 東京都新宿区西新宿1-14-15 | 交通 | - |
| 営業時間 | 10:00-19:00 | 定休日 | - |
| 免許番号 | 東京都知事93971 | 取引態様 | 仲介 |
| 不動産会社管理番号 | 100488639347 | 当社管理番号 | 89 |
| 所属団体 | (公社)全日本不動産協会東京都本部会員 | ||
| 公正取引協議会 | (公社)首都圏不動産公正取引協議会加盟 | ||
| 取扱い物件情報 | 物件詳細へ | ||
※各種情報と現状に差異がある場合は、現状優先となります。問い合わせをすることで、より詳しい条件、情報を確認する事ができます。
提供:トレント 新宿本店(株)クルーズカンパニー(SUUMO経由)
この物件が気になったら掲載期限まであと10日
リーブルグラント西新宿ウエストに条件(家賃・エリア)が近い物件一覧
| 写真 | 家賃 管理費等 | 敷金 礼金 | 間取り 専有面積 | 築年数 | 最寄り駅 所在地 | キープ | 詳細 |
|---|---|---|---|---|---|---|---|
マンション 一番館マンション(ワンルーム/2階) | |||||||
![]() | 8.7万円 2,000円 | なし なし | ワンルーム 30m2 | 築56年 | 西武新宿線 沼袋駅 徒歩5分 西武新宿線 新井薬師前駅 徒歩6分 JR中央線 中野駅(東京) 徒歩15分 東京都中野区新井 | 詳細を見る | |
マンション ライオンズシティ白金高輪(1DK/5階) | |||||||
![]() | 15.8万円 1.5万円 | なし なし | 1DK 32.98m2 | 築21年 | 東京メトロ南北線 白金高輪駅 徒歩7分 都営浅草線 泉岳寺駅 徒歩15分 JR山手線 田町駅(東京) 徒歩15分 東京都港区三田 | 詳細を見る | |
マンション アルテシモ ルスト(1K/1階) | |||||||
![]() | 12.5万円 1万円 | なし 12.5万円 | 1K 25.5m2 | 築9年 | 東京メトロ丸ノ内線 中野新橋駅 徒歩6分 東京メトロ丸ノ内線 新中野駅 徒歩8分 都営大江戸線 中野坂上駅 徒歩12分 東京都中野区本町 | 詳細を見る | |
マンション ザ・クラスアーバンス早稲田南(1DK/2階) | |||||||
![]() | 16.2万円 1万円 | 16.2万円 なし | 1DK 35m2 | 築1年 | 東京メトロ東西線 早稲田駅(メトロ) 徒歩3分 都営大江戸線 牛込柳町駅 徒歩10分 東京メトロ有楽町線 江戸川橋駅 徒歩14分 東京都新宿区早稲田南町 | 詳細を見る | |
マンション デュオ・スカーラ新宿Ⅱ(1LDK/9階) | |||||||
![]() | 18.9万円 1.5万円 | 18.9万円 18.9万円 | 1LDK 41.23m2 | 築24年 | 都営大江戸線 東新宿駅 徒歩5分 東京メトロ副都心線 東新宿駅 徒歩5分 西武新宿線 西武新宿駅 徒歩8分 東京都新宿区歌舞伎町 | 詳細を見る | |
マンション ROOTS SHINJUKU WAKAMATSUCHO(1K/10階) | |||||||
![]() | 18.3万円 なし | なし 18.3万円 | 1K 30.55m2 | 築1年 | 都営大江戸線 牛込柳町駅 徒歩4分 都営大江戸線 若松河田駅 徒歩6分 東京メトロ東西線 早稲田駅(メトロ) 徒歩11分 東京都新宿区若松町 | 詳細を見る | |
アパート ハイムM(1K/1階) | |||||||
![]() | 8万円 なし | 8万円 なし | 1K 26m2 | 築48年 | JR総武線 東中野駅 徒歩6分 東京メトロ丸ノ内線 中野坂上駅 徒歩10分 東京都中野区東中野 | 詳細を見る | |
マンション メゾン明神下(1LDK/3階) | |||||||
![]() | 20万円 1.6万円 | 20万円 20万円 | 1LDK 40.1m2 | 築11年 | JR山手線 秋葉原駅 徒歩7分 東京メトロ銀座線 末広町駅(東京) 徒歩7分 JR総武線 御茶ノ水駅 徒歩9分 東京都千代田区外神田 | 詳細を見る | |








