賃貸マンション
トーシンフェニックス目白弐番館の賃貸物件情報(1K/4階)
| 家賃 | 管理費等 | 敷金 | 礼金 | 間取り | 専有面積 |
|---|---|---|---|---|---|
| 7.4万円 | 1万円 | なし | 7.4万円 | 1K | 20.61m2 |
入居決定でお祝い金最大100,000円
- 保証金
- -
- 償却・敷引
- -
- 築年数
- 築23年
- 所在階
- 4階
- 向き
- -
Point
お部屋探しは我々にお任せください!他ポータルサイトの物件や他社様掲載物件もまとめて全てご手配可能!!クレジットカードでの初期費用分割、賃料や初期費用の交渉、ご入居時期など何でもお気軽にご相談下さい。
提供:(株)アクアリアルエステート神田店(SUUMO経由)

詳細情報 トーシンフェニックス目白弐番館
物件紹介
トーシンフェニックス目白弐番館は西武池袋線椎名町駅から徒歩9分にあり、駅近で通勤通学に便利なマンションです。
このお部屋は2階以上に位置しているので、通行人や周囲の住人からの視線が気になりにくく、防犯面でも安心。建物のエントランスはオートロックがついており、インターホンにはTVモニタもついているため、相手の顔を確認してから来客対応することができます。
フローリングのお部屋なのでお掃除もラクラク。キッチンはシステムキッチン仕様になっていますので、お料理好きの方にもぴったり。また、バス・トイレは別で、のんびりお風呂タイムも楽しめるでしょう。
通信設備面ではBSアンテナ・CSアンテナがありますので、おうち時間も充実するでしょう(別途工事、契約料が必要な場合あり)。
建物にはエレベーターがついているので、重い荷物があっても安心。共用部には宅配ボックスが設定されているので、不在の時にも荷物を受け取ることができます。
このお部屋は2階以上に位置しているので、通行人や周囲の住人からの視線が気になりにくく、防犯面でも安心。建物のエントランスはオートロックがついており、インターホンにはTVモニタもついているため、相手の顔を確認してから来客対応することができます。
フローリングのお部屋なのでお掃除もラクラク。キッチンはシステムキッチン仕様になっていますので、お料理好きの方にもぴったり。また、バス・トイレは別で、のんびりお風呂タイムも楽しめるでしょう。
通信設備面ではBSアンテナ・CSアンテナがありますので、おうち時間も充実するでしょう(別途工事、契約料が必要な場合あり)。
建物にはエレベーターがついているので、重い荷物があっても安心。共用部には宅配ボックスが設定されているので、不在の時にも荷物を受け取ることができます。
お金・契約の情報
※「-」と表示されているものは、実際は料金が発生するものもございます。詳細はお問い合わせください。
| 家賃 | 7.4万円 | 管理費・共益費 | 1万円 |
|---|---|---|---|
| 敷金 | なし | 礼金 | 7.4万円 |
| 入居決定でお祝い金最大100,000円 | |||
| 保証金 | - | 償却・敷引 | - |
| 住宅保険料 | - | 更新料 | - |
| 保証会社利用 | 必須 | 保証会社名 | - |
| 保証会社費用 | - | 保証会社備考 | 保証会社利用必 あんしん保証50%(賃料+管理費+トラブルサポート24) |
| 契約形態 | - | 契約期間 | - |
| 入居・引渡期間 | - | 現況 | - |
| 契約備考 | 巡回管理/『自社物件成約で利益だけを考えるわけではなく、全ての物件の中からご満足いただける一件をご成約頂く』このような会社の考えだからこそ多くのお客様に選ばれております。未公開物件も他社様掲載物件もまとめてお調べし、まとめて全てご紹介いたします!!時間とお金をかけてお部屋探しをする時代は終わり!明るく楽しく元気よく最後までお付き合い致します! 合計8.25万円(内訳:ルームクリーニング代4.4万円抗菌消臭代1.1万円鍵交換代2.75万円) 更新料 新賃料1.00ヶ月分 トラブルサポート24 月額1100円 引落手数料 月額432円 1K 事務所利用不可 普通借家2年 損保【1.8万円2年】 バストイレ別、バルコニー、エアコン、ガスコンロ対応、クロゼット、フローリング、TVインターホン、オートロック、室内洗濯置、シューズボックス、システムキッチン、エレベーター、2口コンロ、宅配ボックス、敷金不要、照明付、分譲賃貸、保証人不要、全居室フローリング、2沿線利用可、CS、保証金不要、2駅利用可、3駅以上利用可、3沿線以上利用可、駅徒歩10分以内、都市ガス、BS、礼金1ヶ月、IT重説対応物件、初期費用カード決済可 入居日:'26年1月中旬 | ||
部屋の情報
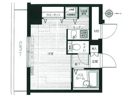
| 間取り | 1K | 専有面積 | 20.61m2 |
|---|---|---|---|
| 所在階 / 向き | 4階 / - | バルコニー面積 | 4m2 |
| 水道 / ガス | - | ||
| 設備 | バス・トイレ別、2階以上、オートロック、テレビドアホン、宅配ボックス、システムキッチン、エアコン、エレベーター、バルコニー、フローリング、2口コンロ、コンロ:ガス、CSアンテナ、BSアンテナ、洗濯機:室内 | ||
| 当社物件ID | 12805317 | ||
建物の情報
| 建物名 | トーシンフェニックス目白弐番館 | ||
|---|---|---|---|
| 所在地 | 東京都新宿区下落合 | ||
| 交通 | 西武池袋線 椎名町駅 徒歩9分 JR山手線 目白駅 徒歩11分 西武新宿線 下落合駅(東京) 徒歩12分 | ||
| 階数 | 13階建 | 総戸数 | - |
| 築年月 | 2003年12月 / 築23年 | エレベーター | あり |
| 駐車場 | なし | バイク置き場 | - |
| 駐輪場 | - | 管理人/管理会社 | - |
| 周辺環境 | その他 オーケー下落合店(スーパー)まで173m その他 まいばすけっと 下落合4丁目店(スーパー)まで189m その他 セブンイレブン 新宿下落合3丁目店(コンビニ)まで418m その他 マルマンストア 椎名町店(スーパー)まで702m その他 セブン-イレブン 新宿中落合3丁目店 (bikeshareポ(その他)まで612m その他 新宿下落合三郵便局(郵便局)まで597m | ||
| 建物種別 | マンション | 建物構造 | SRC(鉄骨鉄筋コンクリート) |
この部屋の取扱い不動産会社
| 会社名 | (株)アクアリアルエステート神田店(SUUMO経由) | ||
|---|---|---|---|
| 所在地 | 東京都千代田区神田富山町 1-2 TKKビル5階 | 交通 | - |
| 営業時間 | 10時~19時 | 定休日 | 年中無休 |
| 免許番号 | 東京都知事104295 | 取引態様 | 仲介 |
| 不動産会社管理番号 | 100472043876 | 当社管理番号 | 89 |
| 所属団体 | (公社)東京都宅地建物取引業協会会員 | ||
| 公正取引協議会 | (公社)首都圏不動産公正取引協議会加盟 | ||
| 取扱い物件情報 | 物件詳細へ | ||
※各種情報と現状に差異がある場合は、現状優先となります。問い合わせをすることで、より詳しい条件、情報を確認する事ができます。
提供:(株)アクアリアルエステート神田店(SUUMO経由)
この物件が気になったら掲載期限まであと10日
トーシンフェニックス目白弐番館に条件(家賃・エリア)が近い物件一覧
| 写真 | 家賃 管理費等 | 敷金 礼金 | 間取り 専有面積 | 築年数 | 最寄り駅 所在地 | キープ | 詳細 |
|---|---|---|---|---|---|---|---|
マンション イクス・ピア(1K/2階) | |||||||
![]() | 7.5万円 3,000円 | 7.5万円 7.5万円 | 1K 16.05m2 | 築18年 | 東京地下鉄南北線 本駒込駅 徒歩6分 山手線 駒込駅 徒歩12分 東京都三田線 白山駅(東京) 徒歩12分 東京都文京区本駒込3丁目 | 詳細を見る | |
マンション 菱和パレス御茶ノ水駿河台(1K/9階) | |||||||
![]() | 10.5万円 9,000円 | 10.5万円 10.5万円 | 1K 22.41m2 | 築26年 | 東京都新宿線 神保町駅 徒歩5分 東京都新宿線 小川町駅(東京) 徒歩5分 東京地下鉄丸ノ内線 淡路町駅 徒歩5分 東京都千代田区神田錦町3丁目 | 詳細を見る | |
マンション インペリアルお茶の水(ワンルーム/3階) | |||||||
![]() | 7.6万円 8,000円 | なし 7.6万円 | ワンルーム 14.84m2 | 築46年 | 東京都新宿線 小川町駅(東京) 徒歩5分 東京都三田線 神保町駅 徒歩5分 東京地下鉄半蔵門線 神保町駅 徒歩6分 東京都千代田区神田小川町3丁目 | 詳細を見る | |
マンション ガラ・シティ茗荷谷(1K/10階) | |||||||
![]() | 8.8万円 9,000円 | 8.8万円 17.6万円 | 1K 22.41m2 | 築25年 | 東京地下鉄丸ノ内線 茗荷谷駅 徒歩6分 東京地下鉄丸ノ内線 新大塚駅 徒歩9分 東京地下鉄有楽町線 護国寺駅 徒歩9分 東京都文京区大塚3丁目 | 詳細を見る | |
マンション ヴァンクール(1K/4階) | |||||||
![]() | 10.5万円 7,000円 | 10.5万円 10.5万円 | 1K 26.25m2 | 築19年 | 東京地下鉄丸ノ内線 茗荷谷駅 徒歩9分 東京都三田線 千石駅 徒歩12分 東京地下鉄有楽町線 護国寺駅 徒歩14分 東京都文京区大塚3丁目 | 詳細を見る | |
マンション ガラステーション岩本町ノース(1K/11階) | |||||||
![]() | 9.5万円 9,000円 | 9.5万円 19万円 | 1K 22.8m2 | 築20年 | 東京都新宿線 岩本町駅 徒歩2分 山手線 秋葉原駅 徒歩5分 東京地下鉄日比谷線 小伝馬町駅 徒歩8分 東京都千代田区岩本町3丁目 | 詳細を見る | |
マンション ヒルサイドテラス文京湯島(ワンルーム/4階) | |||||||
![]() | 9.2万円 5,000円 | なし なし | ワンルーム 17.07m2 | 築5年 | 東京地下鉄千代田線 湯島駅 徒歩2分 東京地下鉄銀座線 末広町駅(東京) 徒歩9分 山手線 御徒町駅 徒歩9分 東京都文京区湯島3丁目 | 詳細を見る | |
マンション 日神パレステージ御茶ノ水(ワンルーム/6階) | |||||||
![]() | 7.9万円 9,000円 | 7.9万円 7.9万円 | ワンルーム 20.93m2 | 築31年 | 東京地下鉄千代田線 湯島駅 徒歩6分 中央本線 御茶ノ水駅 徒歩8分 東京地下鉄銀座線 末広町駅(東京) 徒歩8分 東京都文京区湯島2丁目 | 詳細を見る | |









