賃貸マンション
コンフォートケヤキの賃貸物件情報(1K/4階)
| 家賃 | 管理費等 | 敷金 | 礼金 | 間取り | 専有面積 |
|---|---|---|---|---|---|
| 5万円 | 2,000円 | 5万円 | 5万円 | 1K | 32.27m2 |
入居決定でお祝い金最大100,000円
- 保証金
- -
- 償却・敷引
- -
- 築年数
- 築26年
- 所在階
- 4階
- 向き
- 南
Point
シンプルながらも風の通り道がしっかり造られている物件です。女性からの評価が高い、キッチンスぺースのある物件。全ての部屋で間取りと合った照明が取り付けられています。様々な場所へのアクセスが便利になる、2駅利用可能な物件です。こちらは角部屋物件です。設備も充実していて住みやすい、魅力が詰まったアパートで
提供:株式会社後楽不動産 ホームメイトFC門田屋敷店(賃貸スモッカ経由)

詳細情報 コンフォートケヤキ
物件紹介
コンフォートケヤキは山陽本線西川原駅から徒歩11分にあるマンションです。
このお部屋は2階以上に位置しているので通行人や周囲の住人からの視線が気になりにくく、建物のエントランスはオートロックがついているので防犯性が高くなっています。
人気の南向きのお部屋。また、フローリングなのでお掃除もラクラク。キッチンはシステムキッチン仕様になっていますので、お料理好きの方にもぴったり。また、バス・トイレは別で、のんびりお風呂タイムも楽しめるでしょう。
通信設備面ではBSアンテナがありますので、おうち時間も充実するでしょう(別途工事、契約料が必要な場合あり)。
建物にはエレベーターがついているので、重い荷物があっても安心。
このお部屋は2階以上に位置しているので通行人や周囲の住人からの視線が気になりにくく、建物のエントランスはオートロックがついているので防犯性が高くなっています。
人気の南向きのお部屋。また、フローリングなのでお掃除もラクラク。キッチンはシステムキッチン仕様になっていますので、お料理好きの方にもぴったり。また、バス・トイレは別で、のんびりお風呂タイムも楽しめるでしょう。
通信設備面ではBSアンテナがありますので、おうち時間も充実するでしょう(別途工事、契約料が必要な場合あり)。
建物にはエレベーターがついているので、重い荷物があっても安心。
お金・契約の情報
※「-」と表示されているものは、実際は料金が発生するものもございます。詳細はお問い合わせください。
| 家賃 | 5万円 | 管理費・共益費 | 2,000円 |
|---|---|---|---|
| 敷金 | 5万円 | 礼金 | 5万円 |
| 入居決定でお祝い金最大100,000円 | |||
| 保証金 | - | 償却・敷引 | - |
| 住宅保険料 | 住宅保険料あり | 更新料 | - |
| 契約形態 | - | 契約期間 | 2年 |
| 入居・引渡期間 | 即時 | 現況 | 空室 |
| 契約備考 | どこの不動産会社にお願いしようか迷っている方☆お部屋探しはホームメイト後楽不動産へ♪当社スタッフはお客様に寄り添った提案を心がけております♪女性スタッフ対応の要望や、初めてのお引越し時のアドバイス、初期費用についてや、保証人について、などなど何でもお気軽にご相談いただけたらと思います!お客様の条件に合う物件を納得いくまで一生懸命お探します♪ 月額6000円で駐車場を利用することができる物件です。ゆったりとした暮らしを実現する、専有面積32.27平米のお部屋。洗濯物も自然乾燥ですぐ乾く通風良好な間取りの物件。角部屋は人通りが少ないのでプライバシーが保たれます。BSアンテナが設置済みで、加入後すぐにBSが視聴できます。こちらの物件は閑静な住宅地にあります。共用部には敷地内ごみ置き場・エレベータ・バイク置場などが備わっておりとても充実しています。安心して暮らしたい方におすすめの、オートロック付き物件です。収納はクロゼット・シューズボックス・全居室収納など豊富なので、衣類や履き物の整理がしやすく便利です。お手入れしやすくなっているので綺麗な状態を保ちやすい洗面化粧台が付いています。こだわりポイント満載のコンフォートケヤキ。 鍵交換費:19,800円 保証会社:利用必須 ※保証料は加入会社により異なります。 その他設備/条件:IT重説 対応物件、免震・耐震・制震、独立洗面台、即入居可、エアコン複数、敷地内ゴミ置場 | ||
部屋の情報
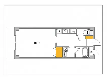
| 間取り | 1K | 専有面積 | 32.27m2 |
|---|---|---|---|
| 間取り詳細 | 洋室(10帖) | ||
| 所在階 / 向き | 4階 / 南 | バルコニー面積 | - |
| 水道 / ガス | ガス【プロパン】 | ||
| 設備 | バス・トイレ別、2階以上、オートロック、システムキッチン、エアコン、エレベーター、温水洗浄便座、南向き、バルコニー、フローリング、コンロ:ガス、BSアンテナ、洗濯機:室内 | ||
| 当社物件ID | 53222168 | ||
建物の情報
| 建物名 | コンフォートケヤキ | ||
|---|---|---|---|
| 所在地 | 岡山県岡山市中区東川原 | ||
| 交通 | 山陽本線 西川原駅 徒歩11分 山陽本線 高島駅(岡山) 徒歩23分 津山線 法界院駅 徒歩29分 | ||
| 階数 | 6階建 | 総戸数 | - |
| 築年月 | 2000年02月 / 築26年 | エレベーター | あり |
| 駐車場 | - | バイク置き場 | あり |
| 駐輪場 | あり | 管理人/管理会社 | - |
| 建物種別 | マンション | 建物構造 | RC(鉄筋コンクリート) |
この部屋の取扱い不動産会社
| 会社名 | 株式会社後楽不動産 ホームメイトFC門田屋敷店(賃貸スモッカ経由) | ||
|---|---|---|---|
| 所在地 | 岡山県岡山市中区門田屋敷1-7-38 | 交通 | - |
| 営業時間 | - | 定休日 | - |
| 免許番号 | 岡山県知事免許(1)第6267号 | 取引態様 | 仲介 |
| 不動産会社管理番号 | kouraku-fudousan3_330730000430466 | 当社管理番号 | 463 |
| 所属団体 | (公社)全国宅地建物取引業協会連合会\n(一社)岡山県宅地建物取引業協会\n四国地区不動産公正取引協議会 | ||
| 公正取引協議会 | (公社)全国宅地建物取引業保証協会 | ||
| 取扱い物件情報 | 物件詳細へ | ||
※各種情報と現状に差異がある場合は、現状優先となります。問い合わせをすることで、より詳しい条件、情報を確認する事ができます。
提供:株式会社後楽不動産 ホームメイトFC門田屋敷店(賃貸スモッカ経由)
この物件が気になったら掲載期限まであと7日
コンフォートケヤキに条件(家賃・エリア)が近い物件一覧
| 写真 | 家賃 管理費等 | 敷金 礼金 | 間取り 専有面積 | 築年数 | 最寄り駅 所在地 | キープ | 詳細 |
|---|---|---|---|---|---|---|---|
アパート アンジュB(ワンルーム/1階) | |||||||
![]() | 4.15万円 3,500円 | なし 4.15万円 | ワンルーム 32.9m2 | 築18年 | 岡山県岡山市中区沢田 | 詳細を見る | |
マンション ブライトンコート東山(1LDK/2階) | |||||||
![]() | 6.5万円 3,000円 | なし 6.5万円 | 1LDK 48m2 | 築9年 | 岡山電軌東山本線 東山・おかでんミュージアム駅駅 徒歩9分 岡山電軌東山本線 門田屋敷駅 徒歩12分 岡山県岡山市中区東山3丁目 | 詳細を見る | |
アパート アランコート(1LDK/2階) | |||||||
![]() | 5万円 3,500円 | なし 5万円 | 1LDK 33.34m2 | 築18年 | 山陽本線 高島駅(岡山) 徒歩16分 岡山県岡山市中区さい東町1丁目 | 詳細を見る | |
アパート ALICE(1K/1階) | |||||||
![]() | 5万円 3,000円 | なし なし | 1K 25.88m2 | 築6年 | 山陽本線 西川原駅 徒歩13分 岡山電軌東山本線 城下駅(岡山) 徒歩16分 岡山電軌東山本線 県庁通り駅 徒歩20分 岡山県岡山市中区浜1丁目 | 詳細を見る | |
マンション アリベ国富2(2LDK/6階) | |||||||
![]() | 7.5万円 5,000円 | 15万円 7.5万円 | 2LDK 61.06m2 | 築24年 | 岡山電軌東山本線 東山・おかでんミュージアム駅駅 徒歩21分 岡山電軌東山本線 中納言駅 徒歩21分 岡山電軌東山本線 小橋駅 徒歩21分 岡山県岡山市中区国富 | 詳細を見る | |
アパート メゾンラフィネあじさい(2LDK/1階) | |||||||
![]() | 4.7万円 3,000円 | 9.4万円 4.7万円 | 2LDK 50.92m2 | 築26年 | 赤穂線 伊部駅 徒歩7分 赤穂線 西片上駅 徒歩30分 赤穂線 備前片上駅 徒歩48分 岡山県備前市伊部 | 詳細を見る | |
アパート プロスペール(1LDK/2階) | |||||||
![]() | 6.5万円 4,000円 | なし 6.5万円 | 1LDK 42.68m2 | 築11年 | 岡山電軌東山本線 東山・おかでんミュージアム駅駅 徒歩29分 岡山電軌東山本線 門田屋敷駅 徒歩37分 岡山電軌清輝橋線 清輝橋駅 徒歩38分 岡山県岡山市中区平井5丁目 | 詳細を見る | |
アパート フラワーコート横関C(2LDK/2階) | |||||||
![]() | 4.7万円 3,500円 | なし 4.7万円 | 2LDK 57.63m2 | 築11年 | 岡山県瀬戸内市長船町長船 | 詳細を見る | |









