賃貸マンション
コンフォートケヤキの賃貸物件情報(1K/4階)
| 家賃 | 管理費等 | 敷金 | 礼金 | 間取り | 専有面積 |
|---|---|---|---|---|---|
| 5万円 | 2,000円 | 5万円 | 5万円 | 1K | 32.27m2 |
入居決定でお祝い金最大100,000円
Point
スマホ等を使って【LINEでのお問合せ】【オンライン内見】【オンライン重説】でのご契約手続きまで、非対面での対応が可能です!マンション・アパート・貸家など賃貸住宅を借りるならいい部屋ネット岡山東店へ♪
提供:(株)良和ハウス岡山駅西口店(SUUMO経由)

詳細情報 コンフォートケヤキ
物件紹介
コンフォートケヤキはJR山陽本線西川原駅から徒歩11分にあるマンションです。
このお部屋は2階以上に位置しているので通行人や周囲の住人からの視線が気になりにくく、建物のエントランスはオートロックがついているので防犯性が高くなっています。
人気の南向きのお部屋。また、フローリングなのでお掃除もラクラク。キッチンはシステムキッチン仕様になっていますので、お料理好きの方にもぴったり。また、バス・トイレは別で、のんびりお風呂タイムも楽しめるでしょう。
通信設備面では、インターネット接続が可能です。また、BSアンテナもありますので、おうち時間も充実するでしょう(別途工事、契約料が必要な場合あり)。
建物にはエレベーターがついているので、重い荷物があっても安心。
このお部屋は2階以上に位置しているので通行人や周囲の住人からの視線が気になりにくく、建物のエントランスはオートロックがついているので防犯性が高くなっています。
人気の南向きのお部屋。また、フローリングなのでお掃除もラクラク。キッチンはシステムキッチン仕様になっていますので、お料理好きの方にもぴったり。また、バス・トイレは別で、のんびりお風呂タイムも楽しめるでしょう。
通信設備面では、インターネット接続が可能です。また、BSアンテナもありますので、おうち時間も充実するでしょう(別途工事、契約料が必要な場合あり)。
建物にはエレベーターがついているので、重い荷物があっても安心。
お金・契約の情報
※「-」と表示されているものは、実際は料金が発生するものもございます。詳細はお問い合わせください。
| 家賃 | 5万円 | 管理費・共益費 | 2,000円 |
|---|---|---|---|
| 敷金 | 5万円 | 礼金 | 5万円 |
| 入居決定でお祝い金最大100,000円 | |||
| 保証金 | - | 償却・敷引 | - |
| 住宅保険料 | - | 更新料 | - |
| 契約形態 | - | 契約期間 | - |
| 入居・引渡期間 | - | 現況 | - |
| 契約備考 | カギ交換費用:19800円(税込) 合計1.98万円(内訳:カギ交換費用(税込)1.98万円) 1K 単身者限定/子供不可/ルームシェア不可 損保【1.6万円2年】 バストイレ別、バルコニー、エアコン、クロゼット、フローリング、オートロック、室内洗濯置、シューズボックス、南向き、温水洗浄便座、エレベーター、洗面所独立、洗面化粧台、駐輪場、照明付、全居室洋室、バス停徒歩3分以内、24時間ゴミ出し可、平面駐車場、プロパンガス、保証会社利用可、IT重説対応物件 入居日:'26年4月上旬 | ||
部屋の情報
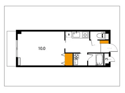
| 間取り | 1K | 専有面積 | 32.27m2 |
|---|---|---|---|
| 所在階 / 向き | 4階 / 南 | バルコニー面積 | - |
| 水道 / ガス | - | ||
| 設備 | バス・トイレ別、2階以上、オートロック、エアコン、エレベーター、温水洗浄便座、南向き、バルコニー、フローリング、洗髪洗面化粧台、洗濯機:室内 | ||
| 当社物件ID | 36597804 | ||
建物の情報
| 建物名 | コンフォートケヤキ | ||
|---|---|---|---|
| 所在地 | 岡山県岡山市中区東川原 | ||
| 交通 | JR山陽本線 西川原駅 徒歩12分 JR赤穂線 西川原駅 徒歩12分 | ||
| 階数 | 7階建 | 総戸数 | - |
| 築年月 | 2000年02月 / 築26年 | エレベーター | あり |
| 駐車場 | 近隣 150m6000円 | バイク置き場 | - |
| 駐輪場 | あり | 管理人/管理会社 | - |
| 周辺環境 | その他 岡山理科大学専門学校(その他)まで3761m その他 岡山東郵便局(郵便局)まで1388m その他 おかやまコープ コープ東川原(スーパー)まで202m その他 就実大学(大学・短大)まで821m その他 トマト銀行 原尾島支店(銀行)まで729m その他 丸亀製麺 岡山東川原店(飲食店)まで194m | ||
| 建物種別 | マンション | 建物構造 | RC(鉄筋コンクリート) |
この部屋の取扱い不動産会社
| 会社名 | いい部屋ネット大東建託リーシング(株)岡山東店(SUUMO経由) | ||
|---|---|---|---|
| 所在地 | 岡山県岡山市中区長岡 335-4 | 交通 | - |
| 営業時間 | 10:00~12:30、13:30~18:00 | 定休日 | 火曜日・水曜日 |
| 免許番号 | 国土交通大臣9120 | 取引態様 | 仲介 |
| 不動産会社管理番号 | 100485279650 | 当社管理番号 | 89 |
| 所属団体 | (公財)日本賃貸住宅管理協会会員 | ||
| 公正取引協議会 | (公社)首都圏不動産公正取引協議会加盟 | ||
| 取扱い物件情報 | 物件詳細へ | ||
※各種情報と現状に差異がある場合は、現状優先となります。問い合わせをすることで、より詳しい条件、情報を確認する事ができます。
提供:いい部屋ネット大東建託リーシング(株)岡山東店(SUUMO経由)
この物件が気になったら掲載期限まであと11日
コンフォートケヤキに条件(家賃・エリア)が近い物件一覧
| 写真 | 家賃 管理費等 | 敷金 礼金 | 間取り 専有面積 | 築年数 | 最寄り駅 所在地 | キープ | 詳細 |
|---|---|---|---|---|---|---|---|
アパート フレンチェ門田屋敷(ワンルーム/3階) | |||||||
![]() | 3万円 3,000円 | なし 3万円 | ワンルーム 25m2 | 築27年 | 岡山電軌東山本線 門田屋敷駅 徒歩2分 岡山県岡山市中区門田屋敷2丁目 | 詳細を見る | |
アパート セジュール若草A棟(3DK/2階) | |||||||
![]() | 5.5万円 なし | なし なし | 3DK 53.81m2 | 築32年 | 水島臨海鉄道 弥生駅 徒歩16分 水島臨海鉄道 浦田駅(岡山) 徒歩23分 水島臨海鉄道 栄駅(岡山) 徒歩25分 岡山県倉敷市連島 | 詳細を見る | |
アパート レオパレス高島(1K/1階) | |||||||
![]() | 3.5万円 6,500円 | なし なし | 1K 20.28m2 | 築21年 | 山陽本線 高島駅(岡山) 徒歩9分 岡山県岡山市中区中井 | 詳細を見る | |
アパート レーベン中畝III B(1K/2階) | |||||||
![]() | 4.15万円 3,500円 | なし 4.15万円 | 1K 27.49m2 | 築19年 | 水島臨海鉄道 水島駅 徒歩12分 水島臨海鉄道 常盤駅(岡山) 徒歩16分 水島臨海鉄道 栄駅(岡山) 徒歩21分 岡山県倉敷市中畝 | 詳細を見る | |
アパート ニルヴァーナ・ビエンネ(ワンルーム/1階) | |||||||
![]() | 4.4万円 3,000円 | なし なし | ワンルーム 47.79m2 | 築20年 | 水島臨海鉄道 西富井駅 徒歩15分 岡山県倉敷市東富井 | 詳細を見る | |
アパート レオパレスコンフォール石橋(1K/1階) | |||||||
![]() | 3.1万円 4,500円 | なし なし | 1K 20.37m2 | 築27年 | 岡山県倉敷市笹沖 | 詳細を見る | |
アパート 水島臨海鉄道 球場前駅(岡山) 徒歩9分 築52年(2LDK/1階) | |||||||
![]() | 4万円 なし | 8万円 4万円 | 2LDK 44.71m2 | 築52年 | 水島臨海鉄道 球場前駅(岡山) 徒歩9分 岡山県倉敷市安江 | 詳細を見る | |
アパート STAR WINGS(1LDK/2階) | |||||||
![]() | 6.3万円 4,000円 | 6.3万円 なし | 1LDK 36m2 | 新築 | 山陽本線 高島駅(岡山) 徒歩7分 岡山県岡山市中区高島新屋敷 | 詳細を見る | |








