賃貸マンション
スカイコート市ヶ谷第3の賃貸物件情報(1K/2階)
| 家賃 | 管理費等 | 敷金 | 礼金 | 間取り | 専有面積 |
|---|---|---|---|---|---|
| 6.6万円 | 7,000円 | 6.6万円 | なし | 1K | 16.24m2 |
入居決定でお祝い金最大100,000円
Point
中野・新宿・渋谷・杉並・練馬のお部屋探しは中野坂上店へ♪
提供:アパマンショップ品川駅前店

詳細情報 スカイコート市ヶ谷第3
物件紹介
スカイコート市ヶ谷第3は東京都大江戸線牛込柳町駅から徒歩3分にあり、駅近で通勤通学に便利なマンションです。
このお部屋は2階以上に位置しているので通行人や周囲の住人からの視線が気になりにくく、建物のエントランスはオートロックがついているので防犯性が高くなっています。
フローリングのお部屋なのでお掃除もラクラク。キッチンはシステムキッチン仕様になっていますので、お料理好きの方にもぴったり。
通信設備面では、インターネット接続が可能です。また、BSアンテナがありCATVにも対応しているので、おうち時間も充実するでしょう(別途工事、契約料が必要な場合あり)。
建物にはエレベーターがついているので、重い荷物があっても安心。
このお部屋は2階以上に位置しているので通行人や周囲の住人からの視線が気になりにくく、建物のエントランスはオートロックがついているので防犯性が高くなっています。
フローリングのお部屋なのでお掃除もラクラク。キッチンはシステムキッチン仕様になっていますので、お料理好きの方にもぴったり。
通信設備面では、インターネット接続が可能です。また、BSアンテナがありCATVにも対応しているので、おうち時間も充実するでしょう(別途工事、契約料が必要な場合あり)。
建物にはエレベーターがついているので、重い荷物があっても安心。
お金・契約の情報
※「-」と表示されているものは、実際は料金が発生するものもございます。詳細はお問い合わせください。
| 家賃 | 6.6万円 | 管理費・共益費 | 7,000円 |
|---|---|---|---|
| 敷金 | 6.6万円 | 礼金 | なし |
| 入居決定でお祝い金最大100,000円 | |||
| 保証金 | - | 償却・敷引 | - |
| 住宅保険料 | - | 更新料 | - |
| 保証会社利用 | 必須 | 保証会社名 | 株式会社エポスカード |
| 保証会社費用 | - | 保証会社備考 | 初回保証委託料(家賃管理費生活安心パック)×50%月々総賃料×1.4% |
| 契約形態 | - | 契約期間 | 2年 |
| 入居・引渡期間 | 2026年03月上旬 | 現況 | - |
| 契約備考 | 消火剤 5500円/鍵交換代 22000円 | ||
部屋の情報
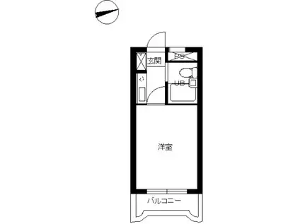
| 間取り | 1K | 専有面積 | 16.24m2 |
|---|---|---|---|
| 間取り詳細 | K(1帖)、洋室(6帖) | ||
| 所在階 / 向き | 2階 / 東 | バルコニー面積 | 3m2 |
| 水道 / ガス | ガス【都市】 | ||
| 設備 | オートロック、光ファイバー対応、エレベーター、バルコニー、フローリング、コンロ:IH、CATV、BSアンテナ、洗濯機:室内、タイル張り | ||
| 当社物件ID | 15608477 | ||
建物の情報
| 建物名 | スカイコート市ヶ谷第3 | ||
|---|---|---|---|
| 所在地 | 東京都新宿区市谷薬王寺町 | ||
| 交通 | 東京都大江戸線 若松河田駅 徒歩12分 | ||
| 階数 | 5階建 | 総戸数 | 34戸 |
| 築年月 | 1991年11月 / 築35年 | エレベーター | あり |
| 駐車場 | - | バイク置き場 | - |
| 駐輪場 | あり | 管理人/管理会社 | - |
| 周辺環境 | その他 ダイソーくすりの福太郎市谷柳町店 徒歩3分(197m) その他 まいばすけっと市谷薬王寺町店 徒歩4分(264m) その他 ライフ市谷薬王寺店 徒歩4分(311m) その他 ファミリーマート市谷柳町店 徒歩2分(158m) その他 セブンイレブン市谷柳町店 徒歩4分(289m) | ||
| 建物種別 | マンション | 建物構造 | RC(鉄筋コンクリート) |
この部屋の取扱い不動産会社
| 会社名 | アパマンショップ中野坂上店 | ||
|---|---|---|---|
| 所在地 | 東京都中野区中央2丁目 2−3STARLIGHT BLDG.1F | 交通 | 東京地下鉄丸ノ内線中野坂上から徒歩1分 |
| 営業時間 | 10:00〜17:00 | 定休日 | 火曜日、水曜日 |
| 免許番号 | 東京都知事(3)92941 | 取引態様 | 仲介 |
| 不動産会社管理番号 | 1000651632 | 当社管理番号 | 4 |
| 所属団体 | (公社)東京都宅地建物取引業協会 | ||
| 公正取引協議会 | (公社) 首都圏不動産公正取引協議会加盟 | ||
| 取扱い物件情報 | 物件詳細へ | ||
※各種情報と現状に差異がある場合は、現状優先となります。問い合わせをすることで、より詳しい条件、情報を確認する事ができます。
提供:アパマンショップ中野坂上店
この物件が気になったら掲載期限まであと13日
スカイコート市ヶ谷第3に条件(家賃・エリア)が近い物件一覧
| 写真 | 家賃 管理費等 | 敷金 礼金 | 間取り 専有面積 | 築年数 | 最寄り駅 所在地 | キープ | 詳細 |
|---|---|---|---|---|---|---|---|
アパート ペアパレス方南町(ワンルーム/2階) | |||||||
![]() | 4.5万円 5,000円 | 4.5万円 4.5万円 | ワンルーム 15.1m2 | 築36年 | 東京メトロ丸ノ内線 方南町駅 徒歩7分 東京メトロ丸ノ内線 中野富士見町駅 徒歩14分 京王線 笹塚駅 徒歩17分 東京都中野区南台 | 詳細を見る | |
アパート アムール駒込(ワンルーム/2階) | |||||||
![]() | 4.9万円 1,000円 | 4.9万円 4.9万円 | ワンルーム 10.5m2 | 築42年 | JR山手線 駒込駅 徒歩9分 東京メトロ南北線 西ケ原駅 徒歩9分 JR京浜東北線 上中里駅 徒歩11分 東京都豊島区駒込 | 詳細を見る | |
アパート スカイクーレ(1K/1階) | |||||||
![]() | 7.9万円 3,000円 | なし 7.9万円 | 1K 21.38m2 | 築17年 | 東京メトロ丸ノ内線 新中野駅 徒歩4分 JR総武線 中野駅(東京) 徒歩9分 都営大江戸線 中野坂上駅 徒歩19分 東京都中野区中央 | 詳細を見る | |
アパート メゾン神楽坂(1DK/1階) | |||||||
![]() | 7.3万円 なし | 7.3万円 7.3万円 | 1DK 24.84m2 | 築31年 | 都営大江戸線 牛込神楽坂駅 徒歩4分 JR中央線 飯田橋駅 徒歩6分 東京メトロ東西線 神楽坂駅 徒歩8分 東京都新宿区袋町 | 詳細を見る | |
アパート AW中野松が丘(1DK/1階) | |||||||
![]() | 9.4万円 3,000円 | なし なし | 1DK 23.39m2 | 新築 | 西武新宿線 新井薬師前駅 徒歩7分 西武新宿線 沼袋駅 徒歩9分 都営大江戸線 落合南長崎駅 徒歩15分 東京都中野区松が丘 | 詳細を見る | |
アパート 上高田四丁目計画(ワンルーム/2階) | |||||||
![]() | 9.3万円 5,000円 | 9.3万円 9.3万円 | ワンルーム 23.24m2 | 新築 | 東京メトロ東西線 落合駅 徒歩8分 都営大江戸線 中井駅 徒歩8分 JR中央線 東中野駅 徒歩15分 東京都中野区上高田 | 詳細を見る | |
アパート グレイス代々木(1K/1階) | |||||||
![]() | 9.2万円 2,000円 | 9.2万円 なし | 1K 24.16m2 | 築17年 | 小田急線 参宮橋駅 徒歩3分 京王新線 初台駅 徒歩10分 JR山手線 代々木駅 徒歩15分 東京都渋谷区代々木 | 詳細を見る | |
アパート ベルトリー沼袋(1SK/2階) | |||||||
![]() | 7.2万円 2,000円 | 7.2万円 3.6万円 | 1SK 19.85m2 | 築7年 | 西武新宿線 沼袋駅 徒歩6分 西武新宿線 野方駅 徒歩11分 西武新宿線 新井薬師前駅 徒歩18分 東京都中野区沼袋 | 詳細を見る | |








