賃貸アパート
JACK KAWAMAIの賃貸物件情報(1LDK/3階)
| 家賃 | 管理費等 | 敷金 | 礼金 | 間取り | 専有面積 |
|---|---|---|---|---|---|
| 6.6万円 | 3,500円 | なし | 6.6万円 | 1LDK | 30.45m2 |
入居決定でお祝い金最大100,000円
- 保証金
- -
- 償却・敷引
- -
- 築年数
- 築1年
- 所在階
- 3階
- 向き
- 南
Point
オートロック付なので女性、はじめての一人暮らしでも安心してご入居頂けます☆インターネット使用料不要なので面倒な手続き不要です◎LINE・メール・お電話でやり取り可能!
提供:スタイルエステート西支店(株)エムホームエステート(SUUMO経由)

詳細情報 JACK KAWAMAI
物件紹介
JACK KAWAMAIはあおなみ線港北駅から徒歩8分にあり、駅近で通勤通学に便利なアパートです。
このお部屋は2階以上に位置しているので、通行人や周囲の住人からの視線が気になりにくく、防犯面でも安心。建物のエントランスはオートロックがついており、インターホンにはTVモニタもついているため、相手の顔を確認してから来客対応することができます。
おしゃれなデザイナーズ物件!人気の南向き・フローリングのお部屋。角部屋でもあるため、周囲の居住者の生活音も気になりにくい場所です。キッチンはシステムキッチン仕様になっていますので、お料理好きの方にもぴったり。バス・トイレは別なので、のんびりお風呂タイムも楽しめるでしょう。また、雨の日でも浴室乾燥機を使えば、お洗濯も問題ありません。
通信設備面では、インターネットが無料で使えるので、月々の出費を抑えられるのも魅力です(別途工事等が必要な場合あり)。
共用部には宅配ボックスが設定されているので、不在の時にも荷物を受け取ることができます。
このお部屋は2階以上に位置しているので、通行人や周囲の住人からの視線が気になりにくく、防犯面でも安心。建物のエントランスはオートロックがついており、インターホンにはTVモニタもついているため、相手の顔を確認してから来客対応することができます。
おしゃれなデザイナーズ物件!人気の南向き・フローリングのお部屋。角部屋でもあるため、周囲の居住者の生活音も気になりにくい場所です。キッチンはシステムキッチン仕様になっていますので、お料理好きの方にもぴったり。バス・トイレは別なので、のんびりお風呂タイムも楽しめるでしょう。また、雨の日でも浴室乾燥機を使えば、お洗濯も問題ありません。
通信設備面では、インターネットが無料で使えるので、月々の出費を抑えられるのも魅力です(別途工事等が必要な場合あり)。
共用部には宅配ボックスが設定されているので、不在の時にも荷物を受け取ることができます。
お金・契約の情報
※「-」と表示されているものは、実際は料金が発生するものもございます。詳細はお問い合わせください。
| 家賃 | 6.6万円 | 管理費・共益費 | 3,500円 |
|---|---|---|---|
| 敷金 | なし | 礼金 | 6.6万円 |
| 入居決定でお祝い金最大100,000円 | |||
| 保証金 | - | 償却・敷引 | - |
| 住宅保険料 | - | 更新料 | - |
| 契約形態 | - | 契約期間 | - |
| 入居・引渡期間 | - | 現況 | - |
| 契約備考 | 巡回管理/ポータルサイトや他社サイトで気になるお部屋がありましたらお気軽にスタイルエステートまで♪ 1LDK 単身者可/二人入居可 普通借家2年 損保【要】 バストイレ別、バルコニー、ガスコンロ対応、クロゼット、フローリング、シャワー付洗面台、TVインターホン、浴室乾燥機、オートロック、室内洗濯置、システムキッチン、南向き、追焚機能浴室、角住戸、温水洗浄便座、脱衣所、洗面所独立、洗面化粧台、2口コンロ、宅配ボックス、最上階、敷金不要、防犯カメラ、保証人不要、デザイナーズ、ネット使用料不要、築2年以内、未入居、3駅以上利用可、駅徒歩10分以内、上階無し、敷地内ごみ置き場、プロパンガス、洗面所にドア、エコキュート、南面バルコニー、礼金1ヶ月、IT重説対応物件、初期費用カード決済可 入居日:'26年5月下旬 | ||
部屋の情報
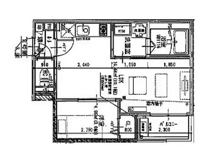
| 間取り | 1LDK | 専有面積 | 30.45m2 |
|---|---|---|---|
| 所在階 / 向き | 3階 / 南 | バルコニー面積 | - |
| 水道 / ガス | - | ||
| 設備 | バス・トイレ別、2階以上、オートロック、テレビドアホン、宅配ボックス、浴室乾燥機、追い焚き、インターネット対応、システムキッチン、温水洗浄便座、南向き、角部屋、バルコニー、フローリング、洗髪洗面化粧台、2口コンロ、コンロ:ガス、デザイナーズ、インターネット使用料無料、洗濯機:室内 | ||
| 当社物件ID | 160342115 | ||
建物の情報
| 建物名 | JACK KAWAMAI | ||
|---|---|---|---|
| 所在地 | 愛知県名古屋市港区川間町 | ||
| 交通 | あおなみ線 港北駅 徒歩8分 あおなみ線 中島駅(愛知) 徒歩20分 あおなみ線 荒子川公園駅 徒歩21分 | ||
| 階数 | 3階建 | 総戸数 | 9戸 |
| 築年月 | 2026年05月 / 築1年 | エレベーター | - |
| 駐車場 | 近隣 200m8000円 | バイク置き場 | - |
| 駐輪場 | - | 管理人/管理会社 | - |
| 周辺環境 | その他 EQVo!入場店(スーパー)まで1218m その他 スギドラッグ 正保店(ドラッグストア)まで736m その他 セブンイレブン 名古屋小割通2丁目店(コンビニ)まで268m その他 ピアゴ ラ フーズコア 正保店(スーパー)まで664m その他 ロピア 名古屋みなと店(スーパー)まで1169m その他 名古屋土古郵便局(郵便局)まで656m | ||
| 建物種別 | アパート | 建物構造 | 木造 |
この部屋の取扱い不動産会社
| 会社名 | スタイルエステート西支店(株)エムホームエステート(SUUMO経由) | ||
|---|---|---|---|
| 所在地 | 愛知県名古屋市中川区高畑1-235 | 交通 | - |
| 営業時間 | 10:00~19:00 | 定休日 | - |
| 免許番号 | 愛知県知事22094 | 取引態様 | 仲介 |
| 不動産会社管理番号 | 100486622469 | 当社管理番号 | 89 |
| 所属団体 | (公社)愛知県宅地建物取引業協会会員 | ||
| 公正取引協議会 | 東海不動産公正取引協議会加盟 | ||
| 取扱い物件情報 | 物件詳細へ | ||
※各種情報と現状に差異がある場合は、現状優先となります。問い合わせをすることで、より詳しい条件、情報を確認する事ができます。
提供:スタイルエステート西支店(株)エムホームエステート(SUUMO経由)
この物件が気になったら掲載期限まであと11日
JACK KAWAMAIに条件(家賃・エリア)が近い物件一覧
| 写真 | 家賃 管理費等 | 敷金 礼金 | 間取り 専有面積 | 築年数 | 最寄り駅 所在地 | キープ | 詳細 |
|---|---|---|---|---|---|---|---|
アパート パークサイド狩宿(2LDK/1階) | |||||||
![]() | 4.5万円 3,000円 | 5万円 なし | 2LDK 48.82m2 | 築41年 | 名鉄瀬戸線 三郷駅(愛知) 徒歩13分 名鉄瀬戸線 水野駅 徒歩24分 名鉄瀬戸線 尾張旭駅 徒歩32分 愛知県尾張旭市狩宿新町 | 詳細を見る | |
マンション 風見乃郷(1K/1階) | |||||||
![]() | 4.6万円 3,000円 | なし なし | 1K 38m2 | 築29年 | 名鉄瀬戸線 新瀬戸駅 徒歩13分 愛知県瀬戸市見付町 | 詳細を見る | |
マンション ハイツ吉川(2LDK/3階) | |||||||
![]() | 5.3万円 3,000円 | なし なし | 2LDK 50m2 | 築48年 | 愛知県海部郡大治町大字馬島字大道西 | 詳細を見る | |
マンション アルファ・プレイス(1K/1階) | |||||||
![]() | 4.5万円 3,500円 | なし なし | 1K 28.08m2 | 築28年 | 名古屋市名港線 東海通駅 徒歩7分 愛知県名古屋市港区七番町2丁目 | 詳細を見る | |
マンション グランデ松蔭(2LDK/4階) | |||||||
![]() | 7.6万円 4,000円 | 10万円 7.6万円 | 2LDK 78.39m2 | 築32年 | あおなみ線 中島駅(愛知) 徒歩28分 あおなみ線 南荒子駅 徒歩37分 あおなみ線 港北駅 徒歩38分 愛知県名古屋市中川区下之一色町松蔭 | 詳細を見る | |
アパート JACK KORAKUⅡ(1LDK/3階) | |||||||
![]() | 6.45万円 3,500円 | なし 6.45万円 | 1LDK 30.9m2 | 築1年 | 名古屋市名港線 築地口駅 徒歩5分 名古屋市名港線 港区役所駅 徒歩8分 愛知県名古屋市港区港楽3丁目 | 詳細を見る | |
アパート メゾンフィオーレ(2DK/2階) | |||||||
![]() | 5.5万円 6,500円 | なし なし | 2DK 50.42m2 | 築16年 | 名鉄津島線 甚目寺駅 徒歩35分 名古屋市東山線 中村公園駅 徒歩36分 愛知県海部郡大治町大字北間島字柿木 | 詳細を見る | |
マンション ガーデニングヒルズ五条(2LDK/3階) | |||||||
![]() | 6.1万円 5,000円 | 6.1万円 なし | 2LDK 57.33m2 | 築21年 | 東海道本線 稲沢駅 徒歩34分 名鉄犬山線 徳重・名古屋芸大駅 徒歩38分 愛知県北名古屋市山之腰五条 | 詳細を見る | |









