賃貸アパート
JACK KAWAMAIの賃貸物件情報(1LDK/2階)
| 家賃 | 管理費等 | 敷金 | 礼金 | 間取り | 専有面積 |
|---|---|---|---|---|---|
| 6.5万円 | 3,500円 | なし | 6.5万円 | 1LDK | 30.62m2 |
入居決定でお祝い金最大100,000円
- 保証金
- -
- 償却・敷引
- -
- 築年数
- 新築
- 所在階
- 2階
- 向き
- 北
Point
オートロック付なので女性、はじめての一人暮らしでも安心してご入居頂けます☆インターネット使用料不要なので面倒な手続き不要です◎LINE・メール・お電話でやり取り可能!
提供:スタイルエステート西支店(株)エムホームエステート(SUUMO経由)

詳細情報 JACK KAWAMAI
物件紹介
JACK KAWAMAIはあおなみ線港北駅から徒歩8分にあり、駅近で通勤通学に便利なアパートです。
このお部屋は2階以上に位置しているので、通行人や周囲の住人からの視線が気になりにくく、防犯面でも安心。建物のエントランスはオートロックがついており、インターホンにはTVモニタもついているため、相手の顔を確認してから来客対応することができます。
おしゃれなデザイナーズ物件!人気の角部屋で周囲の居住者の生活音も気になりにくく、また、フローリングのお部屋なのでお掃除もラクラク。キッチンはシステムキッチン仕様になっていますので、お料理好きの方にもぴったり。バス・トイレは別なので、のんびりお風呂タイムも楽しめるでしょう。また、雨の日でも浴室乾燥機を使えば、お洗濯も問題ありません。
通信設備面では、インターネットが無料で使えるので、月々の出費を抑えられるのも魅力です(別途工事等が必要な場合あり)。
共用部には宅配ボックスが設定されているので、不在の時にも荷物を受け取ることができます。
このお部屋は2階以上に位置しているので、通行人や周囲の住人からの視線が気になりにくく、防犯面でも安心。建物のエントランスはオートロックがついており、インターホンにはTVモニタもついているため、相手の顔を確認してから来客対応することができます。
おしゃれなデザイナーズ物件!人気の角部屋で周囲の居住者の生活音も気になりにくく、また、フローリングのお部屋なのでお掃除もラクラク。キッチンはシステムキッチン仕様になっていますので、お料理好きの方にもぴったり。バス・トイレは別なので、のんびりお風呂タイムも楽しめるでしょう。また、雨の日でも浴室乾燥機を使えば、お洗濯も問題ありません。
通信設備面では、インターネットが無料で使えるので、月々の出費を抑えられるのも魅力です(別途工事等が必要な場合あり)。
共用部には宅配ボックスが設定されているので、不在の時にも荷物を受け取ることができます。
お金・契約の情報
※「-」と表示されているものは、実際は料金が発生するものもございます。詳細はお問い合わせください。
| 家賃 | 6.5万円 | 管理費・共益費 | 3,500円 |
|---|---|---|---|
| 敷金 | なし | 礼金 | 6.5万円 |
| 入居決定でお祝い金最大100,000円 | |||
| 保証金 | - | 償却・敷引 | - |
| 住宅保険料 | - | 更新料 | - |
| 契約形態 | - | 契約期間 | - |
| 入居・引渡期間 | - | 現況 | - |
| 契約備考 | 巡回管理/見学から契約までご来店不要でご対応可能です♪駐車場の空き状況は別途お問い合わせ下さい。 1LDK 単身者可/二人入居可 普通借家2年 損保【要】 バストイレ別、バルコニー、ガスコンロ対応、クロゼット、フローリング、シャワー付洗面台、TVインターホン、浴室乾燥機、オートロック、室内洗濯置、システムキッチン、追焚機能浴室、角住戸、温水洗浄便座、脱衣所、洗面所独立、洗面化粧台、2口コンロ、宅配ボックス、敷金不要、防犯カメラ、保証人不要、デザイナーズ、ネット使用料不要、築2年以内、未入居、3駅以上利用可、駅徒歩10分以内、敷地内ごみ置き場、プロパンガス、洗面所にドア、エコキュート、礼金1ヶ月、IT重説対応物件、初期費用カード決済可 入居日:'26年5月下旬 | ||
部屋の情報
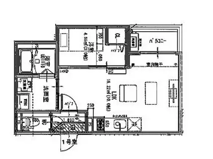
| 間取り | 1LDK | 専有面積 | 30.62m2 |
|---|---|---|---|
| 所在階 / 向き | 2階 / 北 | バルコニー面積 | - |
| 水道 / ガス | - | ||
| 設備 | バス・トイレ別、2階以上、オートロック、テレビドアホン、宅配ボックス、浴室乾燥機、追い焚き、インターネット対応、システムキッチン、温水洗浄便座、角部屋、バルコニー、フローリング、洗髪洗面化粧台、2口コンロ、コンロ:ガス、デザイナーズ、インターネット使用料無料、洗濯機:室内 | ||
| 当社物件ID | 160342113 | ||
建物の情報
| 建物名 | JACK KAWAMAI | ||
|---|---|---|---|
| 所在地 | 愛知県名古屋市港区川間町 | ||
| 交通 | あおなみ線 港北駅 徒歩8分 あおなみ線 中島駅(愛知) 徒歩20分 あおなみ線 荒子川公園駅 徒歩21分 | ||
| 階数 | 3階建 | 総戸数 | 9戸 |
| 築年月 | 2026年05月 / 新築 | エレベーター | - |
| 駐車場 | 近隣 200m8000円 | バイク置き場 | - |
| 駐輪場 | - | 管理人/管理会社 | - |
| 周辺環境 | その他 ピアゴ ラ フーズコア 正保店(スーパー)まで664m その他 EQVo!入場店(スーパー)まで1218m その他 スギドラッグ 正保店(ドラッグストア)まで736m その他 名古屋土古郵便局(郵便局)まで656m その他 セブンイレブン 名古屋小割通2丁目店(コンビニ)まで268m その他 ロピア 名古屋みなと店(スーパー)まで1169m | ||
| 建物種別 | アパート | 建物構造 | 木造 |
この部屋の取扱い不動産会社
| 会社名 | スタイルエステート西支店(株)エムホームエステート(SUUMO経由) | ||
|---|---|---|---|
| 所在地 | 愛知県名古屋市中川区高畑1-235 | 交通 | - |
| 営業時間 | 10:00~20:00 | 定休日 | - |
| 免許番号 | 愛知県知事22094 | 取引態様 | 仲介 |
| 不動産会社管理番号 | 100486622465 | 当社管理番号 | 89 |
| 所属団体 | (公社)愛知県宅地建物取引業協会会員 | ||
| 公正取引協議会 | 東海不動産公正取引協議会加盟 | ||
| 取扱い物件情報 | 物件詳細へ | ||
※各種情報と現状に差異がある場合は、現状優先となります。問い合わせをすることで、より詳しい条件、情報を確認する事ができます。
提供:スタイルエステート西支店(株)エムホームエステート(SUUMO経由)
この物件が気になったら掲載期限まであと10日
JACK KAWAMAIに条件(家賃・エリア)が近い物件一覧
| 写真 | 家賃 管理費等 | 敷金 礼金 | 間取り 専有面積 | 築年数 | 最寄り駅 所在地 | キープ | 詳細 |
|---|---|---|---|---|---|---|---|
マンション クレセントマンション(2LDK/4階) | |||||||
![]() | 5.9万円 4,000円 | なし なし | 2LDK 52.86m2 | 築31年 | 名古屋臨海高速鉄道 荒子川公園駅 徒歩15分 名古屋臨海高速鉄道 稲永駅 徒歩22分 愛知県名古屋市港区善進本町 | 詳細を見る | |
アパート ブランドミール(ワンルーム/2階) | |||||||
![]() | 4.5万円 6,500円 | なし なし | ワンルーム 28.98m2 | 築24年 | 近鉄名古屋線 近鉄蟹江駅 徒歩10分 近鉄名古屋線 戸田駅(愛知) 徒歩15分 愛知県海部郡蟹江町本町9丁目 | 詳細を見る | |
アパート エターナルⅠ(1LDK/3階) | |||||||
![]() | 6万円 2,900円 | なし 8万円 | 1LDK 61.59m2 | 築15年 | 愛知県名古屋市港区春田野2丁目 | 詳細を見る | |
アパート レオパレス新川(1K/2階) | |||||||
![]() | 6.7万円 5,000円 | なし なし | 1K 23.18m2 | 築25年 | 名鉄名古屋本線 須ケ口駅 徒歩6分 愛知県清須市須ケ口 | 詳細を見る | |
マンション ロイヤル長草(3DK/2階) | |||||||
![]() | 6万円 3,500円 | なし なし | 3DK 57.57m2 | 築38年 | 東海道本線 共和駅 徒歩22分 武豊線 大府駅 徒歩39分 愛知県大府市長草町墓所根 | 詳細を見る | |
マンション フィオーレ関田(1K/5階) | |||||||
![]() | 5.6万円 4,500円 | なし なし | 1K 28.5m2 | 築23年 | 中央本線 春日井駅(JR) 徒歩10分 中央本線 神領駅 徒歩40分 愛知県春日井市関田町1丁目 | 詳細を見る | |
マンション ファミーユ浅井(2LDK/3階) | |||||||
![]() | 7.1万円 3,000円 | なし なし | 2LDK 62.14m2 | 築38年 | 地下鉄鶴舞線 赤池駅(愛知) 徒歩8分 地下鉄鶴舞線 平針駅 徒歩20分 地下鉄鶴舞線 原駅(愛知) 徒歩34分 愛知県日進市浅田町笹原 | 詳細を見る | |
マンション KIソシア Ⅰ(2LDK/2階) | |||||||
![]() | 5.3万円 5,000円 | なし なし | 2LDK 56.7m2 | 築34年 | 中央本線 神領駅 徒歩13分 中央本線 高蔵寺駅 徒歩36分 愛知県春日井市大留町5丁目 | 詳細を見る | |









