賃貸マンション
エステムコート難波ミューステージの賃貸物件情報(1K/10階)
| 家賃 | 管理費等 | 敷金 | 礼金 | 間取り | 専有面積 |
|---|---|---|---|---|---|
| 5.9万円 | 5,000円 | なし | なし | 1K | 18.9m2 |
入居決定でお祝い金最大100,000円
- 保証金
- -
- 償却・敷引
- -
- 築年数
- 築24年
- 所在階
- 10階
- 向き
- -
Point
室内設備は洗面所独立・浴室乾燥機などが揃っており、とても充実しています。共用部には宅配ボックスを設置しているため、対面で荷物を受け取る必要がなくなります。エレベーター付きの物件です。
提供:いい部屋ネット南森町店(株)上方住宅(SUUMO経由)

詳細情報 エステムコート難波ミューステージ
物件紹介
エステムコート難波ミューステージは地下鉄四つ橋線大国町駅から徒歩6分にあり、駅近で通勤通学に便利なマンションです。
このお部屋は2階以上に位置しているので、通行人や周囲の住人からの視線が気になりにくく、防犯面でも安心。建物のエントランスはオートロックがついており、インターホンにはTVモニタもついているため、相手の顔を確認してから来客対応することができます。
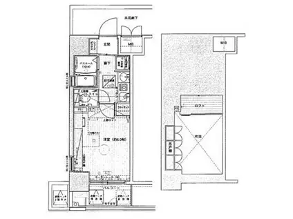
人気のロフト付きのお部屋。多目的に利用でき、お部屋のアレンジも自在です。バス・トイレ別の仕様で、のんびりお風呂タイムも楽しめます。また、浴室乾燥機を使えば、雨の日でもお洗濯は問題ありません。
建物にはエレベーターがついているので、重い荷物があっても安心。共用部には宅配ボックスが設定されているので、不在の時にも荷物を受け取ることができます。
このお部屋は2階以上に位置しているので、通行人や周囲の住人からの視線が気になりにくく、防犯面でも安心。建物のエントランスはオートロックがついており、インターホンにはTVモニタもついているため、相手の顔を確認してから来客対応することができます。
人気のロフト付きのお部屋。多目的に利用でき、お部屋のアレンジも自在です。バス・トイレ別の仕様で、のんびりお風呂タイムも楽しめます。また、浴室乾燥機を使えば、雨の日でもお洗濯は問題ありません。
建物にはエレベーターがついているので、重い荷物があっても安心。共用部には宅配ボックスが設定されているので、不在の時にも荷物を受け取ることができます。
お金・契約の情報
※「-」と表示されているものは、実際は料金が発生するものもございます。詳細はお問い合わせください。
| 家賃 | 5.9万円 | 管理費・共益費 | 5,000円 |
|---|---|---|---|
| 敷金 | なし | 礼金 | なし |
| 入居決定でお祝い金最大100,000円 | |||
| 保証金 | - | 償却・敷引 | - |
| 住宅保険料 | - | 更新料 | - |
| 契約形態 | - | 契約期間 | - |
| 入居・引渡期間 | - | 現況 | - |
| 契約備考 | 合計2.53万円(内訳:鍵交換代2.53万円) 1K 普通借家2年 損保【2万円2年】 バストイレ別、バルコニー、エアコン、ガスコンロ対応、TVインターホン、浴室乾燥機、オートロック、室内洗濯置、シューズボックス、エレベーター、洗面所独立、宅配ボックス、礼金不要、敷金不要、防犯カメラ、ロフト、24時間緊急通報システム、保証金不要、敷金・礼金不要 入居日:'26年2月中旬 | ||
部屋の情報
| 間取り | 1K | 専有面積 | 18.9m2 |
|---|---|---|---|
| 所在階 / 向き | 10階 / - | バルコニー面積 | - |
| 水道 / ガス | - | ||
| 設備 | バス・トイレ別、2階以上、オートロック、テレビドアホン、宅配ボックス、浴室乾燥機、エアコン、エレベーター、バルコニー、ロフトあり、洗髪洗面化粧台、コンロ:ガス、洗濯機:室内 | ||
| 当社物件ID | 9406819 | ||
建物の情報
| 建物名 | エステムコート難波ミューステージ | ||
|---|---|---|---|
| 所在地 | 大阪府大阪市浪速区難波中 | ||
| 交通 | 地下鉄四つ橋線 大国町駅 徒歩6分 地下鉄御堂筋線 大国町駅 徒歩6分 南海本線 難波駅(南海) 徒歩9分 | ||
| 階数 | 13階建 | 総戸数 | - |
| 築年月 | 2002年02月 / 築24年 | エレベーター | あり |
| 駐車場 | なし | バイク置き場 | - |
| 駐輪場 | - | 管理人/管理会社 | - |
| 建物種別 | マンション | 建物構造 | SRC(鉄骨鉄筋コンクリート) |
この部屋の取扱い不動産会社
| 会社名 | ツインホーム(株)本店(SUUMO経由) | ||
|---|---|---|---|
| 所在地 | 大阪府大阪市阿倍野区松崎町4-1-13 | 交通 | - |
| 営業時間 | 10:00~20:00 | 定休日 | なし |
| 免許番号 | 大阪府知事46704 | 取引態様 | 仲介 |
| 不動産会社管理番号 | 100480691180 | 当社管理番号 | 89 |
| 所属団体 | (公社)全日本不動産協会大阪府本部会員 | ||
| 公正取引協議会 | (公社)近畿地区不動産公正取引協議会加盟 | ||
| 取扱い物件情報 | 物件詳細へ | ||
※各種情報と現状に差異がある場合は、現状優先となります。問い合わせをすることで、より詳しい条件、情報を確認する事ができます。
提供:ツインホーム(株)本店(SUUMO経由)
この物件が気になったら掲載期限まであと12日
エステムコート難波ミューステージに条件(家賃・エリア)が近い物件一覧
| 写真 | 家賃 管理費等 | 敷金 礼金 | 間取り 専有面積 | 築年数 | 最寄り駅 所在地 | キープ | 詳細 |
|---|---|---|---|---|---|---|---|
アパート ミサワレジデンス門真(ワンルーム/1階) | |||||||
![]() | 6万円 5,200円 | なし 6万円 | ワンルーム 30.26m2 | 築12年 | 京阪本線 西三荘駅 徒歩7分 京阪本線 門真市駅 徒歩8分 地下鉄谷町線 大日駅 徒歩12分 大阪府門真市小路町 | 詳細を見る | |
マンション ドムスOGAWA(1K/3階) | |||||||
![]() | 5万円 3,000円 | なし 5万円 | 1K 22m2 | 築28年 | 関西本線 八尾駅 徒歩7分 近鉄大阪線 近鉄八尾駅 徒歩22分 大阪府八尾市陽光園2丁目 | 詳細を見る | |
マンション コート千里山西III(1K/3階) | |||||||
| 5万円 6,000円 | なし なし | 1K 23.7m2 | 築28年 | 阪急電鉄千里線 千里山駅 徒歩4分 阪急電鉄千里線 関大前駅 徒歩10分 北大阪急行南北線 緑地公園駅 徒歩14分 大阪府吹田市千里山西1丁目41-15 | 詳細を見る | ||
マンション ドゥーエ江坂1(ワンルーム/3階) | |||||||
| 6.3万円 8,000円 | なし 6.3万円 | ワンルーム 25m2 | 築19年 | 阪急電鉄千里線 豊津駅(大阪) 徒歩10分 北大阪急行南北線 江坂駅 徒歩10分 阪急電鉄千里線 吹田駅(阪急) 徒歩19分 大阪府吹田市垂水町3丁目26-27 | 詳細を見る | ||
アパート フジパレス上野芝3番館(1K/2階) | |||||||
![]() | 6.15万円 4,600円 | なし なし | 1K 30.3m2 | 築1年 | 阪和線 上野芝駅 徒歩6分 阪和線 津久野駅 徒歩17分 阪和線 百舌鳥駅 徒歩23分 大阪府堺市西区上野芝町4丁 | 詳細を見る | |
マンション エリセラ 門真南(1K/2階) | |||||||
![]() | 4.3万円 3,000円 | なし なし | 1K 23.73m2 | 築22年 | 大阪メトロ長堀鶴見緑地 門真南駅 徒歩6分 大阪府門真市ひえ島町町 | 詳細を見る | |
マンション 柳町マンション(ワンルーム/2階) | |||||||
![]() | 4.5万円 なし | 9万円 4.5万円 | ワンルーム 25m2 | 築41年 | 京阪電気鉄道京阪線 門真市駅 徒歩8分 京阪電気鉄道京阪線 古川橋駅 徒歩10分 大阪市谷町線 大日駅 徒歩24分 大阪府門真市柳町 | 詳細を見る | |
マンション アールエスフラッツ(1DK/8階) | |||||||
| 7.5万円 7,000円 | なし 15万円 | 1DK 27.96m2 | 築30年 | 大阪市御堂筋線 江坂駅 徒歩5分 阪急電鉄千里線 豊津駅(大阪) 徒歩15分 阪急電鉄千里線 関大前駅 徒歩20分 大阪府吹田市江坂町1丁目16-5 | 詳細を見る | ||





