賃貸マンション
グラントレゾール駒形の賃貸物件情報(1LDK/6階)
| 家賃 | 管理費等 | 敷金 | 礼金 | 間取り | 専有面積 |
|---|---|---|---|---|---|
| 16.5万円 | 1万円 | 16.5万円 | 16.5万円 | 1LDK | 44.2m2 |
入居決定でお祝い金最大100,000円
- 保証金
- -
- 償却・敷引
- 16.5万円
- 築年数
- 築15年
- 所在階
- 6階
- 向き
- 東
- 交通
- 都営浅草線 本所吾妻橋駅 徒歩4分
東京メトロ銀座線 浅草駅(東武・都営・メトロ) 徒歩12分
東京メトロ半蔵門線 押上駅 徒歩14分
- 所在地
- 東京都墨田区東駒形
グラントレゾール駒形
[地図を表示]
Point
初期費用のクレジットカード決済希望の方はご相談ください。遠方の方やご来店が難しい方はオンラインでのご案内が可能です。家賃や初期費用など、その他ご希望がございましたら交渉はお任せください。
提供:iitoko(株)(SUUMO経由)

詳細情報 グラントレゾール駒形
物件紹介
グラントレゾール駒形は都営浅草線本所吾妻橋駅から徒歩4分にあり、駅近で通勤通学に便利なマンションです。
このお部屋は2階以上に位置しているので、通行人や周囲の住人からの視線が気になりにくく、防犯面でも安心。建物のエントランスはオートロックがついており、インターホンにはTVモニタもついているため、相手の顔を確認してから来客対応することができます。
フローリングのお部屋なのでお掃除もラクラク。キッチンはシステムキッチン仕様になっていますので、お料理好きの方にもぴったり。バス・トイレは別なので、のんびりお風呂タイムも楽しめるでしょう。また、雨の日でも浴室乾燥機を使えば、お洗濯も問題ありません。
建物にはエレベーターがついているので、重い荷物があっても安心。共用部には宅配ボックスが設定されているので、不在の時にも荷物を受け取ることができます。また、ペット飼育の相談ができますので、あなたの大切な家族の一員も快適に暮らせるか、ぜひ確認してみてください。
このお部屋は2階以上に位置しているので、通行人や周囲の住人からの視線が気になりにくく、防犯面でも安心。建物のエントランスはオートロックがついており、インターホンにはTVモニタもついているため、相手の顔を確認してから来客対応することができます。
フローリングのお部屋なのでお掃除もラクラク。キッチンはシステムキッチン仕様になっていますので、お料理好きの方にもぴったり。バス・トイレは別なので、のんびりお風呂タイムも楽しめるでしょう。また、雨の日でも浴室乾燥機を使えば、お洗濯も問題ありません。
建物にはエレベーターがついているので、重い荷物があっても安心。共用部には宅配ボックスが設定されているので、不在の時にも荷物を受け取ることができます。また、ペット飼育の相談ができますので、あなたの大切な家族の一員も快適に暮らせるか、ぜひ確認してみてください。
お金・契約の情報
※「-」と表示されているものは、実際は料金が発生するものもございます。詳細はお問い合わせください。
| 家賃 | 16.5万円 | 管理費・共益費 | 1万円 |
|---|---|---|---|
| 敷金 | 16.5万円 | 礼金 | 16.5万円 |
| 入居決定でお祝い金最大100,000円 | |||
| 保証金 | - | 償却・敷引 | 16.5万円 |
| 住宅保険料 | - | 更新料 | - |
| 保証会社利用 | 必須 | 保証会社名 | - |
| 保証会社費用 | - | 保証会社備考 | 保証会社利用必 初回保証料:賃料総額の50% 以後1年ごとに1.5万円 口座振替手数料:330円/月 |
| 契約形態 | - | 契約期間 | - |
| 入居・引渡期間 | 相談 | 現況 | - |
| 入居可能条件 | ペット相談 | ||
| 契約備考 | 巡回管理/本所吾妻橋駅は、周辺には東京スカイツリー、アサヒビール本社ビルなど日本を代表する観光名所があります。スカイツリーまで徒歩約9分、雷門まで約16分と近いですが、観光地からは外れているので静かで住みやすい住宅街です。のんびり下町の雰囲気が好きな方にオススメです。大きなスーパーは少ないですがコンビニやドラッグストアが点在しており不便さは感じない地域です。 合計15.35万円(内訳:保証会社:初回保証料8.75万円抗菌代1.65万円24時間サポート代1.65万円鍵交換代3.3万円) 更新料 新賃料1.00ヶ月分 1LDK 二人入居可/子供可/ペット相談/ルームシェア相談 普通借家2年 損保【2.5万円2年】 バストイレ別、バルコニー、エアコン、ガスコンロ対応、クロゼット、フローリング、シャワー付洗面台、TVインターホン、浴室乾燥機、オートロック、室内洗濯置、シューズボックス、システムキッチン、温水洗浄便座、脱衣所、エレベーター、洗面所独立、洗面化粧台、駐輪場、宅配ボックス、外壁タイル張り、3口以上コンロ、対面式キッチン、防犯カメラ、ペット相談、分譲賃貸、全居室洋室、二人入居相談、ガスレンジ付、2沿線利用可、駅まで平坦、保証金不要、24時間換気システム、平坦地、ルームシェア相談、耐震構造、2駅利用可、3駅以上利用可、3沿線以上利用可、駅徒歩5分以内、駅徒歩10分以内、敷地内ごみ置き場、都市ガス、洗面所にドア、初期費用カード決済可 | ||
部屋の情報
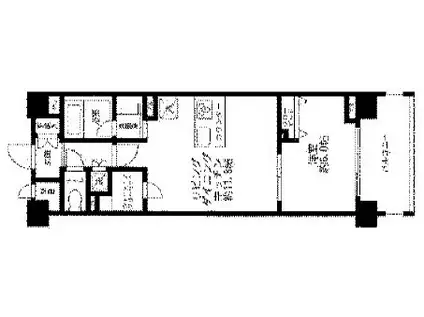
| 間取り | 1LDK | 専有面積 | 44.2m2 |
|---|---|---|---|
| 所在階 / 向き | 6階 / 東 | バルコニー面積 | - |
| 水道 / ガス | - | ||
| 設備 | バス・トイレ別、2階以上、オートロック、テレビドアホン、宅配ボックス、浴室乾燥機、システムキッチン、エアコン、エレベーター、温水洗浄便座、バルコニー、フローリング、洗髪洗面化粧台、2口コンロ、コンロ:ガス、洗濯機:室内 | ||
| 当社物件ID | 160555959 | ||
建物の情報
| 建物名 | グラントレゾール駒形 | ||
|---|---|---|---|
| 所在地 | 東京都墨田区東駒形 | ||
| 交通 | 都営浅草線 本所吾妻橋駅 徒歩4分 東京メトロ銀座線 浅草駅(東武・都営・メトロ) 徒歩12分 東京メトロ半蔵門線 押上駅 徒歩14分 | ||
| 階数 | 7階建 | 総戸数 | - |
| 築年月 | 2011年12月 / 築15年 | エレベーター | あり |
| 駐車場 | なし | バイク置き場 | - |
| 駐輪場 | あり | 管理人/管理会社 | - |
| 周辺環境 | その他 墨田区立本所中学校(中学校)まで233m その他 マルエツ プチ 本所四丁目店(スーパー)まで212m その他 まいばすけっと 本所吾妻橋駅前店(スーパー)まで402m その他 セブンイレブン 墨田東駒形3丁目店(コンビニ)まで142m その他 ミニストップ 吾妻橋3丁目店(コンビニ)まで322m その他 どらっぐぱぱす 東駒形店(ドラッグストア)まで57m | ||
| 建物種別 | マンション | 建物構造 | RC(鉄筋コンクリート) |
この部屋の取扱い不動産会社
| 会社名 | iitoko(株)(SUUMO経由) | ||
|---|---|---|---|
| 所在地 | 東京都台東区花川戸1-5-2 サテライト・フジビル4階 | 交通 | - |
| 営業時間 | 10時~19時 | 定休日 | 水曜日 |
| 免許番号 | 東京都知事111636 | 取引態様 | 仲介 |
| 不動産会社管理番号 | 100493640272 | 当社管理番号 | 89 |
| 所属団体 | (公社)東京都宅地建物取引業協会会員 | ||
| 公正取引協議会 | (公社)首都圏不動産公正取引協議会加盟 | ||
| 取扱い物件情報 | 物件詳細へ | ||
※各種情報と現状に差異がある場合は、現状優先となります。問い合わせをすることで、より詳しい条件、情報を確認する事ができます。
提供:iitoko(株)(SUUMO経由)
この物件が気になったら掲載期限まであと11日
グラントレゾール駒形に条件(家賃・エリア)が近い物件一覧
| 写真 | 家賃 管理費等 | 敷金 礼金 | 間取り 専有面積 | 築年数 | 最寄り駅 所在地 | キープ | 詳細 |
|---|---|---|---|---|---|---|---|
マンション SAION町屋(2LDK/14階) | |||||||
![]() | 21.8万円 2万円 | 21.8万円 なし | 2LDK 50.23m2 | 築4年 | 東京地下鉄千代田線 町屋駅 徒歩3分 東京都荒川区荒川6丁目 | 詳細を見る | |
マンション イクシオ熊野前駅(1DK/1階) | |||||||
![]() | 11.4万円 5,000円 | なし 11.4万円 | 1DK 30.25m2 | 築1年 | 東京都荒川線 東尾久三丁目駅 徒歩4分 日暮里舎人ライナー 熊野前駅 徒歩5分 札幌市東豊線 栄町駅(札幌) 徒歩11分 東京地下鉄千代田線 町屋駅 徒歩13分 東京都荒川区町屋 六丁目 | 詳細を見る | |
マンション エスティメゾン豊洲レジデンス E棟(2LDK/2階) | |||||||
![]() | 24.8万円 1.2万円 | 24.8万円 24.8万円 | 2LDK 56.5m2 | 築19年 | 東京メトロ有楽町線 豊洲駅 徒歩5分 東京メトロ有楽町線 月島駅 徒歩19分 新交通ゆりかもめ 新豊洲駅 徒歩20分 東京都江東区豊洲 | 詳細を見る | |
マンション オーキッドレジデンス住吉(ワンルーム/7階) | |||||||
![]() | 13.4万円 1万円 | 13.4万円 なし | ワンルーム 25.5m2 | 築7年 | 東京メトロ半蔵門線 住吉駅(東京) 徒歩6分 都営新宿線 菊川駅(東京) 徒歩11分 JR総武線 錦糸町駅 徒歩11分 東京都江東区毛利 | 詳細を見る | |
マンション グローバルK(ワンルーム/7階) | |||||||
![]() | 9.9万円 1万円 | なし なし | ワンルーム 20.94m2 | 築25年 | 都営新宿線 大島駅(東京) 徒歩8分 JR総武線 亀戸駅 徒歩11分 東京都江東区亀戸 | 詳細を見る | |
マンション PARK LILA住吉(1LDK/5階) | |||||||
![]() | 16.5万円 1万円 | なし なし | 1LDK 40.02m2 | 築1年 | 東京メトロ半蔵門線 住吉駅(東京) 徒歩1分 JR総武線 錦糸町駅 徒歩14分 JR総武線快速 錦糸町駅 徒歩15分 東京都江東区住吉 | 詳細を見る | |
マンション GENOVIA南千住Ⅷ(1K/7階) | |||||||
![]() | 10.3万円 1万円 | なし なし | 1K 25.62m2 | 築2年 | 東京地下鉄日比谷線 南千住駅 徒歩11分 常磐線 南千住駅 徒歩14分 つくばエクスプレス 南千住駅 徒歩14分 東京都台東区清川1丁目 | 詳細を見る | |
マンション LUNIQ新御徒町Ⅰ(1LDK/3階) | |||||||
![]() | 19.9万円 1.8万円 | なし なし | 1LDK 40.49m2 | 築6年 | 東京都大江戸線 蔵前駅 徒歩6分 つくばエクスプレス 新御徒町駅 徒歩8分 東京都大江戸線 新御徒町駅 徒歩12分 東京都台東区三筋1丁目 | 詳細を見る | |









