賃貸アパート
リーブルファイン緑区中野田の賃貸物件情報(1LDK/1階)
| 家賃 | 管理費等 | 敷金 | 礼金 | 間取り | 専有面積 |
|---|---|---|---|---|---|
| 10万円 | 3,000円 | 10万円 | 10万円 | 1LDK | 42.51m2 |
入居決定でお祝い金最大100,000円
- 保証金
- -
- 償却・敷引
- -
- 築年数
- 新築
- 所在階
- 1階
- 向き
- 南
Point
ご覧頂きありがとうございます。見学希望や入居時期のご相談、その他どんなことでも構いませんのでご遠慮なくご相談下さい。お問合せは【0120-304-137】北越谷営業所へご連絡下さい
提供:ポラスの賃貸 Room'Spot戸塚安行営業所(株)中央ビル管理(SUUMO経由)

詳細情報 リーブルファイン緑区中野田
物件紹介
リーブルファイン緑区中野田は埼玉高速鉄道浦和美園駅から徒歩14分にあるアパートです。
このお部屋のインターホンにはTVモニタがついているため、相手の顔を確認してから来客対応することができます。
人気の南向きのお部屋。キッチンはシステムキッチン仕様になっていますので、お料理好きの方にもぴったり。バス・トイレは別なので、のんびりお風呂タイムも楽しめるでしょう。また、雨の日でも浴室乾燥機を使えば、お洗濯も問題ありません。
通信設備面では、インターネットが無料で使えるので、月々の出費を抑えられるのも魅力です。また、CATVにも対応しているので、おうち時間も充実するでしょう(別途工事、CATVの契約料等が必要な場合あり)。
共用部には宅配ボックスが設定されているので、不在の時にも荷物を受け取ることができます。
このお部屋のインターホンにはTVモニタがついているため、相手の顔を確認してから来客対応することができます。
人気の南向きのお部屋。キッチンはシステムキッチン仕様になっていますので、お料理好きの方にもぴったり。バス・トイレは別なので、のんびりお風呂タイムも楽しめるでしょう。また、雨の日でも浴室乾燥機を使えば、お洗濯も問題ありません。
通信設備面では、インターネットが無料で使えるので、月々の出費を抑えられるのも魅力です。また、CATVにも対応しているので、おうち時間も充実するでしょう(別途工事、CATVの契約料等が必要な場合あり)。
共用部には宅配ボックスが設定されているので、不在の時にも荷物を受け取ることができます。
お金・契約の情報
※「-」と表示されているものは、実際は料金が発生するものもございます。詳細はお問い合わせください。
| 家賃 | 10万円 | 管理費・共益費 | 3,000円 |
|---|---|---|---|
| 敷金 | 10万円 | 礼金 | 10万円 |
| 入居決定でお祝い金最大100,000円 | |||
| 保証金 | - | 償却・敷引 | - |
| 住宅保険料 | - | 更新料 | - |
| 保証会社利用 | 必須 | 保証会社名 | - |
| 保証会社費用 | - | 保証会社備考 | 保証会社利用必 【初回】月額合計の50%【毎月】1,000円 |
| 契約形態 | - | 契約期間 | - |
| 入居・引渡期間 | - | 現況 | - |
| 契約備考 | JR武蔵野線東浦和駅徒歩64分 はじめCLUBOFF:1100円 1LDK 二人入居可/子供可/事務所利用不可/ルームシェア相談 損保【2.4万円2年】 バストイレ別、ガスコンロ対応、クロゼット、シャワー付洗面台、TVインターホン、浴室乾燥機、室内洗濯置、シューズボックス、システムキッチン、南向き、追焚機能浴室、温水洗浄便座、脱衣所、洗面所独立、洗面化粧台、2口コンロ、宅配ボックス、CATV、保証人不要、敷金1ヶ月、CATVインターネット、2沿線利用可、エアコン2台、ディンプルキー、ネット使用料不要、ダブルロックキー、築2年以内、ルームシェア相談、学生相談、3駅以上利用可、全居室6畳以上、都市ガス、南面バルコニー、礼金1ヶ月、LGBTフレンドリー、初期費用カード決済可、家賃カード決済可 入居日:'26年3月下旬 | ||
部屋の情報
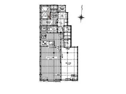
| 間取り | 1LDK | 専有面積 | 42.51m2 |
|---|---|---|---|
| 所在階 / 向き | 1階 / 南 | バルコニー面積 | - |
| 水道 / ガス | - | ||
| 設備 | バス・トイレ別、テレビドアホン、宅配ボックス、浴室乾燥機、追い焚き、インターネット対応、システムキッチン、エアコン、温水洗浄便座、南向き、バルコニー、洗髪洗面化粧台、2口コンロ、コンロ:ガス、CATV、インターネット使用料無料、洗濯機:室内 | ||
| 当社物件ID | 160136468 | ||
建物の情報
| 建物名 | リーブルファイン緑区中野田 | ||
|---|---|---|---|
| 所在地 | 埼玉県さいたま市緑区大字中野田 | ||
| 交通 | 埼玉高速鉄道 浦和美園駅 徒歩14分 埼玉高速鉄道 東川口駅 徒歩46分 JR武蔵野線 東川口駅 徒歩46分 | ||
| 階数 | 2階建 | 総戸数 | 5戸 |
| 築年月 | 2026年03月 / 新築 | エレベーター | - |
| 駐車場 | なし | バイク置き場 | - |
| 駐輪場 | - | 管理人/管理会社 | - |
| 建物種別 | アパート | 建物構造 | 木造 |
この部屋の取扱い不動産会社
| 会社名 | ポラスの賃貸 Room'Spot北越谷営業所(株)中央ビル管理(SUUMO経由) | ||
|---|---|---|---|
| 所在地 | 埼玉県越谷市大沢 3-19-17 | 交通 | - |
| 営業時間 | 9:30~18:00 | 定休日 | 火曜日 水曜日 |
| 免許番号 | 国土交通大臣3918 | 取引態様 | 仲介 |
| 不動産会社管理番号 | 100480545948 | 当社管理番号 | 89 |
| 所属団体 | (公社)埼玉県宅地建物取引業協会会員 | ||
| 公正取引協議会 | (公社)首都圏不動産公正取引協議会加盟 | ||
| 取扱い物件情報 | 物件詳細へ | ||
※各種情報と現状に差異がある場合は、現状優先となります。問い合わせをすることで、より詳しい条件、情報を確認する事ができます。
提供:ポラスの賃貸 Room'Spot北越谷営業所(株)中央ビル管理(SUUMO経由)
この物件が気になったら掲載期限まであと11日
リーブルファイン緑区中野田に条件(家賃・エリア)が近い物件一覧
| 写真 | 家賃 管理費等 | 敷金 礼金 | 間取り 専有面積 | 築年数 | 最寄り駅 所在地 | キープ | 詳細 |
|---|---|---|---|---|---|---|---|
アパート プラウド シティ 南大塚D(1LDK/2階) | |||||||
![]() | 6.65万円 3,500円 | なし 6.65万円 | 1LDK 41.23m2 | 築7年 | 西武鉄道新宿線 南大塚駅 徒歩15分 川越線 川越駅 徒歩47分 埼玉県川越市 | 詳細を見る | |
アパート KIRSCHE(1DK/3階) | |||||||
![]() | 7.3万円 6,000円 | なし 7.3万円 | 1DK 24.64m2 | 築3年 | 西武鉄道新宿線 南大塚駅 徒歩3分 埼玉県川越市南台2丁目 | 詳細を見る | |
アパート D-SERENO東田町Ⅱ(1LDK/1階) | |||||||
![]() | 10.4万円 7,000円 | なし 10.4万円 | 1LDK 37.09m2 | 築1年 | 東武鉄道東上線 川越駅 徒歩12分 東武鉄道東上線 川越市駅 徒歩12分 埼玉県川越市東田町 | 詳細を見る | |
アパート ノーススターガーデン(1LDK/1階) | |||||||
![]() | 9.35万円 3,900円 | なし 9.35万円 | 1LDK 50.03m2 | 新築 | 西武鉄道新宿線 南大塚駅 徒歩23分 川越線 川越駅 徒歩39分 東武鉄道東上線 新河岸駅 徒歩43分 埼玉県川越市中台南1丁目 | 詳細を見る | |
アパート ヴィラ サンリット(1LDK/1階) | |||||||
![]() | 7.6万円 3,500円 | なし 7.6万円 | 1LDK 40.88m2 | 築2年 | 西武新宿線 南大塚駅 徒歩19分 埼玉県川越市 | 詳細を見る | |
マンション THE GARLANDS(1K/2階) | |||||||
![]() | 7.2万円 5,000円 | なし なし | 1K 21.99m2 | 築1年 | 京浜東北・根岸線 西川口駅 徒歩7分 京浜東北・根岸線 川口駅 徒歩22分 京浜東北・根岸線 蕨駅 徒歩32分 埼玉県川口市西川口4丁目 | 詳細を見る | |
アパート ジーメゾン川越南大塚グランディール(1LDK/3階) | |||||||
![]() | 6.8万円 5,000円 | なし 6.8万円 | 1LDK 32.04m2 | 築1年 | 西武鉄道新宿線 南大塚駅 徒歩13分 埼玉県川越市 | 詳細を見る | |
マンション シャトーサンワ(3DK/3階) | |||||||
![]() | 6.8万円 3,000円 | なし 6.8万円 | 3DK 54.23m2 | 築33年 | 西武鉄道新宿線 南大塚駅 徒歩1分 西武鉄道新宿線 新狭山駅 徒歩35分 川越線 西川越駅 徒歩64分 埼玉県川越市南台2丁目 | 詳細を見る | |









