賃貸アパート
LAUGH TALE GRANの賃貸物件情報(1LDK/3階)
| 家賃 | 管理費等 | 敷金 | 礼金 | 間取り | 専有面積 |
|---|---|---|---|---|---|
| 6.3万円 | 3,000円 | なし | なし | 1LDK | 28.98m2 |
入居決定でお祝い金最大100,000円
- 保証金
- -
- 償却・敷引
- -
- 築年数
- 築2年
- 所在階
- 3階
- 向き
- 東
Point
「来店不要のオンライン内見サービス始めました」当社は「総合仲介」と言う形で営業しておりますので他社様の掲載物件も全てご紹介可能。ネットをご覧になられて気になる物件は全てまとめてお調べさして頂きます!
提供:ハウスコムFC仙台東口店(株)Ys8(SUUMO経由)

詳細情報 LAUGH TALE GRAN
物件紹介
LAUGH TALE GRANはJR東北本線南仙台駅から徒歩19分にあるアパートです。
このお部屋は2階以上に位置しているので、通行人や周囲の住人からの視線が気になりにくく、防犯面でも安心。建物のエントランスはオートロックがついており、インターホンにはTVモニタもついているため、相手の顔を確認してから来客対応することができます。
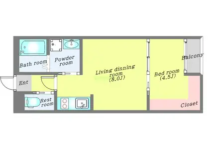
人気の角部屋で周囲の居住者の生活音も気になりにくく、また、フローリングのお部屋なのでお掃除もラクラク。キッチンはシステムキッチン仕様になっていますので、お料理好きの方にもぴったり。バス・トイレは別なので、のんびりお風呂タイムも楽しめるでしょう。また、雨の日でも浴室乾燥機を使えば、お洗濯も問題ありません。
通信設備面では、インターネットが無料で使えるので、月々の出費を抑えられるのも魅力です(別途工事等が必要な場合あり)。
ペット飼育の相談ができますので、あなたの大切な家族の一員も快適に暮らせるか、ぜひ確認してみてください。
このお部屋は2階以上に位置しているので、通行人や周囲の住人からの視線が気になりにくく、防犯面でも安心。建物のエントランスはオートロックがついており、インターホンにはTVモニタもついているため、相手の顔を確認してから来客対応することができます。
人気の角部屋で周囲の居住者の生活音も気になりにくく、また、フローリングのお部屋なのでお掃除もラクラク。キッチンはシステムキッチン仕様になっていますので、お料理好きの方にもぴったり。バス・トイレは別なので、のんびりお風呂タイムも楽しめるでしょう。また、雨の日でも浴室乾燥機を使えば、お洗濯も問題ありません。
通信設備面では、インターネットが無料で使えるので、月々の出費を抑えられるのも魅力です(別途工事等が必要な場合あり)。
ペット飼育の相談ができますので、あなたの大切な家族の一員も快適に暮らせるか、ぜひ確認してみてください。
お金・契約の情報
※「-」と表示されているものは、実際は料金が発生するものもございます。詳細はお問い合わせください。
| 家賃 | 6.3万円 | 管理費・共益費 | 3,000円 |
|---|---|---|---|
| 敷金 | なし | 礼金 | なし |
| 入居決定でお祝い金最大100,000円 | |||
| 保証金 | - | 償却・敷引 | - |
| 住宅保険料 | - | 更新料 | - |
| 保証会社利用 | 必須 | 保証会社名 | - |
| 保証会社費用 | - | 保証会社備考 | 保証会社利用必 初回契約時:50%、更新時:10,000円、要確認 |
| 契約形態 | - | 契約期間 | - |
| 入居・引渡期間 | 即時 | 現況 | - |
| 入居可能条件 | ペット相談 | ||
| 契約備考 | 未入居/JR常磐線太子堂駅徒歩31分 エアコンクリーニング費(退去時) 13200円/ ハウスクリーニング 55000円/退去時 1LDK ペット相談 普通借家2年 損保【1.8万円2年】 バストイレ別、バルコニー、エアコン、フローリング、シャワー付洗面台、TVインターホン、浴室乾燥機、オートロック、室内洗濯置、システムキッチン、追焚機能浴室、角住戸、温水洗浄便座、脱衣所、洗面所独立、洗面化粧台、2口コンロ、光ファイバー、即入居可、最上階、ペット相談、IHクッキングヒーター、保証人不要、2沿線利用可、ネット使用料不要、眺望良好、未入居、3駅以上利用可、プロパンガス、高速ネット対応、敷金・礼金不要、IT重説対応物件、初期費用カード決済可 | ||
部屋の情報
| 間取り | 1LDK | 専有面積 | 28.98m2 |
|---|---|---|---|
| 所在階 / 向き | 3階 / 東 | バルコニー面積 | - |
| 水道 / ガス | - | ||
| 設備 | バス・トイレ別、2階以上、オートロック、テレビドアホン、浴室乾燥機、追い焚き、インターネット対応、システムキッチン、エアコン、温水洗浄便座、角部屋、バルコニー、フローリング、洗髪洗面化粧台、2口コンロ、コンロ:IH、インターネット使用料無料、洗濯機:室内 | ||
| 当社物件ID | 157267746 | ||
建物の情報
| 建物名 | LAUGH TALE GRAN | ||
|---|---|---|---|
| 所在地 | 宮城県仙台市太白区東中田 | ||
| 交通 | JR東北本線 南仙台駅 徒歩19分 JR常磐線 南仙台駅 徒歩19分 JR東北本線 太子堂駅 徒歩30分 | ||
| 階数 | 3階建 | 総戸数 | - |
| 築年月 | 2024年07月 / 築2年 | エレベーター | - |
| 駐車場 | 空有 6600円 | バイク置き場 | - |
| 駐輪場 | - | 管理人/管理会社 | - |
| 周辺環境 | その他 セブン*イレブン 仙台東中田店(コンビニ)まで201m その他 サン・マルシェ 東中田店(スーパー)まで707m その他 長町クリニック(病院)まで3084m その他 仙台市 太白区役所(役所)まで3611m その他 杜の都信用金庫 中田支店(銀行)まで744m その他 仙台中田郵便局(郵便局)まで875m | ||
| 建物種別 | アパート | 建物構造 | 木造 |
この部屋の取扱い不動産会社
| 会社名 | 賃貸・売買のアシスト仙台長町南店(株)アシストマネジメント(SUUMO経由) | ||
|---|---|---|---|
| 所在地 | 宮城県仙台市太白区長町南3-1-3 デサフィオ長町南百番館1-D | 交通 | - |
| 営業時間 | 10:00~19:00 | 定休日 | 無休 |
| 免許番号 | 国土交通大臣10056 | 取引態様 | 仲介 |
| 不動産会社管理番号 | 100395326257 | 当社管理番号 | 89 |
| 所属団体 | (公社)全日本不動産協会宮城県本部会員 | ||
| 公正取引協議会 | 東北地区不動産公正取引協議会加盟 | ||
| 取扱い物件情報 | 物件詳細へ | ||
※各種情報と現状に差異がある場合は、現状優先となります。問い合わせをすることで、より詳しい条件、情報を確認する事ができます。
提供:賃貸・売買のアシスト仙台長町南店(株)アシストマネジメント(SUUMO経由)
この物件が気になったら掲載期限まであと10日
LAUGH TALE GRANに条件(家賃・エリア)が近い物件一覧
| 写真 | 家賃 管理費等 | 敷金 礼金 | 間取り 専有面積 | 築年数 | 最寄り駅 所在地 | キープ | 詳細 |
|---|---|---|---|---|---|---|---|
アパート GREEN ACE IIB(1DK/1階) | |||||||
![]() | 5.95万円 4,000円 | なし なし | 1DK 26.98m2 | 築1年 | JR東北本線 太子堂駅 徒歩10分 JR東北本線 長町駅 徒歩24分 仙台市地下鉄南北線 富沢駅 徒歩24分 宮城県仙台市太白区郡山 | 詳細を見る | |
アパート DーROOMラルーチェ(1LDK/1階) | |||||||
![]() | 4.3万円 4,500円 | なし なし | 1LDK 35.11m2 | 築11年 | 宮城県黒川郡大和町吉岡まほろば | 詳細を見る | |
アパート グリーンキャピタル長町II(2LDK/4階) | |||||||
![]() | 8.7万円 5,000円 | 17.4万円 8.7万円 | 2LDK 57.65m2 | 築31年 | 仙台市地下鉄南北線 長町駅 徒歩7分 仙台市地下鉄南北線 長町南駅 徒歩9分 宮城県仙台市太白区長町 | 詳細を見る | |
マンション ノーブルヒルズ(1K/1階) | |||||||
![]() | 4.7万円 2,000円 | なし なし | 1K 25.92m2 | 築28年 | 仙台市地下鉄東西線 八木山動物公園駅 徒歩17分 仙台市地下鉄東西線 大町西公園駅 徒歩37分 仙台市地下鉄東西線 国際センター駅(宮城) 徒歩43分 宮城県仙台市太白区桜木町 | 詳細を見る | |
アパート PLEMIER(1LDK/1階) | |||||||
![]() | 6.5万円 5,000円 | なし 6.5万円 | 1LDK 50.42m2 | 築20年 | JR常磐線 南仙台駅 徒歩27分 宮城県仙台市太白区東中田 | 詳細を見る | |
アパート ジュネス参号館(2DK/2階) | |||||||
![]() | 5.2万円 3,000円 | 5.2万円 5.2万円 | 2DK 48.53m2 | 築33年 | JR東北本線 名取駅 徒歩18分 JR東北本線 南仙台駅 徒歩29分 宮城県名取市田高原 | 詳細を見る | |
アパート レオパレスラ トゥール(1K/2階) | |||||||
![]() | 5万円 4,000円 | なし 10万円 | 1K 23.18m2 | 築25年 | 宮城県黒川郡大和町吉岡南3丁目 | 詳細を見る | |
アパート クラリス長町南(1LDK/2階) | |||||||
![]() | 6.8万円 4,000円 | なし なし | 1LDK 30.28m2 | 築1年 | 仙台市地下鉄南北線 長町南駅 徒歩10分 仙台市地下鉄南北線 長町駅 徒歩18分 JR東北本線 長町駅 徒歩19分 宮城県仙台市太白区鹿野 | 詳細を見る | |








