賃貸一戸建て
札幌市南北線 麻生駅 バス乗車時間:11分 (中央バス)屯田南小学校バス停で下車 徒歩5分 2階建 築44年の賃貸物件情報(4LDK)
| 家賃 | 管理費等 | 敷金 | 礼金 | 間取り | 専有面積 |
|---|---|---|---|---|---|
| 7.5万円 | なし | 7.5万円 | なし | 4LDK | 86.66m2 |
入居決定でお祝い金最大100,000円
Point
当店は札幌市内全域、石狩市、当別町すべてご紹介可能です!!
提供:アパマンショップ発寒南店

詳細情報 札幌市南北線 麻生駅 バス乗車時間:11分 (中央バス)屯田南小学校バス停で下車 徒歩5分 2階建 築44年
物件紹介
人気の南向き・フローリングのお部屋。角部屋でもあるため、周囲の居住者の生活音も気になりにくい場所です。バス・トイレ別の仕様で、のんびりお風呂タイムも楽しめます。
通信設備面では、インターネット接続が可能です(別途工事、契約料が必要な場合あり)。
通信設備面では、インターネット接続が可能です(別途工事、契約料が必要な場合あり)。
お金・契約の情報
※「-」と表示されているものは、実際は料金が発生するものもございます。詳細はお問い合わせください。
| 家賃 | 7.5万円 | 管理費・共益費 | なし |
|---|---|---|---|
| 敷金 | 7.5万円 | 礼金 | なし |
| 入居決定でお祝い金最大100,000円 | |||
| 保証金 | - | 償却・敷引 | - |
| 住宅保険料 | 2.3万円(2年) | 更新料 | - |
| 保証会社利用 | 必須 | 保証会社名 | - |
| 保証会社費用 | - | 保証会社備考 | 株式会社オリコフォレントインシュア 初回50%(最低保証 2万)・月額保証委託料1.5% 更新料無 |
| 契約形態 | - | 契約期間 | 2年 |
| 入居・引渡期間 | 相談 | 現況 | - |
| 契約備考 | 24時間サービス 1100円 敷金75000円 水廻り清掃料 77000円税込 退去時払い相談可 鍵交換料 11000円税込 | ||
部屋の情報
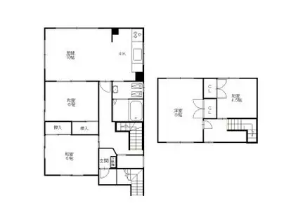
| 間取り | 4LDK | 専有面積 | 86.66m2 |
|---|---|---|---|
| 所在階 / 向き | 1階 / 南 | バルコニー面積 | - |
| 水道 / ガス | - | ||
| 設備 | バス・トイレ別、インターネット対応、角部屋、フローリング、コンロ:ガス、シャワー、専用庭、洗濯機:室内、閑静な住宅街 | ||
| 当社物件ID | 2065246 | ||
建物の情報
| 建物名 | 札幌市南北線 麻生駅 バス乗車時間:11分 (中央バス)屯田南小学校バス停で下車 徒歩5分 2階建 築44年 | ||
|---|---|---|---|
| 所在地 | 北海道札幌市北区屯田五条2丁目 | ||
| 交通 | 札幌市南北線 麻生駅 バス乗車時間:11分 (中央バス)屯田南小学校バス停で下車 徒歩5分 | ||
| 階数 | 2階建 | 総戸数 | 1戸 |
| 築年月 | 1982年12月 / 築44年 | エレベーター | - |
| 駐車場 | 空有 | バイク置き場 | - |
| 駐輪場 | あり | 管理人/管理会社 | - |
| 周辺環境 | 小学校 屯田南小学校 徒歩6分(477m) 幼稚園 つよし幼稚園 徒歩10分(751m) その他 スーパーエース屯田店 徒歩6分(429m) その他 ローソン 徒歩6分(409m) その他 セブンイレブン 徒歩8分(600m) その他 ビッグハウス太平店 徒歩9分(657m) その他 ローソン 徒歩10分(740m) その他 セブンイレブン 徒歩13分(1018m) | ||
| 建物種別 | 一戸建て | 建物構造 | 木造 |
この部屋の取扱い不動産会社
| 会社名 | アパマンショップ麻生店 | ||
|---|---|---|---|
| 所在地 | 北海道札幌市北区麻生町3丁目 10-2那須ビル1階・2階 | 交通 | 札幌市南北線麻生から徒歩1分 |
| 営業時間 | 09:00〜19:00(時間外ご相談下さい) | 定休日 | - |
| 免許番号 | 北海道知事石狩(2)008853 | 取引態様 | 仲介 |
| 不動産会社管理番号 | 93861078 | 当社管理番号 | 4 |
| 所属団体 | (公社)北海道宅地建物取引業協会 | ||
| 公正取引協議会 | (一社) 北海道不動産公正取引協議会加盟 | ||
| 取扱い物件情報 | 物件詳細へ | ||
※各種情報と現状に差異がある場合は、現状優先となります。問い合わせをすることで、より詳しい条件、情報を確認する事ができます。
提供:アパマンショップ麻生店
この物件が気になったら掲載期限まであと13日
札幌市南北線 麻生駅 バス乗車時間:11分 (中央バス)屯田南小学校バス停で下車 徒歩5分 2階建 築44年に条件(家賃・エリア)が近い物件一覧
| 写真 | 家賃 管理費等 | 敷金 礼金 | 間取り 専有面積 | 築年数 | 最寄り駅 所在地 | キープ | 詳細 |
|---|---|---|---|---|---|---|---|
マンション ブランノワール麻生エクサゴーヌ(1LDK/2階) | |||||||
![]() | 4.7万円 3,000円 | なし なし | 1LDK 28.62m2 | 築20年 | 地下鉄南北線 麻生駅 徒歩5分 JR札沼線 新琴似駅 徒歩10分 地下鉄南北線 北34条駅 徒歩14分 北海道札幌市北区麻生町 | 詳細を見る | |
マンション ビレッジハウス野幌9号棟(3DK/1階) | |||||||
![]() | 5.05万円 なし | なし なし | 3DK 64.62m2 | 築63年 | 函館本線 野幌駅 徒歩14分 北海道江別市東野幌町 | 詳細を見る | |
マンション イースヴィレッヂ(2LDK/3階) | |||||||
![]() | 6.2万円 なし | なし なし | 2LDK 58m2 | 築24年 | 北海道石狩市花川南九条3丁目 | 詳細を見る | |
マンション ブルームN33(2LDK/1階) | |||||||
![]() | 6.8万円 4,000円 | なし なし | 2LDK 50.44m2 | 築14年 | 札幌市南北線 北34条駅 徒歩4分 北海道札幌市北区北三十三条西2丁目 | 詳細を見る | |
アパート コンフォール中島(1LDK/1階) | |||||||
![]() | 5.4万円 2,000円 | 5.4万円 なし | 1LDK 31.65m2 | 築6年 | JR千歳線 恵み野駅 徒歩5分 JR千歳線 恵庭駅 徒歩34分 JR千歳線 島松駅 徒歩37分 北海道恵庭市中島町 | 詳細を見る | |
マンション FUENTE27(1LDK/5階) | |||||||
![]() | 6.4万円 5,000円 | 6.4万円 なし | 1LDK 34m2 | 築7年 | 地下鉄南北線 北24条駅 徒歩5分 地下鉄南北線 北34条駅 徒歩9分 地下鉄南北線 北18条駅 徒歩19分 北海道札幌市北区北二十七条西 | 詳細を見る | |
アパート ATEENA OASA B(1LDK/1階) | |||||||
![]() | 6.3万円 2,000円 | なし 6.3万円 | 1LDK 48.96m2 | 築4年 | JR函館本線 大麻駅 徒歩12分 北海道江別市大麻宮町 | 詳細を見る | |
アパート レオパレスビクトワール(1K/2階) | |||||||
![]() | 4.8万円 6,500円 | なし なし | 1K 23.18m2 | 築23年 | 札沼線 拓北駅 徒歩6分 北海道札幌市北区拓北五条2丁目 | 詳細を見る | |


/105x80-f1-q70-wp1)





