賃貸マンション
ビレッジハウス本郷なしわ 2号棟の賃貸物件情報(3DK/2階)
| 家賃 | 管理費等 | 敷金 | 礼金 | 間取り | 専有面積 |
|---|---|---|---|---|---|
| 4.64万円 | なし | なし | なし | 3DK | 53.08m2 |
入居決定でお祝い金最大100,000円
Point
まずはお問い合わせ!
不動産会社は街のプロ、あなたに合った物件がきっと見つかります。
提供:ビレッジハウス住まい相談センター

詳細情報 ビレッジハウス本郷なしわ 2号棟
物件紹介
ビレッジハウス本郷なしわ 2号棟は山陽本線本郷駅から徒歩39分にあるマンションです。
このお部屋は2階以上に位置しているので、通行人や周囲の住人からの視線が気になりにくく、防犯面でも安心です。
人気の南向きのお部屋。角部屋でもあるため、周囲の居住者の生活音も気になりにくい場所です。バス・トイレ別の仕様で、のんびりお風呂タイムも楽しめます。
このお部屋は2階以上に位置しているので、通行人や周囲の住人からの視線が気になりにくく、防犯面でも安心です。
人気の南向きのお部屋。角部屋でもあるため、周囲の居住者の生活音も気になりにくい場所です。バス・トイレ別の仕様で、のんびりお風呂タイムも楽しめます。
お金・契約の情報
※「-」と表示されているものは、実際は料金が発生するものもございます。詳細はお問い合わせください。
| 家賃 | 4.64万円 | 管理費・共益費 | なし |
|---|---|---|---|
| 敷金 | なし | 礼金 | なし |
| フリーレント | 0ヶ月 | ||
| 入居決定でお祝い金最大100,000円 | |||
| 保証金 | - | 償却・敷引 | - |
| 住宅保険料 | 1万円(2年) | 更新料 | - |
| 保証会社利用 | - | 保証会社名 | - |
| 保証会社費用 | - | 保証会社備考 | - |
| 契約形態 | - | 契約期間 | - |
| 入居・引渡期間 | - | 現況 | 空室 |
| 入居可能条件 | 2人入居可、高齢者相談、学生可 | ||
| 契約備考 | 契約種類:普通契約、24時間緊急対応、ウォシュレット、ウォームレット、洗面台 | ||
部屋の情報
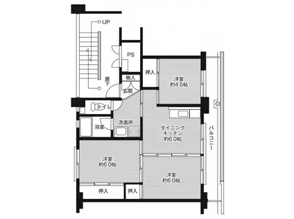
| 間取り | 3DK | 専有面積 | 53.08m2 |
|---|---|---|---|
| 所在階 / 向き | 2階 / 南 | バルコニー面積 | - |
| 水道 / ガス | - | ||
| 設備 | バス・トイレ別、追い焚き、エアコン、角部屋、バルコニー、給湯、洗濯機:室内 | ||
| 当社物件ID | 28730998 | ||
建物の情報
| 建物名 | ビレッジハウス本郷なしわ 2号棟 | ||
|---|---|---|---|
| 所在地 | 広島県三原市本郷町上北方60-3 | ||
| 交通 | 山陽本線 本郷駅(広島) 徒歩39分 | ||
| 階数 | 5階建 | 総戸数 | - |
| 築年月 | 1991年04月 / 築35年 | エレベーター | - |
| 駐車場 | 空有 円 | バイク置き場 | - |
| 駐輪場 | - | 管理人/管理会社 | 日勤 |
| 建物種別 | マンション | 建物構造 | RC(鉄筋コンクリート) |
この部屋の取扱い不動産会社
| 会社名 | ビレッジハウス住まい相談センター | ||
|---|---|---|---|
| 所在地 | 愛知県名古屋市中区大須4-10-32 上前津KDビル5階 | 交通 | 名城線「上前津駅」徒歩3分 |
| 営業時間 | 平日:9:00-18:30/土日祝:9:00-18:00 | 定休日 | 年中無休(年末年始を除く) |
| 免許番号 | 東京都知事(2)第100758号 | 取引態様 | 貸主 |
| 不動産会社管理番号 | 00013649311 | 当社管理番号 | 459 |
| 所属団体 | 公益社団法人東京都宅地建物取引業協会会員 日本賃貸住宅管理協会会員 | ||
| 取扱い物件情報 | 物件詳細へ | ||
※各種情報と現状に差異がある場合は、現状優先となります。問い合わせをすることで、より詳しい条件、情報を確認する事ができます。
提供:ビレッジハウス住まい相談センター
この物件が気になったら掲載期限まであと12日
ビレッジハウス本郷なしわ 2号棟に条件(家賃・エリア)が近い物件一覧
| 写真 | 家賃 管理費等 | 敷金 礼金 | 間取り 専有面積 | 築年数 | 最寄り駅 所在地 | キープ | 詳細 |
|---|---|---|---|---|---|---|---|
マンション アークラージェⅡ(1K/1階) | |||||||
![]() | 4.6万円 2,000円 | 4.6万円 9.2万円 | 1K 30.03m2 | 築23年 | 広島県東広島市西条下見7丁目 | 詳細を見る | |
マンション サンソレイユ西条壱番館(1LDK/1階) | |||||||
![]() | 6.2万円 4,000円 | 6.2万円 なし | 1LDK 51.3m2 | 築21年 | 広島県東広島市西条中央 | 詳細を見る | |
アパート ホワイトパレスA(1K/2階) | |||||||
![]() | 4.2万円 2,000円 | なし 4.2万円 | 1K 26.5m2 | 築33年 | 山陽本線 西条駅(広島) 徒歩60分 広島県東広島市西条下見5丁目 | 詳細を見る | |
アパート グレイスガーデンC(1LDK/2階) | |||||||
![]() | 6.8万円 4,500円 | なし 9万円 | 1LDK 38.28m2 | 築1年 | JR山陽本線 寺家駅 徒歩61分 JR山陽本線 西条駅(広島) 徒歩63分 JR山陽本線 八本松駅 徒歩69分 広島県東広島市西条町下見 | 詳細を見る | |
アパート 広島県東広島市 築46年(2DK/1階) | |||||||
![]() | 4.6万円 1,000円 | なし 6.9万円 | 2DK 45m2 | 築46年 | 広島県東広島市西条町御薗宇 | 詳細を見る | |
マンション メゾン・カトレア(3DK/3階) | |||||||
![]() | 5.8万円 なし | 5.8万円 8.7万円 | 3DK 53.5m2 | 築37年 | JR山陽本線 西条駅(広島) 徒歩19分 広島県東広島市西条町西条 | 詳細を見る | |
マンション マンションONOIII(1K/2階) | |||||||
![]() | 4.3万円 なし | 5万円 なし | 1K 32.4m2 | 築26年 | JR山陽本線 三原駅 徒歩38分 広島県三原市 | 詳細を見る | |
アパート グレイスガーデンB(1LDK/3階) | |||||||
![]() | 7.1万円 4,500円 | なし 12万円 | 1LDK 34m2 | 築1年 | JR山陽本線 寺家駅 徒歩61分 JR山陽本線 西条駅(広島) 徒歩63分 JR山陽本線 八本松駅 徒歩69分 広島県東広島市西条町下見 | 詳細を見る | |








