賃貸マンション
ドエル幸容の賃貸物件情報(4SLDK/4階)
| 家賃 | 管理費等 | 敷金 | 礼金 | 間取り | 専有面積 |
|---|---|---|---|---|---|
| 80万円 | なし | 240万円 | 80万円 | 4SLDK | 243.5m2 |
入居決定でお祝い金最大100,000円
Point
照明付きの物件です。効率よくお料理ができるシステムキッチンを設置。
提供:(株)ワイエス・ホーム中野支店(SUUMO経由)

詳細情報 ドエル幸容
物件紹介
ドエル幸容は京王新線幡ケ谷駅から徒歩12分にあるマンションです。
このお部屋は2階以上に位置しているので、通行人や周囲の住人からの視線が気になりにくく、防犯面でも安心。建物のエントランスはオートロックがついており、インターホンにはTVモニタもついているため、相手の顔を確認してから来客対応することができます。
人気の南向き・フローリングのお部屋。角部屋でもあるため、周囲の居住者の生活音も気になりにくい場所です。室内にはウォークインクローゼットがありますので、たくさんの荷物も効率的に収納ができます。キッチンはシステムキッチン仕様になっていますので、お料理好きの方にもぴったり。バス・トイレは別なので、のんびりお風呂タイムも楽しめるでしょう。また、雨の日でも浴室乾燥機を使えば、お洗濯も問題ありません。
通信設備面では、インターネット接続が可能です。また、BSアンテナ・CSアンテナもありますので、おうち時間も充実するでしょう(別途工事、契約料が必要な場合あり)。
床暖房があり、冬も足元から暖かく快適に過ごすことができます。建物にはエレベーターがついているので、重い荷物があっても安心。共用部には宅配ボックスが設定されているので、不在の時にも荷物を受け取ることができます。また、ペット飼育の相談ができますので、あなたの大切な家族の一員も快適に暮らせるか、ぜひ確認してみてください。
コンビニまで徒歩13分の場所にあり、日用品や食料品のお買い物にも便利です。
このお部屋は2階以上に位置しているので、通行人や周囲の住人からの視線が気になりにくく、防犯面でも安心。建物のエントランスはオートロックがついており、インターホンにはTVモニタもついているため、相手の顔を確認してから来客対応することができます。
人気の南向き・フローリングのお部屋。角部屋でもあるため、周囲の居住者の生活音も気になりにくい場所です。室内にはウォークインクローゼットがありますので、たくさんの荷物も効率的に収納ができます。キッチンはシステムキッチン仕様になっていますので、お料理好きの方にもぴったり。バス・トイレは別なので、のんびりお風呂タイムも楽しめるでしょう。また、雨の日でも浴室乾燥機を使えば、お洗濯も問題ありません。
通信設備面では、インターネット接続が可能です。また、BSアンテナ・CSアンテナもありますので、おうち時間も充実するでしょう(別途工事、契約料が必要な場合あり)。
床暖房があり、冬も足元から暖かく快適に過ごすことができます。建物にはエレベーターがついているので、重い荷物があっても安心。共用部には宅配ボックスが設定されているので、不在の時にも荷物を受け取ることができます。また、ペット飼育の相談ができますので、あなたの大切な家族の一員も快適に暮らせるか、ぜひ確認してみてください。
コンビニまで徒歩13分の場所にあり、日用品や食料品のお買い物にも便利です。
お金・契約の情報
※「-」と表示されているものは、実際は料金が発生するものもございます。詳細はお問い合わせください。
| 家賃 | 80万円 | 管理費・共益費 | なし |
|---|---|---|---|
| 敷金 | 240万円 | 礼金 | 80万円 |
| 入居決定でお祝い金最大100,000円 | |||
| 保証金 | - | 償却・敷引 | - |
| 住宅保険料 | 1円 | 更新料 | - |
| その他費用 | 契約事務手数料:1.1万円、16500円: | ||
| 保証会社利用 | 必須 | 保証会社名 | - |
| 保証会社費用 | - | 保証会社備考 | 初回保証会社利用料:総賃料の50% |
| 契約形態 | - | 契約期間 | 2年 |
| 入居・引渡期間 | 即時 | 現況 | - |
| 契約備考 | 鍵交換費用:44000 その他設備/条件:食器洗い乾燥機、全居室収納、クローゼット、シューズボックス、シューズインクローゼット、照明器具付き | ||
部屋の情報
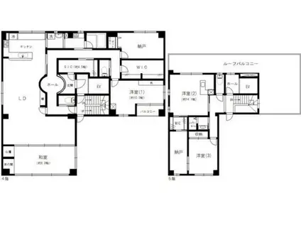
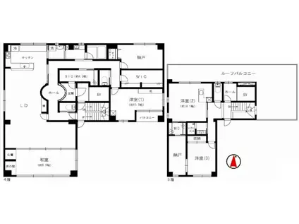
| 間取り | 4SLDK | 専有面積 | 243.5m2 |
|---|---|---|---|
| 所在階 / 向き | 4階 / 南 | バルコニー面積 | - |
| 水道 / ガス | - | ||
| 設備 | バス・トイレ別、オートロック、テレビドアホン、宅配ボックス、浴室乾燥機、ウォークインクローゼット、追い焚き、システムキッチン、カウンターキッチン、エアコン、エレベーター、温水洗浄便座、角部屋、バルコニー、フローリング、シャワー、給湯 | ||
| 当社物件ID | 154188103 | ||
建物の情報
| 建物名 | ドエル幸容 | ||
|---|---|---|---|
| 所在地 | 東京都中野区南台2丁目 | ||
| 交通 | 京王電鉄京王線 幡ケ谷駅 徒歩12分 東京地下鉄方南支線 中野新橋駅 徒歩12分 | ||
| 階数 | 5階建 | 総戸数 | - |
| 築年月 | 2012年03月 / 築14年 | エレベーター | あり |
| 駐車場 | - | バイク置き場 | - |
| 駐輪場 | - | 管理人/管理会社 | - |
| 周辺環境 | コンビニ 徒歩13分(1004m) 販売店 徒歩14分(1095m) その他 ドラッグストア その他 公園 その他 銀行 その他 * | ||
| 建物種別 | マンション | 建物構造 | RC(鉄筋コンクリート) |
この部屋の取扱い不動産会社
| 会社名 | ハウスコム東東京株式会社 高円寺店 | ||
|---|---|---|---|
| 所在地 | 東京都杉並区4-5ロータリービル2階 | 交通 | - |
| 営業時間 | 10:00~18:00 | 定休日 | 水曜定休 |
| 免許番号 | 東京都知事(1)第108283号 | 取引態様 | 仲介 |
| 不動産会社管理番号 | HC2-4546832-401-0234 | 当社管理番号 | 468 |
| 所属団体 | 、 | ||
| 取扱い物件情報 | 物件詳細へ | ||
※各種情報と現状に差異がある場合は、現状優先となります。問い合わせをすることで、より詳しい条件、情報を確認する事ができます。
提供:ハウスコム東東京株式会社 高円寺店
この物件が気になったら掲載期限まであと4日
ドエル幸容に条件(家賃・エリア)が近い物件一覧
| 写真 | 家賃 管理費等 | 敷金 礼金 | 間取り 専有面積 | 築年数 | 最寄り駅 所在地 | キープ | 詳細 |
|---|---|---|---|---|---|---|---|
マンション 三年町ビル(3LDK/3階) | |||||||
![]() | 120万円 なし | 480万円 120万円 | 3LDK 185.54m2 | 築46年 | 小田急線 代々木上原駅 徒歩4分 京王新線 幡ケ谷駅 徒歩12分 小田急線 東北沢駅 徒歩13分 東京都渋谷区西原 | 詳細を見る | |
マンション パークコート神宮北参道 ザ タワー(2LDK/18階) | |||||||
![]() | 63.8万円 2万円 | 63.8万円 63.8万円 | 2LDK 70.76m2 | 築3年 | 東京地下鉄副都心線 北参道駅 徒歩1分 東京都渋谷区千駄ヶ谷4丁目 | 詳細を見る | |
マンション クラッシィタワー新宿御苑(3LDK/11階) | |||||||
![]() | 52.5万円 なし | 52.5万円 52.5万円 | 3LDK 74.92m2 | 築2年 | 東京地下鉄丸ノ内線 新宿御苑前駅 徒歩3分 東京都新宿区四谷4丁目 | 詳細を見る | |
マンション PARK AXIS 四谷 STAGE(3LDK/10階) | |||||||
![]() | 48.5万円 1.5万円 | 48.5万円 48.5万円 | 3LDK 72.45m2 | 築25年 | 東京メトロ丸ノ内線 四谷三丁目駅 徒歩6分 東京メトロ丸ノ内線 新宿御苑前駅 徒歩6分 都営新宿線 曙橋駅 徒歩12分 東京都新宿区四谷 | 詳細を見る | |
アパート イーストテラス(3LDK/2階) | |||||||
![]() | 55.5万円 なし | 55.5万円 55.5万円 | 3LDK 98.71m2 | 築3年 | JR山手線 恵比寿駅 徒歩9分 東急東横線 代官山駅 徒歩15分 JR山手線 渋谷駅 徒歩15分 東京都渋谷区東 | 詳細を見る | |
マンション ザ・パークハウス西新宿タワー60(1LDK/60階) | |||||||
![]() | 48万円 なし | 48万円 48万円 | 1LDK 71.84m2 | 築9年 | 都営大江戸線 西新宿五丁目駅 徒歩8分 東京メトロ丸ノ内線 西新宿駅 徒歩11分 都営大江戸線 都庁前駅 徒歩11分 東京都新宿区西新宿 | 詳細を見る | |
マンション プラウドタワー渋谷(2LDK/21階) | |||||||
![]() | 93万円 なし | 186万円 93万円 | 2LDK 95.01m2 | 築1年 | JR山手線 渋谷駅 徒歩6分 東急東横線 代官山駅 徒歩15分 東京メトロ日比谷線 恵比寿駅 徒歩16分 東京都渋谷区渋谷 | 詳細を見る | |
マンション SOCIETY NAKANO FUJIMICHO(2LDK/6階) | |||||||
![]() | 54万円 1万円 | 108万円 54万円 | 2LDK 79.03m2 | 築34年 | 東京メトロ丸ノ内線 中野富士見町駅 徒歩4分 東京メトロ丸ノ内線 中野新橋駅 徒歩11分 東京メトロ丸ノ内線 新中野駅 徒歩13分 東京都杉並区和田 | 詳細を見る | |


/105x80-f1-q70-wp1)
/105x80-f1-q70-wp1)




