賃貸マンション
ガーラ・グランディ川崎榎町の賃貸物件情報(1K/11階)
| 家賃 | 管理費等 | 敷金 | 礼金 | 間取り | 専有面積 |
|---|---|---|---|---|---|
| 8.2万円 | 9,000円 | 8.2万円 | 16.4万円 | 1K | 20.22m2 |
入居決定でお祝い金最大100,000円
Point
まずはお問い合わせ!
不動産会社は街のプロ、あなたに合った物件がきっと見つかります。
提供:(株)TRYestate(SUUMO経由)

詳細情報 ガーラ・グランディ川崎榎町
物件紹介
ガーラ・グランディ川崎榎町は京急大師線京急川崎駅から徒歩10分にあり、駅近で通勤通学に便利なマンションです。
このお部屋は2階以上に位置しているので、通行人や周囲の住人からの視線が気になりにくく、防犯面でも安心。建物のエントランスはオートロックがついており、インターホンにはTVモニタもついているため、相手の顔を確認してから来客対応することができます。
フローリングのお部屋なのでお掃除もラクラク。キッチンはシステムキッチン仕様になっていますので、お料理好きの方にもぴったり。バス・トイレは別なので、のんびりお風呂タイムも楽しめるでしょう。また、雨の日でも浴室乾燥機を使えば、お洗濯も問題ありません。
通信設備面では、インターネットが無料で使えるので、月々の出費を抑えられるのも魅力です。また、BSアンテナ・CSアンテナがありCATVにも対応しているので、おうち時間も充実するでしょう(別途工事、BS・CS・CATVの契約料等が必要な場合あり)。
建物にはエレベーターがついているので、重い荷物があっても安心。共用部には宅配ボックスが設定されているので、不在の時にも荷物を受け取ることができます。
このお部屋は2階以上に位置しているので、通行人や周囲の住人からの視線が気になりにくく、防犯面でも安心。建物のエントランスはオートロックがついており、インターホンにはTVモニタもついているため、相手の顔を確認してから来客対応することができます。
フローリングのお部屋なのでお掃除もラクラク。キッチンはシステムキッチン仕様になっていますので、お料理好きの方にもぴったり。バス・トイレは別なので、のんびりお風呂タイムも楽しめるでしょう。また、雨の日でも浴室乾燥機を使えば、お洗濯も問題ありません。
通信設備面では、インターネットが無料で使えるので、月々の出費を抑えられるのも魅力です。また、BSアンテナ・CSアンテナがありCATVにも対応しているので、おうち時間も充実するでしょう(別途工事、BS・CS・CATVの契約料等が必要な場合あり)。
建物にはエレベーターがついているので、重い荷物があっても安心。共用部には宅配ボックスが設定されているので、不在の時にも荷物を受け取ることができます。
お金・契約の情報
※「-」と表示されているものは、実際は料金が発生するものもございます。詳細はお問い合わせください。
| 家賃 | 8.2万円 | 管理費・共益費 | 9,000円 |
|---|---|---|---|
| 敷金 | 8.2万円 | 礼金 | 16.4万円 |
| 入居決定でお祝い金最大100,000円 | |||
| 保証金 | - | 償却・敷引 | - |
| 住宅保険料 | 1円 | 更新料 | - |
| その他費用 | (退去時)エアコンクリーニング費用/1台につき:1.32万円、26000円: | ||
| 保証会社利用 | 必須 | 保証会社名 | クレディセゾン |
| 保証会社費用 | - | 保証会社備考 | 保証料:賃料等の0.5ヶ月分(最低保証料2万円)/月額保証料 賃料等の1.2% |
| 契約形態 | - | 契約期間 | 2年 |
| 入居・引渡期間 | 2025年12月中旬 | 現況 | - |
| 入居可能条件 | 楽器不可、ペット不可 | ||
| 契約備考 | 鍵交換費用:23100 室内清掃費用:38500 その他設備/条件:室内洗濯機置き場、ごみ出し24時間OK、独立洗面台、防犯カメラ、クローゼット、シューズボックス | ||
部屋の情報
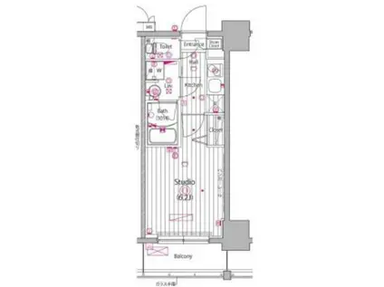
| 間取り | 1K | 専有面積 | 20.22m2 |
|---|---|---|---|
| 間取り詳細 | K(2帖)、洋室(6帖) | ||
| 所在階 / 向き | 11階 / 北西 | バルコニー面積 | 3m2 |
| 水道 / ガス | 水道【公営】、ガス【都市】 | ||
| 設備 | バス・トイレ別、オートロック、テレビドアホン、宅配ボックス、浴室乾燥機、光ファイバー対応、システムキッチン、エアコン、エレベーター、温水洗浄便座、バルコニー、フローリング、2口コンロ、コンロ:ガス、CSアンテナ、BSアンテナ、インターネット使用料無料、シャワー、給湯、タイル張り | ||
| 当社物件ID | 86627499 | ||
建物の情報
| 建物名 | ガーラ・グランディ川崎榎町 | ||
|---|---|---|---|
| 所在地 | 神奈川県川崎市川崎区榎町 | ||
| 交通 | 京浜東北・根岸線 川崎駅 徒歩13分 東海道本線 川崎駅 徒歩13分 | ||
| 階数 | 14階建 | 総戸数 | 98戸 |
| 築年月 | 2016年06月 / 築10年 | エレベーター | あり |
| 駐車場 | なし 1.7万円/月 台数:1 | バイク置き場 | - |
| 駐輪場 | あり | 管理人/管理会社 | 日勤 |
| 周辺環境 | その他 ドラッグストア その他 公園 その他 銀行 その他 * | ||
| 建物種別 | マンション | 建物構造 | RC(鉄筋コンクリート) |
この部屋の取扱い不動産会社
| 会社名 | ハウスコム西東京株式会社 大森店 | ||
|---|---|---|---|
| 所在地 | 東京都大田区2-41階 | 交通 | - |
| 営業時間 | 10:00~18:00 | 定休日 | 水曜定休 |
| 免許番号 | 東京都知事(1)第108225号 | 取引態様 | 仲介 |
| 不動産会社管理番号 | HC5-5181489-1106-0220 | 当社管理番号 | 468 |
| 所属団体 | 、 | ||
| 取扱い物件情報 | 物件詳細へ | ||
※各種情報と現状に差異がある場合は、現状優先となります。問い合わせをすることで、より詳しい条件、情報を確認する事ができます。
提供:ハウスコム西東京株式会社 大森店
この物件が気になったら掲載期限まであと5日
ガーラ・グランディ川崎榎町に条件(家賃・エリア)が近い物件一覧
| 写真 | 家賃 管理費等 | 敷金 礼金 | 間取り 専有面積 | 築年数 | 最寄り駅 所在地 | キープ | 詳細 |
|---|---|---|---|---|---|---|---|
アパート ビリオンハーバーV(1K/2階) | |||||||
![]() | 6.3万円 3,000円 | なし 6.3万円 | 1K 18.36m2 | 築3年 | グリーンライン 川和町駅 徒歩9分 JR横浜線 中山駅(神奈川) 徒歩18分 神奈川県横浜市緑区北八朔町 | 詳細を見る | |
マンション ロイヤルステージST大通公園(2DK/7階) | |||||||
![]() | 11.5万円 5,000円 | 11.5万円 11.5万円 | 2DK 49m2 | 築32年 | ブルーライン 伊勢佐木長者町駅 徒歩3分 ブルーライン 阪東橋駅 徒歩7分 京急本線 日ノ出町駅 徒歩10分 神奈川県横浜市中区弥生町 | 詳細を見る | |
マンション ハピネス飯田6号館(2LDK/2階) | |||||||
![]() | 12.8万円 5,000円 | 12.8万円 12.8万円 | 2LDK 51m2 | 築31年 | 横浜市グリーンL 日吉本町駅 徒歩7分 神奈川県横浜市港北区綱島西5丁目 | 詳細を見る | |
アパート メゾン・ライトA(1K/3階) | |||||||
![]() | 8.7万円 なし | 8.7万円 8.7万円 | 1K 28.28m2 | 築5年 | 京急本線 鶴見市場駅 徒歩5分 JR南武線 八丁畷駅 徒歩10分 JR南武線 川崎新町駅 徒歩13分 神奈川県横浜市鶴見区平安町 | 詳細を見る | |
アパート ルミエールいずみ中央(1K/3階) | |||||||
![]() | 6.7万円 3,000円 | なし なし | 1K 23.88m2 | 新築 | 相模鉄道いずみ野線 いずみ中央駅 徒歩6分 相模鉄道いずみ野線 ゆめが丘駅 徒歩13分 神奈川県横浜市泉区上飯田町 | 詳細を見る | |
アパート リブリ・グランパル川崎(1K/3階) | |||||||
![]() | 7.3万円 4,000円 | なし なし | 1K 21.11m2 | 築9年 | JR南武線 浜川崎駅 徒歩17分 JR南武線 小田栄駅 徒歩18分 神奈川県川崎市川崎区大島 | 詳細を見る | |





