賃貸マンション
プラネソシエプラス旗の台の賃貸物件情報(2LDK/5階)
| 家賃 | 管理費等 | 敷金 | 礼金 | 間取り | 専有面積 |
|---|---|---|---|---|---|
| 29.6万円 | 1.2万円 | 29.6万円 | なし | 2LDK | 54.66m2 |
入居決定でお祝い金最大100,000円
Point
セキュリティ面は、TVインターホン・オートロックなどを備え付けているので安心して暮らせます。
提供:センチュリー21(株)トーコー開発(SUUMO経由)

詳細情報 プラネソシエプラス旗の台
物件紹介
プラネソシエプラス旗の台は東急大井町線旗の台駅から徒歩2分にあり、駅近で通勤通学に便利なマンションです。
このお部屋は2階以上に位置しているので、通行人や周囲の住人からの視線が気になりにくく、防犯面でも安心。建物のエントランスはオートロックがついており、インターホンにはTVモニタもついているため、相手の顔を確認してから来客対応することができます。
人気の角部屋で周囲の居住者の生活音も気になりにくく、また、フローリングのお部屋なのでお掃除もラクラク。キッチンはシステムキッチン仕様になっていますので、お料理好きの方にもぴったり。バス・トイレは別なので、のんびりお風呂タイムも楽しめるでしょう。また、雨の日でも浴室乾燥機を使えば、お洗濯も問題ありません。
通信設備面では、インターネットが無料で使えるので、月々の出費を抑えられるのも魅力です。また、CATVにも対応しているので、おうち時間も充実するでしょう(別途工事、CATVの契約料等が必要な場合あり)。
建物にはエレベーターがついているので、重い荷物があっても安心。共用部には宅配ボックスが設定されているので、不在の時にも荷物を受け取ることができます。
コンビニまで徒歩8分の場所にあり、日用品や食料品のお買い物にも便利です。
このお部屋は2階以上に位置しているので、通行人や周囲の住人からの視線が気になりにくく、防犯面でも安心。建物のエントランスはオートロックがついており、インターホンにはTVモニタもついているため、相手の顔を確認してから来客対応することができます。
人気の角部屋で周囲の居住者の生活音も気になりにくく、また、フローリングのお部屋なのでお掃除もラクラク。キッチンはシステムキッチン仕様になっていますので、お料理好きの方にもぴったり。バス・トイレは別なので、のんびりお風呂タイムも楽しめるでしょう。また、雨の日でも浴室乾燥機を使えば、お洗濯も問題ありません。
通信設備面では、インターネットが無料で使えるので、月々の出費を抑えられるのも魅力です。また、CATVにも対応しているので、おうち時間も充実するでしょう(別途工事、CATVの契約料等が必要な場合あり)。
建物にはエレベーターがついているので、重い荷物があっても安心。共用部には宅配ボックスが設定されているので、不在の時にも荷物を受け取ることができます。
コンビニまで徒歩8分の場所にあり、日用品や食料品のお買い物にも便利です。
お金・契約の情報
※「-」と表示されているものは、実際は料金が発生するものもございます。詳細はお問い合わせください。
| 家賃 | 29.6万円 | 管理費・共益費 | 1.2万円 |
|---|---|---|---|
| 敷金 | 29.6万円 | 礼金 | なし |
| 入居決定でお祝い金最大100,000円 | |||
| 保証金 | - | 償却・敷引 | - |
| 住宅保険料 | 1円 | 更新料 | - |
| 保証会社利用 | 必須 | 保証会社名 | - |
| 保証会社費用 | - | 保証会社備考 | 初回50% 月々1% |
| 契約形態 | - | 契約期間 | 2年 |
| 入居・引渡期間 | 2026年03月下旬 | 現況 | - |
| 契約備考 | 1年以内解約時賃料等1ヶ月分違約金有 室内清掃費用:57860 その他設備/条件:ごみ出し24時間OK、独立洗面台、防犯カメラ、クローゼット、シューズボックス | ||
部屋の情報
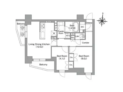
| 間取り | 2LDK | 専有面積 | 54.66m2 |
|---|---|---|---|
| 間取り詳細 | 洋室(4.1帖)、LDK(12帖)、洋室(6帖) | ||
| 所在階 / 向き | 5階 / 西 | バルコニー面積 | - |
| 水道 / ガス | - | ||
| 設備 | バス・トイレ別、オートロック、テレビドアホン、宅配ボックス、浴室乾燥機、追い焚き、システムキッチン、カウンターキッチン、エアコン、エレベーター、温水洗浄便座、角部屋、バルコニー、フローリング、洗髪洗面化粧台、CATV、インターネット使用料無料、シャワー | ||
| 当社物件ID | 160432994 | ||
建物の情報
| 建物名 | プラネソシエプラス旗の台 | ||
|---|---|---|---|
| 所在地 | 東京都品川区旗の台3丁目 | ||
| 交通 | 東急大井町線 旗の台駅 徒歩2分 東急大井町線 荏原町駅 徒歩7分 | ||
| 階数 | 6階建 | 総戸数 | - |
| 築年月 | 2026年02月 / 新築(築1年) | エレベーター | あり |
| 駐車場 | なし | バイク置き場 | - |
| 駐輪場 | - | 管理人/管理会社 | - |
| 周辺環境 | コンビニ 徒歩8分(584m) 販売店 徒歩4分(314m) その他 ドラッグストア その他 公園 その他 銀行 その他 * | ||
| 建物種別 | マンション | 建物構造 | RC(鉄筋コンクリート) |
この部屋の取扱い不動産会社
| 会社名 | ハウスコム西東京株式会社 五反田店 | ||
|---|---|---|---|
| 所在地 | 東京都品川区12-12落合ビル2階 | 交通 | - |
| 営業時間 | 10:00~18:00 | 定休日 | - |
| 免許番号 | 東京都知事(1)第108225号 | 取引態様 | 仲介 |
| 不動産会社管理番号 | HC2-5389616-501-0035 | 当社管理番号 | 468 |
| 所属団体 | 、 | ||
| 取扱い物件情報 | 物件詳細へ | ||
※各種情報と現状に差異がある場合は、現状優先となります。問い合わせをすることで、より詳しい条件、情報を確認する事ができます。
提供:ハウスコム西東京株式会社 五反田店
この物件が気になったら掲載期限まであと5日
プラネソシエプラス旗の台に条件(家賃・エリア)が近い物件一覧
| 写真 | 家賃 管理費等 | 敷金 礼金 | 間取り 専有面積 | 築年数 | 最寄り駅 所在地 | キープ | 詳細 |
|---|---|---|---|---|---|---|---|
マンション RIDGE豊洲(1LDK/3階) | |||||||
![]() | 18.6万円 1.5万円 | なし なし | 1LDK 39.99m2 | 築6年 | 東京メトロ有楽町線 豊洲駅 徒歩11分 りんかい線 東雲駅(東京) 徒歩14分 新交通ゆりかもめ 新豊洲駅 徒歩23分 東京都江東区東雲 | 詳細を見る | |
マンション アズ亀戸レジデンス(ワンルーム/1階) | |||||||
![]() | 18万円 5,000円 | 36万円 なし | ワンルーム 31.27m2 | 築22年 | JR総武線 亀戸駅 徒歩6分 東武亀戸線 亀戸水神駅 徒歩8分 都営新宿線 大島駅(東京) 徒歩9分 東京都江東区亀戸 | 詳細を見る | |
一戸建て 京浜急行電鉄本線 梅屋敷駅(東京) 徒歩9分 築25年(3LDK) | |||||||
![]() | 20万円 なし | 20万円 20万円 | 3LDK 80.82m2 | 築25年 | 京浜急行電鉄本線 梅屋敷駅(東京) 徒歩9分 京浜東北・根岸線 蒲田駅 徒歩10分 東京都大田区大森西7丁目 | 詳細を見る | |
マンション ラフィーネ大森(3LDK/3階) | |||||||
![]() | 32.9万円 2,000円 | 32.9万円 なし | 3LDK 116.22m2 | 築22年 | 京急本線 平和島駅 徒歩14分 京急本線 大森町駅 徒歩16分 JR京浜東北線 大森駅(東京) 徒歩16分 東京都大田区大森西 | 詳細を見る | |
マンション 京浜急行電鉄本線 梅屋敷駅(東京) 徒歩4分 築36年(3LDK/2階) | |||||||
![]() | 23万円 7,000円 | 23万円 23万円 | 3LDK 84.68m2 | 築36年 | 京浜急行電鉄本線 梅屋敷駅(東京) 徒歩4分 京浜急行電鉄本線 大森町駅 徒歩12分 東京都大田区大森西6丁目 | 詳細を見る | |
マンション 本間ビル(3LDK/4階) | |||||||
![]() | 18.4万円 5,000円 | 18.4万円 なし | 3LDK 75m2 | 築47年 | 京浜急行電鉄本線 京急蒲田駅 徒歩5分 京浜急行電鉄空港線 糀谷駅 徒歩10分 東京都大田区南蒲田1丁目 | 詳細を見る | |
一戸建て 京浜急行電鉄本線 大森町駅 徒歩14分 築23年(3LDK) | |||||||
![]() | 20万円 なし | 20万円 20万円 | 3LDK 71.86m2 | 築23年 | 京浜急行電鉄本線 大森町駅 徒歩14分 京浜急行電鉄本線 梅屋敷駅(東京) 徒歩16分 東京都大田区大森東4丁目 | 詳細を見る | |
マンション プロスペクト清澄庭園(3LDK/6階) | |||||||
![]() | 28.4万円 なし | 28.4万円 28.4万円 | 3LDK 70.64m2 | 築24年 | 都営大江戸線 清澄白河駅 徒歩7分 都営新宿線 森下駅(東京) 徒歩10分 東京メトロ半蔵門線 水天宮前駅 徒歩11分 東京都江東区清澄 | 詳細を見る | |









