賃貸マンション
プレサンス名古屋幅下ファビュラスの賃貸物件情報(1K/2階)
| 家賃 | 管理費等 | 敷金 | 礼金 | 間取り | 専有面積 |
|---|---|---|---|---|---|
| 6.45万円 | 1.1万円 | なし | 6.45万円 | 1K | 21.46m2 |
入居決定でお祝い金最大100,000円
- 保証金
- -
- 償却・敷引
- -
- 築年数
- 築6年
- 所在階
- 2階
- 向き
- 北
Point
セキュリティ面は、オートロック・TVインターホンなど充実しているので、防犯対策もばっちりです。共用部には宅配ボックスを備え付けているため、対面で荷物を受け取る必要がありません。
提供:ルームセレクト藤が丘店(株)洞口(SUUMO経由)

詳細情報 プレサンス名古屋幅下ファビュラス
物件紹介
プレサンス名古屋幅下ファビュラスは地下鉄鶴舞線浅間町駅から徒歩9分にあり、駅近で通勤通学に便利なマンションです。
このお部屋は2階以上に位置しているので、通行人や周囲の住人からの視線が気になりにくく、防犯面でも安心。建物のエントランスはオートロックがついており、インターホンにはTVモニタもついているため、相手の顔を確認してから来客対応することができます。
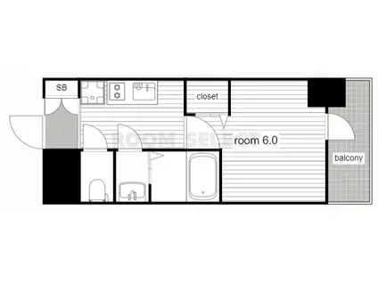
おしゃれなデザイナーズ物件!人気の角部屋で周囲の居住者の生活音も気になりにくく、また、フローリングのお部屋なのでお掃除もラクラク。キッチンはシステムキッチン仕様になっていますので、お料理好きの方にもぴったり。バス・トイレは別なので、のんびりお風呂タイムも楽しめるでしょう。また、雨の日でも浴室乾燥機を使えば、お洗濯も問題ありません。
通信設備面では、インターネットが無料で使えるので、月々の出費を抑えられるのも魅力です。また、BSアンテナもありますので、おうち時間も充実するでしょう(別途工事、BSの契約料等が必要な場合あり)。
建物にはエレベーターがついているので、重い荷物があっても安心。共用部には宅配ボックスが設定されているので、不在の時にも荷物を受け取ることができます。
このお部屋は2階以上に位置しているので、通行人や周囲の住人からの視線が気になりにくく、防犯面でも安心。建物のエントランスはオートロックがついており、インターホンにはTVモニタもついているため、相手の顔を確認してから来客対応することができます。
おしゃれなデザイナーズ物件!人気の角部屋で周囲の居住者の生活音も気になりにくく、また、フローリングのお部屋なのでお掃除もラクラク。キッチンはシステムキッチン仕様になっていますので、お料理好きの方にもぴったり。バス・トイレは別なので、のんびりお風呂タイムも楽しめるでしょう。また、雨の日でも浴室乾燥機を使えば、お洗濯も問題ありません。
通信設備面では、インターネットが無料で使えるので、月々の出費を抑えられるのも魅力です。また、BSアンテナもありますので、おうち時間も充実するでしょう(別途工事、BSの契約料等が必要な場合あり)。
建物にはエレベーターがついているので、重い荷物があっても安心。共用部には宅配ボックスが設定されているので、不在の時にも荷物を受け取ることができます。
お金・契約の情報
※「-」と表示されているものは、実際は料金が発生するものもございます。詳細はお問い合わせください。
| 家賃 | 6.45万円 | 管理費・共益費 | 1.1万円 |
|---|---|---|---|
| 敷金 | なし | 礼金 | 6.45万円 |
| 入居決定でお祝い金最大100,000円 | |||
| 保証金 | - | 償却・敷引 | - |
| 住宅保険料 | - | 更新料 | - |
| 保証会社利用 | 必須 | 保証会社名 | - |
| 保証会社費用 | - | 保証会社備考 | 保証会社利用必 初回100% |
| 契約形態 | - | 契約期間 | - |
| 入居・引渡期間 | 即時 | 現況 | - |
| 契約備考 | 巡回管理 合計8.8万円(内訳:鍵交換代3.3万円室内清掃費用5.5万円) 24時間サポート費用 月額2200円 1K 損保【要】 バストイレ別、エアコン、ガスコンロ対応、クロゼット、フローリング、TVインターホン、浴室乾燥機、オートロック、室内洗濯置、システムキッチン、温水洗浄便座、洗面所独立、洗面化粧台、2口コンロ、駐輪場、宅配ボックス、即入居可、防犯カメラ、照明付、バイク置場、デザイナーズ、ネット使用料不要、敷地内ごみ置き場、都市ガス、BS | ||
部屋の情報
| 間取り | 1K | 専有面積 | 21.46m2 |
|---|---|---|---|
| 所在階 / 向き | 2階 / 北 | バルコニー面積 | - |
| 水道 / ガス | - | ||
| 設備 | バス・トイレ別、2階以上、オートロック、テレビドアホン、宅配ボックス、浴室乾燥機、インターネット対応、システムキッチン、エアコン、温水洗浄便座、フローリング、洗髪洗面化粧台、2口コンロ、コンロ:ガス、デザイナーズ、BSアンテナ、インターネット使用料無料、洗濯機:室内 | ||
| 当社物件ID | 46820503 | ||
建物の情報
| 建物名 | プレサンス名古屋幅下ファビュラス | ||
|---|---|---|---|
| 所在地 | 愛知県名古屋市西区幅下 | ||
| 交通 | 地下鉄鶴舞線 丸の内駅(愛知) 徒歩9分 地下鉄桜通線 太閤通駅 徒歩13分 地下鉄鶴舞線 浅間町駅 徒歩14分 | ||
| 階数 | 14階建 | 総戸数 | 65戸 |
| 築年月 | 2021年03月 / 築6年 | エレベーター | - |
| 駐車場 | なし | バイク置き場 | あり |
| 駐輪場 | あり | 管理人/管理会社 | - |
| 周辺環境 | その他 デイリーヤマザキ錦伝馬町店(その他)まで705m その他 ドラッグユタカ押切店(その他)まで1122m その他 マクドナルド城西店(その他)まで558m その他 丸榮(その他)まで797m その他 名古屋景雲橋郵便局(その他)まで187m | ||
| 建物種別 | マンション | 建物構造 | RC(鉄筋コンクリート) |
この部屋の取扱い不動産会社
| 会社名 | (株)メディア不動産愛知ホームメイトFC中村公園駅前店(SUUMO経由) | ||
|---|---|---|---|
| 所在地 | 愛知県名古屋市中村区太閤通9-19 宝中村公園ハイツ2階 | 交通 | - |
| 営業時間 | 10:00~18:00 | 定休日 | 4月~12月水曜日 |
| 免許番号 | 愛知県知事22095 | 取引態様 | 仲介 |
| 不動産会社管理番号 | 100467771820 | 当社管理番号 | 89 |
| 所属団体 | (公社)全日本不動産協会愛知県本部会員 | ||
| 公正取引協議会 | 東海不動産公正取引協議会加盟 | ||
| 取扱い物件情報 | 物件詳細へ | ||
※各種情報と現状に差異がある場合は、現状優先となります。問い合わせをすることで、より詳しい条件、情報を確認する事ができます。
提供:(株)メディア不動産愛知ホームメイトFC中村公園駅前店(SUUMO経由)
この物件が気になったら掲載期限まであと11日
プレサンス名古屋幅下ファビュラスに条件(家賃・エリア)が近い物件一覧
| 写真 | 家賃 管理費等 | 敷金 礼金 | 間取り 専有面積 | 築年数 | 最寄り駅 所在地 | キープ | 詳細 |
|---|---|---|---|---|---|---|---|
マンション SーRESIDENCE庄内通(1K/13階) | |||||||
![]() | 6.65万円 8,500円 | なし 6.65万円 | 1K 25.46m2 | 築5年 | 名古屋市鶴舞線 庄内通駅 徒歩4分 名古屋市鶴舞線 浄心駅 徒歩15分 名古屋市鶴舞線 庄内緑地公園駅 徒歩23分 愛知県名古屋市西区庄内通2丁目 | 詳細を見る | |
マンション LIVES RESIDENCE 太閤通(ワンルーム/7階) | |||||||
![]() | 7.4万円 9,000円 | なし なし | ワンルーム 29.25m2 | 築4年 | 地下鉄桜通線 太閤通駅 徒歩7分 地下鉄東山線 中村日赤駅 徒歩10分 地下鉄東山線 本陣駅 徒歩14分 愛知県名古屋市中村区太閤通 | 詳細を見る | |
マンション SK BUILDING10(ワンルーム/2階) | |||||||
![]() | 5.4万円 6,000円 | なし なし | ワンルーム 24.85m2 | 築14年 | 近鉄名古屋線 米野駅 徒歩3分 名古屋臨海高速鉄道 ささしまライブ駅 徒歩7分 名古屋市桜通線 太閤通駅 徒歩14分 愛知県名古屋市中村区大正町1丁目 | 詳細を見る | |
マンション SHOKEN RESIDENCE名古屋(1K/13階) | |||||||
![]() | 6.75万円 1万円 | なし なし | 1K 25.67m2 | 築1年 | 名古屋市桜通線 太閤通駅 徒歩8分 近鉄名古屋線 黄金駅(愛知) 徒歩10分 愛知県名古屋市中村区黄金通3丁目 | 詳細を見る | |
マンション パルファン ドゥ ジョア(1K/2階) | |||||||
![]() | 7.5万円 7,000円 | なし 7.5万円 | 1K 31.14m2 | 築5年 | 地下鉄桜通線 太閤通駅 徒歩1分 地下鉄東山線 名古屋駅 徒歩12分 近鉄名古屋線 米野駅 徒歩14分 愛知県名古屋市中村区上米野町 | 詳細を見る | |
マンション ディアレイシャス名古屋中村公園Ⅱ(1K/9階) | |||||||
![]() | 6.45万円 8,000円 | なし なし | 1K 24.28m2 | 築1年 | 名古屋市東山線 中村公園駅 徒歩3分 名古屋市東山線 中村日赤駅 徒歩9分 愛知県名古屋市中村区鳥居通5丁目 | 詳細を見る | |
マンション レジデンス ユウキ(1K/2階) | |||||||
![]() | 6.3万円 9,000円 | なし なし | 1K 27.09m2 | 築7年 | 名古屋市桜通線 太閤通駅 徒歩10分 名古屋市東山線 亀島駅 徒歩10分 愛知県名古屋市中村区則武1丁目 | 詳細を見る | |
マンション プレサンスTHE久屋大通レジェンド(1K/2階) | |||||||
![]() | 6.2万円 1万円 | なし なし | 1K 23.37m2 | 築6年 | 地下鉄名城線 久屋大通駅 徒歩5分 地下鉄桜通線 丸の内駅(愛知) 徒歩5分 地下鉄東山線 伏見駅(愛知) 徒歩12分 愛知県名古屋市中区丸の内 | 詳細を見る | |








