賃貸マンション
プランタン細野の賃貸物件情報(2LDK/2階)
| 家賃 | 管理費等 | 敷金 | 礼金 | 間取り | 専有面積 |
|---|---|---|---|---|---|
| 13万円 | 5,000円 | 13万円 | 13万円 | 2LDK | 60m2 |
入居決定でお祝い金最大100,000円
- 保証金
- -
- 償却・敷引
- -
- 築年数
- 築16年
- 所在階
- 2階
- 向き
- 南東
Point
京王線多磨霊園駅から徒歩8分のペット可ファミリー物件!ペット飼育には欠かせないバルコニーに外水栓がついております。キッチンはシステムキッチンIHコンロ3口!浴室乾燥機・追焚き機能付き!独立洗面台!
提供:(株)アロー建物管理(SUUMO経由)

詳細情報 プランタン細野
物件紹介
プランタン細野は京王線多磨霊園駅から徒歩8分にあり、駅近で通勤通学に便利なマンションです。
このお部屋は2階以上に位置しているので、通行人や周囲の住人からの視線が気になりにくく、防犯面でも安心。建物のエントランスはオートロックがついており、インターホンにはTVモニタもついているため、相手の顔を確認してから来客対応することができます。
人気の南向きのお部屋。また、フローリングなのでお掃除もラクラク。キッチンはシステムキッチン仕様になっていますので、お料理好きの方にもぴったり。バス・トイレは別なので、のんびりお風呂タイムも楽しめるでしょう。また、雨の日でも浴室乾燥機を使えば、お洗濯も問題ありません。
通信設備面では、インターネットが無料で使えるので、月々の出費を抑えられるのも魅力です。また、CATVにも対応しているので、おうち時間も充実するでしょう(別途工事、CATVの契約料等が必要な場合あり)。
建物にはエレベーターがついているので、重い荷物があっても安心。共用部には宅配ボックスが設定されているので、不在の時にも荷物を受け取ることができます。また、ペット飼育の相談ができますので、あなたの大切な家族の一員も快適に暮らせるか、ぜひ確認してみてください。
このお部屋は2階以上に位置しているので、通行人や周囲の住人からの視線が気になりにくく、防犯面でも安心。建物のエントランスはオートロックがついており、インターホンにはTVモニタもついているため、相手の顔を確認してから来客対応することができます。
人気の南向きのお部屋。また、フローリングなのでお掃除もラクラク。キッチンはシステムキッチン仕様になっていますので、お料理好きの方にもぴったり。バス・トイレは別なので、のんびりお風呂タイムも楽しめるでしょう。また、雨の日でも浴室乾燥機を使えば、お洗濯も問題ありません。
通信設備面では、インターネットが無料で使えるので、月々の出費を抑えられるのも魅力です。また、CATVにも対応しているので、おうち時間も充実するでしょう(別途工事、CATVの契約料等が必要な場合あり)。
建物にはエレベーターがついているので、重い荷物があっても安心。共用部には宅配ボックスが設定されているので、不在の時にも荷物を受け取ることができます。また、ペット飼育の相談ができますので、あなたの大切な家族の一員も快適に暮らせるか、ぜひ確認してみてください。
お金・契約の情報
※「-」と表示されているものは、実際は料金が発生するものもございます。詳細はお問い合わせください。
| 家賃 | 13万円 | 管理費・共益費 | 5,000円 |
|---|---|---|---|
| 敷金 | 13万円 | 礼金 | 13万円 |
| 入居決定でお祝い金最大100,000円 | |||
| 保証金 | - | 償却・敷引 | - |
| 住宅保険料 | - | 更新料 | - |
| 保証会社利用 | 必須 | 保証会社名 | - |
| 保証会社費用 | - | 保証会社備考 | 保証会社利用必 ジェイリース 初回保証料:総賃料の50%(毎年更新:10000円) |
| 契約形態 | - | 契約期間 | - |
| 入居・引渡期間 | - | 現況 | - |
| 入居可能条件 | ペット相談 | ||
| 契約備考 | 巡回管理/駅から徒歩8分と徒歩圏内のファミリータイプ。ペット可の物件となっており、共用スペースにはペットの足洗い場もございます。また防犯面カメラも設置しており、オートロックも備えておりますので安心です。 合計7.22万円(内訳:アクセス24加入費15,000円(更新時5,000円)鍵交換25,300円(税込)、除菌消臭30,800円(税込)) ペット飼育時追加敷金1か月(退室時償却100%)退室時ハウスクリーニング66,000円(税込)、エアコンクリーニング16,500円(税込)は賃借人様のご負担となります。 2LDK ペット相談 普通借家2年 損保【2万円2年】 バストイレ別、バルコニー、エアコン、ガスコンロ対応、フローリング、シャワー付洗面台、TVインターホン、浴室乾燥機、オートロック、室内洗濯置、シューズボックス、システムキッチン、追焚機能浴室、エレベーター、洗面所独立、洗面化粧台、駐輪場、宅配ボックス、CATV、3口以上コンロ、対面式キッチン、防犯カメラ、ペット相談、グリル付、全居室洋室、全居室フローリング、2沿線利用可、ネット使用料不要、バリアフリー、24時間換気システム、クロゼット2ヶ所、ペット専用設備、100円バス路線、駅徒歩10分以内、敷地内ごみ置き場、平面駐車場、当社管理物件、LDK12畳以上、全居室6畳以上、都市ガス、玄関収納、礼金1ヶ月 入居日:'26年4月中旬 | ||
部屋の情報
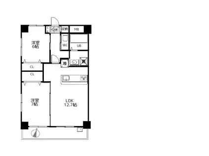
| 間取り | 2LDK | 専有面積 | 60m2 |
|---|---|---|---|
| 所在階 / 向き | 2階 / 南東 | バルコニー面積 | 9m2 |
| 水道 / ガス | - | ||
| 設備 | バス・トイレ別、2階以上、オートロック、テレビドアホン、宅配ボックス、浴室乾燥機、追い焚き、インターネット対応、システムキッチン、エアコン、エレベーター、南向き、バルコニー、フローリング、洗髪洗面化粧台、2口コンロ、コンロ:ガス、CATV、インターネット使用料無料、洗濯機:室内 | ||
| 当社物件ID | 1357550 | ||
建物の情報
| 建物名 | プランタン細野 | ||
|---|---|---|---|
| 所在地 | 東京都府中市小柳町 | ||
| 交通 | 京王線 多磨霊園駅 徒歩8分 京王線 東府中駅 徒歩13分 西武多摩川線 競艇場前駅 徒歩15分 | ||
| 階数 | 4階建 | 総戸数 | - |
| 築年月 | 2010年10月 / 築16年 | エレベーター | あり |
| 駐車場 | 近隣 20m14300円 | バイク置き場 | - |
| 駐輪場 | あり | 管理人/管理会社 | - |
| 周辺環境 | その他 サミットストア府中若松店(スーパー)まで1296m その他 サンドラッグ東府中店(ドラッグストア)まで1237m その他 セブンイレブン府中小柳町2丁目店(コンビニ)まで308m その他 ニトリ府中店(ホームセンター)まで1246m その他 府中市立小柳小学校(小学校)まで566m その他 府中市立府中第九中学校(中学校)まで336m | ||
| 建物種別 | マンション | 建物構造 | RC(鉄筋コンクリート) |
この部屋の取扱い不動産会社
| 会社名 | (株)アロー建物管理(SUUMO経由) | ||
|---|---|---|---|
| 所在地 | 東京都府中市小柳町2-11-2 TENSBUILDING2階 | 交通 | - |
| 営業時間 | 10:00~18:00 | 定休日 | 水・日・祝日 |
| 免許番号 | 東京都知事105390 | 取引態様 | 代理 |
| 不動産会社管理番号 | 100261235708 | 当社管理番号 | 89 |
| 所属団体 | (公社)東京都宅地建物取引業協会会員 | ||
| 公正取引協議会 | (公社)首都圏不動産公正取引協議会加盟 | ||
| 取扱い物件情報 | 物件詳細へ | ||
※各種情報と現状に差異がある場合は、現状優先となります。問い合わせをすることで、より詳しい条件、情報を確認する事ができます。
提供:(株)アロー建物管理(SUUMO経由)
この物件が気になったら掲載期限まであと11日
プランタン細野に条件(家賃・エリア)が近い物件一覧
| 写真 | 家賃 管理費等 | 敷金 礼金 | 間取り 専有面積 | 築年数 | 最寄り駅 所在地 | キープ | 詳細 |
|---|---|---|---|---|---|---|---|
マンション ルミエール本宿四番館(2DK/2階) | |||||||
![]() | 8.7万円 5,000円 | なし なし | 2DK 43.74m2 | 築35年 | JR南武線 西府駅 徒歩10分 JR南武線 分倍河原駅 徒歩16分 東京都府中市本宿町 | 詳細を見る | |
マンション メインステージ府中中河原駅前(1LDK/6階) | |||||||
![]() | 13.5万円 1.5万円 | 13.5万円 13.5万円 | 1LDK 42.21m2 | 築15年 | 京王線 中河原駅 徒歩5分 京王線 聖蹟桜ケ丘駅 徒歩20分 JR南武線 西府駅 徒歩21分 東京都府中市住吉町 | 詳細を見る | |
マンション プリムヴェール布田(2LDK/1階) | |||||||
![]() | 18.1万円 8,000円 | なし 36.2万円 | 2LDK 47.89m2 | 築13年 | 京王線 布田駅 徒歩2分 京王線 調布駅 徒歩9分 東京都調布市国領町 | 詳細を見る | |
アパート サンクエストII(2LDK/1階) | |||||||
![]() | 8.3万円 2,000円 | 8.3万円 8.3万円 | 2LDK 51.89m2 | 築35年 | 京王線 中河原駅 徒歩6分 JR南武線 西府駅 徒歩14分 JR南武線 分倍河原駅 徒歩15分 東京都府中市住吉町 | 詳細を見る | |
マンション AZEST調布(1K/1階) | |||||||
![]() | 9万円 1万円 | なし 9万円 | 1K 25.74m2 | 築5年 | 京王線 調布駅 徒歩8分 京王線 布田駅 徒歩8分 京王線 国領駅 徒歩15分 東京都調布市布田 | 詳細を見る | |
アパート メゾン・ド・シャテーヌ(1LDK/2階) | |||||||
![]() | 9.1万円 5,000円 | なし 9.1万円 | 1LDK 40.46m2 | 築16年 | JR中央線 国分寺駅 徒歩20分 東京都小金井市貫井南町 | 詳細を見る | |
マンション ブルームーン(1LDK/1階) | |||||||
![]() | 11.2万円 6,500円 | なし 11.2万円 | 1LDK 43.75m2 | 築13年 | 京王競馬場線 東府中駅 徒歩13分 京王線 多磨霊園駅 徒歩18分 西武多摩川線 白糸台駅 徒歩23分 東京都府中市若松町 | 詳細を見る | |
アパート パセーラ12(2DK/2階) | |||||||
![]() | 8.3万円 3,000円 | 8.3万円 8.3万円 | 2DK 40m2 | 築32年 | 京王線 分倍河原駅 徒歩3分 JR南武線 府中本町駅 徒歩14分 京王線 府中駅(東京) 徒歩20分 東京都府中市分梅町 | 詳細を見る | |









