賃貸マンション
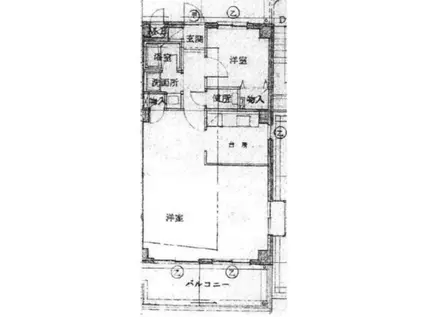
ドルフ安藤橋IIの賃貸物件情報(1LDK/3階)
| 家賃 | 管理費等 | 敷金 | 礼金 | 間取り | 専有面積 |
|---|---|---|---|---|---|
| 8.3万円 | 4,000円 | 8.3万円 | なし | 1LDK | 51.41m2 |
入居決定でお祝い金最大100,000円
- 保証金
- -
- 償却・敷引
- -
- 築年数
- 築38年
- 所在階
- 3階
- 向き
- -
Point
駅周辺にはスーパー、ドラッグストア、コンビニ多数ありとても住みやすい住環境です♪カップルや単身者の方におすすめです!お気軽にお問い合わせください(^_)☆
提供:アルプスの賃貸関内南口支店(株)アルプス建設(SUUMO経由)

詳細情報 ドルフ安藤橋II
物件紹介
ドルフ安藤橋IIはJR京浜東北線磯子駅から徒歩12分にあるマンションです。
このお部屋は2階以上に位置しているので、通行人や周囲の住人からの視線が気になりにくく、防犯面でも安心です。
人気の角部屋で周囲の居住者の生活音も気になりにくく、また、フローリングのお部屋なのでお掃除もラクラク。キッチンはシステムキッチン仕様になっていますので、お料理好きの方にもぴったり。また、バス・トイレは別で、のんびりお風呂タイムも楽しめるでしょう。
ペット飼育の相談ができますので、あなたの大切な家族の一員も快適に暮らせるか、ぜひ確認してみてください。
このお部屋は2階以上に位置しているので、通行人や周囲の住人からの視線が気になりにくく、防犯面でも安心です。
人気の角部屋で周囲の居住者の生活音も気になりにくく、また、フローリングのお部屋なのでお掃除もラクラク。キッチンはシステムキッチン仕様になっていますので、お料理好きの方にもぴったり。また、バス・トイレは別で、のんびりお風呂タイムも楽しめるでしょう。
ペット飼育の相談ができますので、あなたの大切な家族の一員も快適に暮らせるか、ぜひ確認してみてください。
お金・契約の情報
※「-」と表示されているものは、実際は料金が発生するものもございます。詳細はお問い合わせください。
| 家賃 | 8.3万円 | 管理費・共益費 | 4,000円 |
|---|---|---|---|
| 敷金 | 8.3万円 | 礼金 | なし |
| 入居決定でお祝い金最大100,000円 | |||
| 保証金 | - | 償却・敷引 | - |
| 住宅保険料 | - | 更新料 | - |
| 保証会社利用 | 必須 | 保証会社名 | - |
| 保証会社費用 | - | 保証会社備考 | 保証会社利用必 指定の保証会社利用必須 初回保証料賃料の50%~ |
| 契約形態 | - | 契約期間 | - |
| 入居・引渡期間 | 相談 | 現況 | - |
| 入居可能条件 | 事務所可、ペット相談 | ||
| 契約備考 | 12月27日解約予定。内見は完工後のご案内となります。先行契約は可能です。 合計4.1万円(内訳:鍵交換費用:22000円+税~ReloRent:19000円) ペット飼育の場合、敷金1ヶ月分は償却となります。その他詳細お問い合わせください。 1LDK 単身者可/二人入居可/子供可/ペット相談/事務所利用相談/ルームシェア相談 損保【2万円2年】 バストイレ別、バルコニー、エアコン、ガスコンロ対応、クロゼット、フローリング、システムキッチン、洗面所独立、押入、礼金不要、閑静な住宅地、ペット相談、敷金1ヶ月、二人入居相談、駅まで平坦、内装リフォーム済、緑豊かな住宅地、事務所相談、平坦地、ルームシェア相談、当社管理物件、和室、都市ガス、畳張替済、壁紙張替済 敷金積み増し【ペット飼育の場合敷金1ヶ月(総額)】 | ||
部屋の情報
| 間取り | 1LDK | 専有面積 | 51.41m2 |
|---|---|---|---|
| 所在階 / 向き | 3階 / - | バルコニー面積 | - |
| 水道 / ガス | - | ||
| 設備 | バス・トイレ別、2階以上、システムキッチン、エアコン、バルコニー、フローリング、洗髪洗面化粧台、コンロ:ガス | ||
| 当社物件ID | 29963526 | ||
建物の情報
| 建物名 | ドルフ安藤橋II | ||
|---|---|---|---|
| 所在地 | 神奈川県横浜市磯子区磯子 | ||
| 交通 | JR根岸線 磯子駅 徒歩13分 JR根岸線 根岸駅(神奈川) 徒歩24分 京急本線 屏風浦駅 徒歩26分 | ||
| 階数 | 5階建 | 総戸数 | - |
| 築年月 | 1988年09月 / 築38年 | エレベーター | - |
| 駐車場 | なし | バイク置き場 | - |
| 駐輪場 | - | 管理人/管理会社 | - |
| 周辺環境 | その他 トイザらスベビーザらス磯子店(ショッピングセンター)まで621m その他 まいばすけっと磯子2丁目店(スーパー)まで93m その他 セブンイレブン横浜磯子3丁目店(コンビニ)まで227m その他 ハックドラッグ横浜磯子店(ドラッグストア)まで987m その他 ヤマダ電機テックランド磯子店(ホームセンター)まで926m その他 バーミヤン磯子店(飲食店)まで761m | ||
| 建物種別 | マンション | 建物構造 | RC(鉄筋コンクリート) |
この部屋の取扱い不動産会社
| 会社名 | 日本中央管理(株)(SUUMO経由) | ||
|---|---|---|---|
| 所在地 | 東京都千代田区麹町3-5-2 | 交通 | - |
| 営業時間 | 10時~18時 | 定休日 | 日・水・祝 |
| 免許番号 | 東京都知事95144 | 取引態様 | 代理 |
| 不動産会社管理番号 | 100357295902 | 当社管理番号 | 89 |
| 所属団体 | (公社)全日本不動産協会東京都本部会員 | ||
| 公正取引協議会 | (公社)首都圏不動産公正取引協議会加盟 | ||
| 取扱い物件情報 | 物件詳細へ | ||
※各種情報と現状に差異がある場合は、現状優先となります。問い合わせをすることで、より詳しい条件、情報を確認する事ができます。
提供:日本中央管理(株)(SUUMO経由)
この物件が気になったら掲載期限まであと10日
ドルフ安藤橋IIに条件(家賃・エリア)が近い物件一覧
| 写真 | 家賃 管理費等 | 敷金 礼金 | 間取り 専有面積 | 築年数 | 最寄り駅 所在地 | キープ | 詳細 |
|---|---|---|---|---|---|---|---|
アパート ヴィラ元住吉(ワンルーム/2階) | |||||||
![]() | 5.5万円 3,000円 | 5.5万円 なし | ワンルーム 16.12m2 | 築39年 | 東急東横線 元住吉駅 徒歩12分 南武線 平間駅 徒歩15分 神奈川県川崎市中原区苅宿 | 詳細を見る | |
アパート サンクリスティーハウス(1K/1階) | |||||||
![]() | 5.3万円 2,000円 | 5.3万円 なし | 1K 17.35m2 | 築34年 | JR横須賀線 新川崎駅 徒歩17分 東急新横浜線 日吉駅(神奈川) 徒歩20分 グリーンライン 日吉駅(神奈川) 徒歩20分 神奈川県川崎市幸区矢上 | 詳細を見る | |
アパート エステートKANAE(1K/2階) | |||||||
![]() | 5.5万円 3,000円 | 5.5万円 5.5万円 | 1K 20.46m2 | 築33年 | 小田急江ノ島線 長後駅 徒歩10分 小田急江ノ島線 湘南台駅 徒歩20分 相鉄いずみ野線 湘南台駅 徒歩20分 神奈川県藤沢市高倉 | 詳細を見る | |
アパート クレールII(1LDK/1階) | |||||||
![]() | 12.5万円 3,000円 | 12.5万円 12.5万円 | 1LDK 46.23m2 | 築2年 | JR南武線 武蔵中原駅 徒歩12分 JR南武線 武蔵新城駅 徒歩17分 神奈川県川崎市中原区下新城 | 詳細を見る | |
アパート アドバンス メゾンK(1K/2階) | |||||||
![]() | 10万円 4,000円 | なし 15万円 | 1K 30.42m2 | 築4年 | JR南武線 平間駅 徒歩4分 神奈川県川崎市中原区北谷町 | 詳細を見る | |
アパート レイディアンス杉田(1K/1階) | |||||||
![]() | 5.8万円 3,000円 | なし なし | 1K 19.98m2 | 築6年 | 京急本線 杉田駅(神奈川) 徒歩8分 JR根岸線 新杉田駅 徒歩14分 シーサイドライン 新杉田駅 徒歩14分 神奈川県横浜市磯子区杉田 | 詳細を見る | |
マンション ルーブル武蔵中原伍番館(1K/5階) | |||||||
![]() | 10.5万円 9,000円 | なし 10.5万円 | 1K 25.37m2 | 新築 | 南武線 武蔵中原駅 徒歩9分 神奈川県川崎市中原区下小田中4丁目 | 詳細を見る | |
アパート TM渡田(ワンルーム/2階) | |||||||
![]() | 5.6万円 4,000円 | なし なし | ワンルーム 9.69m2 | 築12年 | 南武線 小田栄駅 徒歩9分 神奈川県川崎市川崎区渡田2丁目 | 詳細を見る | |








