賃貸マンション
コンフォリア・リヴ谷町四丁目の賃貸物件情報(2LDK/9階)
| 家賃 | 管理費等 | 敷金 | 礼金 | 間取り | 専有面積 |
|---|---|---|---|---|---|
| 26.5万円 | 2万円 | なし | 26.5万円 | 2LDK | 63.88m2 |
入居決定でお祝い金最大100,000円
- 保証金
- -
- 償却・敷引
- -
- 築年数
- 築1年
- 所在階
- 9階
- 向き
- 北
Point
コンフォリア・リヴ谷町四丁目:地下鉄谷町線谷町四丁目駅にも近くて便利。日々の暮らしに便利なコーヨー内本町店(スーパー)まで442mです。室内設備は浴室乾燥機・洗面化粧台・食器洗乾燥機など大変充実してお
提供:ツインホーム西梅田店(株)ディパーチャー(SUUMO経由)

詳細情報 コンフォリア・リヴ谷町四丁目
物件紹介
コンフォリア・リヴ谷町四丁目は地下鉄谷町線谷町四丁目駅から徒歩3分にあり、駅近で通勤通学に便利なマンションです。
このお部屋は2階以上に位置しているので、通行人や周囲の住人からの視線が気になりにくく、防犯面でも安心。建物のエントランスはオートロックがついており、インターホンにはTVモニタもついているため、相手の顔を確認してから来客対応することができます。
おしゃれなデザイナーズ物件!人気の角部屋で周囲の居住者の生活音も気になりにくく、また、フローリングのお部屋なのでお掃除もラクラク。室内にはウォークインクローゼットがありますので、たくさんの荷物も効率的に収納ができます。キッチンはシステムキッチン仕様になっていますので、お料理好きの方にもぴったり。バス・トイレは別なので、のんびりお風呂タイムも楽しめるでしょう。また、雨の日でも浴室乾燥機を使えば、お洗濯も問題ありません。
通信設備面では、インターネットが無料で使えるので、月々の出費を抑えられるのも魅力です。また、BSアンテナ・CSアンテナがありCATVにも対応しているので、おうち時間も充実するでしょう(別途工事、BS・CS・CATVの契約料等が必要な場合あり)。
床暖房があり、冬も足元から暖かく快適に過ごすことができます。建物にはエレベーターがついているので、重い荷物があっても安心。共用部には宅配ボックスが設定されているので、不在の時にも荷物を受け取ることができます。また、ペット飼育の相談ができますので、あなたの大切な家族の一員も快適に暮らせるか、ぜひ確認してみてください。
このお部屋は2階以上に位置しているので、通行人や周囲の住人からの視線が気になりにくく、防犯面でも安心。建物のエントランスはオートロックがついており、インターホンにはTVモニタもついているため、相手の顔を確認してから来客対応することができます。
おしゃれなデザイナーズ物件!人気の角部屋で周囲の居住者の生活音も気になりにくく、また、フローリングのお部屋なのでお掃除もラクラク。室内にはウォークインクローゼットがありますので、たくさんの荷物も効率的に収納ができます。キッチンはシステムキッチン仕様になっていますので、お料理好きの方にもぴったり。バス・トイレは別なので、のんびりお風呂タイムも楽しめるでしょう。また、雨の日でも浴室乾燥機を使えば、お洗濯も問題ありません。
通信設備面では、インターネットが無料で使えるので、月々の出費を抑えられるのも魅力です。また、BSアンテナ・CSアンテナがありCATVにも対応しているので、おうち時間も充実するでしょう(別途工事、BS・CS・CATVの契約料等が必要な場合あり)。
床暖房があり、冬も足元から暖かく快適に過ごすことができます。建物にはエレベーターがついているので、重い荷物があっても安心。共用部には宅配ボックスが設定されているので、不在の時にも荷物を受け取ることができます。また、ペット飼育の相談ができますので、あなたの大切な家族の一員も快適に暮らせるか、ぜひ確認してみてください。
お金・契約の情報
※「-」と表示されているものは、実際は料金が発生するものもございます。詳細はお問い合わせください。
| 家賃 | 26.5万円 | 管理費・共益費 | 2万円 |
|---|---|---|---|
| 敷金 | なし | 礼金 | 26.5万円 |
| 入居決定でお祝い金最大100,000円 | |||
| 保証金 | - | 償却・敷引 | - |
| 住宅保険料 | - | 更新料 | - |
| 契約形態 | - | 契約期間 | - |
| 入居・引渡期間 | 即時 | 現況 | - |
| 入居可能条件 | ペット相談 | ||
| 契約備考 | 2LDK 二人入居可/子供可/ペット相談/事務所利用不可 普通借家2年 損保【要】 バストイレ別、バルコニー、ガスコンロ対応、クロゼット、フローリング、浴室乾燥機、オートロック、室内洗濯置、システムキッチン、追焚機能浴室、角住戸、温水洗浄便座、脱衣所、エレベーター、洗面所独立、洗面化粧台、駐輪場、宅配ボックス、CATV、即入居可、敷金不要、3口以上コンロ、防犯カメラ、ペット相談、全居室収納、オートバス、グリル付、全居室洋室、ウォークインクロゼット、全居室フローリング、2沿線利用可、エアコン2台、LDK15畳以上、ディンプルキー、駅まで平坦、ネット使用料不要、床暖房、食器洗乾燥機、1フロア2住戸、築2年以内、24時間換気システム、TV付浴室、電子キー、浴室未使用、トイレ未使用、防音サッシ、2駅利用可、3駅以上利用可、3沿線以上利用可、駅徒歩5分以内、駅徒歩10分以内、24時間ゴミ出し可、風除室、食品庫、キッチン未使用、都市ガス、洗面所にドア、ウォークスルークロゼット、シューズWIC、玄関収納 | ||
部屋の情報
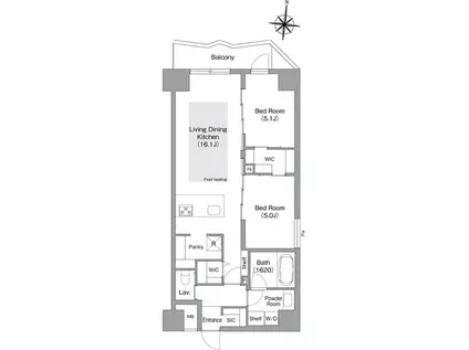
| 間取り | 2LDK | 専有面積 | 63.88m2 |
|---|---|---|---|
| 所在階 / 向き | 9階 / 北 | バルコニー面積 | - |
| 水道 / ガス | - | ||
| 設備 | バス・トイレ別、2階以上、オートロック、宅配ボックス、浴室乾燥機、ウォークインクローゼット、追い焚き、インターネット対応、システムキッチン、エアコン、エレベーター、温水洗浄便座、角部屋、バルコニー、フローリング、洗髪洗面化粧台、床暖房、2口コンロ、コンロ:ガス、CATV、インターネット使用料無料、洗濯機:室内 | ||
| 当社物件ID | 158512263 | ||
建物の情報
| 建物名 | コンフォリア・リヴ谷町四丁目 | ||
|---|---|---|---|
| 所在地 | 大阪府大阪市中央区北新町 | ||
| 交通 | 地下鉄谷町線 谷町四丁目駅 徒歩3分 地下鉄中央線 谷町四丁目駅 徒歩6分 京阪中之島線 天満橋駅 徒歩9分 | ||
| 階数 | 11階建 | 総戸数 | - |
| 築年月 | 2025年03月 / 築1年 | エレベーター | あり |
| 駐車場 | なし | バイク置き場 | - |
| 駐輪場 | あり | 管理人/管理会社 | - |
| 周辺環境 | その他 スギ薬局 谷町四丁目店(ドラッグストア)まで265m その他 ファミリーマート 北浜一丁目店(コンビニ)まで285m その他 コーヨー内本町店(スーパー)まで442m その他 イオンエクスプレス大阪常盤町店(スーパー)まで646m | ||
| 建物種別 | マンション | 建物構造 | RC(鉄筋コンクリート) |
この部屋の取扱い不動産会社
| 会社名 | ツインホーム西梅田店(株)ディパーチャー(SUUMO経由) | ||
|---|---|---|---|
| 所在地 | 大阪府大阪市福島区福島7-14-16 エスポルテ福島1階 | 交通 | - |
| 営業時間 | 10:00~20:00 | 定休日 | 無し |
| 免許番号 | 大阪府知事57991 | 取引態様 | 仲介 |
| 不動産会社管理番号 | 100471466066 | 当社管理番号 | 89 |
| 所属団体 | (公社)全日本不動産協会大阪府本部会員 | ||
| 公正取引協議会 | (公社)近畿地区不動産公正取引協議会加盟 | ||
| 取扱い物件情報 | 物件詳細へ | ||
※各種情報と現状に差異がある場合は、現状優先となります。問い合わせをすることで、より詳しい条件、情報を確認する事ができます。
提供:ツインホーム西梅田店(株)ディパーチャー(SUUMO経由)
この物件が気になったら掲載期限まであと10日
コンフォリア・リヴ谷町四丁目に条件(家賃・エリア)が近い物件一覧
| 写真 | 家賃 管理費等 | 敷金 礼金 | 間取り 専有面積 | 築年数 | 最寄り駅 所在地 | キープ | 詳細 |
|---|---|---|---|---|---|---|---|
マンション レジディア千里万博公園(3SLDK/3階) | |||||||
| 17.7万円 1.8万円 | 17.7万円 35.4万円 | 3SLDK 80.83m2 | 築21年 | 大阪モノレール本線 山田駅(大阪) 徒歩8分 阪急電鉄千里線 山田駅(大阪) 徒歩9分 大阪モノレール彩都 万博記念公園駅(大阪) 徒歩19分 大阪府吹田市山田北8-28 | 詳細を見る | ||
マンション メゾン松原(5LDK/7階) | |||||||
![]() | 20万円 1万円 | 20万円 20万円 | 5LDK 175m2 | 築32年 | 近鉄南大阪線 恵我ノ荘駅 徒歩15分 近鉄南大阪線 河内松原駅 徒歩20分 近鉄南大阪線 高鷲駅 徒歩30分 大阪府松原市別所2丁目 | 詳細を見る | |
マンション シャーメゾン ヴァンヴェール(2SLDK/3階) | |||||||
![]() | 16.2万円 1.05万円 | 2万円 16.2万円 | 2SLDK 66.95m2 | 築3年 | 近鉄難波・奈良線 布施駅 徒歩4分 大阪府東大阪市足代1丁目 | 詳細を見る | |
マンション グランドメゾン万博公園南(3LDK/13階) | |||||||
![]() | 23.5万円 1万円 | 23.5万円 47万円 | 3LDK 115.22m2 | 築23年 | 大阪モノレール彩都 公園東口駅 徒歩20分 大阪モノレール本線 万博記念公園駅(大阪) 徒歩21分 大阪モノレール彩都 万博記念公園駅(大阪) 徒歩21分 大阪府吹田市山田東3丁目8-23 | 詳細を見る | |
マンション S-RESIDENCE天満橋AR(2SLDK/14階) | |||||||
| 30万円 2万円 | なし なし | 2SLDK 64.79m2 | 築1年 | JR東西線 大阪天満宮駅 徒歩9分 京阪電気鉄道京阪線 天満橋駅 徒歩9分 大阪市堺筋線 南森町駅 徒歩11分 大阪府大阪市北区天満1丁目21-8 | 詳細を見る | ||
マンション アリビオ西麻布(1K/8階) | |||||||
![]() | 16.1万円 1万円 | 16.1万円 16.1万円 | 1K 30.48m2 | 築9年 | 東京メトロ日比谷線 広尾駅 徒歩11分 東京メトロ日比谷線 六本木駅 徒歩12分 東京メトロ千代田線 乃木坂駅 徒歩13分 東京都港区西麻布 | 詳細を見る | |
マンション WELINA江坂(2LDK/5階) | |||||||
| 16.3万円 1.2万円 | なし 40万円 | 2LDK 62.61m2 | 築11年 | 北大阪急行南北線 江坂駅 徒歩12分 おおさか東線 南吹田駅 徒歩18分 阪急電鉄千里線 豊津駅(大阪) 徒歩18分 大阪府吹田市南金田2丁目25-23 | 詳細を見る | ||
マンション 和の杜 江坂(2LDK/3階) | |||||||
![]() | 25.6万円 1.5万円 | 15万円 なし | 2LDK 77.28m2 | 新築 | 大阪市御堂筋線 江坂駅 徒歩9分 阪急電鉄宝塚線 服部天神駅 徒歩27分 阪急電鉄宝塚線 庄内駅(大阪) 徒歩30分 大阪府吹田市豊津町798-1 | 詳細を見る | |




