賃貸マンション
コンフォリア・リヴ谷町四丁目の賃貸物件情報(2LDK/9階)
| 家賃 | 管理費等 | 敷金 | 礼金 | 間取り | 専有面積 |
|---|---|---|---|---|---|
| 26.5万円 | 2万円 | なし | 26.5万円 | 2LDK | 63.88m2 |
入居決定でお祝い金最大100,000円
Point
新築◆ペット(小型犬OR猫2匹)飼育可◆ネットWI−FI無料
提供:アパマンショップ天王寺駅前店

詳細情報 コンフォリア・リヴ谷町四丁目
物件紹介
コンフォリア・リヴ谷町四丁目は大阪メトロ中央線谷町四丁目駅から徒歩3分にあり、駅近で通勤通学に便利なマンションです。
このお部屋は2階以上に位置しているので、通行人や周囲の住人からの視線が気になりにくく、防犯面でも安心。建物のエントランスはオートロックがついており、インターホンにはTVモニタもついているため、相手の顔を確認してから来客対応することができます。
おしゃれなデザイナーズ物件!人気の角部屋で周囲の居住者の生活音も気になりにくく、また、フローリングのお部屋なのでお掃除もラクラク。室内にはウォークインクローゼットがありますので、たくさんの荷物も効率的に収納ができます。キッチンはシステムキッチン仕様になっていますので、お料理好きの方にもぴったり。バス・トイレは別なので、のんびりお風呂タイムも楽しめるでしょう。また、雨の日でも浴室乾燥機を使えば、お洗濯も問題ありません。
通信設備面では、インターネットが無料で使えるので、月々の出費を抑えられるのも魅力です。また、BSアンテナ・CSアンテナがありCATVにも対応しているので、おうち時間も充実するでしょう(別途工事、BS・CS・CATVの契約料等が必要な場合あり)。
床暖房があり、冬も足元から暖かく快適に過ごすことができます。建物にはエレベーターがついているので、重い荷物があっても安心。共用部には宅配ボックスが設定されているので、不在の時にも荷物を受け取ることができます。また、ペット飼育の相談ができますので、あなたの大切な家族の一員も快適に暮らせるか、ぜひ確認してみてください。
コンビニまで徒歩8分の場所にあり、日用品や食料品のお買い物にも便利です。
このお部屋は2階以上に位置しているので、通行人や周囲の住人からの視線が気になりにくく、防犯面でも安心。建物のエントランスはオートロックがついており、インターホンにはTVモニタもついているため、相手の顔を確認してから来客対応することができます。
おしゃれなデザイナーズ物件!人気の角部屋で周囲の居住者の生活音も気になりにくく、また、フローリングのお部屋なのでお掃除もラクラク。室内にはウォークインクローゼットがありますので、たくさんの荷物も効率的に収納ができます。キッチンはシステムキッチン仕様になっていますので、お料理好きの方にもぴったり。バス・トイレは別なので、のんびりお風呂タイムも楽しめるでしょう。また、雨の日でも浴室乾燥機を使えば、お洗濯も問題ありません。
通信設備面では、インターネットが無料で使えるので、月々の出費を抑えられるのも魅力です。また、BSアンテナ・CSアンテナがありCATVにも対応しているので、おうち時間も充実するでしょう(別途工事、BS・CS・CATVの契約料等が必要な場合あり)。
床暖房があり、冬も足元から暖かく快適に過ごすことができます。建物にはエレベーターがついているので、重い荷物があっても安心。共用部には宅配ボックスが設定されているので、不在の時にも荷物を受け取ることができます。また、ペット飼育の相談ができますので、あなたの大切な家族の一員も快適に暮らせるか、ぜひ確認してみてください。
コンビニまで徒歩8分の場所にあり、日用品や食料品のお買い物にも便利です。
お金・契約の情報
※「-」と表示されているものは、実際は料金が発生するものもございます。詳細はお問い合わせください。
| 家賃 | 26.5万円 | 管理費・共益費 | 2万円 |
|---|---|---|---|
| 敷金 | なし | 礼金 | 26.5万円 |
| 入居決定でお祝い金最大100,000円 | |||
| 保証金 | - | 償却・敷引 | - |
| 住宅保険料 | 1.655万円(2年) | 更新料 | - |
| 保証会社利用 | 必須 | 保証会社名 | エポスカード(RP) |
| 保証会社費用 | - | 保証会社備考 | 保証料:賃料等の50%(最低2万)、月額保証料:賃料等の1%(更新料無) |
| 契約形態 | - | 契約期間 | 2年 |
| 入居・引渡期間 | 相談 | 現況 | - |
| 入居可能条件 | ペット可 | ||
| 契約備考 | 敷金積み増し:ペット飼育 1.00カ月、小型犬:可、大型犬:不可、猫:可、その他:敷金1ヶ月・共益費3千円積増 その他 1650円/清掃費 49500円/駐輪場ステッカー 440円/エアコン清掃費 16500円/鍵交換代 22000円 | ||
部屋の情報
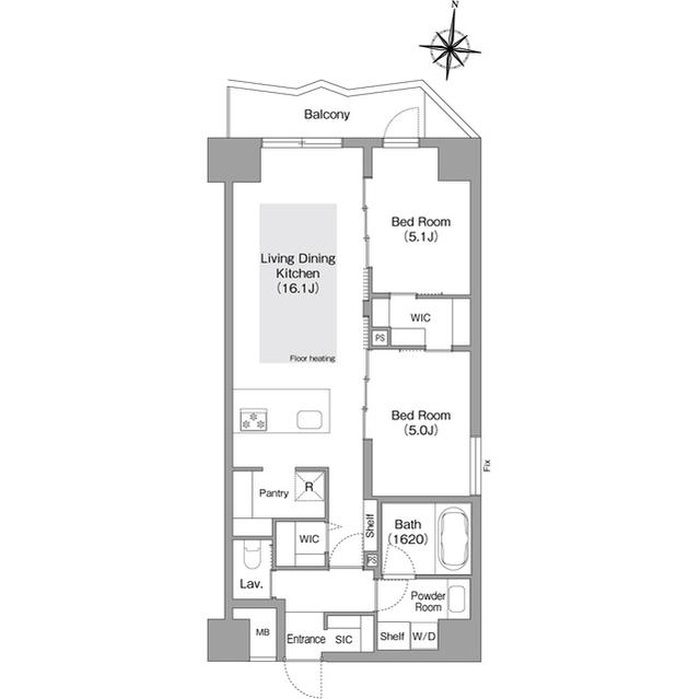
| 間取り | 2LDK | 専有面積 | 63.88m2 |
|---|---|---|---|
| 間取り詳細 | LDK(16.1帖)、洋室(5.1帖)、洋室(5帖) | ||
| 所在階 / 向き | 9階 / 北 | バルコニー面積 | - |
| 水道 / ガス | - | ||
| 設備 | バス・トイレ別、オートロック、テレビドアホン、宅配ボックス、浴室乾燥機、ウォークインクローゼット、追い焚き、光ファイバー対応、システムキッチン、エレベーター、温水洗浄便座、バルコニー、フローリング、コンロ:ガス、CATV、インターネット使用料無料、シャワー、給湯、冷房、洗濯機:室内、タイル張り、閑静な住宅街 | ||
| 当社物件ID | 158512263 | ||
建物の情報
| 建物名 | コンフォリア・リヴ谷町四丁目 | ||
|---|---|---|---|
| 所在地 | 大阪府大阪市中央区北新町 | ||
| 交通 | 大阪メトロ中央線 谷町四丁目駅 徒歩3分 | ||
| 階数 | 11階建 | 総戸数 | 21戸 |
| 築年月 | 2025年03月 / 築1年 | エレベーター | あり |
| 駐車場 | - | バイク置き場 | - |
| 駐輪場 | あり | 管理人/管理会社 | - |
| 建物種別 | マンション | 建物構造 | RC(鉄筋コンクリート) |
この部屋の取扱い不動産会社
| 会社名 | アパマンショップ江坂駅前店 | ||
|---|---|---|---|
| 所在地 | 大阪府吹田市豊津町 9-15日本興業ビル5F | 交通 | 大阪市御堂筋線江坂から徒歩1分 |
| 営業時間 | 10:00〜18:30(南9番出口、直結ビル5階です。) | 定休日 | - |
| 免許番号 | 大阪府知事(6)47572 | 取引態様 | 仲介 |
| 不動産会社管理番号 | 104973439 | 当社管理番号 | 4 |
| 所属団体 | (一社)大阪府宅地建物取引業協会 | ||
| 公正取引協議会 | (公社) 近畿地区不動産公正取引協議会加盟 | ||
| 取扱い物件情報 | 物件詳細へ | ||
※各種情報と現状に差異がある場合は、現状優先となります。問い合わせをすることで、より詳しい条件、情報を確認する事ができます。
提供:アパマンショップ江坂駅前店
この物件が気になったら掲載期限まであと8日
コンフォリア・リヴ谷町四丁目に条件(家賃・エリア)が近い物件一覧
| 写真 | 家賃 管理費等 | 敷金 礼金 | 間取り 専有面積 | 築年数 | 最寄り駅 所在地 | キープ | 詳細 |
|---|---|---|---|---|---|---|---|
マンション アリビオ西麻布(1K/8階) | |||||||
![]() | 16.1万円 1万円 | 16.1万円 16.1万円 | 1K 30.48m2 | 築9年 | 東京メトロ日比谷線 広尾駅 徒歩11分 東京メトロ日比谷線 六本木駅 徒歩12分 東京メトロ千代田線 乃木坂駅 徒歩13分 東京都港区西麻布 | 詳細を見る | |
マンション ことぶき(2LDK/3階) | |||||||
![]() | 16.6万円 1.1万円 | 5万円 なし | 2LDK 67.9m2 | 新築 | 阪急電鉄千里線 吹田駅(阪急) 徒歩8分 東海道本線 吹田駅(JR) 徒歩15分 おおさか東線 南吹田駅 徒歩15分 大阪府吹田市寿町2丁目2864-18 | 詳細を見る | |
アパート クラシスト千里丘上(2LDK/2階) | |||||||
| 18.2万円 9,000円 | なし 32万円 | 2LDK 71.34m2 | 築1年 | 東海道本線 千里丘駅 徒歩8分 阪急電鉄京都線 摂津市駅 徒歩18分 大阪モノレール本線 沢良宜駅 徒歩21分 大阪府吹田市千里丘上7-8 | 詳細を見る | ||
一戸建て 南海電鉄南海本線 浜寺公園駅 徒歩2分 築1年(3SLDK) | |||||||
![]() | 18万円 なし | なし 18万円 | 3SLDK 80.93m2 | 築1年 | 南海電鉄南海本線 浜寺公園駅 徒歩2分 阪和線 東羽衣駅 徒歩8分 南海電鉄南海本線 羽衣駅 徒歩8分 大阪府堺市西区浜寺昭和町4丁 | 詳細を見る | |
マンション レジディア千里万博公園(3LDK/8階) | |||||||
| 16.4万円 1.8万円 | 16.4万円 32.8万円 | 3LDK 75.56m2 | 築21年 | 大阪モノレール本線 山田駅(大阪) 徒歩8分 阪急電鉄千里線 山田駅(大阪) 徒歩9分 大阪モノレール彩都 万博記念公園駅(大阪) 徒歩19分 大阪府吹田市山田北8-28 | 詳細を見る | ||
マンション グランセジュール江坂 住居(2LDK/11階) | |||||||
| 24万円 1.2万円 | なし 48万円 | 2LDK 73.63m2 | 築9年 | 北大阪急行南北線 江坂駅 徒歩3分 阪急電鉄千里線 豊津駅(大阪) 徒歩21分 おおさか東線 南吹田駅 徒歩24分 大阪府吹田市広芝町11-41 | 詳細を見る | ||
マンション WELINA江坂(2LDK/5階) | |||||||
| 16.3万円 1.2万円 | なし 40万円 | 2LDK 62.61m2 | 築11年 | 北大阪急行南北線 江坂駅 徒歩12分 おおさか東線 南吹田駅 徒歩18分 阪急電鉄千里線 豊津駅(大阪) 徒歩18分 大阪府吹田市南金田2丁目25-23 | 詳細を見る | ||



