賃貸マンション
クレヴィスタ板橋西台IIの賃貸物件情報(1K/7階)
| 家賃 | 管理費等 | 敷金 | 礼金 | 間取り | 専有面積 |
|---|---|---|---|---|---|
| 8.65万円 | 1.5万円 | なし | 4.33万円 | 1K | 25.62m2 |
入居決定でお祝い金最大100,000円
- 保証金
- -
- 償却・敷引
- -
- 築年数
- 築10年
- 所在階
- 7階
- 向き
- 北
Point
収納はクロゼット・シューズボックスなど豊富なので、広々と空間を利用することも可能です。共用部には宅配ボックス・ゴミ出し24時間OKなどが揃っております。
提供:(株)インヴァランス(SUUMO経由)

詳細情報 クレヴィスタ板橋西台II
物件紹介
クレヴィスタ板橋西台IIは都営三田線西台駅から徒歩9分にあり、駅近で通勤通学に便利なマンションです。
このお部屋は2階以上に位置しているので、通行人や周囲の住人からの視線が気になりにくく、防犯面でも安心。建物のエントランスはオートロックがついており、インターホンにはTVモニタもついているため、相手の顔を確認してから来客対応することができます。
おしゃれなデザイナーズ物件!フローリングのお部屋なのでお掃除もラクラク。キッチンはシステムキッチン仕様になっていますので、お料理好きの方にもぴったり。バス・トイレは別なので、のんびりお風呂タイムも楽しめるでしょう。また、雨の日でも浴室乾燥機を使えば、お洗濯も問題ありません。
通信設備面では、インターネットが無料で使えるので、月々の出費を抑えられるのも魅力です。また、BSアンテナ・CSアンテナがありCATVにも対応しているので、おうち時間も充実するでしょう(別途工事、BS・CS・CATVの契約料等が必要な場合あり)。
建物にはエレベーターがついているので、重い荷物があっても安心。共用部には宅配ボックスが設定されているので、不在の時にも荷物を受け取ることができます。また、ペット飼育の相談ができますので、あなたの大切な家族の一員も快適に暮らせるか、ぜひ確認してみてください。
このお部屋は2階以上に位置しているので、通行人や周囲の住人からの視線が気になりにくく、防犯面でも安心。建物のエントランスはオートロックがついており、インターホンにはTVモニタもついているため、相手の顔を確認してから来客対応することができます。
おしゃれなデザイナーズ物件!フローリングのお部屋なのでお掃除もラクラク。キッチンはシステムキッチン仕様になっていますので、お料理好きの方にもぴったり。バス・トイレは別なので、のんびりお風呂タイムも楽しめるでしょう。また、雨の日でも浴室乾燥機を使えば、お洗濯も問題ありません。
通信設備面では、インターネットが無料で使えるので、月々の出費を抑えられるのも魅力です。また、BSアンテナ・CSアンテナがありCATVにも対応しているので、おうち時間も充実するでしょう(別途工事、BS・CS・CATVの契約料等が必要な場合あり)。
建物にはエレベーターがついているので、重い荷物があっても安心。共用部には宅配ボックスが設定されているので、不在の時にも荷物を受け取ることができます。また、ペット飼育の相談ができますので、あなたの大切な家族の一員も快適に暮らせるか、ぜひ確認してみてください。
お金・契約の情報
※「-」と表示されているものは、実際は料金が発生するものもございます。詳細はお問い合わせください。
| 家賃 | 8.65万円 | 管理費・共益費 | 1.5万円 |
|---|---|---|---|
| 敷金 | なし | 礼金 | 4.33万円 |
| 入居決定でお祝い金最大100,000円 | |||
| 保証金 | - | 償却・敷引 | - |
| 住宅保険料 | - | 更新料 | - |
| 保証会社利用 | 必須 | 保証会社名 | - |
| 保証会社費用 | - | 保証会社備考 | 保証会社利用必 総額家賃の40% 緊急連絡先40% |
| 契約形態 | - | 契約期間 | - |
| 入居・引渡期間 | - | 現況 | - |
| 入居可能条件 | ペット相談 | ||
| 契約備考 | 巡回管理 合計5.5万円(内訳:書類作成代1.1万円鍵交換代4.4万円) 更新料 新賃料1.00ヶ月分 室内清掃費用 55000円 レジデンシャルサポート料 月額800円 1K 二人入居可/ペット相談 普通借家2年 損保【要】 バストイレ別、バルコニー、エアコン、ガスコンロ対応、クロゼット、フローリング、TVインターホン、浴室乾燥機、オートロック、室内洗濯置、シューズボックス、システムキッチン、温水洗浄便座、エレベーター、洗面所独立、2口コンロ、駐輪場、宅配ボックス、BS・CS、敷金不要、防犯カメラ、ペット相談、分譲賃貸、保証人不要、仲介手数料不要、二人入居相談、デザイナーズ、2沿線利用可、駅まで平坦、ネット使用料不要、ダブルロックキー、保証金不要、24時間換気システム、平坦地、電子ロック、初期費用20万円以下、人感照明センサー、2駅利用可、駅徒歩10分以内、24時間ゴミ出し可、敷地内ごみ置き場、当社管理物件、セキュリティ会社加入済、都市ガス、マルチメディアコンセント、年内入居可、保証会社利用可、初期費用30万円以下 入居日:'26年4月中旬 | ||
部屋の情報
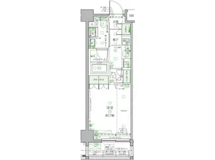
| 間取り | 1K | 専有面積 | 25.62m2 |
|---|---|---|---|
| 所在階 / 向き | 7階 / 北 | バルコニー面積 | - |
| 水道 / ガス | - | ||
| 設備 | バス・トイレ別、2階以上、オートロック、テレビドアホン、宅配ボックス、浴室乾燥機、インターネット対応、システムキッチン、エアコン、エレベーター、温水洗浄便座、バルコニー、フローリング、洗髪洗面化粧台、2口コンロ、コンロ:ガス、デザイナーズ、CSアンテナ、BSアンテナ、インターネット使用料無料、洗濯機:室内 | ||
| 当社物件ID | 28254194 | ||
建物の情報
| 建物名 | クレヴィスタ板橋西台II | ||
|---|---|---|---|
| 所在地 | 東京都板橋区高島平 | ||
| 交通 | 都営三田線 西台駅 徒歩9分 都営三田線 高島平駅 徒歩11分 JR埼京線 浮間舟渡駅 徒歩31分 | ||
| 階数 | 10階建 | 総戸数 | 131戸 |
| 築年月 | 2017年02月 / 築10年 | エレベーター | あり |
| 駐車場 | なし | バイク置き場 | - |
| 駐輪場 | あり | 管理人/管理会社 | - |
| 周辺環境 | その他 カフェ&バーハナレイ(飲食店)まで1225m その他 ミスタードーナツ 西台駅前ショップ(飲食店)まで982m その他 すき家 西台駅西店(飲食店)まで1321m その他 エニタイムフィットネス 西台店(その他)まで1077m その他 まいばすけっと 西台駅西口店(スーパー)まで1158m その他 ファミリーマート 西台駅西口店(コンビニ)まで1177m | ||
| 建物種別 | マンション | 建物構造 | RC(鉄筋コンクリート) |
この部屋の取扱い不動産会社
| 会社名 | (株)インヴァランス(SUUMO経由) | ||
|---|---|---|---|
| 所在地 | 東京都渋谷区代々木2-1-1 新宿マインズタワー17階 | 交通 | - |
| 営業時間 | 10:00~19:00 | 定休日 | 無休 |
| 免許番号 | 東京都知事83602 | 取引態様 | 貸主 |
| 不動産会社管理番号 | 100486351899 | 当社管理番号 | 89 |
| 所属団体 | (公社)全日本不動産協会東京都本部会員 | ||
| 公正取引協議会 | (公社)首都圏不動産公正取引協議会加盟 | ||
| 取扱い物件情報 | 物件詳細へ | ||
※各種情報と現状に差異がある場合は、現状優先となります。問い合わせをすることで、より詳しい条件、情報を確認する事ができます。
提供:(株)インヴァランス(SUUMO経由)
この物件が気になったら掲載期限まであと11日
クレヴィスタ板橋西台IIに条件(家賃・エリア)が近い物件一覧
| 写真 | 家賃 管理費等 | 敷金 礼金 | 間取り 専有面積 | 築年数 | 最寄り駅 所在地 | キープ | 詳細 |
|---|---|---|---|---|---|---|---|
マンション サンハイツ志茂多(3DK/4階) | |||||||
![]() | 12.5万円 なし | 12.5万円 12.5万円 | 3DK 56.89m2 | 築33年 | 東武東上線 成増駅 徒歩10分 東京メトロ有楽町線 地下鉄成増駅 徒歩12分 東京メトロ副都心線 地下鉄成増駅 徒歩12分 東京都板橋区赤塚 | 詳細を見る | |
マンション ルーブル南池袋(1K/6階) | |||||||
![]() | 7.6万円 1.35万円 | なし 7.6万円 | 1K 21.28m2 | 築19年 | 東京メトロ有楽町線 東池袋駅 徒歩3分 都電荒川線 東池袋四丁目駅 徒歩3分 JR山手線 池袋駅 徒歩15分 東京都豊島区南池袋 | 詳細を見る | |
マンション セリュークス板橋本町(1K/2階) | |||||||
![]() | 7.7万円 8,000円 | 7.7万円 7.7万円 | 1K 22.31m2 | 築17年 | 都営三田線 板橋本町駅 徒歩2分 都営三田線 本蓮沼駅 徒歩14分 都営三田線 板橋区役所前駅 徒歩16分 東京都板橋区本町 | 詳細を見る | |
アパート シェソワ(1LDK/1階) | |||||||
![]() | 11万円 3,000円 | 11万円 22万円 | 1LDK 45.91m2 | 築17年 | 東武東上線 中板橋駅 徒歩11分 東武東上線 ときわ台駅(東京) 徒歩11分 都営三田線 板橋本町駅 徒歩14分 東京都板橋区富士見町 | 詳細を見る | |
マンション シティ東十条(1K/3階) | |||||||
![]() | 5.45万円 9,000円 | なし 5.45万円 | 1K 17.34m2 | 築35年 | 京浜東北・根岸線 東十条駅 徒歩4分 東京都北区東十条3丁目 | 詳細を見る | |
アパート 東武東上線 ときわ台駅(東京) 徒歩12分 築56年(1K/1階) | |||||||
![]() | 5.8万円 なし | 5.8万円 5.8万円 | 1K 23.49m2 | 築56年 | 東武東上線 ときわ台駅(東京) 徒歩12分 東武東上線 上板橋駅 徒歩15分 西武有楽町線 小竹向原駅 徒歩18分 東京都板橋区東新町 | 詳細を見る | |
マンション 東都自動車ビルヂング(2K/8階) | |||||||
![]() | 10.5万円 8,000円 | 21万円 なし | 2K 40.62m2 | 築54年 | 東京メトロ有楽町線 要町駅 徒歩5分 JR山手線 池袋駅 徒歩10分 西武池袋線 椎名町駅 徒歩18分 東京都豊島区西池袋 | 詳細を見る | |
マンション ルーブル板橋区役所前(1K/4階) | |||||||
![]() | 10.5万円 なし | 10.5万円 なし | 1K 25.62m2 | 築12年 | 都営三田線 板橋区役所前駅 徒歩4分 東武東上線 大山駅(東京) 徒歩9分 東武東上線 下板橋駅 徒歩12分 東京都板橋区板橋 | 詳細を見る | |






/105x80-f1-q70-wp1)


